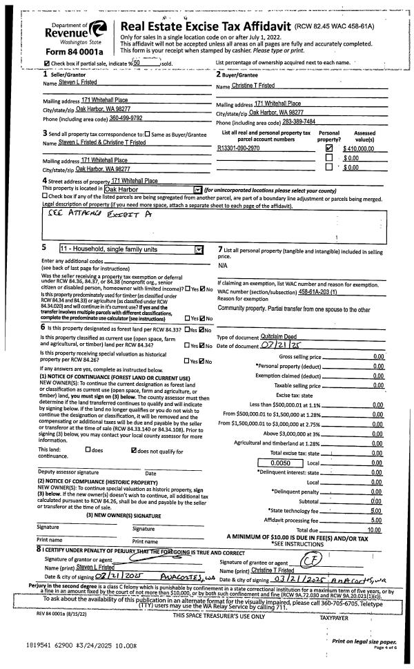
Property
Account |
| Property ID: | 31101 | Abbreviated Legal Description: | 0.6600 Acres ins Section 01s Township 33s Range R1s LOT A BLA 121-18 AF# 4446254 TL 95 - IN SW SE TR D SP 73-026;s |
| Geographic ID: | R13301-090-2970 | Agent Code: | |
| Type: | Real | | |
| Tax Area: | 110 - APPRAISER-OH Schl Dist, outside OH, improved & 1 acre or less | Land Use Code | 11 |
| Open Space: | N | DFL | N |
| Historic Property: | N | Remodel Property: | N |
| Multi-Family Redevelopment: | N | | |
| Township: | 33 | Section: | 01 |
| Range: | R1 |
Location |
| Address: | 171 WHITEHALL PLACE OAK HARBOR, WA 98277 | Mapsco: | |
| Neighborhood: | Cycle 6 | Map ID: | 190 |
| Neighborhood CD: | 6 |
Owner |
| Name: | FRISTED, STEVEN L | Owner ID: | 315895 |
| Mailing Address: | CHRISTINE T FRISTED 171 WHITEHALL PL OAK HARBOR, WA 98277 | % Ownership: | 100.0000000000% |
| | | Exemptions: | |
Taxes and Assessment Details
Values
| (+) Improvement Homesite Value: | + | $0 | |
| (+) Improvement Non-Homesite Value: | + | $221,400 | |
| (+) Land Homesite Value: | + | $0 | |
| (+) Land Non-Homesite Value: | + | $200,000 | |
| (+) Curr Use (HS): | + | $0 | $0 |
| (+) Curr Use (NHS): | + | $0 | $0 |
| | | -------------------------- | |
| (=) Market Value: | = | $421,400 | |
| (–) Productivity Loss: | – | $0 | |
| | | -------------------------- | |
| (=) Subtotal: | = | $421,400 | |
| (+) Senior Appraised Value: | + | $0 | |
| (+) Non-Senior Appraised Value: | + | $421,400 | |
| | | -------------------------- | |
| (=) Total Appraised Value: | = | $421,400 | |
| (–) Senior Exemption Loss: | – | $0 | |
| (–) Exemption Loss: | – | $0 | |
| | | -------------------------- | |
| (=) Taxable Value: | = | $421,400 | |
Taxing Jurisdiction
| Owner: | FRISTED, STEVEN L | | |
| % Ownership: | 100.0000000000% | | |
| Total Value: | $421,400 | | |
| Tax Area: | 110 - APPRAISER-OH Schl Dist, outside OH, improved & 1 acre or less |
| CF | Conservation Futures | 0.0313996660 | $421,400 | $421,400 | $13.23 | | |
| CEM1 | Cemetery #1 | 0.0040018856 | $421,400 | $421,400 | $1.69 | | |
| FIRE2 | Fire & Rescue Dist #2 N Whidbey GEN | 0.5381486274 | $421,400 | $421,400 | $226.78 | | |
| HOBOND | Hospital BOND | 0.1893405597 | $421,400 | $421,400 | $79.79 | | |
| HOGEN | Hospital GEN | 0.3848777722 | $421,400 | $421,400 | $162.19 | | |
| CE | County Current Expense | 0.3674210519 | $421,400 | $421,400 | $154.83 | | |
| CR | County Roads | 0.4614296361 | $421,400 | $421,400 | $194.45 | | |
| ISLANDEMS | Hospital GEN (EMS) | 0.4952018576 | $421,400 | $421,400 | $208.68 | | |
| LIB | Library Sno-Isle GEN | 0.3039084203 | $421,400 | $421,400 | $128.07 | | |
| NWHIDPRMT | P & R N Whidbey GEN | 0.1990272349 | $421,400 | $421,400 | $83.87 | | |
| SCH201MO | School 201 Enrichment | 2.3851112745 | $421,400 | $421,400 | $1,005.09 | | |
| ST | State School | 1.4761226122 | $421,400 | $421,400 | $622.04 | | |
| ST2 | State School Part 2 | 0.7953803475 | $421,400 | $421,400 | $335.17 | | |
| | Total Tax Rate: | 7.6313709459 | | | | | |
| | | | | Taxes w/Current Exemptions: | $3,215.88 | | |
| | | | | Taxes w/o Exemptions: | $3,215.88 | | |
Improvement / Building
| Improvement #1: | RESIDENTIAL | State Code: | Y | 1288.0 sqft | Value: | $221,400 |
| Bathrooms: | 1.5 | Bedrooms: | 3 | | Ceiling: | DRY WALL SPRAYED | Cooling: | HEAT PUMP/CONV/V | | Exterior Wall/Cover: | PLY/HARDBOARD T-111 | Floor Covering: | CARPET/VINYL 80-20 | | Floor Structure: | SLAB ON GRADE | Foundation: | SLAB/CONCRETE | | Interior Finish: | DRYWALL PAINT | Plumbing Fixture Cnt: | 8 | | Roof Slope: | 6" IN 12" | Roof Structure/Cover: | CJ ASPHALT |
|
| | Type | Description | Class CD | Sub Class CD | Year Built | Area |
| | BAS | BASE/MAIN FLOOR | 3 | 0 | 1977 | 1288.0 |
| | DGR | DETACHED GARAGE | 3 | 0 | 1977 | 704.0 |
| | OWP | OPEN WOOD PORCH W/STEPS | 3 | 0 | 1977 | 200.0 |
| | OP3 | OPEN PORCH W/ROOF | 3 | 0 | 1977 | 72.0 |
Sketch
Property Image
Land
| 1 | 16 | AC (00.51-01.00) | 0.6600 | 28749.60 | 0.00 | 0.00 | 1.00 | $200,000 | $0 |
Roll Value History
| 2026 | N/A | N/A | N/A | N/A | N/A |
| 2025 | $221,400 | $200,000 | $0 | $421,400 | $421,400 |
| 2024 | $224,058 | $190,000 | $0 | $414,058 | $414,058 |
| 2023 | $226,718 | $190,000 | $0 | $416,718 | $416,718 |
| 2022 | $205,305 | $160,000 | $0 | $365,305 | $365,305 |
| 2021 | $180,615 | $125,000 | $0 | $305,615 | $305,615 |
| 2020 | $175,697 | $110,000 | $0 | $285,697 | $285,697 |
| 2019 | $113,522 | $150,000 | $0 | $263,522 | $263,522 |
| 2018 | $113,866 | $150,000 | $0 | $263,866 | $263,866 |
| 2017 | $114,556 | $75,000 | $0 | $189,556 | $189,556 |
| 2016 | $94,111 | $75,000 | $0 | $169,111 | $169,111 |
| 2015 | $95,495 | $75,000 | $0 | $170,495 | $170,495 |
| 2014 | $96,878 | $72,250 | $0 | $169,128 | $169,128 |
| 2013 | $98,262 | $72,250 | $0 | $170,512 | $170,512 |
| 2012 | $99,647 | $72,250 | $0 | $171,897 | $171,897 |
| 2011 | $101,030 | $85,000 | $0 | $186,030 | $186,030 |
| 2010 | $115,956 | $85,000 | $0 | $200,956 | $200,956 |
| 2009 | $119,408 | $100,000 | $0 | $219,408 | $219,408 |
| 2008 | $121,206 | $104,000 | $0 | $225,206 | $225,206 |
| 2007 | $122,999 | $104,000 | $0 | $226,999 | $226,999 |
Deed and Sales History
| 1 | 03/21/2025 | QCD | Quit Claim Deed | FRISTED, STEVEN L | FRISTED, STEVEN L | | | $0.00 | 62900 | 4583569 |
| 2 | 03/04/2023 | QCD | Quit Claim Deed | LEFAVE, NICOLE M | FRISTED, STEVEN L | | | $0.00 | 56157 | 4557928 |
| 3 | 07/30/2019 | WD | Warranty Deed | KOETJE JR, GORDON H | FRISTED, STEVEN LEE | | | $325,000.00 | 39652 | 4468397 |
| 4 | 08/29/2018 | QCD | Quit Claim Deed | BOND JR, THOMAS H | KOETJE JR, GORDON H | | | $0.00 | 35728 | 4451004 |
| 5 | 08/05/2014 | WD | Warranty Deed | SECRETARY OF HOUSING AND URBAN DEVELOPMENT | KOETJE JR, GORDON H | | | $96,000.00 | 16388 | 4363877 |
| 6 | 06/10/2013 | WD | Warranty Deed | WELLS FARGO BANK NA | SECRETARY OF HOUSING AND URBAN DEVELOPMENT | | | $242,474.00 | 15025 | 4358314 |
| 7 | 04/25/2013 | TRUSTEED | Trustee's Deed | ANGSTROM, MICHAEL T | WELLS FARGO BANK NA | | | $242,474.00 | 11131 | 4338624 |
| 8 | 07/28/2003 | WD | Warranty Deed | DELAP, JOHN H | ANGSTROM, MICHAEL T | | | $143,400.00 | 33308 | 4069056 |
| 9 | 01/01/1992 | WD | Warranty Deed | RASMUSSEN, ERIC L | DELAP, JOHN H | | | $86,500.00 | 20245 | 92001066 |
| 10 | 03/01/1982 | WD | Warranty Deed | ALCORN, FRED E | RASMUSSEN, ERIC L | | | $58,000.00 | 20723 | 394643 |
| 11 | 06/01/1978 | OTHER | Other - Misc. Documents | Unknown | ALCORN, FRED E | | | $43,900.00 | 82901 | 0 |
Payout Agreement
| No payout information available.. |