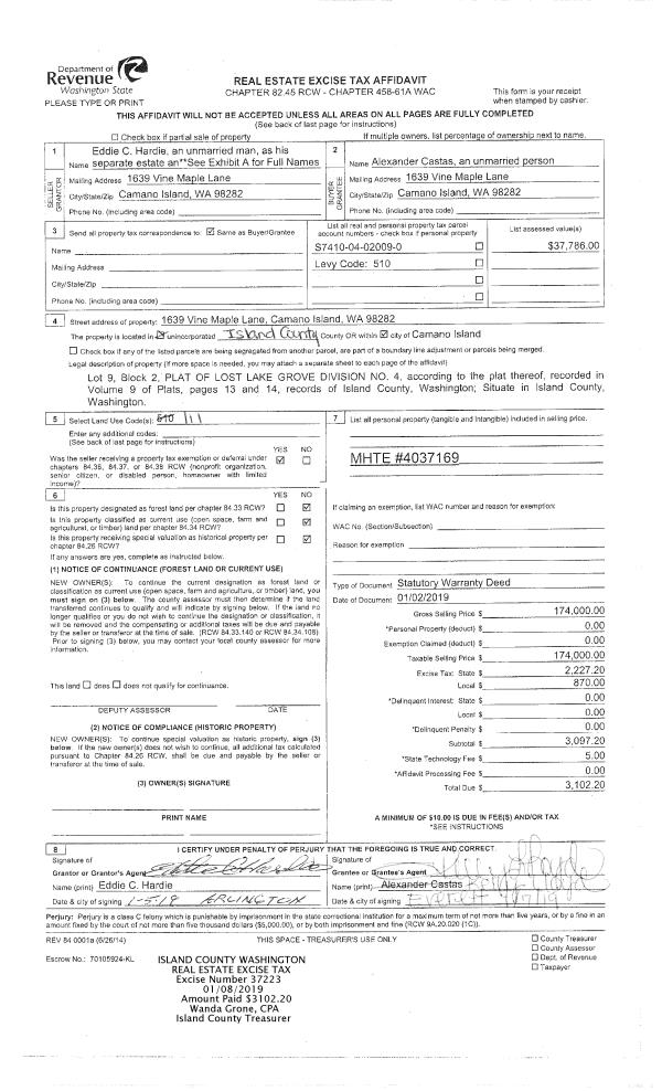
Property
Account |
| Property ID: | 311585 | Abbreviated Legal Description: | LOST LK GRV 4 LOT 9 BLK 2 |
| Geographic ID: | S7410-04-02009-0 | Agent Code: | |
| Type: | Real | | |
| Tax Area: | 510 - APPRAISER-Stan/Cam Schl Dist, improved & 1 acre or less | Land Use Code | 11 |
| Open Space: | N | DFL | N |
| Historic Property: | N | Remodel Property: | N |
| Multi-Family Redevelopment: | N | | |
| Township: | | Section: | |
| Range: | |
Location |
| Address: | 1639 VINE MAPLE LN CAMANO ISLAND, WA 98282 | Mapsco: | |
| Neighborhood: | Cycle 5 | Map ID: | 511 |
| Neighborhood CD: | 5 |
Owner |
| Name: | CASTAS, ALEXANDER | Owner ID: | 288659 |
| Mailing Address: | 1639 VINE MAPLE LN CAMANO ISLAND, WA 98282 | % Ownership: | 100.0000000000% |
| | | Exemptions: | |
Taxes and Assessment Details
Values
| (+) Improvement Homesite Value: | + | $0 | |
| (+) Improvement Non-Homesite Value: | + | $20,126 | |
| (+) Land Homesite Value: | + | $0 | |
| (+) Land Non-Homesite Value: | + | $250,000 | |
| (+) Curr Use (HS): | + | $0 | $0 |
| (+) Curr Use (NHS): | + | $0 | $0 |
| | | -------------------------- | |
| (=) Market Value: | = | $270,126 | |
| (–) Productivity Loss: | – | $0 | |
| | | -------------------------- | |
| (=) Subtotal: | = | $270,126 | |
| (+) Senior Appraised Value: | + | $0 | |
| (+) Non-Senior Appraised Value: | + | $270,126 | |
| | | -------------------------- | |
| (=) Total Appraised Value: | = | $270,126 | |
| (–) Senior Exemption Loss: | – | $0 | |
| (–) Exemption Loss: | – | $0 | |
| | | -------------------------- | |
| (=) Taxable Value: | = | $270,126 | |
Taxing Jurisdiction
| Owner: | CASTAS, ALEXANDER | | |
| % Ownership: | 100.0000000000% | | |
| Total Value: | $270,126 | | |
| Tax Area: | 510 - APPRAISER-Stan/Cam Schl Dist, improved & 1 acre or less |
| CF | Conservation Futures | 0.0313996660 | $270,126 | $270,126 | $8.48 | | |
| EMS1 | Fire & Rescue Dist #1 Camano GEN (EMS) | 0.4998471806 | $270,126 | $270,126 | $135.02 | | |
| FIRE1 | Fire & Rescue Dist #1 Camano GEN | 1.2496603404 | $270,126 | $270,126 | $337.57 | | |
| FIRE1BOND | Fire & Rescue Dist #1 Camano BOND | 0.1630371212 | $270,126 | $270,126 | $44.04 | | |
| CE | County Current Expense | 0.3674210519 | $270,126 | $270,126 | $99.25 | | |
| CR | County Roads | 0.4614296361 | $270,126 | $270,126 | $124.64 | | |
| LIB | Library Sno-Isle GEN | 0.3039084203 | $270,126 | $270,126 | $82.09 | | |
| SCH205_401 | School 205-401 Enrichment | 1.3697998934 | $270,126 | $270,126 | $370.02 | | |
| SCH205BOND | School 205-401 BOND | 0.9354199323 | $270,126 | $270,126 | $252.68 | | |
| ST | State School | 1.4761226122 | $270,126 | $270,126 | $398.74 | | |
| ST2 | State School Part 2 | 0.7953803475 | $270,126 | $270,126 | $214.85 | | |
| | Total Tax Rate: | 7.6534262019 | | | | | |
| | | | | Taxes w/Current Exemptions: | $2,067.38 | | |
| | | | | Taxes w/o Exemptions: | $2,067.38 | | |
Improvement / Building
| Improvement #1: | MANUFACTURED HOME | State Code: | Y | 924.0 sqft | Value: | $20,126 |
| Bathrooms: | 1 | Bedrooms: | 2 | | Ceiling: | PLASTER PAINTED | Cooling: | EVAP NO DUCT | | Exterior Wall/Cover: | VINYL | Floor Covering: | VINYL 100% | | Floor Structure: | SLAB ON GRADE | Foundation: | SLAB | | Heating: | FHA ELECTRIC | Interior Finish: | PLASTER | | Plumbing Fixture Cnt: | 1 | Roof Slope: | FLAT | | Roof Structure/Cover: | CJ ALUMINIUM HEAVY |   |   |
|
| | Type | Description | Class CD | Sub Class CD | Year Built | Area |
| | BAS | BASE/MAIN FLOOR | 3 | 0 | 1978 | 924.0 |
| | OWR | OPEN WOOD PORCH W/STEPS/ROOF | 3 | 0 | 1978 | 96.0 |
| | CPD | OPEN CARPORT DIRT FLOOR | 3 | 0 | 1978 | 144.0 |
| | UTY | STORAGE/UTILITY | 3 | 0 | 1978 | 160.0 |
| | ENP | ENCLOSED PORCH | 3 | 0 | 1978 | 80.0 |
Sketch
Property Image
Land
| 1 | 15 | SQ (12001-21780) | 0.0000 | 0.00 | 0.00 | 0.00 | 1.00 | $250,000 | $0 |
Roll Value History
| 2026 | N/A | N/A | N/A | N/A | N/A |
| 2025 | $20,126 | $250,000 | $0 | $270,126 | $270,126 |
| 2024 | $20,894 | $240,000 | $0 | $260,894 | $260,894 |
| 2023 | $21,661 | $240,000 | $0 | $261,661 | $261,661 |
| 2022 | $20,687 | $210,000 | $0 | $230,687 | $230,687 |
| 2021 | $18,550 | $170,000 | $0 | $188,550 | $188,550 |
| 2020 | $18,739 | $130,000 | $0 | $148,739 | $148,739 |
| 2019 | $16,336 | $150,000 | $0 | $166,336 | $166,336 |
| 2018 | $7,314 | $125,000 | $0 | $132,314 | $132,314 |
| 2017 | $7,786 | $90,000 | $0 | $97,786 | $37,786 |
| 2016 | $8,258 | $75,000 | $0 | $83,258 | $83,258 |
| 2015 | $12,136 | $52,000 | $0 | $64,136 | $64,136 |
| 2014 | $12,545 | $52,000 | $0 | $64,545 | $64,545 |
| 2013 | $13,158 | $52,000 | $0 | $65,158 | $65,158 |
| 2012 | $13,567 | $52,000 | $0 | $65,567 | $65,567 |
| 2011 | $13,975 | $65,000 | $0 | $78,975 | $78,975 |
| 2010 | $12,454 | $84,000 | $0 | $96,454 | $96,454 |
| 2009 | $12,873 | $90,000 | $0 | $102,873 | $102,873 |
| 2008 | $12,900 | $90,000 | $0 | $102,900 | $102,900 |
| 2007 | $13,140 | $90,000 | $0 | $103,140 | $103,140 |
Deed and Sales History
| 1 | 01/02/2019 | WD | Warranty Deed | HARDIE, EDDIE C | CASTAS, ALEXANDER | | | $174,000.00 | 37223 | 4457585 |
| 2 | 07/15/2015 | QCD | Quit Claim Deed | SECRETARY OF HOUSING & URBAN DEVELOPMENT | HARDIE, EDDIE C | | | $0.00 | 20613 | 4382745 |
| 3 | 02/03/2014 | WD | Warranty Deed | US BANK NATIONAL ASSOCIATION | SECRETARY OF HOUSING & URBAN DEVELOPMENT | | | $62,691.00 | 15646 | 4360884 |
| 4 | 08/13/2013 | TRUSTEED | Trustee's Deed | BODE, TINA | US BANK NATIONAL ASSOCIATION | | | $26,000.00 | 12389 | 4346325 |
| 5 | 09/20/2002 | WD | Warranty Deed | NICHOLS, JAMES M | BODE, TINA | | | $68,000.00 | 23885 | 4032803 |
| 6 | 05/01/1993 | OTHER | Other - Misc. Documents | MITCHELL, JAMES | NICHOLS, JAMES M | | | $11,000.00 | 31631 | 0 |
| 7 | 05/01/1993 | WD | Warranty Deed | NICHOLS, JAMES M | NICHOLS, JAMES M | | | $23,520.00 | 31632 | 93008456 |
| 8 | 06/01/1979 | CD | DNU - Correction Deed | MITCHELL, JOHN & | MITCHELL, JAMES | | | $0.00 | 92806 | 353695 |
Payout Agreement
| No payout information available.. |