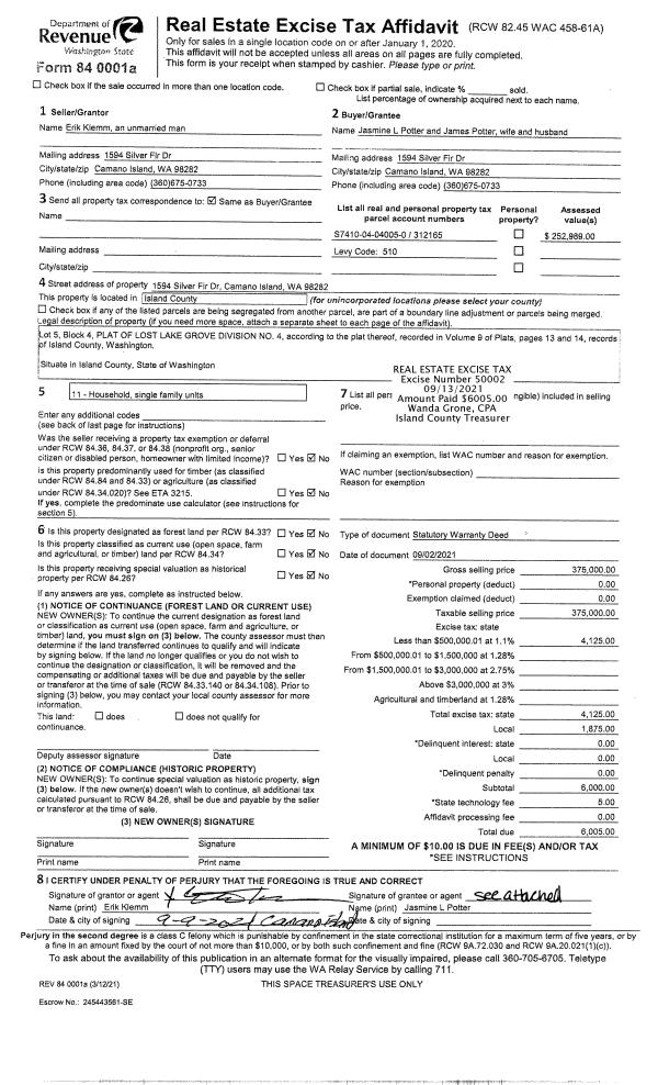
| 1 | 09/13/2021 | WD | Warranty Deed | KLEMM, WILLIAM PAUL | POTTER, JASIMINE L | | | $375,000.00 | 50002 | 4528945 |
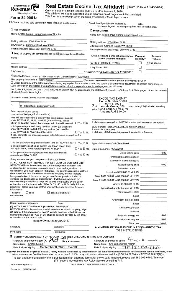
| 2 | 09/02/2021 | QCD | Quit Claim Deed | KLEMM, ERIK | KLEMM, WILLIAM PAUL | | | $0.00 | 50001 | 4528944 |
| 3 | 10/21/2015 | WD | Warranty Deed | POWERS MARTIN E | KLEMM, ERIK | | | $167,000.00 | 21968 | 4388649 |
| 4 | 09/20/2010 | WD | Warranty Deed | SLOCUM JTWROS, SCOTT E | POWERS MARTIN E | | | $159,500.00 | 2433 | 4281960 |
| 5 | 09/03/2010 | QCD | Quit Claim Deed | FAYMAN LE, CARYL B | SLOCUM JTWROS, SCOTT E | | | $0.00 | 2432 | 4281959 |
| 6 | 05/16/2005 | QCD | Quit Claim Deed | FAYMAN, CARYL B | FAYMAN LE, CARYL B | | | $0.00 | 54236 | 4145728 |
| 7 | 04/11/2005 | QCD | Quit Claim Deed | FAYMAN, CARYL B | FAYMAN, CARYL B | | | $0.00 | 51493 | 4130863 |
| 8 | 02/12/2005 | WD | Warranty Deed | CALIFORNIA UNION PROPERTIES, | FAYMAN, CARYL B | | | $130,500.00 | 50726 | 4126637 |
| 9 | 04/15/2004 | TRUSTEED | Trustee's Deed | URBAN DEVELOPMENT, DEPARTMENT | CALIFORNIA UNION PROPERTIES, | | | $87,500.00 | 41557 | 4097663 |
| 10 | 10/01/2003 | TRUSTEED | Trustee's Deed | WELLS FARGO HOME MORTGAGE INC, | URBAN DEVELOPMENT, DEPARTMENT | | | $0.00 | 34469 | 4077694 |
| 11 | 09/15/2003 | TRUSTEED | Trustee's Deed | WARD, AARON M | WELLS FARGO HOME MORTGAGE INC, | | | $156,334.00 | 34217 | 4075726 |
| 12 | 08/17/2000 | WD | Warranty Deed | FORBES, JACK M | WARD, AARON M | | | $139,500.00 | 3187 | 20014935 |
| 13 | 06/01/1993 | OTHER | Other - Misc. Documents | FORBES, JACK M | FORBES, JACK M | | | $45,000.00 | 11111111 | 0 |
| 14 | 06/01/1993 | WD | Warranty Deed | PLATTER, DAVID & | FORBES, JACK M | | | $16,950.00 | 32251 | 93011675 |
| 15 | 05/01/1993 | WD | Warranty Deed | LAMBERTSON, ROBERT F | PLATTER, DAVID & | | | $2,500.00 | 31651 | 93008543 |
| 16 | 05/01/1993 | QCD | Quit Claim Deed | PORTER, ROBERT R | LAMBERTSON, ROBERT F | | | $0.00 | 31730 | 93008977 |
| 17 | 01/01/1900 | OTHER | Other - Misc. Documents | Unknown | PORTER, ROBERT R | | | $0.00 | 0 | 0 |