Property
Account |
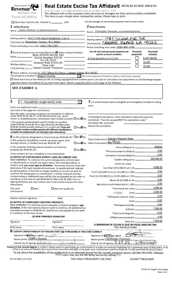
| Property ID: | 312343 | Abbreviated Legal Description: | LOST LK GRV 4 LOT 16 BLK 5 |
| Geographic ID: | S7410-04-05016-0 | Agent Code: | |
| Type: | Real | | |
| Tax Area: | 510 - APPRAISER-Stan/Cam Schl Dist, improved & 1 acre or less | Land Use Code | 11 |
| Open Space: | N | DFL | N |
| Historic Property: | N | Remodel Property: | N |
| Multi-Family Redevelopment: | N | | |
| Township: | | Section: | |
| Range: | |
Location |
| Address: | 1537 SILVER FIR DR CAMANO ISLAND, WA 98282 | Mapsco: | |
| Neighborhood: | Cycle 5 | Map ID: | 505 |
| Neighborhood CD: | 5 |
Owner |
| Name: | DINSMORE, CHRISTOPHER | Owner ID: | 316619 |
| Mailing Address: | 1537 SILVER FIR DR CAMANO ISLAND, WA 98282 | % Ownership: | 100.0000000000% |
| | | Exemptions: | |
Taxes and Assessment Details
Values
| (+) Improvement Homesite Value: | + | $0 | |
| (+) Improvement Non-Homesite Value: | + | $214,270 | |
| (+) Land Homesite Value: | + | $0 | |
| (+) Land Non-Homesite Value: | + | $290,000 | |
| (+) Curr Use (HS): | + | $0 | $0 |
| (+) Curr Use (NHS): | + | $0 | $0 |
| | | -------------------------- | |
| (=) Market Value: | = | $504,270 | |
| (–) Productivity Loss: | – | $0 | |
| | | -------------------------- | |
| (=) Subtotal: | = | $504,270 | |
| (+) Senior Appraised Value: | + | $0 | |
| (+) Non-Senior Appraised Value: | + | $504,270 | |
| | | -------------------------- | |
| (=) Total Appraised Value: | = | $504,270 | |
| (–) Senior Exemption Loss: | – | $0 | |
| (–) Exemption Loss: | – | $0 | |
| | | -------------------------- | |
| (=) Taxable Value: | = | $504,270 | |
Taxing Jurisdiction
| Owner: | DINSMORE, CHRISTOPHER | | |
| % Ownership: | 100.0000000000% | | |
| Total Value: | $504,270 | | |
| Tax Area: | 510 - APPRAISER-Stan/Cam Schl Dist, improved & 1 acre or less |
| CF | Conservation Futures | 0.0313996660 | $504,270 | $504,270 | $15.83 | | |
| EMS1 | Fire & Rescue Dist #1 Camano GEN (EMS) | 0.4998471806 | $504,270 | $504,270 | $252.06 | | |
| FIRE1 | Fire & Rescue Dist #1 Camano GEN | 1.2496603404 | $504,270 | $504,270 | $630.17 | | |
| FIRE1BOND | Fire & Rescue Dist #1 Camano BOND | 0.1630371212 | $504,270 | $504,270 | $82.21 | | |
| CE | County Current Expense | 0.3674210519 | $504,270 | $504,270 | $185.28 | | |
| CR | County Roads | 0.4614296361 | $504,270 | $504,270 | $232.69 | | |
| LIB | Library Sno-Isle GEN | 0.3039084203 | $504,270 | $504,270 | $153.25 | | |
| SCH205_401 | School 205-401 Enrichment | 1.3697998934 | $504,270 | $504,270 | $690.75 | | |
| SCH205BOND | School 205-401 BOND | 0.9354199323 | $504,270 | $504,270 | $471.70 | | |
| ST | State School | 1.4761226122 | $504,270 | $504,270 | $744.36 | | |
| ST2 | State School Part 2 | 0.7953803475 | $504,270 | $504,270 | $401.09 | | |
| | Total Tax Rate: | 7.6534262019 | | | | | |
| | | | | Taxes w/Current Exemptions: | $3,859.39 | | |
| | | | | Taxes w/o Exemptions: | $3,859.39 | | |
Improvement / Building
| Improvement #1: | RESIDENTIAL | State Code: | Y | 1610.0 sqft | Value: | $214,270 |
| Bathrooms: | 2 | Bedrooms: | 2 | | Ceiling: | DRYWALL PAINTED | Exterior Wall/Cover: | VINYL | | Floor Covering: | CARPET/VINYL 80-20 | Floor Structure: | WOOD W/SUBFLOOR | | Foundation: | CONCRETE | Heating: | WALL HEAT ELECTRIC | | Interior Finish: | DRYWALL PAINT | Plumbing Fixture Cnt: | 9 | | Roof Slope: | 6" IN 12" | Roof Structure/Cover: | CJ ASPHALT |
|
| | Type | Description | Class CD | Sub Class CD | Year Built | Area |
| | BAS | BASE/MAIN FLOOR | 3 | 0 | 1999 | 575.0 |
| | AGR | ATTACHED GARAGE | 3 | 0 | 1999 | 460.0 |
| | BAW | BALCONY WOOD RAIL | 3 | 0 | 1999 | 60.0 |
| | DWN | DOWNSTAIRS LIVING AREA | 3 | 0 | 1999 | 1035.0 |
| | OWP | OPEN WOOD PORCH W/STEPS | 3 | 0 | 1999 | 48.0 |
Sketch
Property Image
Land
| 1 | 15 | SQ (12001-21780) | 0.0000 | 0.00 | 0.00 | 0.00 | 1.00 | $290,000 | $0 |
Roll Value History
| 2026 | N/A | N/A | N/A | N/A | N/A |
| 2025 | $214,270 | $290,000 | $0 | $504,270 | $504,270 |
| 2024 | $217,044 | $280,000 | $0 | $497,044 | $497,044 |
| 2023 | $219,816 | $270,000 | $0 | $489,816 | $489,816 |
| 2022 | $201,565 | $270,000 | $0 | $471,565 | $471,565 |
| 2021 | $173,087 | $170,000 | $0 | $343,087 | $343,087 |
| 2020 | $168,822 | $130,000 | $0 | $298,822 | $298,822 |
| 2019 | $122,280 | $150,000 | $0 | $272,280 | $272,280 |
| 2018 | $122,656 | $125,000 | $0 | $247,656 | $247,656 |
| 2017 | $123,409 | $90,000 | $0 | $213,409 | $213,409 |
| 2016 | $124,915 | $75,000 | $0 | $199,915 | $199,915 |
| 2015 | $124,031 | $52,000 | $0 | $176,031 | $176,031 |
| 2014 | $125,526 | $52,000 | $0 | $177,526 | $177,526 |
| 2013 | $127,021 | $52,000 | $0 | $179,021 | $179,021 |
| 2012 | $128,514 | $52,000 | $0 | $180,514 | $180,514 |
| 2011 | $130,009 | $65,000 | $0 | $195,009 | $195,009 |
| 2010 | $133,757 | $90,000 | $0 | $223,757 | $223,757 |
| 2009 | $139,413 | $90,000 | $0 | $229,413 | $229,413 |
| 2008 | $140,960 | $115,000 | $0 | $255,960 | $255,960 |
| 2007 | $142,497 | $115,000 | $0 | $257,497 | $257,497 |
Deed and Sales History
| 1 | 05/27/2025 | WD | Warranty Deed | BASHAM, ANDREW | DINSMORE, CHRISTOPHER | | | $450,000.00 | 63578 | 4586276 |
| 2 | 08/26/2020 | WD | Warranty Deed | JOHNSON, MARK E | BASHAM, ANDREW | | | $313,000.00 | 44562 | 4495498 |
| 3 | 09/23/1999 | WD | Warranty Deed | D, B J | JOHNSON, MARK E | | | $122,288.00 | 94081 | 99022501 |
| 4 | 11/01/1996 | WD | Warranty Deed | GRAUMANN, R | D, B J | | | $18,500.00 | 64222 | 96020611 |
| 5 | 01/01/1900 | OTHER | Other - Misc. Documents | Unknown | GRAUMANN, R | | | $0.00 | 0 | 0 |
Payout Agreement
| No payout information available.. |