Property
Account |
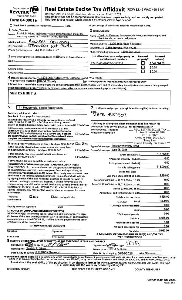
| Property ID: | 312735 | Abbreviated Legal Description: | LOST LK GRV 5 LOTS 7 & 8 BLK 1 COMB 4/91 |
| Geographic ID: | S7410-05-01007-0 | Agent Code: | |
| Type: | Real | | |
| Tax Area: | 510 - APPRAISER-Stan/Cam Schl Dist, improved & 1 acre or less | Land Use Code | 11 |
| Open Space: | N | DFL | N |
| Historic Property: | N | Remodel Property: | N |
| Multi-Family Redevelopment: | N | | |
| Township: | | Section: | |
| Range: | |
Location |
| Address: | 1676 OAK RIDGE DR CAMANO ISLAND, WA 98282 | Mapsco: | |
| Neighborhood: | Cycle 5 | Map ID: | 511 |
| Neighborhood CD: | 5 |
Owner |
| Name: | KORN, DAVID A | Owner ID: | 317161 |
| Mailing Address: | MARYGERTRUDE KORN KONI KOPELS 11226 26TH PL SE LAKE STEVENS, WA 98258 | % Ownership: | 100.0000000000% |
| | | Exemptions: | |
Taxes and Assessment Details
Values
| (+) Improvement Homesite Value: | + | $92,664 | |
| (+) Improvement Non-Homesite Value: | + | $0 | |
| (+) Land Homesite Value: | + | $250,000 | |
| (+) Land Non-Homesite Value: | + | $0 | |
| (+) Curr Use (HS): | + | $0 | $0 |
| (+) Curr Use (NHS): | + | $0 | $0 |
| | | -------------------------- | |
| (=) Market Value: | = | $342,664 | |
| (–) Productivity Loss: | – | $0 | |
| | | -------------------------- | |
| (=) Subtotal: | = | $342,664 | |
| (+) Senior Appraised Value: | + | $0 | |
| (+) Non-Senior Appraised Value: | + | $342,664 | |
| | | -------------------------- | |
| (=) Total Appraised Value: | = | $342,664 | |
| (–) Senior Exemption Loss: | – | $0 | |
| (–) Exemption Loss: | – | $0 | |
| | | -------------------------- | |
| (=) Taxable Value: | = | $342,664 | |
Taxing Jurisdiction
| Owner: | KORN, DAVID A | | |
| % Ownership: | 100.0000000000% | | |
| Total Value: | $342,664 | | |
| Tax Area: | 510 - APPRAISER-Stan/Cam Schl Dist, improved & 1 acre or less |
| CF | Conservation Futures | 0.0313996660 | $342,664 | $342,664 | $10.76 | | |
| EMS1 | Fire & Rescue Dist #1 Camano GEN (EMS) | 0.4998471806 | $342,664 | $342,664 | $171.28 | | |
| FIRE1 | Fire & Rescue Dist #1 Camano GEN | 1.2496603404 | $342,664 | $342,664 | $428.21 | | |
| FIRE1BOND | Fire & Rescue Dist #1 Camano BOND | 0.1630371212 | $342,664 | $342,664 | $55.87 | | |
| CE | County Current Expense | 0.3674210519 | $342,664 | $342,664 | $125.90 | | |
| CR | County Roads | 0.4614296361 | $342,664 | $342,664 | $158.12 | | |
| LIB | Library Sno-Isle GEN | 0.3039084203 | $342,664 | $342,664 | $104.14 | | |
| SCH205_401 | School 205-401 Enrichment | 1.3697998934 | $342,664 | $342,664 | $469.38 | | |
| SCH205BOND | School 205-401 BOND | 0.9354199323 | $342,664 | $342,664 | $320.53 | | |
| ST | State School | 1.4761226122 | $342,664 | $342,664 | $505.81 | | |
| ST2 | State School Part 2 | 0.7953803475 | $342,664 | $342,664 | $272.55 | | |
| | Total Tax Rate: | 7.6534262019 | | | | | |
| | | | | Taxes w/Current Exemptions: | $2,622.55 | | |
| | | | | Taxes w/o Exemptions: | $2,622.55 | | |
Improvement / Building
| Improvement #1: | MANUFACTURED HOME | State Code: | Y | 1512.0 sqft | Value: | $92,664 |
| Bathrooms: | 0 | Bedrooms: | 0 | | Ceiling: | PLASTER PAINTED | Cooling: | EVAP NO DUCT | | Exterior Wall/Cover: | VINYL | Floor Covering: | CARPET 100% | | Floor Structure: | SLAB ON GRADE | Foundation: | SLAB | | Heating: | FHA ELECTRIC | Interior Finish: | PLASTER | | Plumbing Fixture Cnt: | 1 | Roof Slope: | FLAT | | Roof Structure/Cover: | CJ ASPHALT |   |   |
|
| | Type | Description | Class CD | Sub Class CD | Year Built | Area |
| | BAS | BASE/MAIN FLOOR | 4 | 0 | 1991 | 1512.0 |
| | OWP | OPEN WOOD PORCH W/STEPS | 4 | 0 | 1991 | 480.0 |
| | OWP | OPEN WOOD PORCH W/STEPS | 4 | 0 | 1991 | 336.0 |
Sketch
Property Image
Land
| 1 | 17 | AC (01.01-02.00) | 0.0000 | 0.00 | 0.00 | 0.00 | 1.00 | $250,000 | $0 |
Roll Value History
| 2026 | N/A | N/A | N/A | N/A | N/A |
| 2025 | $92,664 | $250,000 | $0 | $342,664 | $342,664 |
| 2024 | $96,034 | $240,000 | $0 | $336,034 | $336,034 |
| 2023 | $87,901 | $240,000 | $0 | $327,901 | $327,901 |
| 2022 | $82,248 | $210,000 | $0 | $292,248 | $292,248 |
| 2021 | $60,864 | $170,000 | $0 | $230,864 | $230,864 |
| 2020 | $61,056 | $130,000 | $0 | $191,056 | $191,056 |
| 2019 | $49,641 | $150,000 | $0 | $199,641 | $21,850 |
| 2018 | $51,193 | $125,000 | $0 | $176,193 | $21,850 |
| 2017 | $52,744 | $90,000 | $0 | $142,744 | $21,850 |
| 2016 | $54,295 | $75,000 | $0 | $129,295 | $0 |
| 2015 | $58,315 | $52,000 | $0 | $110,315 | $0 |
| 2014 | $59,753 | $52,000 | $0 | $111,753 | $0 |
| 2013 | $61,190 | $52,000 | $0 | $113,190 | $0 |
| 2012 | $62,628 | $52,000 | $0 | $114,628 | $0 |
| 2011 | $64,066 | $65,000 | $0 | $129,066 | $0 |
| 2010 | $58,922 | $86,500 | $0 | $145,422 | $0 |
| 2009 | $60,889 | $130,000 | $0 | $190,889 | $0 |
| 2008 | $62,854 | $130,000 | $0 | $192,854 | $42,188 |
| 2007 | $63,974 | $130,000 | $0 | $193,974 | $42,188 |
Deed and Sales History
| 1 | 06/26/2025 | WD | Warranty Deed | OLSEN, PATRICK P | KORN, DAVID A | | | $318,000.00 | 63986 | 4587593 |
| 2 | 10/21/2004 | OTHER | Other - Misc. Documents | OLSEN, PATRICK P | OLSEN, PATRICK P | | | $0.00 | 70554 | 0 |
| 3 | 04/01/1991 | OTHER | Other - Misc. Documents | OLSEN, PATRICK / | OLSEN, PATRICK P | | | $0.00 | 64137 | 91004132 |
| 4 | 01/01/1991 | OTHER | Other - Misc. Documents | OLSEN, PATRICK P | OLSEN, PATRICK / | | | $40,000.00 | 11111111 | 0 |
| 5 | 03/01/1990 | WD | Warranty Deed | PHILLIPS, RODNEY E | OLSEN, PATRICK P | | | $4,850.00 | 1807 | 90005784 |
| 6 | 01/01/1900 | OTHER | Other - Misc. Documents | Unknown | PHILLIPS, RODNEY E | | | $0.00 | 0 | 0 |
Payout Agreement
| No payout information available.. |