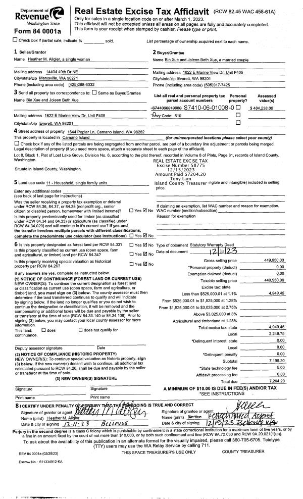
Property
Account |
| Property ID: | 313280 | Abbreviated Legal Description: | LOST LK GRV 6 LOT 8 BLK 1 |
| Geographic ID: | S7410-06-01008-0 | Agent Code: | |
| Type: | Real | | |
| Tax Area: | 510 - APPRAISER-Stan/Cam Schl Dist, improved & 1 acre or less | Land Use Code | 11 |
| Open Space: | N | DFL | N |
| Historic Property: | N | Remodel Property: | N |
| Multi-Family Redevelopment: | N | | |
| Township: | | Section: | |
| Range: | |
Location |
| Address: | 1644 POPLAR LN CAMANO ISLAND, WA 98282 | Mapsco: | |
| Neighborhood: | Cycle 5 | Map ID: | 511 |
| Neighborhood CD: | 5 |
Owner |
| Name: | XUE, BIN | Owner ID: | 310939 |
| Mailing Address: | JOLEEN BETH XUE 1644 POPLAR LN CAMANO ISLAND, WA 98282 | % Ownership: | 100.0000000000% |
| | | Exemptions: | |
Taxes and Assessment Details
Values
| (+) Improvement Homesite Value: | + | $0 | |
| (+) Improvement Non-Homesite Value: | + | $232,348 | |
| (+) Land Homesite Value: | + | $0 | |
| (+) Land Non-Homesite Value: | + | $250,000 | |
| (+) Curr Use (HS): | + | $0 | $0 |
| (+) Curr Use (NHS): | + | $0 | $0 |
| | | -------------------------- | |
| (=) Market Value: | = | $482,348 | |
| (–) Productivity Loss: | – | $0 | |
| | | -------------------------- | |
| (=) Subtotal: | = | $482,348 | |
| (+) Senior Appraised Value: | + | $0 | |
| (+) Non-Senior Appraised Value: | + | $482,348 | |
| | | -------------------------- | |
| (=) Total Appraised Value: | = | $482,348 | |
| (–) Senior Exemption Loss: | – | $0 | |
| (–) Exemption Loss: | – | $0 | |
| | | -------------------------- | |
| (=) Taxable Value: | = | $482,348 | |
Taxing Jurisdiction
| Owner: | XUE, BIN | | |
| % Ownership: | 100.0000000000% | | |
| Total Value: | $482,348 | | |
| Tax Area: | 510 - APPRAISER-Stan/Cam Schl Dist, improved & 1 acre or less |
| CF | Conservation Futures | 0.0313996660 | $482,348 | $482,348 | $15.15 | | |
| EMS1 | Fire & Rescue Dist #1 Camano GEN (EMS) | 0.4998471806 | $482,348 | $482,348 | $241.10 | | |
| FIRE1 | Fire & Rescue Dist #1 Camano GEN | 1.2496603404 | $482,348 | $482,348 | $602.77 | | |
| FIRE1BOND | Fire & Rescue Dist #1 Camano BOND | 0.1630371212 | $482,348 | $482,348 | $78.64 | | |
| CE | County Current Expense | 0.3674210519 | $482,348 | $482,348 | $177.22 | | |
| CR | County Roads | 0.4614296361 | $482,348 | $482,348 | $222.57 | | |
| LIB | Library Sno-Isle GEN | 0.3039084203 | $482,348 | $482,348 | $146.59 | | |
| SCH205_401 | School 205-401 Enrichment | 1.3697998934 | $482,348 | $482,348 | $660.72 | | |
| SCH205BOND | School 205-401 BOND | 0.9354199323 | $482,348 | $482,348 | $451.20 | | |
| ST | State School | 1.4761226122 | $482,348 | $482,348 | $712.00 | | |
| ST2 | State School Part 2 | 0.7953803475 | $482,348 | $482,348 | $383.65 | | |
| | Total Tax Rate: | 7.6534262019 | | | | | |
| | | | | Taxes w/Current Exemptions: | $3,691.61 | | |
| | | | | Taxes w/o Exemptions: | $3,691.61 | | |
Improvement / Building
| Improvement #1: | RESIDENTIAL | State Code: | Y | 1391.0 sqft | Value: | $232,348 |
| Bathrooms: | 2 | Bedrooms: | 2 | | Ceiling: | DRYWALL PAINTED | Cooling: | HEAT PUMP/CONV/V | | Exterior Wall/Cover: | PLY/HARDBOARD T-111 | Floor Covering: | VINYL 100% | | Floor Structure: | WOOD W/SUBFLOOR | Foundation: | CONCRETE | | Interior Finish: | DRYWALL PAINT | Plumbing Fixture Cnt: | 9 | | Roof Slope: | 4" IN 12" | Roof Structure/Cover: | CJ ASPHALT |
|
| | Type | Description | Class CD | Sub Class CD | Year Built | Area |
| | BAS | BASE/MAIN FLOOR | 3 | 0 | 1987 | 1391.0 |
| | OP1 | OPEN PORCH SLAB | 3 | 0 | 1987 | 160.0 |
| | AGR | ATTACHED GARAGE | 3 | 0 | 1987 | 420.0 |
| | OWP | OPEN WOOD PORCH W/STEPS | 3 | 0 | 1987 | 44.0 |
| | OWR | OPEN WOOD PORCH W/STEPS/ROOF | 3 | 0 | 1987 | 44.0 |
Sketch
Property Image
Land
| 1 | 15 | SQ (12001-21780) | 0.0000 | 0.00 | 0.00 | 0.00 | 1.00 | $250,000 | $0 |
Roll Value History
| 2026 | N/A | N/A | N/A | N/A | N/A |
| 2025 | $232,348 | $250,000 | $0 | $482,348 | $482,348 |
| 2024 | $235,280 | $240,000 | $0 | $475,280 | $475,280 |
| 2023 | $244,238 | $240,000 | $0 | $484,238 | $484,238 |
| 2022 | $223,951 | $210,000 | $0 | $433,951 | $433,951 |
| 2021 | $192,321 | $170,000 | $0 | $362,321 | $362,321 |
| 2020 | $187,501 | $130,000 | $0 | $317,501 | $317,501 |
| 2019 | $134,498 | $150,000 | $0 | $284,498 | $284,498 |
| 2018 | $134,911 | $125,000 | $0 | $259,911 | $259,911 |
| 2017 | $135,739 | $90,000 | $0 | $225,739 | $225,739 |
| 2016 | $137,395 | $75,000 | $0 | $212,395 | $212,395 |
| 2015 | $125,981 | $52,000 | $0 | $177,981 | $177,981 |
| 2014 | $127,751 | $52,000 | $0 | $179,751 | $179,751 |
| 2013 | $129,524 | $52,000 | $0 | $181,524 | $181,524 |
| 2012 | $131,296 | $52,000 | $0 | $183,296 | $183,296 |
| 2011 | $133,067 | $65,000 | $0 | $198,067 | $198,067 |
| 2010 | $141,194 | $84,000 | $0 | $225,194 | $225,194 |
| 2009 | $147,460 | $90,000 | $0 | $237,460 | $237,460 |
| 2008 | $149,312 | $90,000 | $0 | $239,312 | $239,312 |
| 2007 | $151,159 | $90,000 | $0 | $241,159 | $241,159 |
Deed and Sales History
| 1 | 12/11/2023 | WD | Warranty Deed | ALLGIER, HEATHER M | XUE, BIN | | | $449,950.00 | 58775 | 4567712 |
| 2 | 11/19/2014 | WD | Warranty Deed | BOUND, ALEC | ALLGIER, HEATHER M | | | $179,000.00 | 17644 | 4368890 |
| 3 | 04/14/2004 | WD | Warranty Deed | GILBERT, JOAN A | BOUND, ALEC | | | $165,000.00 | 41571 | 4097676 |
| 4 | 03/01/1998 | QCD | Quit Claim Deed | GILBERT, BERTRAND | GILBERT, JOAN A | | | $0.00 | 80939 | 98005228 |
| 5 | 05/01/1983 | WD | Warranty Deed | PUGSLEY, GORDON | GILBERT, BERTRAND | | | $10,500.00 | 31415 | 410169 |
| 6 | 01/01/1900 | OTHER | Other - Misc. Documents | Unknown | PUGSLEY, GORDON | | | $0.00 | 0 | 0 |
Payout Agreement
| No payout information available.. |