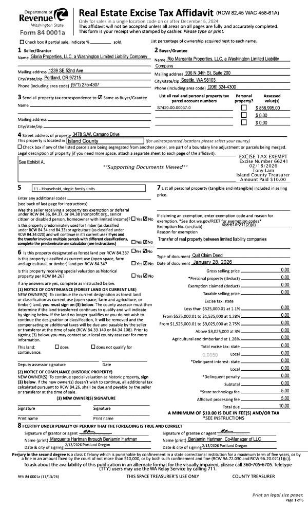
Property
Account |
| Property ID: | 314216 | Abbreviated Legal Description: | MABANA LOT 37 |
| Geographic ID: | S7420-00-00037-0 | Agent Code: | |
| Type: | Real | | |
| Tax Area: | 542 - APPRAISER-Stan/Cam Schl Dist, Special Dist, improved, greater than 1 acre | Land Use Code | 11 |
| Open Space: | N | DFL | N |
| Historic Property: | N | Remodel Property: | N |
| Multi-Family Redevelopment: | N | | |
| Township: | | Section: | |
| Range: | |
Location |
| Address: | 3478 SOUTH CAMANO DR CAMANO ISLAND, WA 98282 | Mapsco: | |
| Neighborhood: | 58RscamWF-South Cam | Map ID: | 863 |
| Neighborhood CD: | 58RscamWF |
Owner |
| Name: | GLORIA PROPERTIES, LLC | Owner ID: | 65881 |
| Mailing Address: | 1722 NE 97TH ST SEATTLE, WA 98115-2323 | % Ownership: | 100.0000000000% |
| | | Exemptions: | |
Taxes and Assessment Details
Values
| (+) Improvement Homesite Value: | + | $0 | |
| (+) Improvement Non-Homesite Value: | + | $108,995 | |
| (+) Land Homesite Value: | + | $0 | |
| (+) Land Non-Homesite Value: | + | $750,000 | |
| (+) Curr Use (HS): | + | $0 | $0 |
| (+) Curr Use (NHS): | + | $0 | $0 |
| | | -------------------------- | |
| (=) Market Value: | = | $858,995 | |
| (–) Productivity Loss: | – | $0 | |
| | | -------------------------- | |
| (=) Subtotal: | = | $858,995 | |
| (+) Senior Appraised Value: | + | $0 | |
| (+) Non-Senior Appraised Value: | + | $858,995 | |
| | | -------------------------- | |
| (=) Total Appraised Value: | = | $858,995 | |
| (–) Senior Exemption Loss: | – | $0 | |
| (–) Exemption Loss: | – | $0 | |
| | | -------------------------- | |
| (=) Taxable Value: | = | $858,995 | |
Taxing Jurisdiction
| Owner: | GLORIA PROPERTIES, LLC | | |
| % Ownership: | 100.0000000000% | | |
| Total Value: | $858,995 | | |
| Tax Area: | 542 - APPRAISER-Stan/Cam Schl Dist, Special Dist, improved, greater than 1 acre |
| CF | Conservation Futures | 0.0313996660 | $858,995 | $858,995 | $26.97 | | |
| EMS1 | Fire & Rescue Dist #1 Camano GEN (EMS) | 0.4998471806 | $858,995 | $858,995 | $429.37 | | |
| FIRE1 | Fire & Rescue Dist #1 Camano GEN | 1.2496603404 | $858,995 | $858,995 | $1,073.45 | | |
| FIRE1BOND | Fire & Rescue Dist #1 Camano BOND | 0.1630371212 | $858,995 | $858,995 | $140.05 | | |
| CE | County Current Expense | 0.3674210519 | $858,995 | $858,995 | $315.61 | | |
| CR | County Roads | 0.4614296361 | $858,995 | $858,995 | $396.37 | | |
| LIB | Library Sno-Isle GEN | 0.3039084203 | $858,995 | $858,995 | $261.06 | | |
| SCH205_401 | School 205-401 Enrichment | 1.3697998934 | $858,995 | $858,995 | $1,176.65 | | |
| SCH205BOND | School 205-401 BOND | 0.9354199323 | $858,995 | $858,995 | $803.52 | | |
| ST | State School | 1.4761226122 | $858,995 | $858,995 | $1,267.98 | | |
| ST2 | State School Part 2 | 0.7953803475 | $858,995 | $858,995 | $683.23 | | |
| | Total Tax Rate: | 7.6534262019 | | | | | |
| | | | | Taxes w/Current Exemptions: | $6,574.26 | | |
| | | | | Taxes w/o Exemptions: | $6,574.26 | | |
Improvement / Building
| Improvement #1: | RESIDENTIAL | State Code: | Y | 1408.0 sqft | Value: | $108,995 |
| Bathrooms: | 1 | Bedrooms: | 2 | | Ceiling: | DRYWALL PAINTED | Exterior Wall/Cover: | WOOD SIDING | | Floor Covering: | CARPET/VINYL 80-20 | Floor Structure: | WOOD W/SUBFLOOR | | Foundation: | CONCRETE | Heating: | WALL HEAT ELECTRIC | | Interior Finish: | DRYWALL PAINT | Plumbing Fixture Cnt: | 6 | | Roof Slope: | 4" IN 12" | Roof Structure/Cover: | CJ WOOD SHAKES |
|
| | Type | Description | Class CD | Sub Class CD | Year Built | Area |
| | BAS | BASE/MAIN FLOOR | 3 | 0 | 1973 | 1408.0 |
| | DGR | DETACHED GARAGE | 3 | 0 | 1973 | 576.0 |
| | OWP | OPEN WOOD PORCH W/STEPS | 3 | 0 | 1973 | 506.0 |
| | oCB2 | CABIN FIN | 3 | 0 | 1973 | 384.0 |
| | OWC | OPEN WOOD PORCH W/STEPS/ROOF/C | 3 | 0 | 1973 | 90.0 |
| | OP4 | OPEN PORCH W/CEILING-ROOF | 3 | 0 | 1973 | 54.0 |
Sketch
Property Image
Land
| 1 | HB | HIGH BLUFF | 3.3900 | 147668.40 | 190.00 | 0.00 | 1.00 | $750,000 | $0 |
Roll Value History
| 2026 | N/A | N/A | N/A | N/A | N/A |
| 2025 | $108,995 | $750,000 | $0 | $858,995 | $858,995 |
| 2024 | $111,010 | $750,000 | $0 | $861,010 | $861,010 |
| 2023 | $113,024 | $750,000 | $0 | $863,024 | $863,024 |
| 2022 | $104,522 | $650,000 | $0 | $754,522 | $754,522 |
| 2021 | $72,023 | $600,000 | $0 | $672,023 | $672,023 |
| 2020 | $70,847 | $525,000 | $0 | $595,847 | $595,847 |
| 2019 | $55,869 | $575,000 | $0 | $630,869 | $630,869 |
| 2018 | $56,093 | $550,000 | $0 | $606,093 | $606,093 |
| 2017 | $56,540 | $500,000 | $0 | $556,540 | $556,540 |
| 2016 | $57,436 | $500,000 | $0 | $557,436 | $557,436 |
| 2015 | $111,382 | $500,000 | $0 | $611,382 | $611,382 |
| 2014 | $113,017 | $500,000 | $0 | $613,017 | $613,017 |
| 2013 | $114,651 | $495,167 | $0 | $609,818 | $609,818 |
| 2012 | $116,286 | $495,167 | $0 | $611,453 | $611,453 |
| 2011 | $117,920 | $618,959 | $0 | $736,879 | $736,879 |
| 2010 | $125,595 | $618,959 | $0 | $744,554 | $744,554 |
| 2009 | $128,085 | $752,503 | $0 | $880,588 | $880,588 |
| 2008 | $129,952 | $752,503 | $0 | $882,455 | $882,455 |
| 2007 | $114,929 | $769,137 | $0 | $884,066 | $884,066 |
Deed and Sales History
| 1 | 02/11/2008 | QCD | Quit Claim Deed | HARTMAN, MARGUERITE G | GLORIA PROPERTIES, LLC, | | | $0.00 | 80411 | 4222338 |
| 2 | 10/29/2001 | TRUSTEED | Trustee's Deed | HARTMAN, ANITA L | HARTMAN, MARGUERITE G | | | $0.00 | 14243 | 4001762 |
| 3 | 11/01/1995 | WD | Warranty Deed | HARTMAN, WALTER A | HARTMAN, ANITA L | | | $0.00 | 54152 | 95019114 |
| 4 | 05/01/1978 | OTHER | Other - Misc. Documents | Unknown | HARTMAN, WALTER A | | | $110,000.00 | 82411 | 333478 |
Payout Agreement
| No payout information available.. |