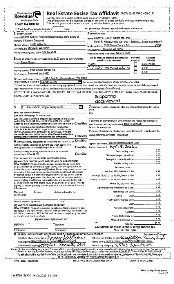
Property
Account |
| Property ID: | 314715 | Abbreviated Legal Description: | MABANA SH LOT 32 BLK 2 |
| Geographic ID: | S7425-00-02032-0 | Agent Code: | |
| Type: | Real | | |
| Tax Area: | 540 - APPRAISER-Stan/Cam Schl Dist, Special Dist, improved & less than 1 acre | Land Use Code | 11 |
| Open Space: | N | DFL | N |
| Historic Property: | N | Remodel Property: | N |
| Multi-Family Redevelopment: | N | | |
| Township: | | Section: | |
| Range: | |
Location |
| Address: | 1299 SETH DR CAMANO ISLAND, WA 98282 | Mapsco: | |
| Neighborhood: | 58RscamS-South Cam | Map ID: | 863 |
| Neighborhood CD: | 58RscamS |
Owner |
| Name: | GEIGER TTEE, STEVEN M | Owner ID: | 309065 |
| Mailing Address: | 5921 SILVANA TERRACE RD STANWOOD, WA 98292 | % Ownership: | 100.0000000000% |
| | | Exemptions: | |
Taxes and Assessment Details
Values
| (+) Improvement Homesite Value: | + | $0 | |
| (+) Improvement Non-Homesite Value: | + | $184,997 | |
| (+) Land Homesite Value: | + | $0 | |
| (+) Land Non-Homesite Value: | + | $280,000 | |
| (+) Curr Use (HS): | + | $0 | $0 |
| (+) Curr Use (NHS): | + | $0 | $0 |
| | | -------------------------- | |
| (=) Market Value: | = | $464,997 | |
| (–) Productivity Loss: | – | $0 | |
| | | -------------------------- | |
| (=) Subtotal: | = | $464,997 | |
| (+) Senior Appraised Value: | + | $0 | |
| (+) Non-Senior Appraised Value: | + | $464,997 | |
| | | -------------------------- | |
| (=) Total Appraised Value: | = | $464,997 | |
| (–) Senior Exemption Loss: | – | $0 | |
| (–) Exemption Loss: | – | $0 | |
| | | -------------------------- | |
| (=) Taxable Value: | = | $464,997 | |
Taxing Jurisdiction
| Owner: | GEIGER TTEE, STEVEN M | | |
| % Ownership: | 100.0000000000% | | |
| Total Value: | $464,997 | | |
| Tax Area: | 540 - APPRAISER-Stan/Cam Schl Dist, Special Dist, improved & less than 1 acre |
| CF | Conservation Futures | 0.0313996660 | $464,997 | $464,997 | $14.60 | | |
| EMS1 | Fire & Rescue Dist #1 Camano GEN (EMS) | 0.4998471806 | $464,997 | $464,997 | $232.43 | | |
| FIRE1 | Fire & Rescue Dist #1 Camano GEN | 1.2496603404 | $464,997 | $464,997 | $581.09 | | |
| FIRE1BOND | Fire & Rescue Dist #1 Camano BOND | 0.1630371212 | $464,997 | $464,997 | $75.81 | | |
| CE | County Current Expense | 0.3674210519 | $464,997 | $464,997 | $170.85 | | |
| CR | County Roads | 0.4614296361 | $464,997 | $464,997 | $214.56 | | |
| LIB | Library Sno-Isle GEN | 0.3039084203 | $464,997 | $464,997 | $141.32 | | |
| SCH205_401 | School 205-401 Enrichment | 1.3697998934 | $464,997 | $464,997 | $636.95 | | |
| SCH205BOND | School 205-401 BOND | 0.9354199323 | $464,997 | $464,997 | $434.97 | | |
| ST | State School | 1.4761226122 | $464,997 | $464,997 | $686.39 | | |
| ST2 | State School Part 2 | 0.7953803475 | $464,997 | $464,997 | $369.85 | | |
| | Total Tax Rate: | 7.6534262019 | | | | | |
| | | | | Taxes w/Current Exemptions: | $3,558.82 | | |
| | | | | Taxes w/o Exemptions: | $3,558.82 | | |
Improvement / Building
| Improvement #1: | RESIDENTIAL | State Code: | Y | 999.0 sqft | Value: | $184,997 |
| Bathrooms: | 1 | Bedrooms: | 2 | | Ceiling: | TONGUE & GROOVE | Exterior Wall/Cover: | WOOD SIDING | | Floor Covering: | CARPET/VINYL 80-20 | Floor Structure: | WOOD W/SUBFLOOR | | Foundation: | CONCRETE | Heating: | BASEBOARD ELECTRIC | | Interior Finish: | DRYWALL PAINT | Plumbing Fixture Cnt: | 6 | | Roof Slope: | 6" IN 12" | Roof Structure/Cover: | BEAM ASPHALT |
|
| | Type | Description | Class CD | Sub Class CD | Year Built | Area |
| | BAS | BASE/MAIN FLOOR | 3 | 0 | 1970 | 999.0 |
| | OWP | OPEN WOOD PORCH W/STEPS | 3 | 0 | 1970 | 540.0 |
| | UTY | STORAGE/UTILITY | 3 | 0 | 1970 | 264.0 |
| | OCP | OPEN CARPORT | 3 | 0 | 1970 | 418.0 |
Sketch
Property Image
Land
| 1 | 14 | SQ (08001-12000) | 0.2961 | 12898.12 | 0.00 | 0.00 | 1.00 | $280,000 | $0 |
Roll Value History
| 2026 | N/A | N/A | N/A | N/A | N/A |
| 2025 | $184,997 | $280,000 | $0 | $464,997 | $464,997 |
| 2024 | $191,322 | $275,000 | $0 | $466,322 | $466,322 |
| 2023 | $193,898 | $250,000 | $0 | $443,898 | $443,898 |
| 2022 | $177,910 | $230,000 | $0 | $407,910 | $407,910 |
| 2021 | $148,614 | $150,000 | $0 | $298,614 | $298,614 |
| 2020 | $145,092 | $140,000 | $0 | $285,092 | $285,092 |
| 2019 | $104,654 | $170,000 | $0 | $274,654 | $274,654 |
| 2018 | $105,002 | $150,000 | $0 | $255,002 | $255,002 |
| 2017 | $105,697 | $150,000 | $0 | $255,697 | $255,697 |
| 2016 | $107,088 | $100,000 | $0 | $207,088 | $207,088 |
| 2015 | $81,319 | $75,000 | $0 | $156,319 | $156,319 |
| 2014 | $82,500 | $75,000 | $0 | $157,500 | $157,500 |
| 2013 | $83,682 | $75,000 | $0 | $158,682 | $158,682 |
| 2012 | $84,863 | $92,800 | $0 | $177,663 | $177,663 |
| 2011 | $86,045 | $116,000 | $0 | $202,045 | $202,045 |
| 2010 | $92,257 | $116,000 | $0 | $208,257 | $208,257 |
| 2009 | $96,163 | $150,000 | $0 | $246,163 | $246,163 |
| 2008 | $97,431 | $200,000 | $0 | $297,431 | $297,431 |
| 2007 | $98,714 | $200,000 | $0 | $298,714 | $298,714 |
Deed and Sales History
| 1 | 04/05/2023 | QCD | Quit Claim Deed | GEIGER ET AL, STEVEN M | GEIGER TTEE, STEVEN M | | | $0.00 | 57093 | 4561484 |
| 2 | 04/05/2023 | PRD | Personal Representatives Deed | KILLGORE, NANCY R | GEIGER, BEVERLY K | | | $0.00 | 56900 | 4560621 |
| 3 | 08/01/1991 | WD | Warranty Deed | CREASEY, PAUL | GEIGER, STEVEN M | | | $119,500.00 | 12941 | 91012524 |
| 4 | 06/01/1988 | WD | Warranty Deed | BERNARD, ANDREW F | CREASEY, PAUL | | | $77,500.00 | 82167 | 88007982 |
| 5 | 04/01/1987 | WD | Warranty Deed | LARSEN, GERALDINE M | BERNARD, ANDREW F | | | $75,000.00 | 71010 | 87005132 |
| 6 | 05/01/1984 | OTHER | Other - Misc. Documents | LARSEN, JOHN R | LARSEN, GERALDINE M | | | $0.00 | 60622 | 0 |
| 7 | 09/01/1978 | OTHER | Other - Misc. Documents | Unknown | LARSEN, JOHN R | | | $40,000.00 | 84526 | 339773 |
Payout Agreement
| No payout information available.. |