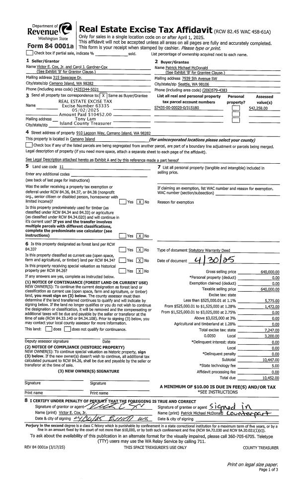
Property
Account |
| Property ID: | 315180 | Abbreviated Legal Description: | MADRONA ANNEX LOT 29 |
| Geographic ID: | S7435-00-00029-0 | Agent Code: | |
| Type: | Real | | |
| Tax Area: | 510 - APPRAISER-Stan/Cam Schl Dist, improved & 1 acre or less | Land Use Code | 11 |
| Open Space: | N | DFL | N |
| Historic Property: | N | Remodel Property: | N |
| Multi-Family Redevelopment: | N | | |
| Township: | | Section: | |
| Range: | |
Location |
| Address: | | Mapsco: | |
| Neighborhood: | North Camano | Map ID: | 574 |
| Neighborhood CD: | 06-C |
Owner |
| Name: | MCDONALD, PATRICK MICHEAL | Owner ID: | 316342 |
| Mailing Address: | 7939 5TH AVE SW SEATTLE, WA 98106 | % Ownership: | 100.0000000000% |
| | | Exemptions: | |
Taxes and Assessment Details
Values
| (+) Improvement Homesite Value: | + | $0 | |
| (+) Improvement Non-Homesite Value: | + | $188,467 | |
| (+) Land Homesite Value: | + | $0 | |
| (+) Land Non-Homesite Value: | + | $450,000 | |
| (+) Curr Use (HS): | + | $0 | $0 |
| (+) Curr Use (NHS): | + | $0 | $0 |
| | | -------------------------- | |
| (=) Market Value: | = | $638,467 | |
| (–) Productivity Loss: | – | $0 | |
| | | -------------------------- | |
| (=) Subtotal: | = | $638,467 | |
| (+) Senior Appraised Value: | + | $0 | |
| (+) Non-Senior Appraised Value: | + | $638,467 | |
| | | -------------------------- | |
| (=) Total Appraised Value: | = | $638,467 | |
| (–) Senior Exemption Loss: | – | $0 | |
| (–) Exemption Loss: | – | $0 | |
| | | -------------------------- | |
| (=) Taxable Value: | = | $638,467 | |
Taxing Jurisdiction
| Owner: | MCDONALD, PATRICK MICHEAL | | |
| % Ownership: | 100.0000000000% | | |
| Total Value: | $638,467 | | |
| Tax Area: | 510 - APPRAISER-Stan/Cam Schl Dist, improved & 1 acre or less |
| CF | Conservation Futures | 0.0313996660 | $638,467 | $638,467 | $20.05 | | |
| EMS1 | Fire & Rescue Dist #1 Camano GEN (EMS) | 0.4998471806 | $638,467 | $638,467 | $319.14 | | |
| FIRE1 | Fire & Rescue Dist #1 Camano GEN | 1.2496603404 | $638,467 | $638,467 | $797.87 | | |
| FIRE1BOND | Fire & Rescue Dist #1 Camano BOND | 0.1630371212 | $638,467 | $638,467 | $104.09 | | |
| CE | County Current Expense | 0.3674210519 | $638,467 | $638,467 | $234.59 | | |
| CR | County Roads | 0.4614296361 | $638,467 | $638,467 | $294.61 | | |
| LIB | Library Sno-Isle GEN | 0.3039084203 | $638,467 | $638,467 | $194.04 | | |
| SCH205_401 | School 205-401 Enrichment | 1.3697998934 | $638,467 | $638,467 | $874.57 | | |
| SCH205BOND | School 205-401 BOND | 0.9354199323 | $638,467 | $638,467 | $597.23 | | |
| ST | State School | 1.4761226122 | $638,467 | $638,467 | $942.46 | | |
| ST2 | State School Part 2 | 0.7953803475 | $638,467 | $638,467 | $507.82 | | |
| | Total Tax Rate: | 7.6534262019 | | | | | |
| | | | | Taxes w/Current Exemptions: | $4,886.47 | | |
| | | | | Taxes w/o Exemptions: | $4,886.47 | | |
Improvement / Building
| Improvement #1: | RESIDENTIAL | State Code: | Y | 1344.0 sqft | Value: | $188,467 |
| Bathrooms: | 2 | Bedrooms: | 0 | | Ceiling: | TONGUE & GROOVE | Cooling: | HEAT PUMP/CONV/V | | Exterior Wall/Cover: | PLY/HARDBOARD T-111 | Floor Covering: | CARPET/VINYL 80-20 | | Floor Structure: | WOOD W/SUBFLOOR | Foundation: | CONCRETE BLOCKS | | Interior Finish: | DRYWALL PAINT | Plumbing Fixture Cnt: | 9 | | Roof Slope: | 3" IN 12" | Roof Structure/Cover: | BEAM ASPHALT |
|
| | Type | Description | Class CD | Sub Class CD | Year Built | Area |
| | BAS | BASE/MAIN FLOOR | 3 | 0 | 1932 | 656.0 |
| | DWN | DOWNSTAIRS LIVING AREA | 3 | 0 | 1932 | 688.0 |
| | BAR | BALCONY W/ROOF | 3 | 0 | 1932 | 60.0 |
| | OWP | OPEN WOOD PORCH W/STEPS | 3 | 0 | 1932 | 76.9 |
| | OWC | OPEN WOOD PORCH W/STEPS/ROOF/C | 3 | 0 | 1932 | 36.4 |
| | OWP | OPEN WOOD PORCH W/STEPS | 3 | 0 | 1932 | 96.0 |
| | OWC | OPEN WOOD PORCH W/STEPS/ROOF/C | 3 | 0 | 1932 | 35.7 |
| | UTY | STORAGE/UTILITY | 3 | 0 | 1932 | 128.0 |
Sketch
Property Image
Land
| 1 | 12 | SQ (00000-06000) | 0.0000 | 0.00 | 0.00 | 0.00 | 1.00 | $450,000 | $0 |
Roll Value History
| 2026 | N/A | N/A | N/A | N/A | N/A |
| 2025 | $188,467 | $450,000 | $0 | $638,467 | $638,467 |
| 2024 | $182,258 | $360,000 | $0 | $542,258 | $542,258 |
| 2023 | $184,854 | $360,000 | $0 | $544,854 | $544,854 |
| 2022 | $160,351 | $310,000 | $0 | $470,351 | $470,351 |
| 2021 | $141,419 | $300,000 | $0 | $441,419 | $441,419 |
| 2020 | $137,885 | $210,000 | $0 | $347,885 | $347,885 |
| 2019 | $97,634 | $210,000 | $0 | $307,634 | $307,634 |
| 2018 | $97,967 | $180,000 | $0 | $277,967 | $277,967 |
| 2017 | $98,634 | $130,000 | $0 | $228,634 | $228,634 |
| 2016 | $66,658 | $130,000 | $0 | $196,658 | $196,658 |
| 2015 | $67,915 | $66,816 | $0 | $134,731 | $134,731 |
| 2014 | $69,173 | $66,816 | $0 | $135,989 | $135,989 |
| 2013 | $70,430 | $66,816 | $0 | $137,246 | $137,246 |
| 2012 | $71,688 | $66,816 | $0 | $138,504 | $138,504 |
| 2011 | $72,946 | $83,520 | $0 | $156,466 | $156,466 |
| 2010 | $44,639 | $83,520 | $0 | $128,159 | $128,159 |
| 2009 | $46,957 | $132,000 | $0 | $178,957 | $178,957 |
| 2008 | $47,896 | $133,800 | $0 | $181,696 | $181,696 |
| 2007 | $47,896 | $133,800 | $0 | $181,696 | $181,696 |
Deed and Sales History
| 1 | 04/30/2025 | WD | Warranty Deed | COX, VICTOR E | MCDONALD, PATRICK MICHEAL | | | $640,000.00 | 63335 | 4585255 |
| 2 | 03/10/2007 | WD | Warranty Deed | KNUDSON, BEN W | COX, VICTOR E | | | $268,000.00 | 70887 | 4196775 |
| 3 | 01/01/1900 | OTHER | Other - Misc. Documents | Unknown | KNUDSON, BEN W | | | $0.00 | 0 | 0 |
Payout Agreement
| No payout information available.. |