Property
Account |
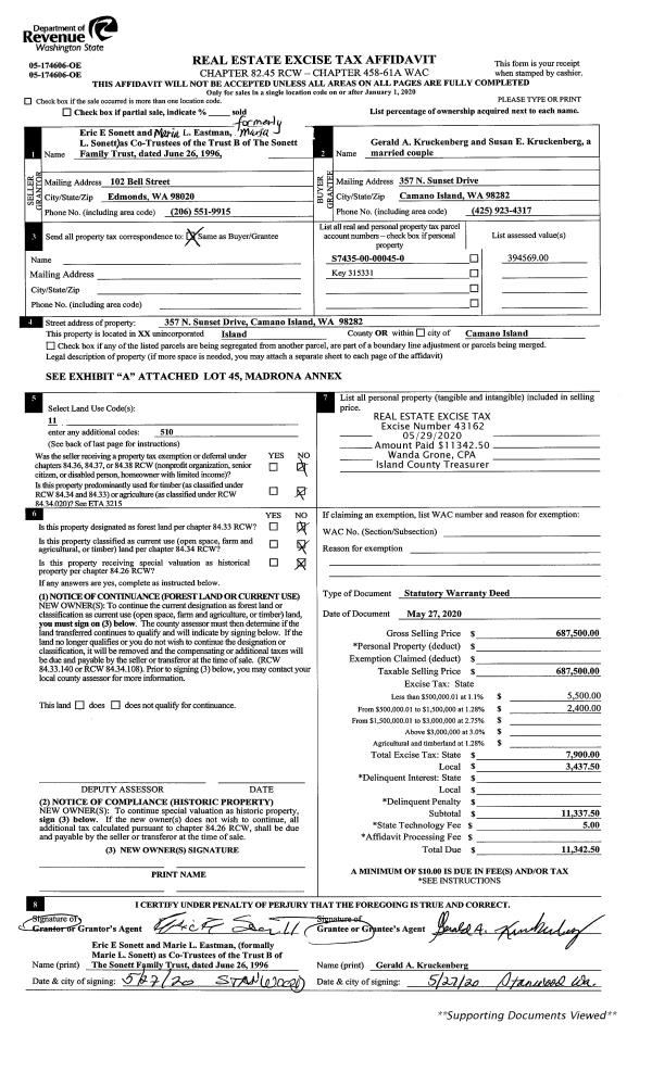
| Property ID: | 315331 | Abbreviated Legal Description: | MADRONA ANNEX LOT 45 TGW S/2 ADJ VAC 11TH ST LY W OF SUNSET DR & E OF ALDER ST |
| Geographic ID: | S7435-00-00045-0 | Agent Code: | |
| Type: | Real | | |
| Tax Area: | 510 - APPRAISER-Stan/Cam Schl Dist, improved & 1 acre or less | Land Use Code | 11 |
| Open Space: | N | DFL | N |
| Historic Property: | N | Remodel Property: | N |
| Multi-Family Redevelopment: | N | | |
| Township: | | Section: | |
| Range: | |
Location |
| Address: | 357 N SUNSET DR CAMANO ISLAND, WA 98282 | Mapsco: | |
| Neighborhood: | North Camano | Map ID: | 574 |
| Neighborhood CD: | 06-C |
Owner |
| Name: | KRUCKENBERG, GERALD A | Owner ID: | 294348 |
| Mailing Address: | SUSAN E KRUCKENBERG 357 N SUNSET DR CAMANO ISLAND, WA 98282 | % Ownership: | 100.0000000000% |
| | | Exemptions: | |
Taxes and Assessment Details
Values
| (+) Improvement Homesite Value: | + | $0 | |
| (+) Improvement Non-Homesite Value: | + | $337,640 | |
| (+) Land Homesite Value: | + | $0 | |
| (+) Land Non-Homesite Value: | + | $450,000 | |
| (+) Curr Use (HS): | + | $0 | $0 |
| (+) Curr Use (NHS): | + | $0 | $0 |
| | | -------------------------- | |
| (=) Market Value: | = | $787,640 | |
| (–) Productivity Loss: | – | $0 | |
| | | -------------------------- | |
| (=) Subtotal: | = | $787,640 | |
| (+) Senior Appraised Value: | + | $0 | |
| (+) Non-Senior Appraised Value: | + | $787,640 | |
| | | -------------------------- | |
| (=) Total Appraised Value: | = | $787,640 | |
| (–) Senior Exemption Loss: | – | $0 | |
| (–) Exemption Loss: | – | $0 | |
| | | -------------------------- | |
| (=) Taxable Value: | = | $787,640 | |
Taxing Jurisdiction
| Owner: | KRUCKENBERG, GERALD A | | |
| % Ownership: | 100.0000000000% | | |
| Total Value: | $787,640 | | |
| Tax Area: | 510 - APPRAISER-Stan/Cam Schl Dist, improved & 1 acre or less |
| CF | Conservation Futures | 0.0313996660 | $787,640 | $787,640 | $24.73 | | |
| EMS1 | Fire & Rescue Dist #1 Camano GEN (EMS) | 0.4998471806 | $787,640 | $787,640 | $393.70 | | |
| FIRE1 | Fire & Rescue Dist #1 Camano GEN | 1.2496603404 | $787,640 | $787,640 | $984.28 | | |
| FIRE1BOND | Fire & Rescue Dist #1 Camano BOND | 0.1630371212 | $787,640 | $787,640 | $128.41 | | |
| CE | County Current Expense | 0.3674210519 | $787,640 | $787,640 | $289.40 | | |
| CR | County Roads | 0.4614296361 | $787,640 | $787,640 | $363.44 | | |
| LIB | Library Sno-Isle GEN | 0.3039084203 | $787,640 | $787,640 | $239.37 | | |
| SCH205_401 | School 205-401 Enrichment | 1.3697998934 | $787,640 | $787,640 | $1,078.91 | | |
| SCH205BOND | School 205-401 BOND | 0.9354199323 | $787,640 | $787,640 | $736.77 | | |
| ST | State School | 1.4761226122 | $787,640 | $787,640 | $1,162.65 | | |
| ST2 | State School Part 2 | 0.7953803475 | $787,640 | $787,640 | $626.47 | | |
| | Total Tax Rate: | 7.6534262019 | | | | | |
| | | | | Taxes w/Current Exemptions: | $6,028.13 | | |
| | | | | Taxes w/o Exemptions: | $6,028.13 | | |
Improvement / Building
| Improvement #1: | RESIDENTIAL | State Code: | Y | 2142.0 sqft | Value: | $337,640 |
| Bathrooms: | 3 | Bedrooms: | 3 | | Ceiling: | DRYWALL PAINTED | Exterior Wall/Cover: | WOOD SIDING | | Floor Covering: | HARDWOOD/CARP 20-80 | Floor Structure: | WOOD W/SUBFLOOR | | Foundation: | CONCRETE | Heating: | WALL HEAT ELECTRIC | | Interior Finish: | DRYWALL PAINT | Plumbing Fixture Cnt: | 13 | | Roof Slope: | FLAT | Roof Structure/Cover: | CJ WOOD SHAKES |
|
| | Type | Description | Class CD | Sub Class CD | Year Built | Area |
| | BAS | BASE/MAIN FLOOR | 4 | 0 | 1984 | 900.0 |
| | UPS | UPPER STORY | 4 | 0 | 1984 | 414.0 |
| | OWP | OPEN WOOD PORCH W/STEPS | 4 | 0 | 1984 | 463.0 |
| | OWP | OPEN WOOD PORCH W/STEPS | 4 | 0 | 1984 | 350.0 |
| | DWN | DOWNSTAIRS LIVING AREA | 4 | 0 | 1984 | 828.0 |
| | CPD | OPEN CARPORT DIRT FLOOR | 4 | 0 | 1984 | 126.0 |
| | UTY | STORAGE/UTILITY | 4 | 0 | 1984 | 108.0 |
Sketch
Property Image
Land
| 1 | 12 | SQ (00000-06000) | 0.0000 | 0.00 | 0.00 | 0.00 | 1.00 | $450,000 | $0 |
Roll Value History
| 2026 | N/A | N/A | N/A | N/A | N/A |
| 2025 | $337,640 | $450,000 | $0 | $787,640 | $787,640 |
| 2024 | $342,010 | $450,000 | $0 | $792,010 | $792,010 |
| 2023 | $346,382 | $450,000 | $0 | $796,382 | $796,382 |
| 2022 | $311,979 | $380,000 | $0 | $691,979 | $691,979 |
| 2021 | $274,666 | $350,000 | $0 | $624,666 | $624,666 |
| 2020 | $249,569 | $210,000 | $0 | $459,569 | $459,569 |
| 2019 | $184,569 | $210,000 | $0 | $394,569 | $394,569 |
| 2018 | $185,173 | $180,000 | $0 | $365,173 | $365,173 |
| 2017 | $183,926 | $130,000 | $0 | $313,926 | $313,926 |
| 2016 | $186,314 | $130,000 | $0 | $316,314 | $316,314 |
| 2015 | $188,703 | $92,800 | $0 | $281,503 | $281,503 |
| 2014 | $191,092 | $92,800 | $0 | $283,892 | $283,892 |
| 2013 | $193,481 | $92,800 | $0 | $286,281 | $286,281 |
| 2012 | $179,150 | $92,800 | $0 | $271,950 | $271,950 |
| 2011 | $181,538 | $116,000 | $0 | $297,538 | $297,538 |
| 2010 | $185,632 | $116,000 | $0 | $301,632 | $301,632 |
| 2009 | $193,985 | $200,000 | $0 | $393,985 | $393,985 |
| 2008 | $194,411 | $200,000 | $0 | $394,411 | $394,411 |
| 2007 | $186,692 | $210,525 | $0 | $397,217 | $397,217 |
Deed and Sales History
| 1 | 05/27/2020 | WD | Warranty Deed | SONETT CO-TRUSTEE, ERIC E | KRUCKENBERG, GERALD A | | | $687,500.00 | 43162 | 4487668 |
| 2 | 02/25/2013 | WD | Warranty Deed | SONETT, VIRGINIA LOUISE | SONETT CO-TRUSTEE, ERIC E | | | $0.00 | 11642 | 4341815 |
| 3 | 09/19/2012 | WD | Warranty Deed | CAMPBELL, JERRY F | SONETT, VIRGINIA LOUISE | | | $320,000.00 | 8941 | 4323567 |
| 4 | 06/20/2003 | WD | Warranty Deed | KEENER, JONNY R | CAMPBELL, JERRY F | | | $295,000.00 | 32776 | 4064599 |
| 5 | 07/31/2002 | WD | Warranty Deed | MILCHEM, MICHAEL J | KEENER, JONNY R | | | $270,000.00 | 23035 | 4027355 |
| 6 | 07/06/1999 | WD | Warranty Deed | WALSH, MARILYN E | MILCHEM, MICHAEL J | | | $197,000.00 | 92766 | 99016468 |
| 7 | 12/01/1989 | WD | Warranty Deed | SUFFERN, SAMUEL C | WALSH, MARILYN E | | | $149,900.00 | 95900 | 89018995 |
| 8 | 07/01/1986 | WD | Warranty Deed | LEIGHTY, KENNETH E | SUFFERN, SAMUEL C | | | $96,000.00 | 61900 | 86008939 |
| 9 | 08/01/1983 | CD | DNU - Correction Deed | LEIGHTY, KENNETH E | LEIGHTY, KENNETH E | | | $0.00 | 60184 | 412565 |
| 10 | 05/01/1983 | WD | Warranty Deed | DIXON, JACK E | LEIGHTY, KENNETH E | | | $17,000.00 | 31337 | 409938 |
| 11 | 01/01/1900 | OTHER | Other - Misc. Documents | Unknown | DIXON, JACK E | | | $0.00 | 0 | 0 |
Payout Agreement
| No payout information available.. |