Property
Account |
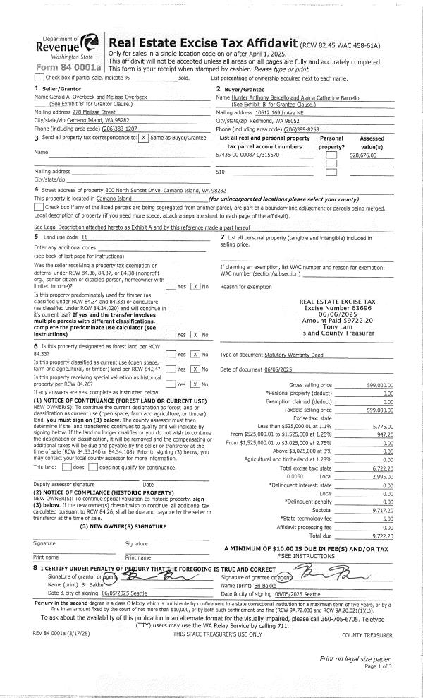
| Property ID: | 315670 | Abbreviated Legal Description: | MADRONA ANNEX LOT 87 & PT LOT 14 CAMANO LAGUNA VISTA #1 DESC: BG SECR LOT 87 N1*E40 M/L TO NECR SD LOT 87 E30' ALG NLN EXT ELY SD LOT 87 S1*W40' M/L TP ON SLN EXT ELY SD LOT 87 W30' ALG SD SLN EXT TPB INCL INT IN BCH TRS DESC 51D49 & 51D175 |
| Geographic ID: | S7435-00-00087-0 | Agent Code: | |
| Type: | Real | | |
| Tax Area: | 510 - APPRAISER-Stan/Cam Schl Dist, improved & 1 acre or less | Land Use Code | 11 |
| Open Space: | N | DFL | N |
| Historic Property: | N | Remodel Property: | N |
| Multi-Family Redevelopment: | N | | |
| Township: | | Section: | |
| Range: | |
Location |
| Address: | 300 N SUNSET DR CAMANO ISLAND, WA 98282 | Mapsco: | |
| Neighborhood: | North Camano | Map ID: | 574 |
| Neighborhood CD: | 06-C |
Owner |
| Name: | BARCELLO, HUNTER ANTHONY | Owner ID: | 316823 |
| Mailing Address: | ALAINA CATHERINE BARCELLO 10612 169TH AVE N REDMOND, WA 98052 | % Ownership: | 100.0000000000% |
| | | Exemptions: | |
Taxes and Assessment Details
Values
| (+) Improvement Homesite Value: | + | $0 | |
| (+) Improvement Non-Homesite Value: | + | $166,765 | |
| (+) Land Homesite Value: | + | $0 | |
| (+) Land Non-Homesite Value: | + | $360,000 | |
| (+) Curr Use (HS): | + | $0 | $0 |
| (+) Curr Use (NHS): | + | $0 | $0 |
| | | -------------------------- | |
| (=) Market Value: | = | $526,765 | |
| (–) Productivity Loss: | – | $0 | |
| | | -------------------------- | |
| (=) Subtotal: | = | $526,765 | |
| (+) Senior Appraised Value: | + | $0 | |
| (+) Non-Senior Appraised Value: | + | $526,765 | |
| | | -------------------------- | |
| (=) Total Appraised Value: | = | $526,765 | |
| (–) Senior Exemption Loss: | – | $0 | |
| (–) Exemption Loss: | – | $0 | |
| | | -------------------------- | |
| (=) Taxable Value: | = | $526,765 | |
Taxing Jurisdiction
| Owner: | BARCELLO, HUNTER ANTHONY | | |
| % Ownership: | 100.0000000000% | | |
| Total Value: | $526,765 | | |
| Tax Area: | 510 - APPRAISER-Stan/Cam Schl Dist, improved & 1 acre or less |
| CF | Conservation Futures | 0.0313996660 | $526,765 | $526,765 | $16.54 | | |
| EMS1 | Fire & Rescue Dist #1 Camano GEN (EMS) | 0.4998471806 | $526,765 | $526,765 | $263.30 | | |
| FIRE1 | Fire & Rescue Dist #1 Camano GEN | 1.2496603404 | $526,765 | $526,765 | $658.28 | | |
| FIRE1BOND | Fire & Rescue Dist #1 Camano BOND | 0.1630371212 | $526,765 | $526,765 | $85.88 | | |
| CE | County Current Expense | 0.3674210519 | $526,765 | $526,765 | $193.54 | | |
| CR | County Roads | 0.4614296361 | $526,765 | $526,765 | $243.06 | | |
| LIB | Library Sno-Isle GEN | 0.3039084203 | $526,765 | $526,765 | $160.09 | | |
| SCH205_401 | School 205-401 Enrichment | 1.3697998934 | $526,765 | $526,765 | $721.56 | | |
| SCH205BOND | School 205-401 BOND | 0.9354199323 | $526,765 | $526,765 | $492.75 | | |
| ST | State School | 1.4761226122 | $526,765 | $526,765 | $777.57 | | |
| ST2 | State School Part 2 | 0.7953803475 | $526,765 | $526,765 | $418.98 | | |
| | Total Tax Rate: | 7.6534262019 | | | | | |
| | | | | Taxes w/Current Exemptions: | $4,031.55 | | |
| | | | | Taxes w/o Exemptions: | $4,031.55 | | |
Improvement / Building
| Improvement #1: | RESIDENTIAL | State Code: | Y | 660.0 sqft | Value: | $166,765 |
| Bathrooms: | 1 | Bedrooms: | 2 | | Ceiling: | TONGUE & GROOVE | Cooling: | HEAT PUMP/CONV/V | | Exterior Wall/Cover: | VINYL | Floor Covering: | CARPET/VINYL 80-20 | | Floor Structure: | WOOD W/SUBFLOOR | Foundation: | CONCRETE | | Interior Finish: | DRYWALL PAINT | Plumbing Fixture Cnt: | 6 | | Roof Slope: | 8" IN 12" | Roof Structure/Cover: | BEAM ALUMINUM HEAVY |
|
| | Type | Description | Class CD | Sub Class CD | Year Built | Area |
| | BAS | BASE/MAIN FLOOR | 3 | 0 | 1934 | 660.0 |
| | OP1 | OPEN PORCH SLAB | 3 | 0 | 1934 | 120.0 |
| | BGR | BASEMENT GARAGE | 3 | 0 | 1934 | 120.0 |
| | OWP | OPEN WOOD PORCH W/STEPS | 3 | 0 | 1934 | 237.3 |
Sketch
Property Image
Land
| 1 | 12 | SQ (00000-06000) | 0.0000 | 0.00 | 0.00 | 0.00 | 1.00 | $360,000 | $0 |
Roll Value History
| 2026 | N/A | N/A | N/A | N/A | N/A |
| 2025 | $166,765 | $360,000 | $0 | $526,765 | $526,765 |
| 2024 | $168,676 | $360,000 | $0 | $528,676 | $528,676 |
| 2023 | $170,587 | $360,000 | $0 | $530,587 | $530,587 |
| 2022 | $153,414 | $380,000 | $0 | $533,414 | $533,414 |
| 2021 | $134,589 | $300,000 | $0 | $434,589 | $434,589 |
| 2020 | $130,224 | $220,000 | $0 | $350,224 | $350,224 |
| 2019 | $92,599 | $225,000 | $0 | $317,599 | $317,599 |
| 2018 | $80,931 | $180,000 | $0 | $260,931 | $260,931 |
| 2017 | $81,427 | $130,000 | $0 | $211,427 | $211,427 |
| 2016 | $82,420 | $130,000 | $0 | $212,420 | $212,420 |
| 2015 | $17,602 | $92,800 | $0 | $110,402 | $110,402 |
| 2014 | $18,120 | $92,800 | $0 | $110,920 | $110,920 |
| 2013 | $18,637 | $92,800 | $0 | $111,437 | $111,437 |
| 2012 | $19,155 | $92,800 | $0 | $111,955 | $111,955 |
| 2011 | $19,672 | $116,000 | $0 | $135,672 | $135,672 |
| 2010 | $26,477 | $116,000 | $0 | $142,477 | $142,477 |
| 2009 | $27,759 | $200,000 | $0 | $227,759 | $227,759 |
| 2008 | $28,299 | $200,000 | $0 | $228,299 | $228,299 |
| 2007 | $25,172 | $203,666 | $0 | $228,838 | $228,838 |
Deed and Sales History
| 1 | 06/05/2025 | WD | Warranty Deed | OVERBECK, GERALD A | BARCELLO, HUNTER ANTHONY | | | $599,000.00 | 63696 | 4586655 |
| 2 | 03/28/2022 | WD | Warranty Deed | C & V INVESTMENTS, LLC | OVERBECK, GERALD A | | | $560,000.00 | 52702 | 4543339 |
| 3 | 06/13/2018 | WD | Warranty Deed | KORTE, MARY M | C & V INVESTMENTS, LLC | | | $325,000.00 | 34698 | 4446866 |
| 4 | 07/06/2012 | QCD | Quit Claim Deed | KORTE, LOWELL | KORTE, MARY M | | | $0.00 | 8425 | 4320420 |
| 5 | 07/30/2003 | WD | Warranty Deed | STOREY, HILDA E | KORTE, LOWELL | | | $118,000.00 | 33409 | 4069709 |
| 6 | 06/01/1996 | WD | Warranty Deed | WONG, SHAWN H | STOREY, HILDA E | | | $75,000.00 | 62106 | 96010444 |
| 7 | 06/01/1985 | DECREE | Divorce Decree/Legal Separation | WONG, SHAWN H | WONG, SHAWN H | | | $0.00 | 52194 | 85008592 |
| 8 | 08/01/1982 | TRUSTEED | Trustee's Deed | KELLY, KAREN S | WONG, SHAWN H | | | $39,500.00 | 21971 | 399587 |
| 9 | 09/01/1978 | OTHER | Other - Misc. Documents | Unknown | KELLY, KAREN S | | | $17,500.00 | 84553 | 339827 |
Payout Agreement
| No payout information available.. |