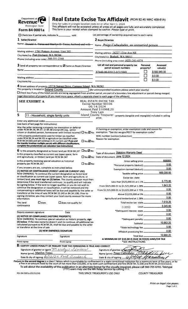
Property
Account |
| Property ID: | 315849 | Abbreviated Legal Description: | MADRONA BCH LOT 12 BLK 2 |
| Geographic ID: | S7440-00-02012-0 | Agent Code: | |
| Type: | Real | | |
| Tax Area: | 510 - APPRAISER-Stan/Cam Schl Dist, improved & 1 acre or less | Land Use Code | 11 |
| Open Space: | N | DFL | N |
| Historic Property: | N | Remodel Property: | N |
| Multi-Family Redevelopment: | N | | |
| Township: | | Section: | |
| Range: | |
Location |
| Address: | 157 N SUNSET DR CAMANO ISLAND, WA 98282 | Mapsco: | |
| Neighborhood: | North Camano | Map ID: | 573 |
| Neighborhood CD: | 06-C |
Owner |
| Name: | CADWALADER, PAIGE | Owner ID: | 312789 |
| Mailing Address: | 16227 121ST AVE NE BOTHELL, WA 98011 | % Ownership: | 100.0000000000% |
| | | Exemptions: | |
Taxes and Assessment Details
Values
| (+) Improvement Homesite Value: | + | $0 | |
| (+) Improvement Non-Homesite Value: | + | $315,103 | |
| (+) Land Homesite Value: | + | $0 | |
| (+) Land Non-Homesite Value: | + | $360,000 | |
| (+) Curr Use (HS): | + | $0 | $0 |
| (+) Curr Use (NHS): | + | $0 | $0 |
| | | -------------------------- | |
| (=) Market Value: | = | $675,103 | |
| (–) Productivity Loss: | – | $0 | |
| | | -------------------------- | |
| (=) Subtotal: | = | $675,103 | |
| (+) Senior Appraised Value: | + | $0 | |
| (+) Non-Senior Appraised Value: | + | $675,103 | |
| | | -------------------------- | |
| (=) Total Appraised Value: | = | $675,103 | |
| (–) Senior Exemption Loss: | – | $0 | |
| (–) Exemption Loss: | – | $0 | |
| | | -------------------------- | |
| (=) Taxable Value: | = | $675,103 | |
Taxing Jurisdiction
| Owner: | CADWALADER, PAIGE | | |
| % Ownership: | 100.0000000000% | | |
| Total Value: | $675,103 | | |
| Tax Area: | 510 - APPRAISER-Stan/Cam Schl Dist, improved & 1 acre or less |
| CF | Conservation Futures | 0.0313996660 | $675,103 | $675,103 | $21.20 | | |
| EMS1 | Fire & Rescue Dist #1 Camano GEN (EMS) | 0.4998471806 | $675,103 | $675,103 | $337.45 | | |
| FIRE1 | Fire & Rescue Dist #1 Camano GEN | 1.2496603404 | $675,103 | $675,103 | $843.65 | | |
| FIRE1BOND | Fire & Rescue Dist #1 Camano BOND | 0.1630371212 | $675,103 | $675,103 | $110.07 | | |
| CE | County Current Expense | 0.3674210519 | $675,103 | $675,103 | $248.05 | | |
| CR | County Roads | 0.4614296361 | $675,103 | $675,103 | $311.51 | | |
| LIB | Library Sno-Isle GEN | 0.3039084203 | $675,103 | $675,103 | $205.17 | | |
| SCH205_401 | School 205-401 Enrichment | 1.3697998934 | $675,103 | $675,103 | $924.76 | | |
| SCH205BOND | School 205-401 BOND | 0.9354199323 | $675,103 | $675,103 | $631.50 | | |
| ST | State School | 1.4761226122 | $675,103 | $675,103 | $996.53 | | |
| ST2 | State School Part 2 | 0.7953803475 | $675,103 | $675,103 | $536.96 | | |
| | Total Tax Rate: | 7.6534262019 | | | | | |
| | | | | Taxes w/Current Exemptions: | $5,166.85 | | |
| | | | | Taxes w/o Exemptions: | $5,166.85 | | |
Improvement / Building
| Improvement #1: | RESIDENTIAL | State Code: | Y | 1869.3 sqft | Value: | $315,103 |
| Bathrooms: | 1.5 | Bedrooms: | 2 | | Ceiling: | DRYWALL PAINTED | Exterior Wall/Cover: | WOOD SIDING | | Floor Covering: | HARDWOOD/CARP 60-40 | Floor Structure: | WOOD W/SUBFLOOR | | Foundation: | CONCRETE | Heating: | BASEBOARD ELECTRIC | | Interior Finish: | DRYWALL PAINT | Plumbing Fixture Cnt: | 10 | | Roof Slope: | 8" IN 12" | Roof Structure/Cover: | CJ ASPHALT |
|
| | Type | Description | Class CD | Sub Class CD | Year Built | Area |
| | BAS | BASE/MAIN FLOOR | 4 | 0 | 1942 | 1032.1 |
| | OP1 | OPEN PORCH SLAB | 4 | 0 | 1942 | 294.2 |
| | UTY | STORAGE/UTILITY | 4 | 0 | 1942 | 33.8 |
| | OWP | OPEN WOOD PORCH W/STEPS | 4 | 0 | 1942 | 288.5 |
| | OWP | OPEN WOOD PORCH W/STEPS | 4 | 0 | 1942 | 157.9 |
| | OWC | OPEN WOOD PORCH W/STEPS/ROOF/C | 4 | 0 | 1942 | 29.2 |
| | DWN | DOWNSTAIRS LIVING AREA | 4 | 0 | 1942 | 837.2 |
| | DGR | DETACHED GARAGE | 4 | 0 | 1942 | 307.9 |
Sketch
| No sketches available for this property. |
Property Image
Land
| 1 | 12 | SQ (00000-06000) | 0.0000 | 0.00 | 0.00 | 0.00 | 1.00 | $360,000 | $0 |
Roll Value History
| 2026 | N/A | N/A | N/A | N/A | N/A |
| 2025 | $315,103 | $360,000 | $0 | $675,103 | $675,103 |
| 2024 | $223,545 | $360,000 | $0 | $583,545 | $583,545 |
| 2023 | $226,922 | $360,000 | $0 | $586,922 | $586,922 |
| 2022 | $202,423 | $310,000 | $0 | $512,423 | $512,423 |
| 2021 | $178,679 | $250,000 | $0 | $428,679 | $428,679 |
| 2020 | $174,979 | $210,000 | $0 | $384,979 | $384,979 |
| 2019 | $132,844 | $210,000 | $0 | $342,844 | $342,844 |
| 2018 | $133,323 | $180,000 | $0 | $313,323 | $313,323 |
| 2017 | $134,260 | $130,000 | $0 | $264,260 | $264,260 |
| 2016 | $118,032 | $130,000 | $0 | $248,032 | $248,032 |
| 2015 | $119,905 | $92,800 | $0 | $212,705 | $212,705 |
| 2014 | $121,780 | $92,800 | $0 | $214,580 | $214,580 |
| 2013 | $123,652 | $92,800 | $0 | $216,452 | $216,452 |
| 2012 | $125,526 | $92,800 | $0 | $218,326 | $218,326 |
| 2011 | $127,399 | $116,000 | $0 | $243,399 | $243,399 |
| 2010 | $132,041 | $116,000 | $0 | $248,041 | $248,041 |
| 2009 | $137,798 | $195,000 | $0 | $332,798 | $332,798 |
| 2008 | $139,686 | $195,000 | $0 | $334,686 | $334,686 |
| 2007 | $141,662 | $223,000 | $0 | $364,662 | $364,662 |
Deed and Sales History
| 1 | 06/12/2024 | WD | Warranty Deed | TINIUS, DONALD A | CADWALADER, PAIGE | | | $669,000.00 | 60336 | 4573486 |
| 2 | 04/01/1980 | TRUSTEED | Trustee's Deed | HULLUM, MRS F | TINIUS, DONALD A | | | $37,000.00 | 1268 | 367647 |
| 3 | 01/01/1900 | OTHER | Other - Misc. Documents | Unknown | HULLUM, MRS F | | | $0.00 | 0 | 0 |
Payout Agreement
| No payout information available.. |