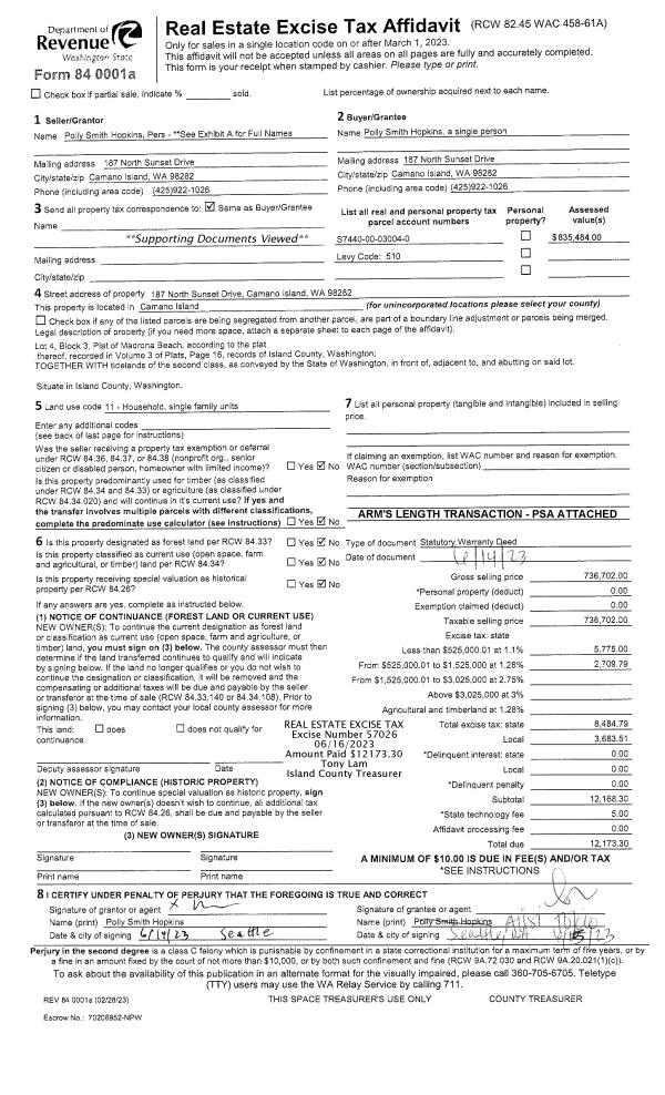
Property
Account |
| Property ID: | 315885 | Abbreviated Legal Description: | MADRONA BCH LOT 4 BLK 3 INCL ADJ TIDES |
| Geographic ID: | S7440-00-03004-0 | Agent Code: | |
| Type: | Real | | |
| Tax Area: | 510 - APPRAISER-Stan/Cam Schl Dist, improved & 1 acre or less | Land Use Code | 11 |
| Open Space: | N | DFL | N |
| Historic Property: | N | Remodel Property: | N |
| Multi-Family Redevelopment: | N | | |
| Township: | | Section: | |
| Range: | |
Location |
| Address: | 187 N SUNSET DR CAMANO ISLAND, WA 98282 | Mapsco: | |
| Neighborhood: | North Camano | Map ID: | 573 |
| Neighborhood CD: | 06-C |
Owner |
| Name: | HOPKINS, POLLY SMITH | Owner ID: | 308992 |
| Mailing Address: | 187 NORTH SUNSET DR CAMANO ISLAND, WA 98282 | % Ownership: | 100.0000000000% |
| | | Exemptions: | |
Taxes and Assessment Details
Values
| (+) Improvement Homesite Value: | + | $0 | |
| (+) Improvement Non-Homesite Value: | + | $199,410 | |
| (+) Land Homesite Value: | + | $0 | |
| (+) Land Non-Homesite Value: | + | $625,500 | |
| (+) Curr Use (HS): | + | $0 | $0 |
| (+) Curr Use (NHS): | + | $0 | $0 |
| | | -------------------------- | |
| (=) Market Value: | = | $824,910 | |
| (–) Productivity Loss: | – | $0 | |
| | | -------------------------- | |
| (=) Subtotal: | = | $824,910 | |
| (+) Senior Appraised Value: | + | $0 | |
| (+) Non-Senior Appraised Value: | + | $824,910 | |
| | | -------------------------- | |
| (=) Total Appraised Value: | = | $824,910 | |
| (–) Senior Exemption Loss: | – | $0 | |
| (–) Exemption Loss: | – | $0 | |
| | | -------------------------- | |
| (=) Taxable Value: | = | $824,910 | |
Taxing Jurisdiction
| Owner: | HOPKINS, POLLY SMITH | | |
| % Ownership: | 100.0000000000% | | |
| Total Value: | $824,910 | | |
| Tax Area: | 510 - APPRAISER-Stan/Cam Schl Dist, improved & 1 acre or less |
| CF | Conservation Futures | 0.0313996660 | $824,910 | $824,910 | $25.90 | | |
| EMS1 | Fire & Rescue Dist #1 Camano GEN (EMS) | 0.4998471806 | $824,910 | $824,910 | $412.33 | | |
| FIRE1 | Fire & Rescue Dist #1 Camano GEN | 1.2496603404 | $824,910 | $824,910 | $1,030.86 | | |
| FIRE1BOND | Fire & Rescue Dist #1 Camano BOND | 0.1630371212 | $824,910 | $824,910 | $134.49 | | |
| CE | County Current Expense | 0.3674210519 | $824,910 | $824,910 | $303.09 | | |
| CR | County Roads | 0.4614296361 | $824,910 | $824,910 | $380.64 | | |
| LIB | Library Sno-Isle GEN | 0.3039084203 | $824,910 | $824,910 | $250.70 | | |
| SCH205_401 | School 205-401 Enrichment | 1.3697998934 | $824,910 | $824,910 | $1,129.96 | | |
| SCH205BOND | School 205-401 BOND | 0.9354199323 | $824,910 | $824,910 | $771.64 | | |
| ST | State School | 1.4761226122 | $824,910 | $824,910 | $1,217.67 | | |
| ST2 | State School Part 2 | 0.7953803475 | $824,910 | $824,910 | $656.12 | | |
| | Total Tax Rate: | 7.6534262019 | | | | | |
| | | | | Taxes w/Current Exemptions: | $6,313.40 | | |
| | | | | Taxes w/o Exemptions: | $6,313.40 | | |
Improvement / Building
| Improvement #1: | RESIDENTIAL | State Code: | Y | 1567.8 sqft | Value: | $199,410 |
| Bathrooms: | 1.5 | Bedrooms: | 2 | | Ceiling: | DRYWALL PAINTED | Exterior Wall/Cover: | ASBESTOES/ASPHALT | | Floor Covering: | VINYL 100% | Floor Structure: | WOOD W/SUBFLOOR | | Foundation: | CONCRETE | Heating: | BASEBOARD ELECTRIC | | Interior Finish: | DRYWALL PAINT | Plumbing Fixture Cnt: | 8 | | Roof Slope: | 8" IN 12" | Roof Structure/Cover: | CJ ASPHALT |
|
| | Type | Description | Class CD | Sub Class CD | Year Built | Area |
| | BAS | BASE/MAIN FLOOR | 3 | 0 | 1943 | 921.8 |
| | OP4 | OPEN PORCH W/CEILING-ROOF | 3 | 0 | 1943 | 77.5 |
| | UTY | STORAGE/UTILITY | 3 | 0 | 1943 | 90.0 |
| | UPS | UPPER STORY | 3 | 0 | 1943 | 646.0 |
| | OWP | OPEN WOOD PORCH W/STEPS | 3 | 0 | 1943 | 36.0 |
| | OWR | OPEN WOOD PORCH W/STEPS/ROOF | 3 | 0 | 1943 | 28.0 |
| | DGR | DETACHED GARAGE | 3 | 0 | 1943 | 504.0 |
| | UTY | STORAGE/UTILITY | 3 | 0 | 1943 | 240.0 |
Sketch
Property Image
Land
| 1 | MB | MEDIUM BANK | 0.0000 | 0.00 | 50.00 | 0.00 | 1.00 | $625,000 | $0 |
| 2 | 55 | TIDES | 0.0000 | 0.00 | 50.00 | 0.00 | 1.00 | $500 | $0 |
Roll Value History
| 2026 | N/A | N/A | N/A | N/A | N/A |
| 2025 | $199,410 | $625,500 | $0 | $824,910 | $824,910 |
| 2024 | $206,863 | $625,500 | $0 | $832,363 | $832,363 |
| 2023 | $209,984 | $625,500 | $0 | $835,484 | $835,484 |
| 2022 | $99,155 | $650,500 | $0 | $749,655 | $749,655 |
| 2021 | $88,598 | $550,500 | $0 | $639,098 | $639,098 |
| 2020 | $87,696 | $450,500 | $0 | $538,196 | $538,196 |
| 2019 | $64,567 | $450,500 | $0 | $515,067 | $515,067 |
| 2018 | $64,979 | $450,500 | $0 | $515,479 | $515,479 |
| 2017 | $61,145 | $450,500 | $0 | $511,645 | $511,645 |
| 2016 | $46,736 | $450,500 | $0 | $497,236 | $497,236 |
| 2015 | $46,736 | $450,500 | $0 | $497,236 | $497,236 |
| 2014 | $46,736 | $450,500 | $0 | $497,236 | $497,236 |
| 2013 | $48,011 | $400,247 | $0 | $448,258 | $448,258 |
| 2012 | $49,287 | $400,247 | $0 | $449,534 | $449,534 |
| 2011 | $50,565 | $500,184 | $0 | $550,749 | $550,749 |
| 2010 | $69,220 | $500,184 | $0 | $569,404 | $569,404 |
| 2009 | $71,092 | $538,377 | $0 | $609,469 | $609,469 |
| 2008 | $72,607 | $650,567 | $0 | $723,174 | $723,174 |
| 2007 | $74,121 | $576,219 | $0 | $650,340 | $650,340 |
Deed and Sales History
| 1 | 06/14/2023 | WD | Warranty Deed | SMITH, ALICE C | HOPKINS, POLLY SMITH | | | $736,702.00 | 57026 | 4561136 |
Payout Agreement
| No payout information available.. |