Property
Account |
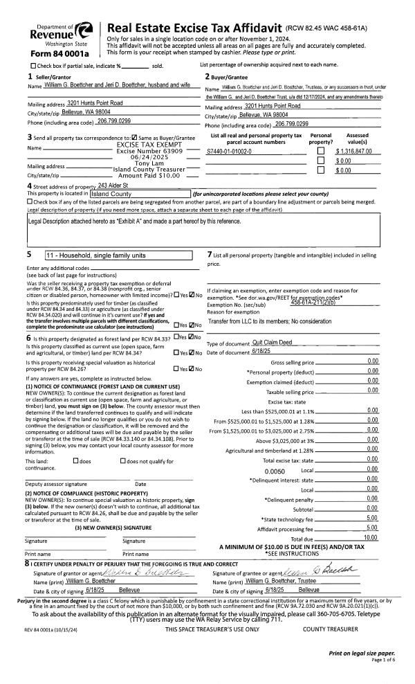
| Property ID: | 315992 | Abbreviated Legal Description: | MADRONA BCH 1ST LOT 2 BLK 1 |
| Geographic ID: | S7440-01-01002-0 | Agent Code: | |
| Type: | Real | | |
| Tax Area: | 510 - APPRAISER-Stan/Cam Schl Dist, improved & 1 acre or less | Land Use Code | 11 |
| Open Space: | N | DFL | N |
| Historic Property: | N | Remodel Property: | N |
| Multi-Family Redevelopment: | N | | |
| Township: | | Section: | |
| Range: | |
Location |
| Address: | 243 ALDER ST CAMANO ISLAND, WA 98282 | Mapsco: | |
| Neighborhood: | North Camano | Map ID: | 574 |
| Neighborhood CD: | 06-C |
Owner |
| Name: | BOETTCER TTEE, WILLIAM G | Owner ID: | 317073 |
| Mailing Address: | JERI D BOETTCHER TTEE 3201 HUNTS POINT RD BELLEVUE, WA 98004 | % Ownership: | 100.0000000000% |
| | | Exemptions: | |
Taxes and Assessment Details
Values
| (+) Improvement Homesite Value: | + | $0 | |
| (+) Improvement Non-Homesite Value: | + | $716,847 | |
| (+) Land Homesite Value: | + | $0 | |
| (+) Land Non-Homesite Value: | + | $600,000 | |
| (+) Curr Use (HS): | + | $0 | $0 |
| (+) Curr Use (NHS): | + | $0 | $0 |
| | | -------------------------- | |
| (=) Market Value: | = | $1,316,847 | |
| (–) Productivity Loss: | – | $0 | |
| | | -------------------------- | |
| (=) Subtotal: | = | $1,316,847 | |
| (+) Senior Appraised Value: | + | $0 | |
| (+) Non-Senior Appraised Value: | + | $1,316,847 | |
| | | -------------------------- | |
| (=) Total Appraised Value: | = | $1,316,847 | |
| (–) Senior Exemption Loss: | – | $0 | |
| (–) Exemption Loss: | – | $0 | |
| | | -------------------------- | |
| (=) Taxable Value: | = | $1,316,847 | |
Taxing Jurisdiction
| Owner: | BOETTCER TTEE, WILLIAM G | | |
| % Ownership: | 100.0000000000% | | |
| Total Value: | $1,316,847 | | |
| Tax Area: | 510 - APPRAISER-Stan/Cam Schl Dist, improved & 1 acre or less |
| CF | Conservation Futures | 0.0313996660 | $1,316,847 | $1,316,847 | $41.35 | | |
| EMS1 | Fire & Rescue Dist #1 Camano GEN (EMS) | 0.4998471806 | $1,316,847 | $1,316,847 | $658.22 | | |
| FIRE1 | Fire & Rescue Dist #1 Camano GEN | 1.2496603404 | $1,316,847 | $1,316,847 | $1,645.61 | | |
| FIRE1BOND | Fire & Rescue Dist #1 Camano BOND | 0.1630371212 | $1,316,847 | $1,316,847 | $214.69 | | |
| CE | County Current Expense | 0.3674210519 | $1,316,847 | $1,316,847 | $483.84 | | |
| CR | County Roads | 0.4614296361 | $1,316,847 | $1,316,847 | $607.63 | | |
| LIB | Library Sno-Isle GEN | 0.3039084203 | $1,316,847 | $1,316,847 | $400.20 | | |
| SCH205_401 | School 205-401 Enrichment | 1.3697998934 | $1,316,847 | $1,316,847 | $1,803.82 | | |
| SCH205BOND | School 205-401 BOND | 0.9354199323 | $1,316,847 | $1,316,847 | $1,231.80 | | |
| ST | State School | 1.4761226122 | $1,316,847 | $1,316,847 | $1,943.83 | | |
| ST2 | State School Part 2 | 0.7953803475 | $1,316,847 | $1,316,847 | $1,047.39 | | |
| | Total Tax Rate: | 7.6534262019 | | | | | |
| | | | | Taxes w/Current Exemptions: | $10,078.38 | | |
| | | | | Taxes w/o Exemptions: | $10,078.38 | | |
Improvement / Building
| Improvement #1: | RESIDENTIAL | State Code: | Y | 3491.4 sqft | Value: | $716,847 |
| Bathrooms: | 3.75 | Bedrooms: | 4 | | Ceiling: | DRYWALL PAINTED | Cooling: | HEAT PUMP/CONV/V | | Exterior Wall/Cover: | CEMENT FIBER | Floor Covering: | CERAMIC TILE/CPT 40-60 | | Floor Structure: | WOOD W/SUBFLOOR | Foundation: | CONCRETE | | Interior Finish: | DRYWALL PAINT | Plumbing Fixture Cnt: | 15 | | Roof Slope: | 5" IN 12" | Roof Structure/Cover: | CJ ASPHALT |
|
| | Type | Description | Class CD | Sub Class CD | Year Built | Area |
| | BAS | BASE/MAIN FLOOR | 5 | 0 | 1925 | 1219.1 |
| | OP1 | OPEN PORCH SLAB | 5 | 0 | 1925 | 341.0 |
| | OP4 | OPEN PORCH W/CEILING-ROOF | 5 | 0 | 1925 | 186.0 |
| | UTY | STORAGE/UTILITY | 5 | 0 | 1925 | 33.0 |
| | UPS | UPPER STORY | 5 | 0 | 1925 | 1053.2 |
| | OWP | OPEN WOOD PORCH W/STEPS | 5 | 0 | 1925 | 62.0 |
| | OWP | OPEN WOOD PORCH W/STEPS | 5 | 0 | 1925 | 124.5 |
| | OWC | OPEN WOOD PORCH W/STEPS/ROOF/C | 5 | 0 | 1925 | 30.0 |
| | DWN | DOWNSTAIRS LIVING AREA | 5 | 0 | 1925 | 1219.1 |
| | OCP | OPEN CARPORT | 5 | 0 | 1925 | 480.0 |
Sketch
Property Image
Land
| 1 | LB | LOW BANK | 0.0000 | 0.00 | 50.00 | 0.00 | 1.00 | $600,000 | $0 |
Roll Value History
| 2026 | N/A | N/A | N/A | N/A | N/A |
| 2025 | $716,847 | $600,000 | $0 | $1,316,847 | $1,316,847 |
| 2024 | $722,871 | $600,000 | $0 | $1,322,871 | $1,322,871 |
| 2023 | $729,294 | $600,000 | $0 | $1,329,294 | $1,329,294 |
| 2022 | $516,965 | $650,000 | $0 | $1,166,965 | $1,166,965 |
| 2021 | $454,873 | $550,000 | $0 | $1,004,873 | $1,004,873 |
| 2020 | $443,997 | $450,000 | $0 | $893,997 | $893,997 |
| 2019 | $278,296 | $450,000 | $0 | $728,296 | $728,296 |
| 2018 | $279,095 | $450,000 | $0 | $729,095 | $729,095 |
| 2017 | $280,689 | $450,000 | $0 | $730,689 | $730,689 |
| 2016 | $268,610 | $450,000 | $0 | $718,610 | $718,610 |
| 2015 | $271,629 | $450,000 | $0 | $721,629 | $721,629 |
| 2014 | $274,646 | $450,000 | $0 | $724,646 | $724,646 |
| 2013 | $274,646 | $399,747 | $0 | $674,393 | $674,393 |
| 2012 | $276,360 | $399,747 | $0 | $676,107 | $676,107 |
| 2011 | $279,366 | $499,684 | $0 | $779,050 | $779,050 |
| 2010 | $139,860 | $499,684 | $0 | $639,544 | $639,544 |
| 2009 | $126,485 | $537,877 | $0 | $664,362 | $664,362 |
| 2008 | $128,345 | $551,959 | $0 | $680,304 | $680,304 |
| 2007 | $128,345 | $353,279 | $0 | $481,624 | $481,624 |
Deed and Sales History
| 1 | 06/18/2025 | QCD | Quit Claim Deed | BOETTCHER, WILLIAM G | BOETTCER TTEE, WILLIAM G | | | $0.00 | 63909 | 4587340 |
| 2 | 12/17/2024 | QCD | Quit Claim Deed | J BOETTCHER PROPERTIES, LLC | BOETTCHER, WILLIAM G | | | $0.00 | 62260 | 4581042 |
| 3 | 08/19/2020 | WD | Warranty Deed | CAMANO ISLAND ALDER HOUSE, LLC | J BOETTCHER PROPERTIES, LLC | | | $0.00 | 44781 | 4496805 |
| 4 | 08/12/2019 | WD | Warranty Deed | NELSON, SCOTT W | CAMANO ISLAND ALDER HOUSE, LLC | | | $1,300,000.00 | 39879 | 4469446 |
| 5 | 07/23/2003 | WD | Warranty Deed | PLUTE, KENNETH G | NELSON, SCOTT W | | | $425,000.00 | 33166 | 4067898 |
| 6 | 08/01/1986 | QCD | Quit Claim Deed | TAYLOR, ELINA B | PLUTE, KENNETH G | | | $0.00 | 62359 | 86010726 |
| 7 | 01/01/1900 | OTHER | Other - Misc. Documents | Unknown | TAYLOR, ELINA B | | | $0.00 | 0 | 0 |
Payout Agreement
| No payout information available.. |