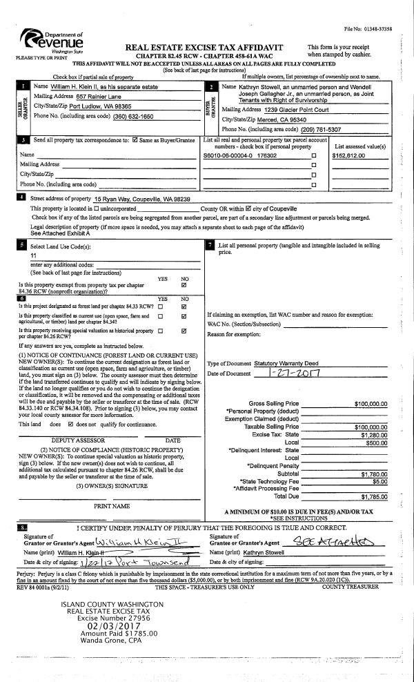
Property
Account |
| Property ID: | 316731 | Abbreviated Legal Description: | MADRONA BCH 1ST LOT 12 BLK 11 |
| Geographic ID: | S7440-01-11012-0 | Agent Code: | |
| Type: | Real | | |
| Tax Area: | 510 - APPRAISER-Stan/Cam Schl Dist, improved & 1 acre or less | Land Use Code | 11 |
| Open Space: | N | DFL | N |
| Historic Property: | N | Remodel Property: | N |
| Multi-Family Redevelopment: | N | | |
| Township: | | Section: | |
| Range: | |
Location |
| Address: | 936 2ND ST CAMANO ISLAND, WA 98282 | Mapsco: | |
| Neighborhood: | North Camano | Map ID: | 573 |
| Neighborhood CD: | 06-C |
Owner |
| Name: | GORDAN, IAN W & MAUREEN M | Owner ID: | 66120 |
| Mailing Address: | 8760 GREENWOOD AVE N #N408 SEATTLE, WA 98103 | % Ownership: | 100.0000000000% |
| | | Exemptions: | |
Taxes and Assessment Details
Values
| (+) Improvement Homesite Value: | + | $0 | |
| (+) Improvement Non-Homesite Value: | + | $75,175 | |
| (+) Land Homesite Value: | + | $0 | |
| (+) Land Non-Homesite Value: | + | $260,000 | |
| (+) Curr Use (HS): | + | $0 | $0 |
| (+) Curr Use (NHS): | + | $0 | $0 |
| | | -------------------------- | |
| (=) Market Value: | = | $335,175 | |
| (–) Productivity Loss: | – | $0 | |
| | | -------------------------- | |
| (=) Subtotal: | = | $335,175 | |
| (+) Senior Appraised Value: | + | $0 | |
| (+) Non-Senior Appraised Value: | + | $335,175 | |
| | | -------------------------- | |
| (=) Total Appraised Value: | = | $335,175 | |
| (–) Senior Exemption Loss: | – | $0 | |
| (–) Exemption Loss: | – | $0 | |
| | | -------------------------- | |
| (=) Taxable Value: | = | $335,175 | |
Taxing Jurisdiction
| Owner: | GORDAN, IAN W & MAUREEN M | | |
| % Ownership: | 100.0000000000% | | |
| Total Value: | $335,175 | | |
| Tax Area: | 510 - APPRAISER-Stan/Cam Schl Dist, improved & 1 acre or less |
| CF | Conservation Futures | 0.0313996660 | $335,175 | $335,175 | $10.52 | | |
| EMS1 | Fire & Rescue Dist #1 Camano GEN (EMS) | 0.4998471806 | $335,175 | $335,175 | $167.54 | | |
| FIRE1 | Fire & Rescue Dist #1 Camano GEN | 1.2496603404 | $335,175 | $335,175 | $418.85 | | |
| FIRE1BOND | Fire & Rescue Dist #1 Camano BOND | 0.1630371212 | $335,175 | $335,175 | $54.65 | | |
| CE | County Current Expense | 0.3674210519 | $335,175 | $335,175 | $123.15 | | |
| CR | County Roads | 0.4614296361 | $335,175 | $335,175 | $154.66 | | |
| LIB | Library Sno-Isle GEN | 0.3039084203 | $335,175 | $335,175 | $101.86 | | |
| SCH205_401 | School 205-401 Enrichment | 1.3697998934 | $335,175 | $335,175 | $459.12 | | |
| SCH205BOND | School 205-401 BOND | 0.9354199323 | $335,175 | $335,175 | $313.53 | | |
| ST | State School | 1.4761226122 | $335,175 | $335,175 | $494.76 | | |
| ST2 | State School Part 2 | 0.7953803475 | $335,175 | $335,175 | $266.59 | | |
| | Total Tax Rate: | 7.6534262019 | | | | | |
| | | | | Taxes w/Current Exemptions: | $2,565.23 | | |
| | | | | Taxes w/o Exemptions: | $2,565.23 | | |
Improvement / Building
| Improvement #1: | RESIDENTIAL | State Code: | Y | 781.0 sqft | Value: | $75,175 |
| Bathrooms: | 1 | Bedrooms: | 0 | | Ceiling: | ACOUSTIC FURRED | Exterior Wall/Cover: | WOOD SIDING | | Floor Covering: | CARPET/VINYL 60-40 | Floor Structure: | WOOD W/SUBFLOOR | | Foundation: | WOOD BLOCKS | Heating: | BASEBOARD ELECTRIC | | Interior Finish: | DRYWALL PAINT | Plumbing Fixture Cnt: | 5 | | Roof Slope: | 5" IN 12" | Roof Structure/Cover: | CJ ASPHALT |
|
| | Type | Description | Class CD | Sub Class CD | Year Built | Area |
| | BAS | BASE/MAIN FLOOR | 3 | 0 | 1928 | 781.0 |
| | OWP | OPEN WOOD PORCH W/STEPS | 3 | 0 | 1928 | 216.0 |
| | OWR | OPEN WOOD PORCH W/STEPS/ROOF | 3 | 0 | 1928 | 119.0 |
Sketch
Property Image
Land
| 1 | 12 | SQ (00000-06000) | 0.0000 | 0.00 | 0.00 | 0.00 | 1.00 | $260,000 | $0 |
Roll Value History
| 2026 | N/A | N/A | N/A | N/A | N/A |
| 2025 | $75,175 | $260,000 | $0 | $335,175 | $335,175 |
| 2024 | $78,565 | $260,000 | $0 | $338,565 | $338,565 |
| 2023 | $80,262 | $260,000 | $0 | $340,262 | $340,262 |
| 2022 | $66,526 | $240,000 | $0 | $306,526 | $306,526 |
| 2021 | $59,186 | $200,000 | $0 | $259,186 | $259,186 |
| 2020 | $58,199 | $160,000 | $0 | $218,199 | $218,199 |
| 2019 | $41,237 | $170,000 | $0 | $211,237 | $211,237 |
| 2018 | $41,459 | $140,000 | $0 | $181,459 | $181,459 |
| 2017 | $41,905 | $120,000 | $0 | $161,905 | $161,905 |
| 2016 | $42,353 | $90,000 | $0 | $132,353 | $132,353 |
| 2015 | $43,236 | $66,400 | $0 | $109,636 | $109,636 |
| 2014 | $44,119 | $66,400 | $0 | $110,519 | $110,519 |
| 2013 | $45,000 | $66,400 | $0 | $111,400 | $111,400 |
| 2012 | $45,883 | $66,400 | $0 | $112,283 | $112,283 |
| 2011 | $46,764 | $83,000 | $0 | $129,764 | $129,764 |
| 2010 | $46,253 | $83,000 | $0 | $129,253 | $129,253 |
| 2009 | $47,570 | $100,000 | $0 | $147,570 | $147,570 |
| 2008 | $48,432 | $100,000 | $0 | $148,432 | $148,432 |
| 2007 | $49,294 | $100,000 | $0 | $149,294 | $149,294 |
Deed and Sales History
| 1 | 07/01/1995 | WD | Warranty Deed | L'ESPERANCE, JOHN J | GORDAN, IAN W | | | $64,465.00 | 52502 | 95011559 |
| 2 | 11/01/1987 | WD | Warranty Deed | HUNDERTMARK, FRED R | L'ESPERANCE, JOHN J | | | $31,700.00 | 73628 | 87015790 |
| 3 | 01/01/1900 | OTHER | Other - Misc. Documents | Unknown | HUNDERTMARK, FRED R | | | $0.00 | 0 | 0 |
Payout Agreement
| No payout information available.. |