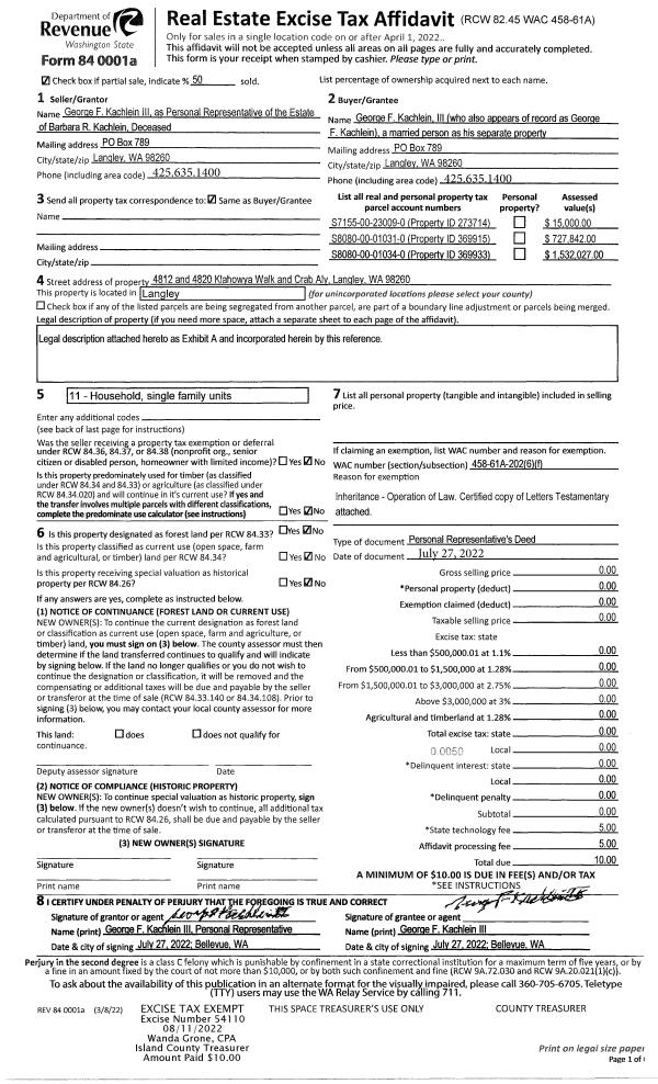
Property
Account |
| Property ID: | 316777 | Abbreviated Legal Description: | MADRONA BCH 1ST LOT 4 BLK 12 |
| Geographic ID: | S7440-01-12004-0 | Agent Code: | |
| Type: | Real | | |
| Tax Area: | 510 - APPRAISER-Stan/Cam Schl Dist, improved & 1 acre or less | Land Use Code | 11 |
| Open Space: | N | DFL | N |
| Historic Property: | N | Remodel Property: | N |
| Multi-Family Redevelopment: | N | | |
| Township: | | Section: | |
| Range: | |
Location |
| Address: | 162 N SUNSET DR CAMANO ISLAND, WA 98282 | Mapsco: | |
| Neighborhood: | North Camano | Map ID: | 573 |
| Neighborhood CD: | 06-C |
Owner |
| Name: | SHAW, WILLIAM G | Owner ID: | 291335 |
| Mailing Address: | MARYBETH HAGGERTY-SHAW 260 MT PILCHUCK DR SW ISSAQUAH, WA 98027 | % Ownership: | 100.0000000000% |
| | | Exemptions: | |
Taxes and Assessment Details
Values
| (+) Improvement Homesite Value: | + | $0 | |
| (+) Improvement Non-Homesite Value: | + | $115,911 | |
| (+) Land Homesite Value: | + | $0 | |
| (+) Land Non-Homesite Value: | + | $260,000 | |
| (+) Curr Use (HS): | + | $0 | $0 |
| (+) Curr Use (NHS): | + | $0 | $0 |
| | | -------------------------- | |
| (=) Market Value: | = | $375,911 | |
| (–) Productivity Loss: | – | $0 | |
| | | -------------------------- | |
| (=) Subtotal: | = | $375,911 | |
| (+) Senior Appraised Value: | + | $0 | |
| (+) Non-Senior Appraised Value: | + | $375,911 | |
| | | -------------------------- | |
| (=) Total Appraised Value: | = | $375,911 | |
| (–) Senior Exemption Loss: | – | $0 | |
| (–) Exemption Loss: | – | $0 | |
| | | -------------------------- | |
| (=) Taxable Value: | = | $375,911 | |
Taxing Jurisdiction
| Owner: | SHAW, WILLIAM G | | |
| % Ownership: | 100.0000000000% | | |
| Total Value: | $375,911 | | |
| Tax Area: | 510 - APPRAISER-Stan/Cam Schl Dist, improved & 1 acre or less |
| CF | Conservation Futures | 0.0313996660 | $375,911 | $375,911 | $11.80 | | |
| EMS1 | Fire & Rescue Dist #1 Camano GEN (EMS) | 0.4998471806 | $375,911 | $375,911 | $187.90 | | |
| FIRE1 | Fire & Rescue Dist #1 Camano GEN | 1.2496603404 | $375,911 | $375,911 | $469.76 | | |
| FIRE1BOND | Fire & Rescue Dist #1 Camano BOND | 0.1630371212 | $375,911 | $375,911 | $61.29 | | |
| CE | County Current Expense | 0.3674210519 | $375,911 | $375,911 | $138.12 | | |
| CR | County Roads | 0.4614296361 | $375,911 | $375,911 | $173.46 | | |
| LIB | Library Sno-Isle GEN | 0.3039084203 | $375,911 | $375,911 | $114.24 | | |
| SCH205_401 | School 205-401 Enrichment | 1.3697998934 | $375,911 | $375,911 | $514.92 | | |
| SCH205BOND | School 205-401 BOND | 0.9354199323 | $375,911 | $375,911 | $351.63 | | |
| ST | State School | 1.4761226122 | $375,911 | $375,911 | $554.89 | | |
| ST2 | State School Part 2 | 0.7953803475 | $375,911 | $375,911 | $298.99 | | |
| | Total Tax Rate: | 7.6534262019 | | | | | |
| | | | | Taxes w/Current Exemptions: | $2,877.00 | | |
| | | | | Taxes w/o Exemptions: | $2,877.00 | | |
Improvement / Building
| Improvement #1: | RESIDENTIAL | State Code: | Y | 623.0 sqft | Value: | $115,911 |
| Bathrooms: | 1 | Bedrooms: | 0 | | Ceiling: | DRYWALL PAINTED | Exterior Wall/Cover: | WOOD SIDING | | Floor Covering: | VINYL 100% | Floor Structure: | WOOD W/SUBFLOOR | | Foundation: | WOOD BLOCKS | Heating: | BASEBOARD ELECTRIC | | Interior Finish: | DRYWALL PAINT | Plumbing Fixture Cnt: | 5 | | Roof Slope: | 3" IN 12" | Roof Structure/Cover: | CJ ASPHALT |
|
| | Type | Description | Class CD | Sub Class CD | Year Built | Area |
| | BAS | BASE/MAIN FLOOR | 3 | 0 | 1920 | 623.0 |
| | UTY | STORAGE/UTILITY | 3 | 0 | 1920 | 30.0 |
| | OWR | OPEN WOOD PORCH W/STEPS/ROOF | 3 | 0 | 1920 | 96.0 |
| | OWR | OPEN WOOD PORCH W/STEPS/ROOF | 3 | 0 | 1920 | 135.0 |
| | OWP | OPEN WOOD PORCH W/STEPS | 3 | 0 | 1920 | 300.0 |
Sketch
Property Image
Land
| 1 | 12 | SQ (00000-06000) | 0.0000 | 3998.81 | 0.00 | 0.00 | 1.00 | $260,000 | $0 |
Roll Value History
| 2026 | N/A | N/A | N/A | N/A | N/A |
| 2025 | $115,911 | $260,000 | $0 | $375,911 | $375,911 |
| 2024 | $120,025 | $260,000 | $0 | $380,025 | $380,025 |
| 2023 | $121,642 | $260,000 | $0 | $381,642 | $381,642 |
| 2022 | $106,025 | $240,000 | $0 | $346,025 | $346,025 |
| 2021 | $93,403 | $200,000 | $0 | $293,403 | $293,403 |
| 2020 | $90,809 | $160,000 | $0 | $250,809 | $250,809 |
| 2019 | $48,291 | $170,000 | $0 | $218,291 | $218,291 |
| 2018 | $48,482 | $140,000 | $0 | $188,482 | $188,482 |
| 2017 | $45,319 | $130,000 | $0 | $175,319 | $175,319 |
| 2016 | $18,067 | $130,000 | $0 | $148,067 | $148,067 |
| 2015 | $18,067 | $92,800 | $0 | $110,867 | $110,867 |
| 2014 | $18,668 | $92,800 | $0 | $111,468 | $111,468 |
| 2013 | $19,270 | $92,800 | $0 | $112,070 | $112,070 |
| 2012 | $19,873 | $92,800 | $0 | $112,673 | $112,673 |
| 2011 | $20,475 | $116,000 | $0 | $136,475 | $136,475 |
| 2010 | $23,652 | $116,000 | $0 | $139,652 | $139,652 |
| 2009 | $24,993 | $195,000 | $0 | $219,993 | $219,993 |
| 2008 | $25,628 | $195,000 | $0 | $220,628 | $220,628 |
| 2007 | $26,264 | $223,000 | $0 | $249,264 | $249,264 |
Deed and Sales History
| 1 | 08/13/2019 | WD | Warranty Deed | SCHLECHT, TIM | SHAW, WILLIAM G | | | $353,225.00 | 39848 | 4469325 |
| 2 | 08/16/2016 | WD | Warranty Deed | CHINN, LINDA D | SCHLECHT, TIM | | | $185,000.00 | 25810 | 4405764 |
| 3 | 10/01/1983 | REC | Real Estate Contract | UDY, DONALD R | CHINN, LINDA D | | | $31,500.00 | 33658 | 418791 |
| 4 | 01/01/1900 | OTHER | Other - Misc. Documents | Unknown | UDY, DONALD R | | | $0.00 | 0 | 0 |
Payout Agreement
| No payout information available.. |