Property
Account |
| Property ID: | 31691 | Abbreviated Legal Description: | 43 - IN SW NW: S90' OF N412 OF W208' OF S/2 SW NW |
| Geographic ID: | R13301-292-0100 | Agent Code: | |
| Type: | Real | | |
| Tax Area: | 110 - APPRAISER-OH Schl Dist, outside OH, improved & 1 acre or less | Land Use Code | 11 |
| Open Space: | N | DFL | N |
| Historic Property: | N | Remodel Property: | N |
| Multi-Family Redevelopment: | N | | |
| Township: | 33 | Section: | 01 |
| Range: | R1 |
Location |
| Address: | 4622 MONKEY HILL RD OAK HARBOR, WA 98277 | Mapsco: | |
| Neighborhood: | Cycle 6 | Map ID: | 191 |
| Neighborhood CD: | 6 |
Owner |
| Name: | LAMCRECHT, MICHAEL | Owner ID: | 312507 |
| Mailing Address: | JESSICA TRUMBLE 4622 MONKEY HILL RD OAK HARBOR, WA 98277 | % Ownership: | 100.0000000000% |
| | | Exemptions: | |
Taxes and Assessment Details
Values
| (+) Improvement Homesite Value: | + | $0 | |
| (+) Improvement Non-Homesite Value: | + | $187,016 | |
| (+) Land Homesite Value: | + | $0 | |
| (+) Land Non-Homesite Value: | + | $190,000 | |
| (+) Curr Use (HS): | + | $0 | $0 |
| (+) Curr Use (NHS): | + | $0 | $0 |
| | | -------------------------- | |
| (=) Market Value: | = | $377,016 | |
| (–) Productivity Loss: | – | $0 | |
| | | -------------------------- | |
| (=) Subtotal: | = | $377,016 | |
| (+) Senior Appraised Value: | + | $0 | |
| (+) Non-Senior Appraised Value: | + | $377,016 | |
| | | -------------------------- | |
| (=) Total Appraised Value: | = | $377,016 | |
| (–) Senior Exemption Loss: | – | $0 | |
| (–) Exemption Loss: | – | $0 | |
| | | -------------------------- | |
| (=) Taxable Value: | = | $377,016 | |
Taxing Jurisdiction
| Owner: | LAMCRECHT, MICHAEL | | |
| % Ownership: | 100.0000000000% | | |
| Total Value: | $377,016 | | |
| Tax Area: | 110 - APPRAISER-OH Schl Dist, outside OH, improved & 1 acre or less |
| CF | Conservation Futures | 0.0313996660 | $377,016 | $377,016 | $11.84 | | |
| CEM1 | Cemetery #1 | 0.0040018856 | $377,016 | $377,016 | $1.51 | | |
| FIRE2 | Fire & Rescue Dist #2 N Whidbey GEN | 0.5381486274 | $377,016 | $377,016 | $202.89 | | |
| HOBOND | Hospital BOND | 0.1893405597 | $377,016 | $377,016 | $71.38 | | |
| HOGEN | Hospital GEN | 0.3848777722 | $377,016 | $377,016 | $145.11 | | |
| CE | County Current Expense | 0.3674210519 | $377,016 | $377,016 | $138.52 | | |
| CR | County Roads | 0.4614296361 | $377,016 | $377,016 | $173.97 | | |
| ISLANDEMS | Hospital GEN (EMS) | 0.4952018576 | $377,016 | $377,016 | $186.70 | | |
| LIB | Library Sno-Isle GEN | 0.3039084203 | $377,016 | $377,016 | $114.58 | | |
| NWHIDPRMT | P & R N Whidbey GEN | 0.1990272349 | $377,016 | $377,016 | $75.04 | | |
| SCH201MO | School 201 Enrichment | 2.3851112745 | $377,016 | $377,016 | $899.23 | | |
| ST | State School | 1.4761226122 | $377,016 | $377,016 | $556.52 | | |
| ST2 | State School Part 2 | 0.7953803475 | $377,016 | $377,016 | $299.87 | | |
| | Total Tax Rate: | 7.6313709459 | | | | | |
| | | | | Taxes w/Current Exemptions: | $2,877.16 | | |
| | | | | Taxes w/o Exemptions: | $2,877.16 | | |
Improvement / Building
| Improvement #1: | RESIDENTIAL | State Code: | Y | 961.0 sqft | Value: | $187,016 |
| Bathrooms: | 1 | Bedrooms: | 2 | | Ceiling: | TONGUE & GROOVE | Exterior Wall/Cover: | LOG TO 10" | | Floor Covering: | SOFTWOOD/VINYL 80-20 | Floor Structure: | WOOD W/SUBFLOOR | | Foundation: | CONCRETE | Heating: | BASEBOARD ELECTRIC | | Interior Finish: | DRYWALL PAINT | Plumbing Fixture Cnt: | 5 | | Roof Slope: | FLAT | Roof Structure/Cover: | BEAM BUILT-UP ROCK |
|
| | Type | Description | Class CD | Sub Class CD | Year Built | Area |
| | BAS | BASE/MAIN FLOOR | 3 | 0 | 1959 | 961.0 |
| | OWR | OPEN WOOD PORCH W/STEPS/ROOF | 3 | 0 | 1959 | 248.0 |
| | ENP | ENCLOSED PORCH | 3 | 0 | 1959 | 80.0 |
| | DGR | DETACHED GARAGE | 3 | 0 | 1959 | 336.0 |
Sketch
Property Image
Land
| 1 | 15 | SQ (12001-21780) | 0.0000 | 0.00 | 0.00 | 0.00 | 1.00 | $190,000 | $0 |
Roll Value History
| 2026 | N/A | N/A | N/A | N/A | N/A |
| 2025 | $187,016 | $190,000 | $0 | $377,016 | $377,016 |
| 2024 | $190,473 | $240,000 | $0 | $430,473 | $430,473 |
| 2023 | $193,184 | $240,000 | $0 | $433,184 | $433,184 |
| 2022 | $172,476 | $220,000 | $0 | $392,476 | $392,476 |
| 2021 | $152,107 | $150,000 | $0 | $302,107 | $302,107 |
| 2020 | $148,768 | $140,000 | $0 | $288,768 | $288,768 |
| 2019 | $108,252 | $190,000 | $0 | $298,252 | $298,252 |
| 2018 | $108,623 | $125,000 | $0 | $233,623 | $233,623 |
| 2017 | $109,362 | $110,000 | $0 | $219,362 | $219,362 |
| 2016 | $50,451 | $85,000 | $0 | $135,451 | $135,451 |
| 2015 | $52,729 | $65,000 | $0 | $117,729 | $117,729 |
| 2014 | $53,901 | $63,750 | $0 | $117,651 | $117,651 |
| 2013 | $55,073 | $63,750 | $0 | $118,823 | $118,823 |
| 2012 | $56,246 | $63,750 | $0 | $119,996 | $119,996 |
| 2011 | $57,417 | $75,000 | $0 | $132,417 | $132,417 |
| 2010 | $77,906 | $75,000 | $0 | $152,906 | $152,906 |
| 2009 | $81,344 | $85,000 | $0 | $166,344 | $166,344 |
| 2008 | $82,879 | $85,000 | $0 | $167,879 | $167,879 |
| 2007 | $84,415 | $70,000 | $0 | $154,415 | $154,415 |
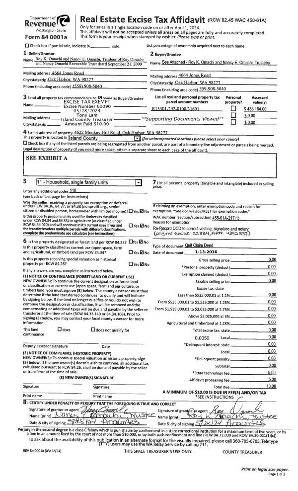
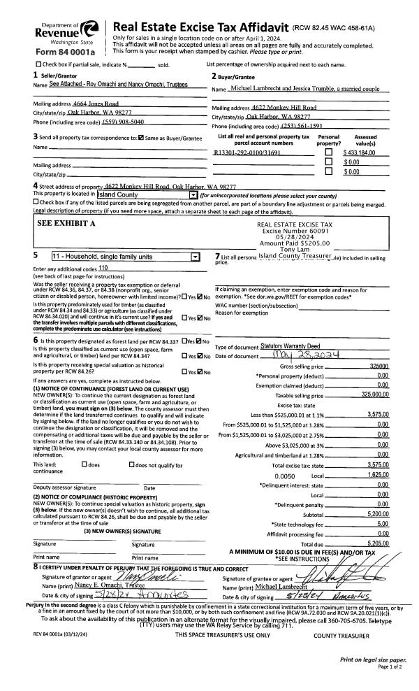
Deed and Sales History
| 1 | 05/28/2024 | WD | Warranty Deed | OMACHI TRUSTEE, ROY K | LAMCRECHT, MICHAEL | | | $325,000.00 | 60091 | 4572752 |
| 2 | 05/28/2024 | QCD | Quit Claim Deed | OMACHI TRUSTEE, ROY K | OMACHI TRUSTEE, ROY K | | | $0.00 | 60090 | 4572751 |
| 3 | 01/13/2016 | QCD | Quit Claim Deed | OMACHI TRUSTEE, ROY K | OMACHI TRUSTEE, ROY K | | | $0.00 | 22834 | 4392537 |
| 4 | 10/12/2015 | WD | Warranty Deed | LOWE, WARWICK | OMACHI TRUSTEE, ROY K | | | $99,000.00 | 21762 | 4387815 |
| 5 | 07/10/2015 | TRUSTEED | Trustee's Deed | PAULSEN, DAVID | LOWE, WARWICK | | | $0.00 | 20436 | 4382075 |
| 6 | 01/20/2006 | QCD | Quit Claim Deed | PAULSEN, JUDITH F | PAULSEN, DAVID | | | $0.00 | 60359 | 4160850 |
| 7 | 10/01/1996 | QCD | Quit Claim Deed | PAULSEN, JOHANNA I | PAULSEN, JUDITH F | | | $0.00 | 63754 | 96018133 |
| 8 | 02/01/1993 | OTHER | Other - Misc. Documents | PAULSON, CARL | PAULSEN, JOHANNA I | | | $0.00 | 65249 | 0 |
| 9 | 01/01/1900 | OTHER | Other - Misc. Documents | Unknown | PAULSON, CARL | | | $0.00 | 0 | 0 |
Payout Agreement
| No payout information available.. |