Property
Account |
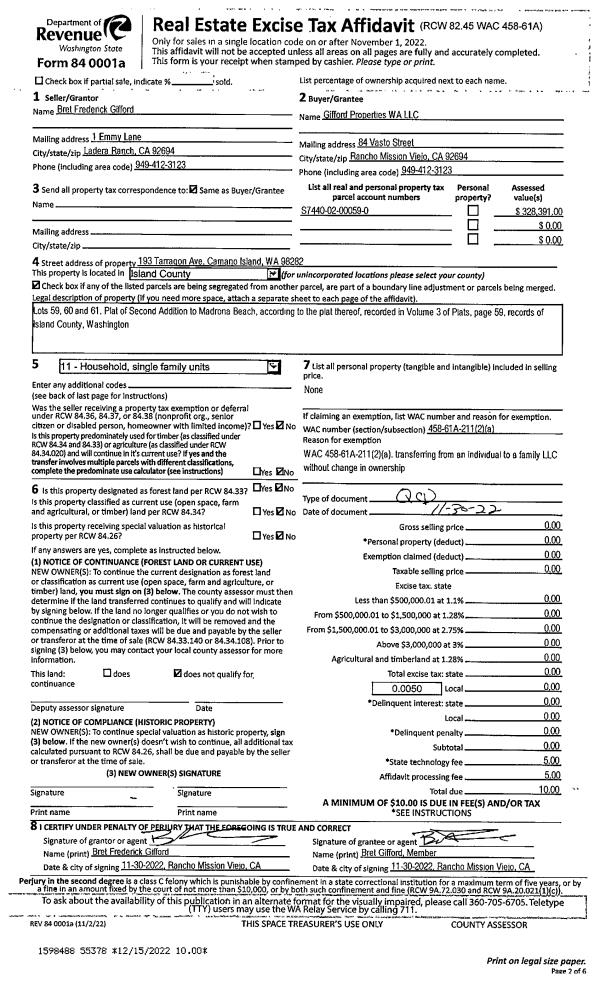
| Property ID: | 317348 | Abbreviated Legal Description: | Madrona Beach - 2nd Addition,s Lot 59, 60, 61,s Blk 02;s LOT COMB 4554504s |
| Geographic ID: | S7440-02-00059-0 | Agent Code: | |
| Type: | Real | | |
| Tax Area: | 510 - APPRAISER-Stan/Cam Schl Dist, improved & 1 acre or less | Land Use Code | 11 |
| Open Space: | N | DFL | N |
| Historic Property: | N | Remodel Property: | N |
| Multi-Family Redevelopment: | N | | |
| Township: | | Section: | |
| Range: | |
Location |
| Address: | | Mapsco: | |
| Neighborhood: | North Camano | Map ID: | 573 |
| Neighborhood CD: | 06-C |
Owner |
| Name: | GIFFORD, BRET FREDERICK | Owner ID: | 272547 |
| Mailing Address: | 34281 DOHENY PARK RD #7334 CAPISTRANO BEACH, CA 92624 | % Ownership: | 100.0000000000% |
| | | Exemptions: | |
Taxes and Assessment Details
Values
| (+) Improvement Homesite Value: | + | $0 | |
| (+) Improvement Non-Homesite Value: | + | $144,662 | |
| (+) Land Homesite Value: | + | $0 | |
| (+) Land Non-Homesite Value: | + | $260,000 | |
| (+) Curr Use (HS): | + | $0 | $0 |
| (+) Curr Use (NHS): | + | $0 | $0 |
| | | -------------------------- | |
| (=) Market Value: | = | $404,662 | |
| (–) Productivity Loss: | – | $0 | |
| | | -------------------------- | |
| (=) Subtotal: | = | $404,662 | |
| (+) Senior Appraised Value: | + | $0 | |
| (+) Non-Senior Appraised Value: | + | $404,662 | |
| | | -------------------------- | |
| (=) Total Appraised Value: | = | $404,662 | |
| (–) Senior Exemption Loss: | – | $0 | |
| (–) Exemption Loss: | – | $0 | |
| | | -------------------------- | |
| (=) Taxable Value: | = | $404,662 | |
Taxing Jurisdiction
| Owner: | GIFFORD, BRET FREDERICK | | |
| % Ownership: | 100.0000000000% | | |
| Total Value: | $404,662 | | |
| Tax Area: | 510 - APPRAISER-Stan/Cam Schl Dist, improved & 1 acre or less |
| CF | Conservation Futures | 0.0313996660 | $404,662 | $404,662 | $12.71 | | |
| EMS1 | Fire & Rescue Dist #1 Camano GEN (EMS) | 0.4998471806 | $404,662 | $404,662 | $202.27 | | |
| FIRE1 | Fire & Rescue Dist #1 Camano GEN | 1.2496603404 | $404,662 | $404,662 | $505.69 | | |
| FIRE1BOND | Fire & Rescue Dist #1 Camano BOND | 0.1630371212 | $404,662 | $404,662 | $65.97 | | |
| CE | County Current Expense | 0.3674210519 | $404,662 | $404,662 | $148.68 | | |
| CR | County Roads | 0.4614296361 | $404,662 | $404,662 | $186.72 | | |
| LIB | Library Sno-Isle GEN | 0.3039084203 | $404,662 | $404,662 | $122.98 | | |
| SCH205_401 | School 205-401 Enrichment | 1.3697998934 | $404,662 | $404,662 | $554.31 | | |
| SCH205BOND | School 205-401 BOND | 0.9354199323 | $404,662 | $404,662 | $378.53 | | |
| ST | State School | 1.4761226122 | $404,662 | $404,662 | $597.33 | | |
| ST2 | State School Part 2 | 0.7953803475 | $404,662 | $404,662 | $321.86 | | |
| | Total Tax Rate: | 7.6534262019 | | | | | |
| | | | | Taxes w/Current Exemptions: | $3,097.05 | | |
| | | | | Taxes w/o Exemptions: | $3,097.05 | | |
Improvement / Building
| Improvement #1: | RESIDENTIAL | State Code: | Y | 808.0 sqft | Value: | $144,662 |
| Bathrooms: | 1 | Bedrooms: | 2 | | Ceiling: | DRYWALL PAINTED | Exterior Wall/Cover: | WOOD SIDING | | Floor Covering: | VINYL TILE/HARWD 20-80 | Floor Structure: | WOOD W/SUBFLOOR | | Foundation: | CONCRETE | Heating: | WALL HEAT ELECTRIC | | Interior Finish: | DRYWALL PAINT | Plumbing Fixture Cnt: | 6 | | Roof Slope: | 8" IN 12" | Roof Structure/Cover: | CJ ASPHALT |
|
| | Type | Description | Class CD | Sub Class CD | Year Built | Area |
| | BAS | BASE/MAIN FLOOR | 3 | 0 | 1949 | 808.0 |
| | OWP | OPEN WOOD PORCH W/STEPS | 3 | 0 | 1949 | 120.0 |
| | UTY | STORAGE/UTILITY | 3 | 0 | 1949 | 77.0 |
Sketch
Property Image
Land
| 1 | 15 | SQ (12001-21780) | 0.2800 | 12196.80 | 0.00 | 0.00 | 1.00 | $260,000 | $0 |
Roll Value History
| 2026 | N/A | N/A | N/A | N/A | N/A |
| 2025 | $144,662 | $260,000 | $0 | $404,662 | $404,662 |
| 2024 | $146,585 | $260,000 | $0 | $406,585 | $406,585 |
| 2023 | $148,507 | $260,000 | $0 | $408,507 | $408,507 |
| 2022 | $79,391 | $369,000 | $0 | $448,391 | $448,391 |
| 2021 | $0 | $90,000 | $0 | $90,000 | $90,000 |
| 2020 | $0 | $90,000 | $0 | $90,000 | $90,000 |
| 2019 | $0 | $90,000 | $0 | $90,000 | $90,000 |
| 2018 | $0 | $70,000 | $0 | $70,000 | $70,000 |
| 2017 | $0 | $50,000 | $0 | $50,000 | $50,000 |
| 2016 | $0 | $50,000 | $0 | $50,000 | $50,000 |
| 2015 | $0 | $53,120 | $0 | $53,120 | $53,120 |
| 2014 | $0 | $53,120 | $0 | $53,120 | $53,120 |
| 2013 | $0 | $53,120 | $0 | $53,120 | $53,120 |
| 2012 | $0 | $53,120 | $0 | $53,120 | $53,120 |
| 2011 | $0 | $53,120 | $0 | $53,120 | $53,120 |
| 2010 | $0 | $53,120 | $0 | $53,120 | $53,120 |
| 2009 | $0 | $50,000 | $0 | $50,000 | $50,000 |
| 2008 | $0 | $50,000 | $0 | $50,000 | $50,000 |
| 2007 | $0 | $50,000 | $0 | $50,000 | $50,000 |
Deed and Sales History
| 1 | 09/28/2015 | TRUSTEED | Trustee's Deed | GIFFORD TTEE, JOIE A | GIFFORD, BRET FREDERICK | | | $0.00 | 21868 | 4388261 |
| 2 | 01/02/2009 | WD | Warranty Deed | LARSON, JOHN C | GIFFORD TTEE, JOIE A | | | $50,000.00 | 90040 | 4242286 |
| 3 | 02/01/1998 | WD | Warranty Deed | O'CONNOR, JOHN S | LARSON, JOHN C | | | $21,946.00 | 80616 | 98003358 |
| 4 | 02/01/1998 | WD | Warranty Deed | LARSEN, ALAN | O'CONNOR, JOHN S | | | $15,300.00 | 80591 | 98003236 |
| 5 | 12/01/1995 | QCD | Quit Claim Deed | LARSEN, JOSEPHINE A | LARSEN, ALAN | | | $0.00 | 60082 | 96000337 |
| 6 | 01/01/1900 | OTHER | Other - Misc. Documents | LARSON, JOHN C | LARSEN, JOSEPHINE A | | | $0.00 | 0 | 0 |
Payout Agreement
| No payout information available.. |