Property
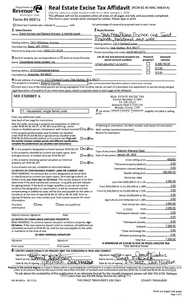
Account |
| Property ID: | 318436 | Abbreviated Legal Description: | MANACO BCH LOTS 23 & 24 DRAINFIELD FOR LOT 23 LOCATED LOT 21 AF#96012812 |
| Geographic ID: | S7460-00-00024-0 | Agent Code: | |
| Type: | Real | | |
| Tax Area: | 510 - APPRAISER-Stan/Cam Schl Dist, improved & 1 acre or less | Land Use Code | 11 |
| Open Space: | N | DFL | N |
| Historic Property: | N | Remodel Property: | N |
| Multi-Family Redevelopment: | N | | |
| Township: | | Section: | |
| Range: | |
Location |
| Address: | 657 MANACO BEACH RD CAMANO ISLAND, WA 98282 | Mapsco: | |
| Neighborhood: | Cycle 5 | Map ID: | 500 |
| Neighborhood CD: | 5 |
Owner |
| Name: | BELL, MICHAEL E | Owner ID: | 286330 |
| Mailing Address: | DEBORAH ANN BELL TTEE 8021 228TH ST SW EDMONDS, WA 98026 | % Ownership: | 100.0000000000% |
| | | Exemptions: | |
Taxes and Assessment Details
Values
| (+) Improvement Homesite Value: | + | $0 | |
| (+) Improvement Non-Homesite Value: | + | $225,291 | |
| (+) Land Homesite Value: | + | $0 | |
| (+) Land Non-Homesite Value: | + | $360,000 | |
| (+) Curr Use (HS): | + | $0 | $0 |
| (+) Curr Use (NHS): | + | $0 | $0 |
| | | -------------------------- | |
| (=) Market Value: | = | $585,291 | |
| (–) Productivity Loss: | – | $0 | |
| | | -------------------------- | |
| (=) Subtotal: | = | $585,291 | |
| (+) Senior Appraised Value: | + | $0 | |
| (+) Non-Senior Appraised Value: | + | $585,291 | |
| | | -------------------------- | |
| (=) Total Appraised Value: | = | $585,291 | |
| (–) Senior Exemption Loss: | – | $0 | |
| (–) Exemption Loss: | – | $0 | |
| | | -------------------------- | |
| (=) Taxable Value: | = | $585,291 | |
Taxing Jurisdiction
| Owner: | BELL, MICHAEL E | | |
| % Ownership: | 100.0000000000% | | |
| Total Value: | $585,291 | | |
| Tax Area: | 510 - APPRAISER-Stan/Cam Schl Dist, improved & 1 acre or less |
| CF | Conservation Futures | 0.0313996660 | $585,291 | $585,291 | $18.38 | | |
| EMS1 | Fire & Rescue Dist #1 Camano GEN (EMS) | 0.4998471806 | $585,291 | $585,291 | $292.56 | | |
| FIRE1 | Fire & Rescue Dist #1 Camano GEN | 1.2496603404 | $585,291 | $585,291 | $731.41 | | |
| FIRE1BOND | Fire & Rescue Dist #1 Camano BOND | 0.1630371212 | $585,291 | $585,291 | $95.42 | | |
| CE | County Current Expense | 0.3674210519 | $585,291 | $585,291 | $215.05 | | |
| CR | County Roads | 0.4614296361 | $585,291 | $585,291 | $270.07 | | |
| LIB | Library Sno-Isle GEN | 0.3039084203 | $585,291 | $585,291 | $177.87 | | |
| SCH205_401 | School 205-401 Enrichment | 1.3697998934 | $585,291 | $585,291 | $801.73 | | |
| SCH205BOND | School 205-401 BOND | 0.9354199323 | $585,291 | $585,291 | $547.49 | | |
| ST | State School | 1.4761226122 | $585,291 | $585,291 | $863.96 | | |
| ST2 | State School Part 2 | 0.7953803475 | $585,291 | $585,291 | $465.53 | | |
| | Total Tax Rate: | 7.6534262019 | | | | | |
| | | | | Taxes w/Current Exemptions: | $4,479.47 | | |
| | | | | Taxes w/o Exemptions: | $4,479.47 | | |
Improvement / Building
| Improvement #1: | RESIDENTIAL | State Code: | Y | 1688.6 sqft | Value: | $225,291 |
| Bathrooms: | 2 | Bedrooms: | 2 | | Ceiling: | DRYWALL PAINTED | Exterior Wall/Cover: | PLY/HARDBOARD T-111 | | Floor Covering: | CARPET/VINYL 60-40 | Floor Structure: | WOOD W/SUBFLOOR | | Foundation: | CONCRETE | Heating: | BASEBOARD ELECTRIC | | Interior Finish: | DRYWALL PAINT | Plumbing Fixture Cnt: | 9 | | Roof Slope: | 4" IN 12" | Roof Structure/Cover: | CJ ASPHALT |
|
| | Type | Description | Class CD | Sub Class CD | Year Built | Area |
| | BAS | BASE/MAIN FLOOR | 3 | 0 | 1976 | 904.2 |
| | DGR | DETACHED GARAGE | 3 | 0 | 1976 | 780.0 |
| | OWP | OPEN WOOD PORCH W/STEPS | 3 | 0 | 1976 | 43.4 |
| | OWP | OPEN WOOD PORCH W/STEPS | 3 | 0 | 1976 | 479.5 |
| | OWP | OPEN WOOD PORCH W/STEPS | 3 | 0 | 1976 | 154.0 |
| | OWC | OPEN WOOD PORCH W/STEPS/ROOF/C | 3 | 0 | 1976 | 142.7 |
| | OWC | OPEN WOOD PORCH W/STEPS/ROOF/C | 3 | 0 | 1976 | 48.0 |
| | DWN | DOWNSTAIRS LIVING AREA | 3 | 0 | 1976 | 784.4 |
Sketch
Property Image
Land
| 1 | 15 | SQ (12001-21780) | 0.3683 | 16043.15 | 0.00 | 0.00 | 1.00 | $360,000 | $0 |
Roll Value History
| 2026 | N/A | N/A | N/A | N/A | N/A |
| 2025 | $225,291 | $360,000 | $0 | $585,291 | $585,291 |
| 2024 | $233,744 | $360,000 | $0 | $593,744 | $593,744 |
| 2023 | $237,272 | $360,000 | $0 | $597,272 | $597,272 |
| 2022 | $218,050 | $340,000 | $0 | $558,050 | $558,050 |
| 2021 | $178,547 | $150,000 | $0 | $328,547 | $328,547 |
| 2020 | $174,679 | $150,000 | $0 | $324,679 | $324,679 |
| 2019 | $128,821 | $180,000 | $0 | $308,821 | $308,821 |
| 2018 | $129,307 | $180,000 | $0 | $309,307 | $309,307 |
| 2017 | $130,279 | $150,000 | $0 | $280,279 | $280,279 |
| 2016 | $132,223 | $130,000 | $0 | $262,223 | $262,223 |
| 2015 | $128,282 | $86,400 | $0 | $214,682 | $214,682 |
| 2014 | $130,197 | $86,400 | $0 | $216,597 | $216,597 |
| 2013 | $132,116 | $86,400 | $0 | $218,516 | $218,516 |
| 2012 | $134,030 | $86,400 | $0 | $220,430 | $220,430 |
| 2011 | $135,948 | $108,000 | $0 | $243,948 | $243,948 |
| 2010 | $145,353 | $108,000 | $0 | $253,353 | $253,353 |
| 2009 | $151,774 | $160,000 | $0 | $311,774 | $311,774 |
| 2008 | $156,020 | $160,500 | $0 | $316,520 | $316,520 |
| 2007 | $158,150 | $160,500 | $0 | $318,650 | $318,650 |
Deed and Sales History
| 1 | 06/26/2018 | SPWARDEED | Special Warranty Deed | BELL TRUSTEE, MICHAEL E | BELL, MICHAEL E | | | $0.00 | 35353 | 4449466 |
| 2 | 06/28/2010 | PRD | Personal Representatives Deed | BELL, ROBERT A | BELL TRUSTEE, MICHAEL E | | | $0.00 | 1702 | 4276845 |
| 3 | 01/25/2006 | BLA | DNU - Boundary Line Adjustment | BELL, ROBERT A | BELL, ROBERT A | | | $0.00 | 70801 | 4125457 |
| 4 | 07/13/1976 | OTHER | Other - Misc. Documents | Unknown | BELL, ROBERT A | | | $0.00 | 62319 | 0 |
Payout Agreement
| No payout information available.. |