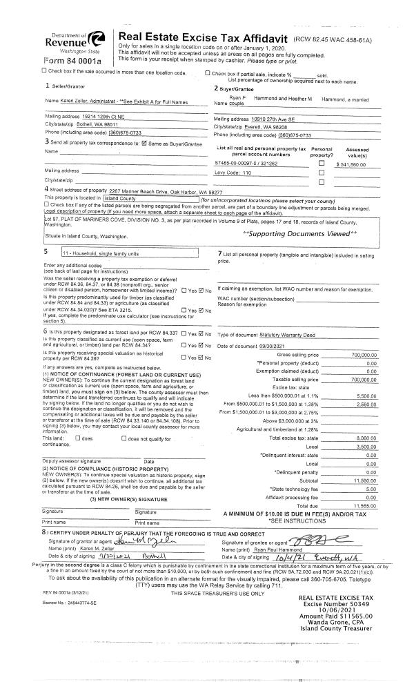
Property
Account |
| Property ID: | 321262 | Abbreviated Legal Description: | MARINERS CV 3 LOT 97 |
| Geographic ID: | S7485-00-00097-0 | Agent Code: | |
| Type: | Real | | |
| Tax Area: | 110 - APPRAISER-OH Schl Dist, outside OH, improved & 1 acre or less | Land Use Code | 11 |
| Open Space: | N | DFL | N |
| Historic Property: | N | Remodel Property: | N |
| Multi-Family Redevelopment: | N | | |
| Township: | | Section: | |
| Range: | |
Location |
| Address: | 2267 MARINER BEACH DR OAK HARBOR, WA 98277 | Mapsco: | |
| Neighborhood: | Cycle 6 | Map ID: | 538 |
| Neighborhood CD: | 6 |
Owner |
| Name: | HAMMOND, RYAN | Owner ID: | 301475 |
| Mailing Address: | HEATHER M HAMMOND 10910 27TH AVE SE EVERETT, WA 98028 | % Ownership: | 100.0000000000% |
| | | Exemptions: | |
Taxes and Assessment Details
Values
| (+) Improvement Homesite Value: | + | $0 | |
| (+) Improvement Non-Homesite Value: | + | $407,772 | |
| (+) Land Homesite Value: | + | $0 | |
| (+) Land Non-Homesite Value: | + | $300,000 | |
| (+) Curr Use (HS): | + | $0 | $0 |
| (+) Curr Use (NHS): | + | $0 | $0 |
| | | -------------------------- | |
| (=) Market Value: | = | $707,772 | |
| (–) Productivity Loss: | – | $0 | |
| | | -------------------------- | |
| (=) Subtotal: | = | $707,772 | |
| (+) Senior Appraised Value: | + | $0 | |
| (+) Non-Senior Appraised Value: | + | $707,772 | |
| | | -------------------------- | |
| (=) Total Appraised Value: | = | $707,772 | |
| (–) Senior Exemption Loss: | – | $0 | |
| (–) Exemption Loss: | – | $0 | |
| | | -------------------------- | |
| (=) Taxable Value: | = | $707,772 | |
Taxing Jurisdiction
| Owner: | HAMMOND, RYAN | | |
| % Ownership: | 100.0000000000% | | |
| Total Value: | $707,772 | | |
| Tax Area: | 110 - APPRAISER-OH Schl Dist, outside OH, improved & 1 acre or less |
| CF | Conservation Futures | 0.0313996660 | $707,772 | $707,772 | $22.22 | | |
| CEM1 | Cemetery #1 | 0.0040018856 | $707,772 | $707,772 | $2.83 | | |
| FIRE2 | Fire & Rescue Dist #2 N Whidbey GEN | 0.5381486274 | $707,772 | $707,772 | $380.89 | | |
| HOBOND | Hospital BOND | 0.1893405597 | $707,772 | $707,772 | $134.01 | | |
| HOGEN | Hospital GEN | 0.3848777722 | $707,772 | $707,772 | $272.41 | | |
| CE | County Current Expense | 0.3674210519 | $707,772 | $707,772 | $260.05 | | |
| CR | County Roads | 0.4614296361 | $707,772 | $707,772 | $326.59 | | |
| ISLANDEMS | Hospital GEN (EMS) | 0.4952018576 | $707,772 | $707,772 | $350.49 | | |
| LIB | Library Sno-Isle GEN | 0.3039084203 | $707,772 | $707,772 | $215.10 | | |
| NWHIDPRMT | P & R N Whidbey GEN | 0.1990272349 | $707,772 | $707,772 | $140.87 | | |
| SCH201MO | School 201 Enrichment | 2.3851112745 | $707,772 | $707,772 | $1,688.11 | | |
| ST | State School | 1.4761226122 | $707,772 | $707,772 | $1,044.76 | | |
| ST2 | State School Part 2 | 0.7953803475 | $707,772 | $707,772 | $562.95 | | |
| | Total Tax Rate: | 7.6313709459 | | | | | |
| | | | | Taxes w/Current Exemptions: | $5,401.28 | | |
| | | | | Taxes w/o Exemptions: | $5,401.28 | | |
Improvement / Building
| Improvement #1: | RESIDENTIAL | State Code: | Y | 3052.0 sqft | Value: | $407,772 |
| Bathrooms: | 3 | Bedrooms: | 3 | | Ceiling: | BEAM PAINTED | Cooling: | HEAT PUMP/CONV/V | | Exterior Wall/Cover: | WOOD SIDING | Floor Covering: | CARPET/VINYL 80-20 | | Floor Structure: | WOOD W/SUBFLOOR | Foundation: | CONCRETE | | Interior Finish: | DRYWALL PAINT | Plumbing Fixture Cnt: | 13 | | Roof Slope: | 4" IN 12" | Roof Structure/Cover: | BEAM ASPHALT |
|
| | Type | Description | Class CD | Sub Class CD | Year Built | Area |
| | BAS | BASE/MAIN FLOOR | 3 | 0 | 1979 | 1993.0 |
| | DWN | DOWNSTAIRS LIVING AREA | 3 | 0 | 1979 | 1059.0 |
| | BIG | BUILT IN GARAGE | 3 | 0 | 1979 | 704.0 |
| | OWP | OPEN WOOD PORCH W/STEPS | 3 | 0 | 1979 | 406.0 |
| | OWC | OPEN WOOD PORCH W/STEPS/ROOF/C | 3 | 0 | 1979 | 176.0 |
| | oRAF | RAMP/FLOAT | 3 | 0 | 1979 | 0.0 |
| | oFLT | FLOAT/DECK/PILING | 3 | 0 | 1979 | 0.0 |
Sketch
Property Image
Land
| 1 | 14 | SQ (08001-12000) | 0.0000 | 0.00 | 0.00 | 0.00 | 1.00 | $300,000 | $0 |
Roll Value History
| 2026 | N/A | N/A | N/A | N/A | N/A |
| 2025 | $407,772 | $300,000 | $0 | $707,772 | $707,772 |
| 2024 | $405,840 | $280,000 | $0 | $685,840 | $685,840 |
| 2023 | $410,955 | $270,000 | $0 | $680,955 | $680,955 |
| 2022 | $373,201 | $270,000 | $0 | $643,201 | $643,201 |
| 2021 | $291,560 | $250,000 | $0 | $541,560 | $541,560 |
| 2020 | $285,184 | $240,000 | $0 | $525,184 | $525,184 |
| 2019 | $220,087 | $295,000 | $0 | $515,087 | $515,087 |
| 2018 | $220,820 | $285,000 | $0 | $505,820 | $505,820 |
| 2017 | $222,286 | $270,000 | $0 | $492,286 | $492,286 |
| 2016 | $205,527 | $245,000 | $0 | $450,527 | $450,527 |
| 2015 | $208,690 | $245,000 | $0 | $453,690 | $453,690 |
| 2014 | $211,851 | $245,000 | $0 | $456,851 | $456,851 |
| 2013 | $215,014 | $270,000 | $0 | $485,014 | $485,014 |
| 2012 | $218,175 | $270,000 | $0 | $488,175 | $488,175 |
| 2011 | $221,337 | $300,000 | $0 | $521,337 | $521,337 |
| 2010 | $240,780 | $300,000 | $0 | $540,780 | $540,780 |
| 2009 | $251,547 | $350,000 | $0 | $601,547 | $601,547 |
| 2008 | $262,019 | $400,000 | $0 | $662,019 | $662,019 |
| 2007 | $266,323 | $300,000 | $0 | $566,323 | $566,323 |
Deed and Sales History
| 1 | 09/30/2021 | WD | Warranty Deed | FREUDENTHAL, PAUL E | HAMMOND, RYAN | | | $700,000.00 | 50349 | 4530768 |
| 2 | 01/01/1900 | OTHER | Other - Misc. Documents | Unknown | FREUDENTHAL, PAUL E | | | $0.00 | 0 | 0 |
Payout Agreement
| No payout information available.. |