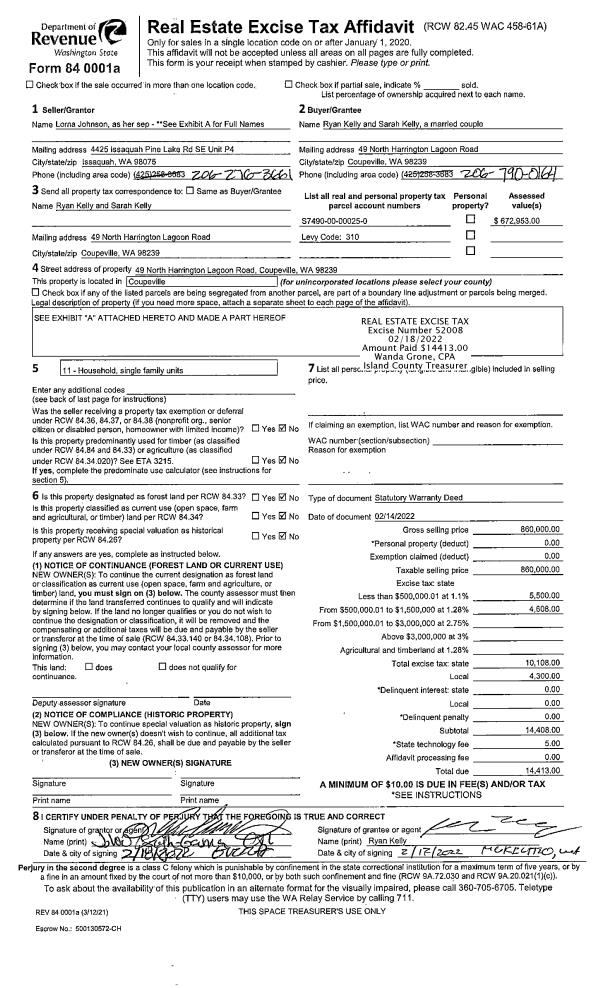
Property
Account |
| Property ID: | 322172 | Abbreviated Legal Description: | MATHSONS HBRVW LOT 25 INCL ADJ TIDES TGW PT ADJ VAC MAPLE ST INCL INT IN COM LOT |
| Geographic ID: | S7490-00-00025-0 | Agent Code: | |
| Type: | Real | | |
| Tax Area: | 310 - APPRAISER-Cpvl Schl Dist, outside Cpvl, improved & 1 acre or less | Land Use Code | 11 |
| Open Space: | N | DFL | N |
| Historic Property: | N | Remodel Property: | N |
| Multi-Family Redevelopment: | N | | |
| Township: | | Section: | |
| Range: | |
Location |
| Address: | 49 N HARRINGTON LAGOON RD COUPEVILLE, WA 98239 | Mapsco: | |
| Neighborhood: | Cycle 2 | Map ID: | 572 |
| Neighborhood CD: | 2 |
Owner |
| Name: | KELLY, RYAN | Owner ID: | 303199 |
| Mailing Address: | SARAH KELLY 49 NORTH HARRINGTON LAGOON RD COUPEVILLE, WA 98239 | % Ownership: | 100.0000000000% |
| | | Exemptions: | |
Taxes and Assessment Details
Values
| (+) Improvement Homesite Value: | + | $0 | |
| (+) Improvement Non-Homesite Value: | + | $238,001 | |
| (+) Land Homesite Value: | + | $0 | |
| (+) Land Non-Homesite Value: | + | $675,590 | |
| (+) Curr Use (HS): | + | $0 | $0 |
| (+) Curr Use (NHS): | + | $0 | $0 |
| | | -------------------------- | |
| (=) Market Value: | = | $913,591 | |
| (–) Productivity Loss: | – | $0 | |
| | | -------------------------- | |
| (=) Subtotal: | = | $913,591 | |
| (+) Senior Appraised Value: | + | $0 | |
| (+) Non-Senior Appraised Value: | + | $913,591 | |
| | | -------------------------- | |
| (=) Total Appraised Value: | = | $913,591 | |
| (–) Senior Exemption Loss: | – | $0 | |
| (–) Exemption Loss: | – | $0 | |
| | | -------------------------- | |
| (=) Taxable Value: | = | $913,591 | |
Taxing Jurisdiction
| Owner: | KELLY, RYAN | | |
| % Ownership: | 100.0000000000% | | |
| Total Value: | $913,591 | | |
| Tax Area: | 310 - APPRAISER-Cpvl Schl Dist, outside Cpvl, improved & 1 acre or less |
| CF | Conservation Futures | 0.0313996660 | $913,591 | $913,591 | $28.69 | | |
| CEM2 | Cemetery #2 | 0.0092609791 | $913,591 | $913,591 | $8.46 | | |
| FIRE5 | Fire & Rescue Dist #5 C Whidbey GEN | 1.1892169230 | $913,591 | $913,591 | $1,086.46 | | |
| FIRE5BOND | Fire & Rescue Dist #5 C Whidbey BOND | 0.1394359503 | $913,591 | $913,591 | $127.39 | | |
| HOBOND | Hospital BOND | 0.1893405597 | $913,591 | $913,591 | $172.98 | | |
| HOGEN | Hospital GEN | 0.3848777722 | $913,591 | $913,591 | $351.62 | | |
| CE | County Current Expense | 0.3674210519 | $913,591 | $913,591 | $335.67 | | |
| CR | County Roads | 0.4614296361 | $913,591 | $913,591 | $421.56 | | |
| ISLANDEMS | Hospital GEN (EMS) | 0.4952018576 | $913,591 | $913,591 | $452.41 | | |
| LIB | Library Sno-Isle GEN | 0.3039084203 | $913,591 | $913,591 | $277.65 | | |
| LIBCAP | Library Sno-Isle BOND (Cap Fac Imp Area) | 0.0528562629 | $913,591 | $913,591 | $48.29 | | |
| POCOUP | Port of Coupeville GEN | 0.1065226063 | $913,591 | $913,591 | $97.32 | | |
| POCOUPIDD | Port of Coupeville IDD | 0.3353038577 | $913,591 | $913,591 | $306.33 | | |
| COUPSDTECH | School 204 CP (TECH) | 0.1215123397 | $913,591 | $913,591 | $111.01 | | |
| SCH204MO | School 204 Enrichment | 0.6416662518 | $913,591 | $913,591 | $586.22 | | |
| ST | State School | 1.4761226122 | $913,591 | $913,591 | $1,348.57 | | |
| ST2 | State School Part 2 | 0.7953803475 | $913,591 | $913,591 | $726.65 | | |
| | Total Tax Rate: | 7.1008570943 | | | | | |
| | | | | Taxes w/Current Exemptions: | $6,487.28 | | |
| | | | | Taxes w/o Exemptions: | $6,487.28 | | |
Improvement / Building
| Improvement #1: | RESIDENTIAL | State Code: | Y | 1040.0 sqft | Value: | $238,001 |
| Bathrooms: | 1 | Bedrooms: | 2 | | Ceiling: | PLASTER PAINTED | Exterior Wall/Cover: | CEMENT FIBER | | Floor Covering: | CERAMIC TILE/HWD 40/60 | Floor Structure: | WOOD W/SUBFLOOR | | Foundation: | CONCRETE BLOCKS | Heating: | BASEBOARD ELECTRIC | | Interior Finish: | PLASTER | Plumbing Fixture Cnt: | 6 | | Roof Slope: | FLAT | Roof Structure/Cover: | BEAM BUILT-UP ROCK |
|
| | Type | Description | Class CD | Sub Class CD | Year Built | Area |
| | BAS | BASE/MAIN FLOOR | 3 | 0 | 1955 | 1040.0 |
| | AGR | ATTACHED GARAGE | 3 | 0 | 1955 | 630.0 |
| | OWP | OPEN WOOD PORCH W/STEPS | 3 | 0 | 1955 | 152.0 |
| | OWP | OPEN WOOD PORCH W/STEPS | 3 | 0 | 1955 | 28.0 |
Sketch
| No sketches available for this property. |
Property Image
Land
| 1 | LB | LOW BANK | 0.1600 | 6969.60 | 60.00 | 0.00 | 1.00 | $675,000 | $0 |
| 2 | 55 | TIDES | 0.0000 | 0.00 | 59.00 | 0.00 | 1.00 | $590 | $0 |
Roll Value History
| 2026 | N/A | N/A | N/A | N/A | N/A |
| 2025 | $238,001 | $675,590 | $0 | $913,591 | $913,591 |
| 2024 | $248,162 | $650,590 | $0 | $898,752 | $898,752 |
| 2023 | $251,107 | $625,590 | $0 | $876,697 | $876,697 |
| 2022 | $224,365 | $600,590 | $0 | $824,955 | $824,955 |
| 2021 | $197,363 | $475,590 | $0 | $672,953 | $672,953 |
| 2020 | $191,939 | $350,590 | $0 | $542,529 | $542,529 |
| 2019 | $136,601 | $400,590 | $0 | $537,191 | $537,191 |
| 2018 | $133,766 | $400,590 | $0 | $534,356 | $534,356 |
| 2017 | $85,192 | $350,590 | $0 | $435,782 | $435,782 |
| 2016 | $86,687 | $350,590 | $0 | $437,277 | $437,277 |
| 2015 | $88,182 | $350,590 | $0 | $438,772 | $438,772 |
| 2014 | $89,676 | $350,590 | $0 | $440,266 | $440,266 |
| 2013 | $91,171 | $373,244 | $0 | $464,415 | $464,415 |
| 2012 | $83,193 | $373,244 | $0 | $456,437 | $456,437 |
| 2011 | $84,653 | $373,244 | $0 | $457,897 | $457,897 |
| 2010 | $94,079 | $373,244 | $0 | $467,323 | $467,323 |
| 2009 | $98,369 | $451,112 | $0 | $549,481 | $549,481 |
| 2008 | $99,878 | $451,112 | $0 | $550,990 | $550,990 |
| 2007 | $101,388 | $450,699 | $0 | $552,087 | $552,087 |
Deed and Sales History
| 1 | 02/18/2022 | WD | Warranty Deed | JOHNSON, LORNA | KELLY, RYAN | | | $860,000.00 | 52008 | 4540012 |
| 2 | 10/19/2017 | WD | Warranty Deed | WHIDBEY ISLAND BEACH HOUSE LLC | JOHNSON, LORNA | | | $548,000.00 | 31594 | 4432472 |
| 3 | 05/01/2013 | QCD | Quit Claim Deed | GALIPEAU TTEE, STEVEN R | WHIDBEY ISLAND BEACH HOUSE LLC | | | $0.00 | 11247 | 4339419 |
| 4 | 01/16/2009 | QCD | Quit Claim Deed | FORNER, KAREN L | GALIPEAU TTEE, STEVEN R | | | $0.00 | 90216 | 4243896 |
| 5 | 12/01/1997 | WD | Warranty Deed | GINTHNER, DIANE L | FORNER, KAREN L | | | $175,000.00 | 74475 | 97021399 |
| 6 | 09/01/1989 | QCD | Quit Claim Deed | FLOWERS, JEFFREY L | GINTHNER, DIANE L | | | $0.00 | 93741 | 89012462 |
| 7 | 06/01/1989 | OTHER | Other - Misc. Documents | FLOWERS, JEFFREY L | FLOWERS, JEFFREY L | | | $0.00 | 63166 | 0 |
| 8 | 01/01/1989 | QCD | Quit Claim Deed | FLOWERS, JEFFREY L | FLOWERS, JEFFREY L | | | $0.00 | 90129 | 89000449 |
| 9 | 01/01/1986 | WD | Warranty Deed | PALMER, O | FLOWERS, JEFFREY L | | | $80,000.00 | 60272 | 86001381 |
| 10 | 06/01/1985 | QCD | Quit Claim Deed | DAVIS, KENNETH L | PALMER, O | | | $0.00 | 51916 | 85007414 |
| 11 | 06/01/1983 | WD | Warranty Deed | PALMER, OLINDA E | DAVIS, KENNETH L | | | $96,000.00 | 31720 | 411387 |
| 12 | 01/01/1900 | OTHER | Other - Misc. Documents | Unknown | PALMER, OLINDA E | | | $0.00 | 0 | 0 |
Payout Agreement
| No payout information available.. |