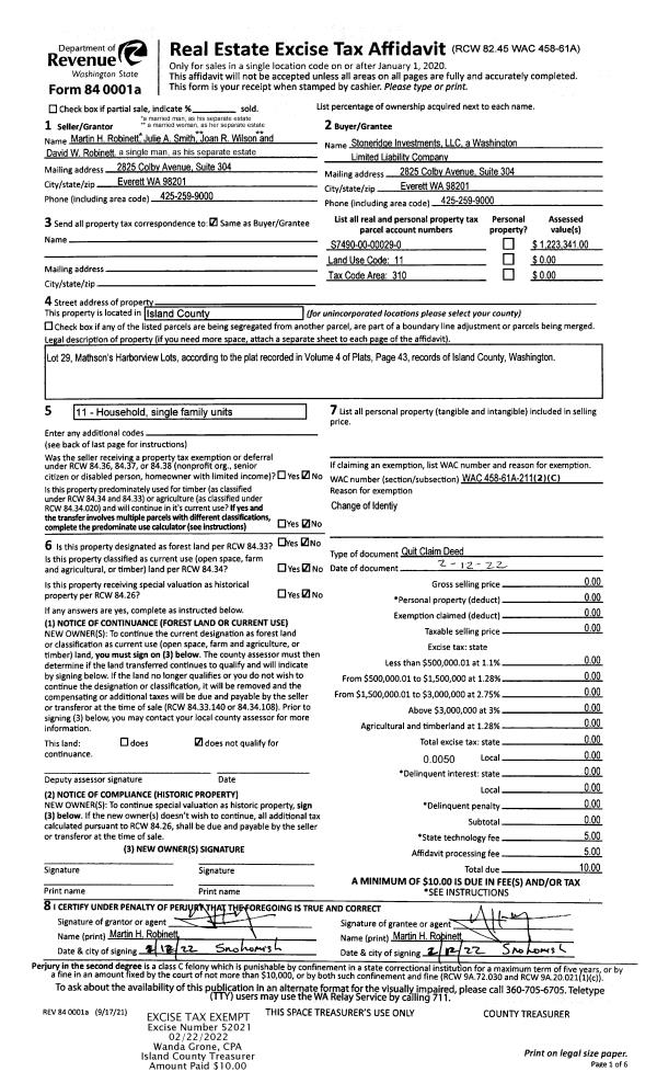
Property
Account |
| Property ID: | 322216 | Abbreviated Legal Description: | MATHSONS HBRVW LOT 29 INCL ADJ TIDES INCL INT IN COM LOT |
| Geographic ID: | S7490-00-00029-0 | Agent Code: | |
| Type: | Real | | |
| Tax Area: | 310 - APPRAISER-Cpvl Schl Dist, outside Cpvl, improved & 1 acre or less | Land Use Code | 11 |
| Open Space: | N | DFL | N |
| Historic Property: | N | Remodel Property: | N |
| Multi-Family Redevelopment: | N | | |
| Township: | | Section: | |
| Range: | |
Location |
| Address: | 37 N HARRINGTON LAGOON RD COUPEVILLE, WA 98239 | Mapsco: | |
| Neighborhood: | Cycle 2 | Map ID: | 572 |
| Neighborhood CD: | 2 |
Owner |
| Name: | STONERIDGE INVESTMENTS, LLC | Owner ID: | 303251 |
| Mailing Address: | 114 AVE C SUITE 101 SNOHOMISH, WA 98290 | % Ownership: | 100.0000000000% |
| | | Exemptions: | |
Taxes and Assessment Details
Values
| (+) Improvement Homesite Value: | + | $0 | |
| (+) Improvement Non-Homesite Value: | + | $767,103 | |
| (+) Land Homesite Value: | + | $0 | |
| (+) Land Non-Homesite Value: | + | $771,420 | |
| (+) Curr Use (HS): | + | $0 | $0 |
| (+) Curr Use (NHS): | + | $0 | $0 |
| | | -------------------------- | |
| (=) Market Value: | = | $1,538,523 | |
| (–) Productivity Loss: | – | $0 | |
| | | -------------------------- | |
| (=) Subtotal: | = | $1,538,523 | |
| (+) Senior Appraised Value: | + | $0 | |
| (+) Non-Senior Appraised Value: | + | $1,538,523 | |
| | | -------------------------- | |
| (=) Total Appraised Value: | = | $1,538,523 | |
| (–) Senior Exemption Loss: | – | $0 | |
| (–) Exemption Loss: | – | $0 | |
| | | -------------------------- | |
| (=) Taxable Value: | = | $1,538,523 | |
Taxing Jurisdiction
| Owner: | STONERIDGE INVESTMENTS, LLC | | |
| % Ownership: | 100.0000000000% | | |
| Total Value: | $1,538,523 | | |
| Tax Area: | 310 - APPRAISER-Cpvl Schl Dist, outside Cpvl, improved & 1 acre or less |
| CF | Conservation Futures | 0.0313996660 | $1,538,523 | $1,538,523 | $48.31 | | |
| CEM2 | Cemetery #2 | 0.0092609791 | $1,538,523 | $1,538,523 | $14.25 | | |
| FIRE5 | Fire & Rescue Dist #5 C Whidbey GEN | 1.1892169230 | $1,538,523 | $1,538,523 | $1,829.64 | | |
| FIRE5BOND | Fire & Rescue Dist #5 C Whidbey BOND | 0.1394359503 | $1,538,523 | $1,538,523 | $214.53 | | |
| HOBOND | Hospital BOND | 0.1893405597 | $1,538,523 | $1,538,523 | $291.30 | | |
| HOGEN | Hospital GEN | 0.3848777722 | $1,538,523 | $1,538,523 | $592.14 | | |
| CE | County Current Expense | 0.3674210519 | $1,538,523 | $1,538,523 | $565.29 | | |
| CR | County Roads | 0.4614296361 | $1,538,523 | $1,538,523 | $709.92 | | |
| ISLANDEMS | Hospital GEN (EMS) | 0.4952018576 | $1,538,523 | $1,538,523 | $761.88 | | |
| LIB | Library Sno-Isle GEN | 0.3039084203 | $1,538,523 | $1,538,523 | $467.57 | | |
| LIBCAP | Library Sno-Isle BOND (Cap Fac Imp Area) | 0.0528562629 | $1,538,523 | $1,538,523 | $81.32 | | |
| POCOUP | Port of Coupeville GEN | 0.1065226063 | $1,538,523 | $1,538,523 | $163.89 | | |
| POCOUPIDD | Port of Coupeville IDD | 0.3353038577 | $1,538,523 | $1,538,523 | $515.87 | | |
| COUPSDTECH | School 204 CP (TECH) | 0.1215123397 | $1,538,523 | $1,538,523 | $186.95 | | |
| SCH204MO | School 204 Enrichment | 0.6416662518 | $1,538,523 | $1,538,523 | $987.22 | | |
| ST | State School | 1.4761226122 | $1,538,523 | $1,538,523 | $2,271.05 | | |
| ST2 | State School Part 2 | 0.7953803475 | $1,538,523 | $1,538,523 | $1,223.71 | | |
| | Total Tax Rate: | 7.1008570943 | | | | | |
| | | | | Taxes w/Current Exemptions: | $10,924.84 | | |
| | | | | Taxes w/o Exemptions: | $10,924.84 | | |
Improvement / Building
| Improvement #1: | RESIDENTIAL | State Code: | Y | 3058.5 sqft | Value: | $767,103 |
| Bathrooms: | 3 | Bedrooms: | 2 | | Ceiling: | DRYWALL PAINTED | Exterior Wall/Cover: | SHINGLE | | Floor Covering: | VINYL TILE/HARWD 20-80 | Floor Structure: | WOOD W/SUBFLOOR | | Foundation: | CONCRETE | Heating: | FHA ELECTRIC | | Interior Finish: | DRYWALL PAINT | Plumbing Fixture Cnt: | 12 | | Roof Slope: | 10" IN 12" | Roof Structure/Cover: | STEEL TERNE |
|
| | Type | Description | Class CD | Sub Class CD | Year Built | Area |
| | BAS | BASE/MAIN FLOOR | 5 | 0 | 1968 | 1528.5 |
| | DGR | DETACHED GARAGE | 5 | 0 | 1968 | 672.0 |
| | ATU | ATTIC UNFINISHED | 5 | 0 | 1968 | 336.0 |
| | OWP | OPEN WOOD PORCH W/STEPS | 5 | 0 | 1968 | 849.0 |
| | OWC | OPEN WOOD PORCH W/STEPS/ROOF/C | 5 | 0 | 1968 | 451.0 |
| | OWC | OPEN WOOD PORCH W/STEPS/ROOF/C | 5 | 0 | 1968 | 256.2 |
| | UPH | HALF STORY | 5 | 0 | 1968 | 1530.0 |
Sketch
| No sketches available for this property. |
Property Image
Land
| 1 | LB | LOW BANK | 0.3996 | 17406.58 | 115.00 | 0.00 | 1.00 | $770,000 | $0 |
| 2 | 55 | TIDES | 0.0000 | 0.00 | 142.00 | 0.00 | 1.00 | $1,420 | $0 |
Roll Value History
| 2026 | N/A | N/A | N/A | N/A | N/A |
| 2025 | $767,103 | $771,420 | $0 | $1,538,523 | $1,538,523 |
| 2024 | $731,109 | $751,420 | $0 | $1,482,529 | $1,482,529 |
| 2023 | $740,110 | $726,420 | $0 | $1,466,530 | $1,466,530 |
| 2022 | $678,311 | $701,420 | $0 | $1,379,731 | $1,379,731 |
| 2021 | $596,921 | $626,420 | $0 | $1,223,341 | $1,223,341 |
| 2020 | $582,840 | $501,420 | $0 | $1,084,260 | $1,084,260 |
| 2019 | $498,138 | $551,420 | $0 | $1,049,558 | $1,049,558 |
| 2018 | $493,598 | $551,420 | $0 | $1,045,018 | $1,045,018 |
| 2017 | $406,769 | $501,420 | $0 | $908,189 | $908,189 |
| 2016 | $411,611 | $501,420 | $0 | $913,031 | $913,031 |
| 2015 | $416,455 | $501,420 | $0 | $917,875 | $917,875 |
| 2014 | $421,297 | $501,420 | $0 | $922,717 | $922,717 |
| 2013 | $426,140 | $651,391 | $0 | $1,077,531 | $1,077,531 |
| 2012 | $470,079 | $651,391 | $0 | $1,121,470 | $1,121,470 |
| 2011 | $475,182 | $651,391 | $0 | $1,126,573 | $1,126,573 |
| 2010 | $486,520 | $651,391 | $0 | $1,137,911 | $1,137,911 |
| 2009 | $501,601 | $787,206 | $0 | $1,288,807 | $1,288,807 |
| 2008 | $507,362 | $787,206 | $0 | $1,294,568 | $1,294,568 |
| 2007 | $518,172 | $786,212 | $0 | $1,304,384 | $1,304,384 |
Deed and Sales History
| 1 | 02/12/2022 | QCD | Quit Claim Deed | ROBINETT ET AL, MARTIN H | STONERIDGE INVESTMENTS, LLC | | | $0.00 | 52021 | 4540136 |
| 2 | 12/29/1998 | ESTSEPPROP | Establish Separate Property | ROBINETT ET AL, MARTIN H | ROBINETT ET AL, MARTIN H | | | $0.00 | 85165 | 98028261 |
| 3 | 12/18/1998 | ESTSEPPROP | Establish Separate Property | ROBINETT ET AL, MARTIN H | ROBINETT ET AL, MARTIN H | | | $0.00 | 40654 | 4091997 |
| 4 | 12/18/1998 | ESTSEPPROP | Establish Separate Property | ROBINETT ET AL, MARTIN H | ROBINETT ET AL, MARTIN H | | | $0.00 | 40653 | 4091996 |
| 5 | 12/18/1998 | ESTSEPPROP | Establish Separate Property | ROBINETT ET AL, MARTIN H | ROBINETT ET AL, MARTIN H | | | $0.00 | 40652 | 4091995 |
| 6 | 12/18/1998 | WD | Warranty Deed | ROBINETT ET AL, MARTIN H | ROBINETT ET AL, MARTIN H | | | $0.00 | 40651 | 4091994 |
| 7 | 12/18/1998 | ESTSEPPROP | Establish Separate Property | ROBINETT ET AL, MARTIN H | ROBINETT ET AL, MARTIN H | | | $0.00 | 85167 | 98028263 |
| 8 | 12/18/1998 | ESTSEPPROP | Establish Separate Property | ROBINETT ET AL, MARTIN H | ROBINETT ET AL, MARTIN H | | | $0.00 | 85166 | 98028262 |
| 9 | 12/18/1998 | WD | Warranty Deed | MAGNUSON, BEN & | ROBINETT ET AL, MARTIN H | | | $307,500.00 | 85164 | 98028260 |
| 10 | 03/01/1991 | WD | Warranty Deed | ANTONCICH, MARK J | MAGNUSON, BEN & | | | $230,000.00 | 10763 | 91003447 |
| 11 | 07/01/1984 | WD | Warranty Deed | KINGEN, HOWARD G | ANTONCICH, MARK J | | | $120,000.00 | 42249 | 84001429 |
| 12 | 01/01/1900 | OTHER | Other - Misc. Documents | KINGEN, HAZEL L | KINGEN, HOWARD G | | | $0.00 | 0 | 0 |
| 13 | 01/01/1900 | REC | Real Estate Contract | Unknown | KINGEN, HAZEL L | | | $0.00 | 58765 | 0 |
Payout Agreement
| No payout information available.. |