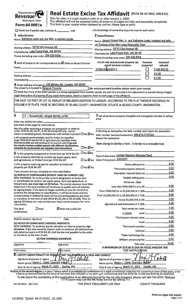
Property
Account |
| Property ID: | 322519 | Abbreviated Legal Description: | MELSENS E127' OF LOT 23 AKA RE-PLAT MELSENS ADDITION TO TOWN OF LANGLEY |
| Geographic ID: | S7500-00-00023-2 | Agent Code: | |
| Type: | Real | | |
| Tax Area: | 700 - APPRAISER-S Whid Schl Dist, in town of Langley | Land Use Code | 11 |
| Open Space: | N | DFL | N |
| Historic Property: | N | Remodel Property: | N |
| Multi-Family Redevelopment: | N | | |
| Township: | | Section: | |
| Range: | |
Location |
| Address: | 426 MELSEN ALY LANGLEY, WA 98260 | Mapsco: | |
| Neighborhood: | City of Langley | Map ID: | 912 |
| Neighborhood CD: | 04-L |
Owner |
| Name: | WEIL TTEE, JOSEPH ROBERT | Owner ID: | 303795 |
| Mailing Address: | KATHERINE LEWIS TTEE 19719 53RD AVE NE LAKE FOREST PARK, WA 98155 | % Ownership: | 100.0000000000% |
| | | Exemptions: | |
Taxes and Assessment Details
Values
| (+) Improvement Homesite Value: | + | $0 | |
| (+) Improvement Non-Homesite Value: | + | $792,917 | |
| (+) Land Homesite Value: | + | $0 | |
| (+) Land Non-Homesite Value: | + | $390,000 | |
| (+) Curr Use (HS): | + | $0 | $0 |
| (+) Curr Use (NHS): | + | $0 | $0 |
| | | -------------------------- | |
| (=) Market Value: | = | $1,182,917 | |
| (–) Productivity Loss: | – | $0 | |
| | | -------------------------- | |
| (=) Subtotal: | = | $1,182,917 | |
| (+) Senior Appraised Value: | + | $0 | |
| (+) Non-Senior Appraised Value: | + | $1,182,917 | |
| | | -------------------------- | |
| (=) Total Appraised Value: | = | $1,182,917 | |
| (–) Senior Exemption Loss: | – | $0 | |
| (–) Exemption Loss: | – | $0 | |
| | | -------------------------- | |
| (=) Taxable Value: | = | $1,182,917 | |
Taxing Jurisdiction
| Owner: | WEIL TTEE, JOSEPH ROBERT | | |
| % Ownership: | 100.0000000000% | | |
| Total Value: | $1,182,917 | | |
| Tax Area: | 700 - APPRAISER-S Whid Schl Dist, in town of Langley |
| CF | Conservation Futures | 0.0313996660 | $1,182,917 | $1,182,917 | $37.14 | | |
| LANG | City of Langley | 1.0106798199 | $1,182,917 | $1,182,917 | $1,195.55 | | |
| LANGBOND | City of Langley BOND | 0.0000000000 | $1,182,917 | $1,182,917 | $0.00 | | |
| FIRE3 | Fire & Rescue Dist #3 S Whidbey GEN | 1.2130821753 | $1,182,917 | $1,182,917 | $1,434.98 | | |
| HOBOND | Hospital BOND | 0.1893405597 | $1,182,917 | $1,182,917 | $223.97 | | |
| HOGEN | Hospital GEN | 0.3848777722 | $1,182,917 | $1,182,917 | $455.28 | | |
| CE | County Current Expense | 0.3674210519 | $1,182,917 | $1,182,917 | $434.63 | | |
| ISLANDEMS | Hospital GEN (EMS) | 0.4952018576 | $1,182,917 | $1,182,917 | $585.78 | | |
| LIB | Library Sno-Isle GEN | 0.3039084203 | $1,182,917 | $1,182,917 | $359.50 | | |
| PORTWHID | Port of S Whidbey GEN | 0.1086004714 | $1,182,917 | $1,182,917 | $128.47 | | |
| SCH206BOND | School 206 BOND | 0.5960237832 | $1,182,917 | $1,182,917 | $705.05 | | |
| SCH206CAP | School 206 CP | 0.3066144020 | $1,182,917 | $1,182,917 | $362.70 | | |
| SCH206MO | School 206 Enrichment | 0.4808755445 | $1,182,917 | $1,182,917 | $568.84 | | |
| ST | State School | 1.4761226122 | $1,182,917 | $1,182,917 | $1,746.13 | | |
| ST2 | State School Part 2 | 0.7953803475 | $1,182,917 | $1,182,917 | $940.87 | | |
| SWHIDPRBD | P & R S Whidbey BOND | 0.0144185398 | $1,182,917 | $1,182,917 | $17.06 | | |
| SWHIDPRBD3 | P & R S Whidbey BOND3 | 0.1483535547 | $1,182,917 | $1,182,917 | $175.49 | | |
| SWHIDPRMT | P & R S Whidbey GEN | 0.4600000000 | $1,182,917 | $1,182,917 | $544.14 | | |
| | Total Tax Rate: | 8.3823005782 | | | | | |
| | | | | Taxes w/Current Exemptions: | $9,915.58 | | |
| | | | | Taxes w/o Exemptions: | $9,915.58 | | |
Improvement / Building
| Improvement #1: | RESIDENTIAL | State Code: | Y | 2712.0 sqft | Value: | $572,866 |
| Bathrooms: | 3 | Bedrooms: | 4 | | Ceiling: | DRYWALL PAINTED | Cooling: | HEAT PUMP/CONV/V | | Exterior Wall/Cover: | SHINGLE | Floor Covering: | HARDWOOD/CARP 80-20 | | Floor Structure: | WOOD W/SUBFLOOR | Foundation: | CONCRETE BLOCKS | | Interior Finish: | DRYWALL PAINT | Plumbing Fixture Cnt: | 15 | | Roof Slope: | 5" IN 12" | Roof Structure/Cover: | CJ ASPHALT |
|
| | Type | Description | Class CD | Sub Class CD | Year Built | Area |
| | BAS | BASE/MAIN FLOOR | 5 | 0 | 1978 | 1416.0 |
| | OP1 | OPEN PORCH SLAB | 5 | 0 | 1978 | 284.0 |
| | UTY | STORAGE/UTILITY | 5 | 0 | 1978 | 112.0 |
| | OWP | OPEN WOOD PORCH W/STEPS | 5 | 0 | 1978 | 542.5 |
| | OWP | OPEN WOOD PORCH W/STEPS | 5 | 0 | 1978 | 124.0 |
| | OWP | OPEN WOOD PORCH W/STEPS | 5 | 0 | 1978 | 200.0 |
| | OWP | OPEN WOOD PORCH W/STEPS | 5 | 0 | 1978 | 696.0 |
| | DWN | DOWNSTAIRS LIVING AREA | 5 | 0 | 1978 | 1296.0 |
| Improvement #2: | RESIDENTIAL | State Code: | Y | 527.0 sqft | Value: | $220,051 |
| Bathrooms: | 1 | Bedrooms: | 0 | | Ceiling: | DRYWALL PAINTED | Cooling: | HEAT PUMP/CONV/V | | Exterior Wall/Cover: | CEMENT FIBER | Floor Covering: | VINYL 100% | | Floor Structure: | WOOD W/SUBFLOOR | Foundation: | CONCRETE | | Interior Finish: | DRYWALL PAINT | Plumbing Fixture Cnt: | 4 | | Roof Slope: | 3" IN 12" | Roof Structure/Cover: | CJ ALUMINIUM HEAVY |
|
| | Type | Description | Class CD | Sub Class CD | Year Built | Area |
| | BAS | BASE/MAIN FLOOR | 4 | 0 | 2023 | 527.0 |
| | OP2 | OPEN PORCH W/STEPS | 4 | 0 | 2023 | 120.0 |
| | AGR | ATTACHED GARAGE | 4 | 0 | 2023 | 576.0 |
| | OWP | OPEN WOOD PORCH W/STEPS | 4 | 0 | 2023 | 136.0 |
| | UTY | STORAGE/UTILITY | 4 | 0 | 2023 | 144.0 |
Sketch
Property Image
Land
| 1 | 15 | SQ (12001-21780) | 0.0000 | 0.00 | 0.00 | 0.00 | 1.00 | $390,000 | $0 |
Roll Value History
| 2026 | N/A | N/A | N/A | N/A | N/A |
| 2025 | $792,917 | $390,000 | $0 | $1,182,917 | $1,182,917 |
| 2024 | $779,171 | $390,000 | $0 | $1,169,171 | $1,169,171 |
| 2023 | $631,826 | $390,000 | $0 | $1,021,826 | $1,021,826 |
| 2022 | $552,230 | $340,000 | $0 | $892,230 | $892,230 |
| 2021 | $485,882 | $320,000 | $0 | $805,882 | $805,882 |
| 2020 | $472,863 | $320,000 | $0 | $792,863 | $792,863 |
| 2019 | $355,194 | $340,000 | $0 | $695,194 | $695,194 |
| 2018 | $358,532 | $300,000 | $0 | $658,532 | $658,532 |
| 2017 | $330,776 | $250,000 | $0 | $580,776 | $580,776 |
| 2016 | $334,797 | $220,000 | $0 | $554,797 | $554,797 |
| 2015 | $338,817 | $220,000 | $0 | $558,817 | $558,817 |
| 2014 | $345,364 | $195,960 | $0 | $541,324 | $541,324 |
| 2013 | $349,409 | $186,760 | $0 | $536,169 | $536,169 |
| 2012 | $353,453 | $186,760 | $0 | $540,213 | $540,213 |
| 2011 | $357,496 | $203,000 | $0 | $560,496 | $560,496 |
| 2010 | $369,071 | $203,000 | $0 | $572,071 | $572,071 |
| 2009 | $384,329 | $250,000 | $0 | $634,329 | $634,329 |
| 2008 | $389,495 | $300,000 | $0 | $689,495 | $689,495 |
| 2007 | $393,978 | $300,000 | $0 | $693,978 | $693,978 |
Deed and Sales History
| 1 | 03/30/2022 | SPLTDWARDE | Special Limited Warranty Deed | LEWIS, KATHERINE | WEIL TTEE, JOSEPH ROBERT | | | $0.00 | 52665 | 4543133 |
| 2 | 05/12/2017 | WD | Warranty Deed | BARR, ROBERT E | LEWIS, KATHERINE | | | $720,000.00 | 29347 | 4422775 |
| 3 | 08/24/2009 | WD | Warranty Deed | MALLOW, CHARLES L | BARR, ROBERT E | | | $622,000.00 | 92089 | 4259642 |
| 4 | 10/05/2007 | PRD | Personal Representatives Deed | MALLOW, CHARLES L | MALLOW, CHARLES L | | | $0.00 | 73979 | 4217804 |
| 5 | 02/26/2001 | WD | Warranty Deed | SARGENT, PATRICIA F | MALLOW, CHARLES L | | | $359,000.00 | 10718 | 20026761 |
| 6 | 11/01/1987 | WD | Warranty Deed | ROMER, SHEILA | SARGENT, PATRICIA F | | | $115,000.00 | 73677 | 87016010 |
| 7 | 01/01/1985 | WD | Warranty Deed | WALES, LEE & | ROMER, SHEILA | | | $76,000.00 | 50271 | 85001267 |
| 8 | 03/01/1979 | OTHER | Other - Misc. Documents | BA, | WALES, LEE & | | | $0.00 | 92404 | 352674 |
| 9 | 11/01/1978 | OTHER | Other - Misc. Documents | Unknown | BA, | | | $65,500.00 | 86049 | 344502 |
Payout Agreement
| No payout information available.. |