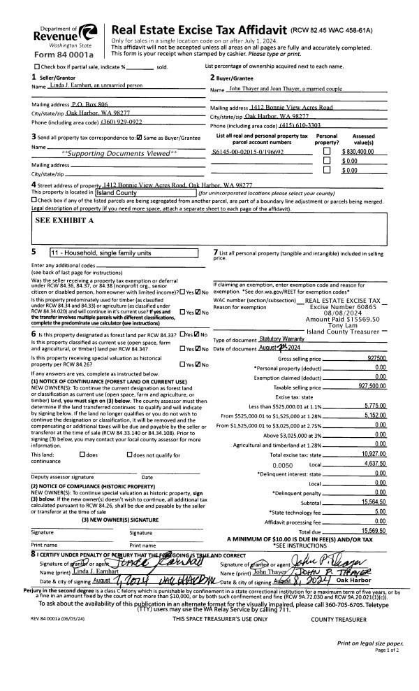
Property
Account |
| Property ID: | 322608 | Abbreviated Legal Description: | MELSENS LOTS 34 & 35 EX: BG NECR SD LOT 35 N89*W ALG NLN SD LOT 35 127.02' TO NWCR S ALG WLN SD LOT 35 1.86' S89*E127.01' TPB AKA RE-PLAT MELSENS ADDITION TO TOWN OF LANGLEY |
| Geographic ID: | S7500-00-00034-0 | Agent Code: | |
| Type: | Real | | |
| Tax Area: | 700 - APPRAISER-S Whid Schl Dist, in town of Langley | Land Use Code | 11 |
| Open Space: | N | DFL | N |
| Historic Property: | N | Remodel Property: | N |
| Multi-Family Redevelopment: | N | | |
| Township: | | Section: | |
| Range: | |
Location |
| Address: | 431 ANTHES AVE LANGLEY, WA 98260 | Mapsco: | |
| Neighborhood: | City of Langley | Map ID: | 912 |
| Neighborhood CD: | 04-L |
Owner |
| Name: | MADRONE, SALLIE ROSE | Owner ID: | 313542 |
| Mailing Address: | 431 ANTHES AVE LANGLEY, WA 98260 | % Ownership: | 100.0000000000% |
| | | Exemptions: | |
Taxes and Assessment Details
Values
| (+) Improvement Homesite Value: | + | $0 | |
| (+) Improvement Non-Homesite Value: | + | $882,997 | |
| (+) Land Homesite Value: | + | $0 | |
| (+) Land Non-Homesite Value: | + | $370,000 | |
| (+) Curr Use (HS): | + | $0 | $0 |
| (+) Curr Use (NHS): | + | $0 | $0 |
| | | -------------------------- | |
| (=) Market Value: | = | $1,252,997 | |
| (–) Productivity Loss: | – | $0 | |
| | | -------------------------- | |
| (=) Subtotal: | = | $1,252,997 | |
| (+) Senior Appraised Value: | + | $0 | |
| (+) Non-Senior Appraised Value: | + | $1,252,997 | |
| | | -------------------------- | |
| (=) Total Appraised Value: | = | $1,252,997 | |
| (–) Senior Exemption Loss: | – | $0 | |
| (–) Exemption Loss: | – | $0 | |
| | | -------------------------- | |
| (=) Taxable Value: | = | $1,252,997 | |
Taxing Jurisdiction
| Owner: | MADRONE, SALLIE ROSE | | |
| % Ownership: | 100.0000000000% | | |
| Total Value: | $1,252,997 | | |
| Tax Area: | 700 - APPRAISER-S Whid Schl Dist, in town of Langley |
| CF | Conservation Futures | 0.0313996660 | $1,252,997 | $1,252,997 | $39.34 | | |
| LANG | City of Langley | 1.0106798199 | $1,252,997 | $1,252,997 | $1,266.38 | | |
| LANGBOND | City of Langley BOND | 0.0000000000 | $1,252,997 | $1,252,997 | $0.00 | | |
| FIRE3 | Fire & Rescue Dist #3 S Whidbey GEN | 1.2130821753 | $1,252,997 | $1,252,997 | $1,519.99 | | |
| HOBOND | Hospital BOND | 0.1893405597 | $1,252,997 | $1,252,997 | $237.24 | | |
| HOGEN | Hospital GEN | 0.3848777722 | $1,252,997 | $1,252,997 | $482.25 | | |
| CE | County Current Expense | 0.3674210519 | $1,252,997 | $1,252,997 | $460.38 | | |
| ISLANDEMS | Hospital GEN (EMS) | 0.4952018576 | $1,252,997 | $1,252,997 | $620.49 | | |
| LIB | Library Sno-Isle GEN | 0.3039084203 | $1,252,997 | $1,252,997 | $380.80 | | |
| PORTWHID | Port of S Whidbey GEN | 0.1086004714 | $1,252,997 | $1,252,997 | $136.08 | | |
| SCH206BOND | School 206 BOND | 0.5960237832 | $1,252,997 | $1,252,997 | $746.82 | | |
| SCH206CAP | School 206 CP | 0.3066144020 | $1,252,997 | $1,252,997 | $384.19 | | |
| SCH206MO | School 206 Enrichment | 0.4808755445 | $1,252,997 | $1,252,997 | $602.54 | | |
| ST | State School | 1.4761226122 | $1,252,997 | $1,252,997 | $1,849.58 | | |
| ST2 | State School Part 2 | 0.7953803475 | $1,252,997 | $1,252,997 | $996.61 | | |
| SWHIDPRBD | P & R S Whidbey BOND | 0.0144185398 | $1,252,997 | $1,252,997 | $18.07 | | |
| SWHIDPRBD3 | P & R S Whidbey BOND3 | 0.1483535547 | $1,252,997 | $1,252,997 | $185.89 | | |
| SWHIDPRMT | P & R S Whidbey GEN | 0.4600000000 | $1,252,997 | $1,252,997 | $576.38 | | |
| | Total Tax Rate: | 8.3823005782 | | | | | |
| | | | | Taxes w/Current Exemptions: | $10,503.03 | | |
| | | | | Taxes w/o Exemptions: | $10,503.03 | | |
Improvement / Building
| Improvement #1: | RESIDENTIAL | State Code: | Y | 3448.2 sqft | Value: | $882,997 |
| Bathrooms: | 3 | Bedrooms: | 3 | | Ceiling: | DRYWALL PAINTED | Cooling: | HEAT PUMP/CONV/V | | Exterior Wall/Cover: | WOOD SIDING | Floor Covering: | HARDWOOD/CARP 60-40 | | Floor Structure: | WOOD W/SUBFLOOR | Foundation: | CONCRETE | | Interior Finish: | DRYWALL PAINT | Plumbing Fixture Cnt: | 12 | | Roof Slope: | 8" IN 12" | Roof Structure/Cover: | CJ ASPHALT |
|
| | Type | Description | Class CD | Sub Class CD | Year Built | Area |
| | BAS | BASE/MAIN FLOOR | 6 | 0 | 1992 | 1392.8 |
| | OWP | OPEN WOOD PORCH W/STEPS | 6 | 0 | 1992 | 85.2 |
| | BIG | BUILT IN GARAGE | 6 | 0 | 1992 | 528.0 |
| | UPS | UPPER STORY | 6 | 0 | 1992 | 2055.4 |
| | OWC | OPEN WOOD PORCH W/STEPS/ROOF/C | 6 | 0 | 1992 | 481.5 |
| | OP1 | OPEN PORCH SLAB | 6 | 0 | 1992 | 374.0 |
| | OP4 | OPEN PORCH W/CEILING-ROOF | 6 | 0 | 1992 | 168.0 |
Sketch
| No sketches available for this property. |
Property Image
Land
| 1 | 15 | SQ (12001-21780) | 0.0000 | 0.00 | 0.00 | 0.00 | 1.00 | $370,000 | $0 |
Roll Value History
| 2026 | N/A | N/A | N/A | N/A | N/A |
| 2025 | $882,997 | $370,000 | $0 | $1,252,997 | $1,252,997 |
| 2024 | $553,497 | $370,000 | $0 | $923,497 | $923,497 |
| 2023 | $560,951 | $370,000 | $0 | $930,951 | $930,951 |
| 2022 | $514,682 | $300,000 | $0 | $814,682 | $814,682 |
| 2021 | $453,437 | $285,000 | $0 | $738,437 | $738,437 |
| 2020 | $409,051 | $285,000 | $0 | $694,051 | $694,051 |
| 2019 | $346,460 | $340,000 | $0 | $686,460 | $686,460 |
| 2018 | $347,642 | $300,000 | $0 | $647,642 | $647,642 |
| 2017 | $336,084 | $250,000 | $0 | $586,084 | $586,084 |
| 2016 | $340,751 | $220,000 | $0 | $560,751 | $560,751 |
| 2015 | $345,421 | $220,000 | $0 | $565,421 | $565,421 |
| 2014 | $350,088 | $170,200 | $0 | $520,288 | $520,288 |
| 2013 | $339,322 | $240,200 | $0 | $579,522 | $579,522 |
| 2012 | $343,786 | $170,200 | $0 | $513,986 | $513,986 |
| 2011 | $435,602 | $185,000 | $0 | $620,602 | $620,602 |
| 2010 | $456,321 | $193,000 | $0 | $649,321 | $649,321 |
| 2009 | $476,073 | $250,000 | $0 | $726,073 | $726,073 |
| 2008 | $480,504 | $300,000 | $0 | $780,504 | $780,504 |
| 2007 | $486,318 | $300,000 | $0 | $786,318 | $786,318 |
Deed and Sales History
| 1 | 08/16/2024 | WD | Warranty Deed | LACEWELL, JOHN K | MADRONE, SALLIE ROSE | | | $1,500,000.00 | 60971 | 4575928 |
| 2 | 05/17/2012 | WD | Warranty Deed | DURDEN, CHARLES D | LACEWELL, JOHN K | | | $488,000.00 | 7733 | 4315893 |
| 3 | 04/21/2008 | ESTSEPPROP | Establish Separate Property | DURDEN, CHARLES D | | | | | 81612 | 4231312 |
| 4 | 08/01/1993 | WD | Warranty Deed | MYRES, MARK D | DURDEN, CHARLES D | | | $385,000.00 | 33159 | 93016344 |
| 5 | 09/01/1989 | WD | Warranty Deed | WILLSON, BRANDT L | MYRES, MARK D | | | $42,500.00 | 93869 | 89012960 |
| 6 | 03/01/1983 | REC | Real Estate Contract | WILLSON, BRANDT L | WILLSON, BRANDT L | | | $25,500.00 | 30799 | 407749 |
| 7 | 03/01/1983 | QCD | Quit Claim Deed | MELSEN, HOWARD C | WILLSON, BRANDT L | | | $0.00 | 30800 | 407750 |
| 8 | 01/01/1900 | OTHER | Other - Misc. Documents | Unknown | MELSEN, HOWARD C | | | $0.00 | 0 | 0 |
Payout Agreement
| No payout information available.. |