Property
Account |
| Property ID: | 323000 | Abbreviated Legal Description: | MENLO BCH LOT 30 INCL ADJ TIDES EX CO RD 95D123 TGW VAC R/W AF#95009721 |
| Geographic ID: | S7505-00-00030-0 | Agent Code: | |
| Type: | Real | | |
| Tax Area: | 712 - APPRAISER-S Whid Schl Dist, outside Langley, improved, greater than 1 acre | Land Use Code | 11 |
| Open Space: | N | DFL | N |
| Historic Property: | N | Remodel Property: | N |
| Multi-Family Redevelopment: | N | | |
| Township: | | Section: | |
| Range: | |
Location |
| Address: | 5712 MUTINY BAY RD FREELAND, WA 98249 | Mapsco: | |
| Neighborhood: | Cycle 3 | Map ID: | 331 |
| Neighborhood CD: | 3 |
Owner |
| Name: | ROSEN, JUDITH S | Owner ID: | 300385 |
| Mailing Address: | KERMIT ROSEN JR 5712 MUTINY BAY RD FREELAND, WA 98249 | % Ownership: | 100.0000000000% |
| | | Exemptions: | |
Taxes and Assessment Details
Values
| (+) Improvement Homesite Value: | + | $0 | |
| (+) Improvement Non-Homesite Value: | + | $1,081,087 | |
| (+) Land Homesite Value: | + | $0 | |
| (+) Land Non-Homesite Value: | + | $3,551,000 | |
| (+) Curr Use (HS): | + | $0 | $0 |
| (+) Curr Use (NHS): | + | $0 | $0 |
| | | -------------------------- | |
| (=) Market Value: | = | $4,632,087 | |
| (–) Productivity Loss: | – | $0 | |
| | | -------------------------- | |
| (=) Subtotal: | = | $4,632,087 | |
| (+) Senior Appraised Value: | + | $0 | |
| (+) Non-Senior Appraised Value: | + | $4,632,087 | |
| | | -------------------------- | |
| (=) Total Appraised Value: | = | $4,632,087 | |
| (–) Senior Exemption Loss: | – | $0 | |
| (–) Exemption Loss: | – | $0 | |
| | | -------------------------- | |
| (=) Taxable Value: | = | $4,632,087 | |
Taxing Jurisdiction
| Owner: | ROSEN, JUDITH S | | |
| % Ownership: | 100.0000000000% | | |
| Total Value: | $4,632,087 | | |
| Tax Area: | 712 - APPRAISER-S Whid Schl Dist, outside Langley, improved, greater than 1 acre |
| CF | Conservation Futures | 0.0313996660 | $4,632,087 | $4,632,087 | $145.45 | | |
| FIRE3 | Fire & Rescue Dist #3 S Whidbey GEN | 1.2130821753 | $4,632,087 | $4,632,087 | $5,619.10 | | |
| HOBOND | Hospital BOND | 0.1893405597 | $4,632,087 | $4,632,087 | $877.04 | | |
| HOGEN | Hospital GEN | 0.3848777722 | $4,632,087 | $4,632,087 | $1,782.79 | | |
| CE | County Current Expense | 0.3674210519 | $4,632,087 | $4,632,087 | $1,701.93 | | |
| CR | County Roads | 0.4614296361 | $4,632,087 | $4,632,087 | $2,137.38 | | |
| ISLANDEMS | Hospital GEN (EMS) | 0.4952018576 | $4,632,087 | $4,632,087 | $2,293.82 | | |
| LIB | Library Sno-Isle GEN | 0.3039084203 | $4,632,087 | $4,632,087 | $1,407.73 | | |
| PORTWHID | Port of S Whidbey GEN | 0.1086004714 | $4,632,087 | $4,632,087 | $503.05 | | |
| SCH206BOND | School 206 BOND | 0.5960237832 | $4,632,087 | $4,632,087 | $2,760.83 | | |
| SCH206CAP | School 206 CP | 0.3066144020 | $4,632,087 | $4,632,087 | $1,420.26 | | |
| SCH206MO | School 206 Enrichment | 0.4808755445 | $4,632,087 | $4,632,087 | $2,227.46 | | |
| ST | State School | 1.4761226122 | $4,632,087 | $4,632,087 | $6,837.53 | | |
| ST2 | State School Part 2 | 0.7953803475 | $4,632,087 | $4,632,087 | $3,684.27 | | |
| SWHIDPRBD | P & R S Whidbey BOND | 0.0144185398 | $4,632,087 | $4,632,087 | $66.79 | | |
| SWHIDPRBD3 | P & R S Whidbey BOND3 | 0.1483535547 | $4,632,087 | $4,632,087 | $687.19 | | |
| SWHIDPRMT | P & R S Whidbey GEN | 0.4600000000 | $4,632,087 | $4,632,087 | $2,130.76 | | |
| | Total Tax Rate: | 7.8330503944 | | | | | |
| | | | | Taxes w/Current Exemptions: | $36,283.38 | | |
| | | | | Taxes w/o Exemptions: | $36,283.38 | | |
Improvement / Building
| Improvement #1: | RESIDENTIAL | State Code: | Y | 2760.4 sqft | Value: | $1,081,087 |
| Bathrooms: | 4 | Bedrooms: | 4 | | Ceiling: | DRYWALL PAINTED | Exterior Wall/Cover: | STUCCO | | Floor Covering: | TILE CERAMIC | Floor Structure: | SLAB ABOVE GRADE | | Foundation: | CONCRETE | Heating: | RADIANT FLOOR | | Interior Finish: | DRYWALL PAINT | Plumbing Fixture Cnt: | 15 | | Roof Slope: | 3" IN 12" | Roof Structure/Cover: | STEEL TERNE |
|
| | Type | Description | Class CD | Sub Class CD | Year Built | Area |
| | BAS | BASE/MAIN FLOOR | 5 | 0 | 1995 | 2760.4 |
| | OP1 | OPEN PORCH SLAB | 5 | 0 | 1995 | 607.1 |
| | OP4 | OPEN PORCH W/CEILING-ROOF | 5 | 0 | 1995 | 53.7 |
| | OP4 | OPEN PORCH W/CEILING-ROOF | 5 | 0 | 1995 | 53.0 |
| | OP4 | OPEN PORCH W/CEILING-ROOF | 5 | 0 | 1995 | 48.0 |
| | BIG | BUILT IN GARAGE | 5 | 0 | 1995 | 1304.0 |
| | ENP | ENCLOSED PORCH | 5 | 0 | 1995 | 1120.0 |
Sketch
Property Image
Land
| 1 | LB | LOW BANK | 0.0000 | 0.00 | 100.00 | 0.00 | 1.00 | $3,550,000 | $0 |
| 2 | 55 | TIDES | 0.0000 | 0.00 | 100.00 | 0.00 | 1.00 | $1,000 | $0 |
Roll Value History
| 2026 | N/A | N/A | N/A | N/A | N/A |
| 2025 | $1,081,087 | $3,551,000 | $0 | $4,632,087 | $4,632,087 |
| 2024 | $1,093,769 | $3,551,000 | $0 | $4,644,769 | $4,644,769 |
| 2023 | $1,106,450 | $3,551,000 | $0 | $4,657,450 | $4,657,450 |
| 2022 | $1,013,397 | $3,101,000 | $0 | $4,114,397 | $4,114,397 |
| 2021 | $794,005 | $2,001,000 | $0 | $2,795,005 | $2,795,005 |
| 2020 | $775,723 | $1,751,000 | $0 | $2,526,723 | $2,526,723 |
| 2019 | $627,354 | $1,801,000 | $0 | $2,428,354 | $2,428,354 |
| 2018 | $629,264 | $1,751,000 | $0 | $2,380,264 | $2,380,264 |
| 2017 | $633,072 | $1,751,000 | $0 | $2,384,072 | $2,384,072 |
| 2016 | $640,700 | $1,751,000 | $0 | $2,391,700 | $2,391,700 |
| 2015 | $648,329 | $1,751,000 | $0 | $2,399,329 | $2,399,329 |
| 2014 | $655,955 | $1,426,000 | $0 | $2,081,955 | $2,081,955 |
| 2013 | $656,573 | $1,588,988 | $0 | $2,245,561 | $2,245,561 |
| 2012 | $664,143 | $1,588,988 | $0 | $2,253,131 | $2,253,131 |
| 2011 | $572,665 | $1,588,988 | $0 | $2,161,653 | $2,161,653 |
| 2010 | $493,333 | $1,588,988 | $0 | $2,082,321 | $2,082,321 |
| 2009 | $514,676 | $1,891,462 | $0 | $2,406,138 | $2,406,138 |
| 2008 | $521,354 | $1,891,462 | $0 | $2,412,816 | $2,412,816 |
| 2007 | $532,146 | $1,890,762 | $0 | $2,422,908 | $2,422,908 |
Deed and Sales History
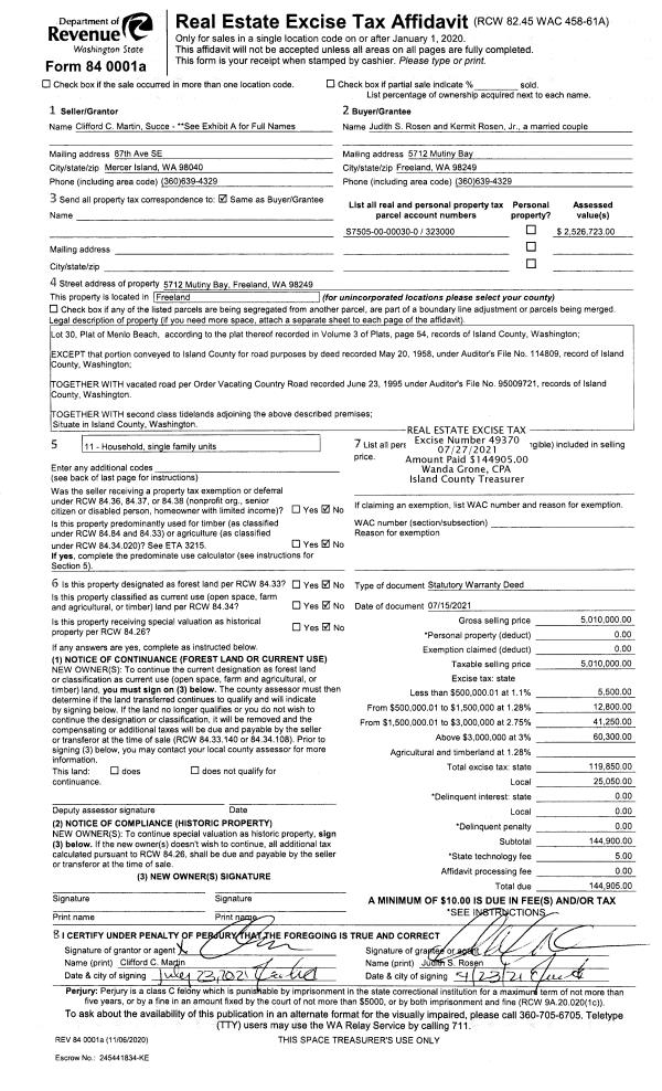
| 1 | 07/15/2021 | WD | Warranty Deed | MARTIN TRUSTEE, MAUREEN | ROSEN, JUDITH S | | | $5,010,000.00 | 49370 | 4525499 |
| 2 | 06/29/2000 | QCD | Quit Claim Deed | MARTIN, MAUREEN | MARTIN, TR, MAUREEN | | | $0.00 | 2501 | 20011825 |
| 3 | 09/01/1994 | WD | Warranty Deed | LARSON, IRENE | MARTIN, MAUREEN | | | $545,000.00 | 44014 | 94020730 |
| 4 | 05/01/1994 | QCD | Quit Claim Deed | LARSON, EDWIN R | LARSON, IRENE | | | $0.00 | 44013 | 94020729 |
| 5 | 01/01/1900 | OTHER | Other - Misc. Documents | Unknown | LARSON, EDWIN R | | | $0.00 | 0 | 0 |
Payout Agreement
| No payout information available.. |