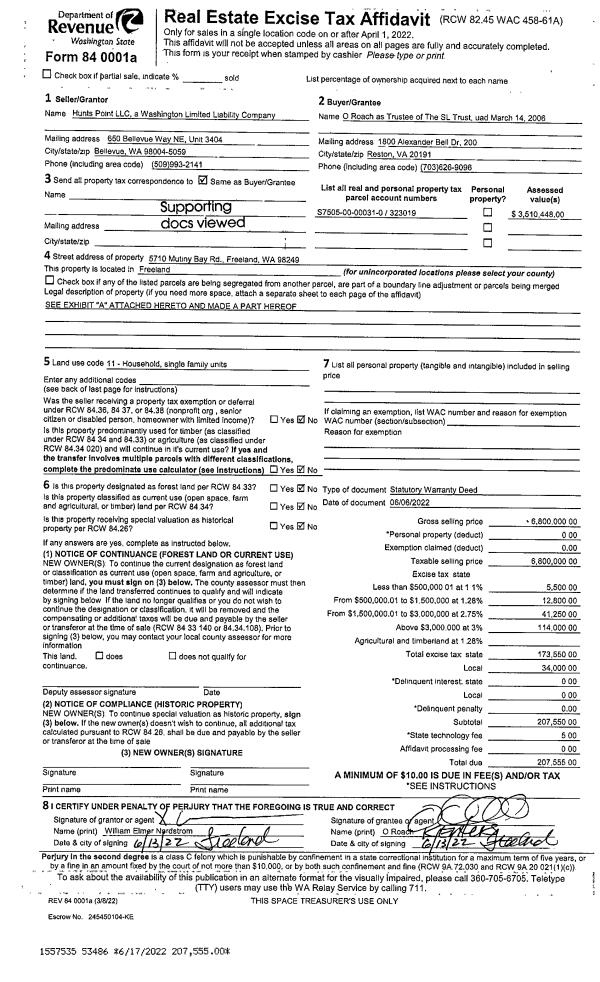
Property
Account |
| Property ID: | 323019 | Abbreviated Legal Description: | MENLO BCH LOT 31 INCL SLY 1/2 PT VAC MUTINY BAY RD V12 CP P37 INCL ADJ TIDES SUB TO EZ TGW EZ AF#89019122 |
| Geographic ID: | S7505-00-00031-0 | Agent Code: | |
| Type: | Real | | |
| Tax Area: | 712 - APPRAISER-S Whid Schl Dist, outside Langley, improved, greater than 1 acre | Land Use Code | 11 |
| Open Space: | N | DFL | N |
| Historic Property: | N | Remodel Property: | N |
| Multi-Family Redevelopment: | N | | |
| Township: | | Section: | |
| Range: | |
Location |
| Address: | 5710 MUTINY BAY RD FREELAND, WA 98249 | Mapsco: | |
| Neighborhood: | Cycle 3 | Map ID: | 333 |
| Neighborhood CD: | 3 |
Owner |
| Name: | ROACH TTEE, O | Owner ID: | 304776 |
| Mailing Address: | 1800 ALEXANDER BELL DR 200 ROSTON, VA 20191 | % Ownership: | 100.0000000000% |
| | | Exemptions: | |
Taxes and Assessment Details
Values
| (+) Improvement Homesite Value: | + | $0 | |
| (+) Improvement Non-Homesite Value: | + | $2,033,416 | |
| (+) Land Homesite Value: | + | $0 | |
| (+) Land Non-Homesite Value: | + | $3,551,000 | |
| (+) Curr Use (HS): | + | $0 | $0 |
| (+) Curr Use (NHS): | + | $0 | $0 |
| | | -------------------------- | |
| (=) Market Value: | = | $5,584,416 | |
| (–) Productivity Loss: | – | $0 | |
| | | -------------------------- | |
| (=) Subtotal: | = | $5,584,416 | |
| (+) Senior Appraised Value: | + | $0 | |
| (+) Non-Senior Appraised Value: | + | $5,584,416 | |
| | | -------------------------- | |
| (=) Total Appraised Value: | = | $5,584,416 | |
| (–) Senior Exemption Loss: | – | $0 | |
| (–) Exemption Loss: | – | $0 | |
| | | -------------------------- | |
| (=) Taxable Value: | = | $5,584,416 | |
Taxing Jurisdiction
| Owner: | ROACH TTEE, O | | |
| % Ownership: | 100.0000000000% | | |
| Total Value: | $5,584,416 | | |
| Tax Area: | 712 - APPRAISER-S Whid Schl Dist, outside Langley, improved, greater than 1 acre |
| CF | Conservation Futures | 0.0313996660 | $5,584,416 | $5,584,416 | $175.35 | | |
| FIRE3 | Fire & Rescue Dist #3 S Whidbey GEN | 1.2130821753 | $5,584,416 | $5,584,416 | $6,774.36 | | |
| HOBOND | Hospital BOND | 0.1893405597 | $5,584,416 | $5,584,416 | $1,057.36 | | |
| HOGEN | Hospital GEN | 0.3848777722 | $5,584,416 | $5,584,416 | $2,149.32 | | |
| CE | County Current Expense | 0.3674210519 | $5,584,416 | $5,584,416 | $2,051.83 | | |
| CR | County Roads | 0.4614296361 | $5,584,416 | $5,584,416 | $2,576.82 | | |
| ISLANDEMS | Hospital GEN (EMS) | 0.4952018576 | $5,584,416 | $5,584,416 | $2,765.41 | | |
| LIB | Library Sno-Isle GEN | 0.3039084203 | $5,584,416 | $5,584,416 | $1,697.15 | | |
| PORTWHID | Port of S Whidbey GEN | 0.1086004714 | $5,584,416 | $5,584,416 | $606.47 | | |
| SCH206BOND | School 206 BOND | 0.5960237832 | $5,584,416 | $5,584,416 | $3,328.44 | | |
| SCH206CAP | School 206 CP | 0.3066144020 | $5,584,416 | $5,584,416 | $1,712.26 | | |
| SCH206MO | School 206 Enrichment | 0.4808755445 | $5,584,416 | $5,584,416 | $2,685.41 | | |
| ST | State School | 1.4761226122 | $5,584,416 | $5,584,416 | $8,243.28 | | |
| ST2 | State School Part 2 | 0.7953803475 | $5,584,416 | $5,584,416 | $4,441.73 | | |
| SWHIDPRBD | P & R S Whidbey BOND | 0.0144185398 | $5,584,416 | $5,584,416 | $80.52 | | |
| SWHIDPRBD3 | P & R S Whidbey BOND3 | 0.1483535547 | $5,584,416 | $5,584,416 | $828.47 | | |
| SWHIDPRMT | P & R S Whidbey GEN | 0.4600000000 | $5,584,416 | $5,584,416 | $2,568.83 | | |
| | Total Tax Rate: | 7.8330503944 | | | | | |
| | | | | Taxes w/Current Exemptions: | $43,743.01 | | |
| | | | | Taxes w/o Exemptions: | $43,743.01 | | |
Improvement / Building
| Improvement #1: | RESIDENTIAL | State Code: | Y | 4187.4 sqft | Value: | $2,033,416 |
| Bathrooms: | 3.5 | Bedrooms: | 3 | | Ceiling: | BEAM PAINTED | Cooling: | HEAT PUMP/CONV/V | | Exterior Wall/Cover: | SHINGLE | Floor Covering: | CERAMIC TILE/HWD 40/60 | | Floor Structure: | WOOD W/SUBFLOOR | Foundation: | CONCRETE | | Interior Finish: | DRYWALL PAINT | Plumbing Fixture Cnt: | 16 | | Roof Slope: | 12" IN 12" | Roof Structure/Cover: | BEAM WOOD SHAKES |
|
| | Type | Description | Class CD | Sub Class CD | Year Built | Area |
| | BAS | BASE/MAIN FLOOR | 8 | 0 | 2007 | 3295.6 |
| | OP1 | OPEN PORCH SLAB | 8 | 0 | 2007 | 180.0 |
| | OP1 | OPEN PORCH SLAB | 8 | 0 | 2007 | 400.0 |
| | OP4 | OPEN PORCH W/CEILING-ROOF | 8 | 0 | 2007 | 160.0 |
| | BIG | BUILT IN GARAGE | 8 | 0 | 2007 | 1099.8 |
| | UTY | STORAGE/UTILITY | 8 | 0 | 2007 | 83.9 |
| | UPS | UPPER STORY | 8 | 0 | 2007 | 891.8 |
| | OWP | OPEN WOOD PORCH W/STEPS | 8 | 0 | 2007 | 396.0 |
| | OWC | OPEN WOOD PORCH W/STEPS/ROOF/C | 8 | 0 | 2007 | 126.0 |
| | OWC | OPEN WOOD PORCH W/STEPS/ROOF/C | 8 | 0 | 2007 | 177.5 |
| | OWC | OPEN WOOD PORCH W/STEPS/ROOF/C | 8 | 0 | 2007 | 300.0 |
| | DGR | DETACHED GARAGE | 8 | 0 | 2007 | 436.8 |
| | OP1 | OPEN PORCH SLAB | 8 | 0 | 2007 | 2880.0 |
Sketch
Property Image
Land
| 1 | LB | LOW BANK | 1.0600 | 46173.60 | 100.00 | 0.00 | 1.00 | $3,550,000 | $0 |
| 2 | 55 | TIDES | 0.0000 | 0.00 | 100.00 | 0.00 | 1.00 | $1,000 | $0 |
Roll Value History
| 2026 | N/A | N/A | N/A | N/A | N/A |
| 2025 | $2,033,416 | $3,551,000 | $0 | $5,584,416 | $5,584,416 |
| 2024 | $2,027,253 | $3,551,000 | $0 | $5,578,253 | $5,578,253 |
| 2023 | $2,043,550 | $3,551,000 | $0 | $5,594,550 | $5,594,550 |
| 2022 | $1,720,597 | $3,101,000 | $0 | $4,821,597 | $4,821,597 |
| 2021 | $1,509,448 | $2,001,000 | $0 | $3,510,448 | $3,510,448 |
| 2020 | $1,467,509 | $1,751,000 | $0 | $3,218,509 | $3,218,509 |
| 2019 | $1,279,649 | $1,801,000 | $0 | $3,080,649 | $3,080,649 |
| 2018 | $1,283,233 | $1,751,000 | $0 | $3,034,233 | $3,034,233 |
| 2017 | $1,289,904 | $1,751,000 | $0 | $3,040,904 | $3,040,904 |
| 2016 | $1,304,237 | $1,751,000 | $0 | $3,055,237 | $3,055,237 |
| 2015 | $1,318,567 | $1,751,000 | $0 | $3,069,567 | $3,069,567 |
| 2014 | $1,332,899 | $1,426,000 | $0 | $2,758,899 | $2,758,899 |
| 2013 | $880,777 | $1,588,988 | $0 | $2,469,765 | $2,469,765 |
| 2012 | $890,130 | $1,588,988 | $0 | $2,479,118 | $2,479,118 |
| 2011 | $899,482 | $1,588,988 | $0 | $2,488,470 | $2,488,470 |
| 2010 | $948,265 | $1,588,988 | $0 | $2,537,253 | $2,537,253 |
| 2009 | $987,353 | $1,891,462 | $0 | $2,878,815 | $2,878,815 |
| 2008 | $1,018,653 | $1,891,462 | $0 | $2,910,115 | $2,910,115 |
| 2007 | $387,925 | $1,890,762 | $0 | $2,278,687 | $2,278,687 |
Deed and Sales History
| 1 | 06/06/2022 | WD | Warranty Deed | HUNTS POINT LLC | ROACH TTEE, O | | | $6,800,000.00 | 53486 | 4546763 |
| 2 | 07/31/2006 | WD | Warranty Deed | BUCKNER, RAYMOND C | HUNTS POINT LLC, | | | $3,250,000.00 | 63400 | 4178318 |
| 3 | 12/01/1989 | QCD | Quit Claim Deed | BUCKNER, RAYMOND C | BUCKNER, RAYMOND C | | | $0.00 | 95733 | 89018383 |
| 4 | 03/01/1975 | EXECUTORD | Executor Deed | MAYNARD, JAMES E | BUCKNER, RAYMOND C | | | $37,500.00 | 54840 | 0 |
| 5 | 01/01/1900 | OTHER | Other - Misc. Documents | Unknown | MAYNARD, JAMES E | | | $0.00 | 0 | 0 |
Payout Agreement
| No payout information available.. |