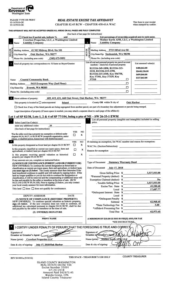
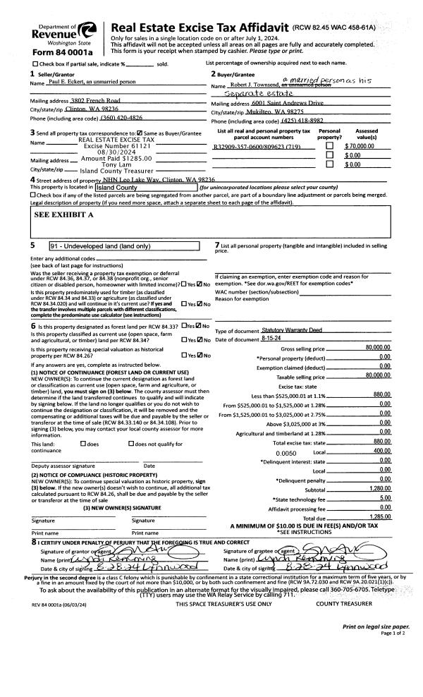
Property
Account |
| Property ID: | 323475 | Abbreviated Legal Description: | Moonwink,s Lot 1,s Blk 0;s LOT B BLA 085-18 AF# 4445857s |
| Geographic ID: | S7515-00-00001-0 | Agent Code: | |
| Type: | Real | | |
| Tax Area: | 710 - APPRAISER-S Whid Schl Dist, outside Langley, improved & 1 acre or less | Land Use Code | 11 |
| Open Space: | N | DFL | N |
| Historic Property: | N | Remodel Property: | N |
| Multi-Family Redevelopment: | N | | |
| Township: | | Section: | |
| Range: | |
Location |
| Address: | | Mapsco: | |
| Neighborhood: | Cycle 4 | Map ID: | 717 |
| Neighborhood CD: | 4 |
Owner |
| Name: | WINSNES TTEE, FREDRIK H. | Owner ID: | 306833 |
| Mailing Address: | SUE O. WINSNES TTEE 4399 WITTER ROAD LANGLEY, WA 98260 | % Ownership: | 100.0000000000% |
| | | Exemptions: | |
Taxes and Assessment Details
Values
| (+) Improvement Homesite Value: | + | $0 | |
| (+) Improvement Non-Homesite Value: | + | $709,082 | |
| (+) Land Homesite Value: | + | $0 | |
| (+) Land Non-Homesite Value: | + | $400,000 | |
| (+) Curr Use (HS): | + | $0 | $0 |
| (+) Curr Use (NHS): | + | $0 | $0 |
| | | -------------------------- | |
| (=) Market Value: | = | $1,109,082 | |
| (–) Productivity Loss: | – | $0 | |
| | | -------------------------- | |
| (=) Subtotal: | = | $1,109,082 | |
| (+) Senior Appraised Value: | + | $0 | |
| (+) Non-Senior Appraised Value: | + | $1,109,082 | |
| | | -------------------------- | |
| (=) Total Appraised Value: | = | $1,109,082 | |
| (–) Senior Exemption Loss: | – | $0 | |
| (–) Exemption Loss: | – | $0 | |
| | | -------------------------- | |
| (=) Taxable Value: | = | $1,109,082 | |
Taxing Jurisdiction
| Owner: | WINSNES TTEE, FREDRIK H. | | |
| % Ownership: | 100.0000000000% | | |
| Total Value: | $1,109,082 | | |
| Tax Area: | 710 - APPRAISER-S Whid Schl Dist, outside Langley, improved & 1 acre or less |
| CF | Conservation Futures | 0.0313996660 | $1,109,082 | $1,109,082 | $34.82 | | |
| FIRE3 | Fire & Rescue Dist #3 S Whidbey GEN | 1.2130821753 | $1,109,082 | $1,109,082 | $1,345.41 | | |
| HOBOND | Hospital BOND | 0.1893405597 | $1,109,082 | $1,109,082 | $209.99 | | |
| HOGEN | Hospital GEN | 0.3848777722 | $1,109,082 | $1,109,082 | $426.86 | | |
| CE | County Current Expense | 0.3674210519 | $1,109,082 | $1,109,082 | $407.50 | | |
| CR | County Roads | 0.4614296361 | $1,109,082 | $1,109,082 | $511.76 | | |
| ISLANDEMS | Hospital GEN (EMS) | 0.4952018576 | $1,109,082 | $1,109,082 | $549.22 | | |
| LIB | Library Sno-Isle GEN | 0.3039084203 | $1,109,082 | $1,109,082 | $337.06 | | |
| PORTWHID | Port of S Whidbey GEN | 0.1086004714 | $1,109,082 | $1,109,082 | $120.45 | | |
| SCH206BOND | School 206 BOND | 0.5960237832 | $1,109,082 | $1,109,082 | $661.04 | | |
| SCH206CAP | School 206 CP | 0.3066144020 | $1,109,082 | $1,109,082 | $340.06 | | |
| SCH206MO | School 206 Enrichment | 0.4808755445 | $1,109,082 | $1,109,082 | $533.33 | | |
| ST | State School | 1.4761226122 | $1,109,082 | $1,109,082 | $1,637.14 | | |
| ST2 | State School Part 2 | 0.7953803475 | $1,109,082 | $1,109,082 | $882.14 | | |
| SWHIDPRBD | P & R S Whidbey BOND | 0.0144185398 | $1,109,082 | $1,109,082 | $15.99 | | |
| SWHIDPRBD3 | P & R S Whidbey BOND3 | 0.1483535547 | $1,109,082 | $1,109,082 | $164.54 | | |
| SWHIDPRMT | P & R S Whidbey GEN | 0.4600000000 | $1,109,082 | $1,109,082 | $510.18 | | |
| | Total Tax Rate: | 7.8330503944 | | | | | |
| | | | | Taxes w/Current Exemptions: | $8,687.49 | | |
| | | | | Taxes w/o Exemptions: | $8,687.49 | | |
Improvement / Building
| Improvement #1: | RESIDENTIAL | State Code: | Y | 2176.0 sqft | Value: | $709,082 |
| Bathrooms: | 2 | Bedrooms: | 3 | | Ceiling: | DRYWALL PAINTED | Exterior Wall/Cover: | CEMENT FIBER | | Floor Covering: | HARDWOOD/CARP 80-20 | Floor Structure: | WOOD W/SUBFLOOR | | Foundation: | CONCRETE | Heating: | WALL HEAT ELECTRIC | | Interior Finish: | DRYWALL PAINT | Plumbing Fixture Cnt: | 12 | | Roof Slope: | 3" IN 12" | Roof Structure/Cover: | CJ ASPHALT |
|
| | Type | Description | Class CD | Sub Class CD | Year Built | Area |
| | BAS | BASE/MAIN FLOOR | 6 | 0 | 2014 | 1179.0 |
| | UPS | UPPER STORY | 6 | 0 | 2014 | 997.0 |
| | OWC | OPEN WOOD PORCH W/STEPS/ROOF/C | 6 | 0 | 2014 | 230.0 |
| | AGR | ATTACHED GARAGE | 6 | 0 | 2014 | 483.0 |
| | OWP | OPEN WOOD PORCH W/STEPS | 6 | 0 | 2014 | 318.0 |
| | OP4 | OPEN PORCH W/CEILING-ROOF | 6 | 0 | 2014 | 30.0 |
Sketch
Property Image
Land
| 1 | 16 | AC (00.51-01.00) | 0.0000 | 0.00 | 0.00 | 0.00 | 1.00 | $400,000 | $0 |
Roll Value History
| 2026 | N/A | N/A | N/A | N/A | N/A |
| 2025 | $709,082 | $400,000 | $0 | $1,109,082 | $1,109,082 |
| 2024 | $715,385 | $350,000 | $0 | $1,065,385 | $1,065,385 |
| 2023 | $720,900 | $350,000 | $0 | $1,070,900 | $1,070,900 |
| 2022 | $658,128 | $350,000 | $0 | $1,008,128 | $1,008,128 |
| 2021 | $576,937 | $350,000 | $0 | $926,937 | $926,937 |
| 2020 | $432,317 | $180,000 | $0 | $612,317 | $612,317 |
| 2019 | $266,665 | $240,000 | $0 | $506,665 | $506,665 |
| 2018 | $267,366 | $200,000 | $0 | $467,366 | $467,366 |
| 2017 | $268,766 | $200,000 | $0 | $468,766 | $468,766 |
| 2016 | $271,566 | $150,000 | $0 | $421,566 | $421,566 |
| 2015 | $274,364 | $150,000 | $0 | $424,364 | $424,364 |
| 2014 | $275,908 | $125,000 | $0 | $400,908 | $400,908 |
| 2013 | $0 | $65,000 | $0 | $65,000 | $65,000 |
| 2012 | $0 | $43,750 | $0 | $43,750 | $43,750 |
| 2011 | $0 | $43,750 | $0 | $43,750 | $43,750 |
| 2010 | $0 | $43,750 | $0 | $43,750 | $43,750 |
| 2009 | $0 | $43,750 | $0 | $43,750 | $43,750 |
| 2008 | $0 | $43,147 | $0 | $43,147 | $43,147 |
| 2007 | $0 | $43,147 | $0 | $43,147 | $43,147 |
Deed and Sales History
| 1 | 09/24/2025 | WD | Warranty Deed | WINSNES TTEE, FREDRIK H. | RICHMOND, PAUL ERIC | | | $1,385,000.00 | 65042 | 4591755 |
| 2 | 07/07/2023 | EZ | Easement | WINSNES TTEE, FREDRIK H. | MOONWICK ASSOCIATION | | | $10,000.00 | 57258 | 4562072 |
| 3 | 12/03/2022 | QCD | Quit Claim Deed | WISNES FAMILY TRUST | WINSNES TTEE, FREDRIK H. | | | $0.00 | 55321 | 4554614 |
| 4 | 11/20/2019 | WD | Warranty Deed | MASCHMEDT, COLLEEN | WISNES FAMILY TRUST | | | $1,075,000.00 | 41190 | 4476042 |
| 5 | 06/26/2018 | QCD | Quit Claim Deed | MASCHMEDT, COLLEEN | MASCHMEDT, COLLEEN | | | $0.00 | 34811 | 4447273 |
| 6 | 05/16/2013 | WD | Warranty Deed | NOVACK, EDWARD J / LORRAINE | MASCHMEDT, COLLEEN | | | $95,000.00 | 11593 | 4341683 |
| 7 | 06/01/1997 | QCD | Quit Claim Deed | NOVACK, EDWARD J | NOVACK, EDWARD J | | | $0.00 | 72863 | 97013503 |
| 8 | 12/01/1989 | TRUSTEED | Trustee's Deed | SMITH, PATRICK J | NOVACK, EDWARD J | | | $0.00 | 95869 | 89018840 |
| 9 | 01/01/1986 | WD | Warranty Deed | NOVACK, EDWARD J | SMITH, PATRICK J | | | $21,500.00 | 60049 | 86000213 |
| 10 | 08/01/1978 | OTHER | Other - Misc. Documents | Unknown | NOVACK, EDWARD J | | | $6,500.00 | 84083 | 338572 |
Payout Agreement
| No payout information available.. |