Property
Account |
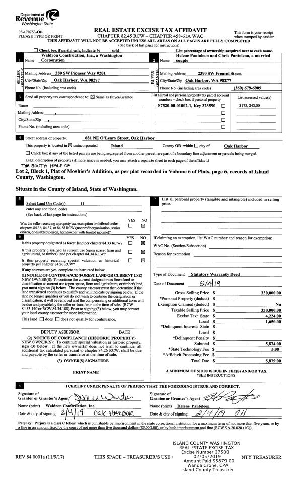
| Property ID: | 323590 | Abbreviated Legal Description: | MOSHIERS ADD S 1/2 OF LOT 2 BLK 1 |
| Geographic ID: | S7520-00-01002-1 | Agent Code: | |
| Type: | Real | | |
| Tax Area: | 110 - APPRAISER-OH Schl Dist, outside OH, improved & 1 acre or less | Land Use Code | 11 |
| Open Space: | N | DFL | N |
| Historic Property: | N | Remodel Property: | N |
| Multi-Family Redevelopment: | N | | |
| Township: | | Section: | |
| Range: | |
Location |
| Address: | 681 NE O'LEARY ST OAK HARBOR, WA 98277 | Mapsco: | |
| Neighborhood: | Cycle 1 | Map ID: | 257 |
| Neighborhood CD: | 1 |
Owner |
| Name: | PANTOLEON, CHRIS | Owner ID: | 192591 |
| Mailing Address: | HELENE PANTOLEON 2390 SW FREUND ST OAK HARBOR, WA 98277-8484 | % Ownership: | 100.0000000000% |
| | | Exemptions: | |
Taxes and Assessment Details
Values
| (+) Improvement Homesite Value: | + | $0 | |
| (+) Improvement Non-Homesite Value: | + | $304,042 | |
| (+) Land Homesite Value: | + | $0 | |
| (+) Land Non-Homesite Value: | + | $160,000 | |
| (+) Curr Use (HS): | + | $0 | $0 |
| (+) Curr Use (NHS): | + | $0 | $0 |
| | | -------------------------- | |
| (=) Market Value: | = | $464,042 | |
| (–) Productivity Loss: | – | $0 | |
| | | -------------------------- | |
| (=) Subtotal: | = | $464,042 | |
| (+) Senior Appraised Value: | + | $0 | |
| (+) Non-Senior Appraised Value: | + | $464,042 | |
| | | -------------------------- | |
| (=) Total Appraised Value: | = | $464,042 | |
| (–) Senior Exemption Loss: | – | $0 | |
| (–) Exemption Loss: | – | $0 | |
| | | -------------------------- | |
| (=) Taxable Value: | = | $464,042 | |
Taxing Jurisdiction
| Owner: | PANTOLEON, CHRIS | | |
| % Ownership: | 100.0000000000% | | |
| Total Value: | $464,042 | | |
| Tax Area: | 110 - APPRAISER-OH Schl Dist, outside OH, improved & 1 acre or less |
| CF | Conservation Futures | 0.0313996660 | $464,042 | $464,042 | $14.57 | | |
| CEM1 | Cemetery #1 | 0.0040018856 | $464,042 | $464,042 | $1.86 | | |
| FIRE2 | Fire & Rescue Dist #2 N Whidbey GEN | 0.5381486274 | $464,042 | $464,042 | $249.72 | | |
| HOBOND | Hospital BOND | 0.1893405597 | $464,042 | $464,042 | $87.86 | | |
| HOGEN | Hospital GEN | 0.3848777722 | $464,042 | $464,042 | $178.60 | | |
| CE | County Current Expense | 0.3674210519 | $464,042 | $464,042 | $170.50 | | |
| CR | County Roads | 0.4614296361 | $464,042 | $464,042 | $214.12 | | |
| ISLANDEMS | Hospital GEN (EMS) | 0.4952018576 | $464,042 | $464,042 | $229.79 | | |
| LIB | Library Sno-Isle GEN | 0.3039084203 | $464,042 | $464,042 | $141.03 | | |
| NWHIDPRMT | P & R N Whidbey GEN | 0.1990272349 | $464,042 | $464,042 | $92.36 | | |
| SCH201MO | School 201 Enrichment | 2.3851112745 | $464,042 | $464,042 | $1,106.79 | | |
| ST | State School | 1.4761226122 | $464,042 | $464,042 | $684.98 | | |
| ST2 | State School Part 2 | 0.7953803475 | $464,042 | $464,042 | $369.09 | | |
| | Total Tax Rate: | 7.6313709459 | | | | | |
| | | | | Taxes w/Current Exemptions: | $3,541.27 | | |
| | | | | Taxes w/o Exemptions: | $3,541.27 | | |
Improvement / Building
| Improvement #1: | RESIDENTIAL | State Code: | Y | 1562.0 sqft | Value: | $304,042 |
| Bathrooms: | 2.5 | Bedrooms: | 3 | | Ceiling: | DRYWALL PAINTED | Cooling: | HEAT PUMP/CONV/V | | Exterior Wall/Cover: | CEMENT FIBER | Floor Covering: | HARDWOOD 100% | | Floor Structure: | SLAB ON GRADE | Foundation: | SLAB/CONCRETE | | Interior Finish: | DRYWALL PAINT | Plumbing Fixture Cnt: | 11 | | Roof Slope: | 4" IN 12" | Roof Structure/Cover: | CJ ASPHALT |
|
| | Type | Description | Class CD | Sub Class CD | Year Built | Area |
| | BAS | BASE/MAIN FLOOR | 3 | 0 | 2018 | 724.0 |
| | UPS | UPPER STORY | 3 | 0 | 2018 | 838.0 |
| | BIG | BUILT IN GARAGE | 3 | 0 | 2018 | 357.0 |
| | OP4 | OPEN PORCH W/CEILING-ROOF | 3 | 0 | 2018 | 54.0 |
| | OWP | OPEN WOOD PORCH W/STEPS | 3 | 0 | 2018 | 64.0 |
Sketch
Property Image
Land
| 1 | 12 | SQ (00000-06000) | 0.0000 | 0.00 | 0.00 | 0.00 | 1.00 | $160,000 | $0 |
Roll Value History
| 2026 | N/A | N/A | N/A | N/A | N/A |
| 2025 | $304,042 | $160,000 | $0 | $464,042 | $464,042 |
| 2024 | $306,514 | $160,000 | $0 | $466,514 | $466,514 |
| 2023 | $308,986 | $160,000 | $0 | $468,986 | $468,986 |
| 2022 | $282,035 | $150,000 | $0 | $432,035 | $432,035 |
| 2021 | $247,190 | $115,000 | $0 | $362,190 | $362,190 |
| 2020 | $240,110 | $100,000 | $0 | $340,110 | $340,110 |
| 2019 | $163,996 | $140,000 | $0 | $303,996 | $303,996 |
| 2018 | $53,243 | $125,000 | $0 | $178,243 | $178,243 |
| 2017 | $0 | $32,500 | $0 | $32,500 | $32,500 |
| 2016 | $0 | $29,900 | $0 | $29,900 | $29,900 |
| 2015 | $0 | $29,900 | $0 | $29,900 | $29,900 |
| 2014 | $0 | $29,900 | $0 | $29,900 | $29,900 |
| 2013 | $0 | $29,900 | $0 | $29,900 | $29,900 |
| 2012 | $0 | $29,900 | $0 | $29,900 | $29,900 |
| 2011 | $0 | $29,900 | $0 | $29,900 | $29,900 |
| 2010 | $0 | $29,900 | $0 | $29,900 | $29,900 |
| 2009 | $0 | $32,000 | $0 | $32,000 | $32,000 |
| 2008 | $0 | $32,000 | $0 | $32,000 | $32,000 |
| 2007 | $0 | $32,000 | $0 | $32,000 | $32,000 |
Deed and Sales History
| 1 | 02/04/2019 | WD | Warranty Deed | WALDRON CONSTRUCTION INC | PANTOLEON, CHRIS | | | $330,000.00 | 37503 | 4458767 |
| 2 | 06/30/2017 | WD | Warranty Deed | BOTTENBERG, FOSTER L | WALDRON CONSTRUCTION INC | | | $79,800.00 | 30081 | 4425674 |
|   | |
| 3 | 03/31/2017 | PRD | Personal Representatives Deed | BOTTENBERG, FOSTER L | BOTTENBERG, FOSTER L | | | $0.00 | 28810 | 4420412 |
| 4 | 08/15/2000 | WD | Warranty Deed | BOREEN, ALLEN R | BOTTENBERG, FOSTER L | | | $14,000.00 | 3104 | 20014580 |
| 5 | 01/01/1974 | TRUSTEED | Trustee's Deed | BIRD, JOHN A | BOREEN, ALLEN R | | | $0.00 | 49668 | 0 |
| 6 | 01/01/1900 | OTHER | Other - Misc. Documents | Unknown | BIRD, JOHN A | | | $0.00 | 0 | 0 |
Payout Agreement
| No payout information available.. |