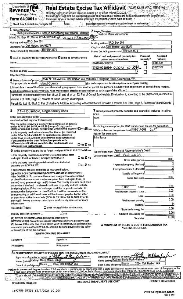
Property
Account |
| Property ID: | 323723 | Abbreviated Legal Description: | MOSHIERS ADD LOT 12 BLK 2 |
| Geographic ID: | S7520-00-02012-0 | Agent Code: | |
| Type: | Real | | |
| Tax Area: | 100 - APPRAISER-OH Schl Dist, in OH | Land Use Code | 11 |
| Open Space: | N | DFL | N |
| Historic Property: | N | Remodel Property: | N |
| Multi-Family Redevelopment: | N | | |
| Township: | | Section: | |
| Range: | |
Location |
| Address: | 1542 NE 6TH AVE OAK HARBOR, WA 98277 | Mapsco: | |
| Neighborhood: | Cycle 1 | Map ID: | 257 |
| Neighborhood CD: | 1 |
Owner |
| Name: | MANN-FISHER, KATHRYN MARIE | Owner ID: | 311608 |
| Mailing Address: | PO BOX 301 OAK HARBOR, WA 98277 | % Ownership: | 100.0000000000% |
| | | Exemptions: | |
Taxes and Assessment Details
Values
| (+) Improvement Homesite Value: | + | $0 | |
| (+) Improvement Non-Homesite Value: | + | $230,214 | |
| (+) Land Homesite Value: | + | $0 | |
| (+) Land Non-Homesite Value: | + | $180,000 | |
| (+) Curr Use (HS): | + | $0 | $0 |
| (+) Curr Use (NHS): | + | $0 | $0 |
| | | -------------------------- | |
| (=) Market Value: | = | $410,214 | |
| (–) Productivity Loss: | – | $0 | |
| | | -------------------------- | |
| (=) Subtotal: | = | $410,214 | |
| (+) Senior Appraised Value: | + | $0 | |
| (+) Non-Senior Appraised Value: | + | $410,214 | |
| | | -------------------------- | |
| (=) Total Appraised Value: | = | $410,214 | |
| (–) Senior Exemption Loss: | – | $0 | |
| (–) Exemption Loss: | – | $0 | |
| | | -------------------------- | |
| (=) Taxable Value: | = | $410,214 | |
Taxing Jurisdiction
| Owner: | MANN-FISHER, KATHRYN MARIE | | |
| % Ownership: | 100.0000000000% | | |
| Total Value: | $410,214 | | |
| Tax Area: | 100 - APPRAISER-OH Schl Dist, in OH |
| CF | Conservation Futures | 0.0313996660 | $410,214 | $410,214 | $12.88 | | |
| CEM1 | Cemetery #1 | 0.0040018856 | $410,214 | $410,214 | $1.64 | | |
| COH | City of Oak Harbor | 2.3090730572 | $410,214 | $410,214 | $947.21 | | |
| OAKBOND | City of Oak Harbor BOND | 0.1902260131 | $410,214 | $410,214 | $78.03 | | |
| HOBOND | Hospital BOND | 0.1893405597 | $410,214 | $410,214 | $77.67 | | |
| HOGEN | Hospital GEN | 0.3848777722 | $410,214 | $410,214 | $157.88 | | |
| CE | County Current Expense | 0.3674210519 | $410,214 | $410,214 | $150.72 | | |
| ISLANDEMS | Hospital GEN (EMS) | 0.4952018576 | $410,214 | $410,214 | $203.14 | | |
| LIB | Library Sno-Isle GEN | 0.3039084203 | $410,214 | $410,214 | $124.67 | | |
| NWHIDPRMT | P & R N Whidbey GEN | 0.1990272349 | $410,214 | $410,214 | $81.64 | | |
| SCH201MO | School 201 Enrichment | 2.3851112745 | $410,214 | $410,214 | $978.41 | | |
| ST | State School | 1.4761226122 | $410,214 | $410,214 | $605.53 | | |
| ST2 | State School Part 2 | 0.7953803475 | $410,214 | $410,214 | $326.28 | | |
| | Total Tax Rate: | 9.1310917527 | | | | | |
| | | | | Taxes w/Current Exemptions: | $3,745.70 | | |
| | | | | Taxes w/o Exemptions: | $3,745.70 | | |
Improvement / Building
| Improvement #1: | RESIDENTIAL | State Code: | Y | 1675.0 sqft | Value: | $230,214 |
| Bathrooms: | 1.5 | Bedrooms: | 3 | | Ceiling: | DRYWALL PAINTED | Exterior Wall/Cover: | WOOD SIDING | | Floor Covering: | VINYL/HARDWOOD 20-80 | Floor Structure: | WOOD W/SUBFLOOR | | Foundation: | CONCRETE BLOCKS | Heating: | FHA GAS | | Interior Finish: | DRYWALL PAINT | Plumbing Fixture Cnt: | 8 | | Roof Slope: | 3" IN 12" | Roof Structure/Cover: | CJ ALUMINIUM HEAVY |
|
| | Type | Description | Class CD | Sub Class CD | Year Built | Area |
| | BAS | BASE/MAIN FLOOR | 3 | 0 | 1958 | 1675.0 |
| | OP1 | OPEN PORCH SLAB | 3 | 0 | 1958 | 225.0 |
| | OP4 | OPEN PORCH W/CEILING-ROOF | 3 | 0 | 1958 | 36.0 |
| | OP3 | OPEN PORCH W/ROOF | 3 | 0 | 1958 | 150.0 |
Sketch
Property Image
Land
| 1 | 14 | SQ (08001-12000) | 0.0000 | 0.00 | 0.00 | 0.00 | 1.00 | $180,000 | $0 |
Roll Value History
| 2026 | N/A | N/A | N/A | N/A | N/A |
| 2025 | $230,214 | $180,000 | $0 | $410,214 | $410,214 |
| 2024 | $233,688 | $170,000 | $0 | $403,688 | $403,688 |
| 2023 | $222,307 | $170,000 | $0 | $392,307 | $392,307 |
| 2022 | $204,289 | $160,000 | $0 | $364,289 | $364,289 |
| 2021 | $180,254 | $125,000 | $0 | $305,254 | $305,254 |
| 2020 | $176,423 | $100,000 | $0 | $276,423 | $276,423 |
| 2019 | $129,766 | $140,000 | $0 | $269,766 | $269,766 |
| 2018 | $130,221 | $125,000 | $0 | $255,221 | $255,221 |
| 2017 | $81,411 | $110,000 | $0 | $191,411 | $191,411 |
| 2016 | $83,107 | $90,000 | $0 | $173,107 | $173,107 |
| 2015 | $84,806 | $70,000 | $0 | $154,806 | $154,806 |
| 2014 | $86,502 | $55,000 | $0 | $141,502 | $141,502 |
| 2013 | $88,198 | $55,000 | $0 | $143,198 | $143,198 |
| 2012 | $89,893 | $65,000 | $0 | $154,893 | $154,893 |
| 2011 | $79,235 | $65,000 | $0 | $144,235 | $144,235 |
| 2010 | $79,510 | $65,000 | $0 | $144,510 | $144,510 |
| 2009 | $83,528 | $87,855 | $0 | $171,383 | $171,383 |
| 2008 | $85,251 | $109,000 | $0 | $194,251 | $194,251 |
| 2007 | $87,038 | $109,000 | $0 | $196,038 | $196,038 |
Deed and Sales History
| 1 | 02/29/2024 | PRD | Personal Representatives Deed | FISHER, JAMES R | MANN-FISHER, KATHRYN MARIE | | | $0.00 | 59356 | 4570038 |
| 2 | 01/01/1990 | WD | Warranty Deed | MYERS, MARALI J | FISHER, JAMES R | | | $63,900.00 | 170 | 90000516 |
| 3 | 12/01/1988 | DECREE | Divorce Decree/Legal Separation | MYERS, DONALD D | MYERS, MARALI J | | | $0.00 | 62959 | 0 |
| 4 | 02/01/1981 | WD | Warranty Deed | OCONNELL, JAMES D | MYERS, DONALD D | | | $51,950.00 | 10414 | 379349 |
| 5 | 01/01/1900 | OTHER | Other - Misc. Documents | Unknown | OCONNELL, JAMES D | | | $0.00 | 0 | 0 |
Payout Agreement
| No payout information available.. |