Property
Account |
| Property ID: | 325302 | Abbreviated Legal Description: | MOUNTAIN VIEW BEACH - 2,s Lot 74-76, 180, 181, 184, 297-300 & 302,s Blk 00;s INCL ADJ VAC BROADMOOR DR AF#325947 AND ADJ TIDES AF#70753 TGW UNDIV 1/7TH INT IN TIDELANDS ADJ TO LOTS 69 THRU 73s |
| Geographic ID: | S7525-02-00074-0 | Agent Code: | |
| Type: | Real | | |
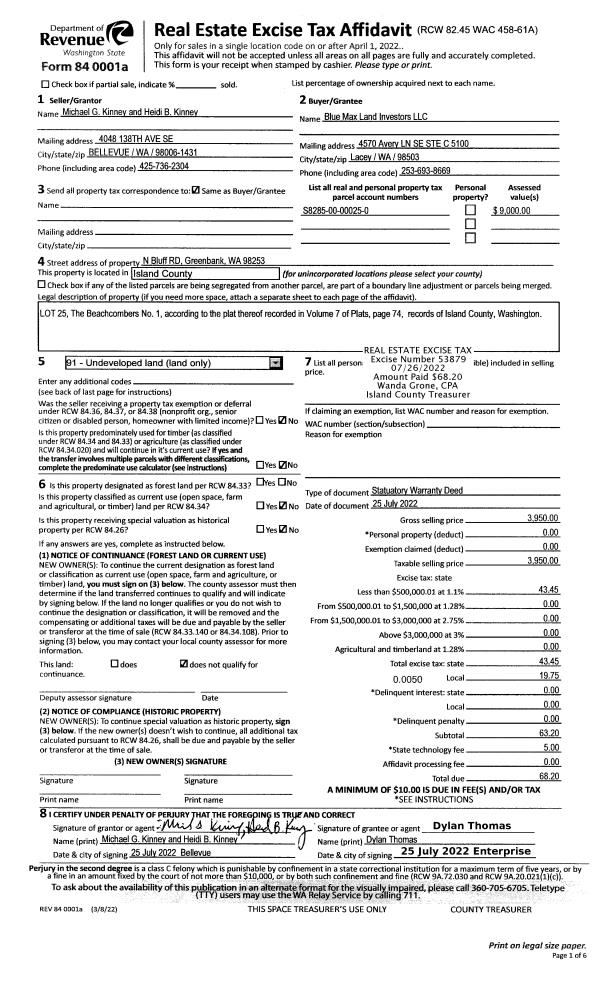
| Tax Area: | 540 - APPRAISER-Stan/Cam Schl Dist, Special Dist, improved & less than 1 acre | Land Use Code | 11 |
| Open Space: | N | DFL | N |
| Historic Property: | N | Remodel Property: | N |
| Multi-Family Redevelopment: | N | | |
| Township: | | Section: | |
| Range: | |
Location |
| Address: | 2261 HIGHLAND DR CAMANO ISLAND, WA 98282 | Mapsco: | |
| Neighborhood: | Cycle 5 | Map ID: | 948 |
| Neighborhood CD: | 5 |
Owner |
| Name: | HALL, JOHN A | Owner ID: | 267627 |
| Mailing Address: | TRACY HALL 2261 HIGHLAND DR CAMANO ISLAND, WA 98282 | % Ownership: | 100.0000000000% |
| | | Exemptions: | |
Taxes and Assessment Details
Values
| (+) Improvement Homesite Value: | + | N/A | |
| (+) Improvement Non-Homesite Value: | + | N/A | |
| (+) Land Homesite Value: | + | N/A | |
| (+) Land Non-Homesite Value: | + | N/A | Ag / Timber Use Value |
| (+) Curr Use (HS): | + | N/A | N/A |
| (+) Curr Use (NHS): | + | N/A | N/A |
| | | -------------------------- | |
| (=) Market Value: | = | N/A | |
| (–) Productivity Loss: | – | N/A | |
| | | -------------------------- | |
| (=) Subtotal: | = | N/A | |
| (+) Senior Appraised Value: | + | N/A | |
| (+) Non-Senior Appraised Value: | + | N/A | |
| | | -------------------------- | |
| (=) Total Appraised Value: | = | N/A | |
| (–) Senior Exemption Loss: | – | N/A | |
| (–) Exemption Loss: | – | N/A | |
| | | -------------------------- | |
| (=) Taxable Value: | = | N/A | |
Taxing Jurisdiction
| Owner: | HALL, JOHN A | | |
| % Ownership: | 100.0000000000% | | |
| Total Value: | N/A | | |
| Tax Area: | 540 - APPRAISER-Stan/Cam Schl Dist, Special Dist, improved & less than 1 acre |
| CF | Conservation Futures | N/A | N/A | N/A | N/A | | |
| CCD | Camano Conservation District | N/A | N/A | N/A | N/A | | |
| EMS1 | Fire & Rescue Dist #1 Camano GEN (EMS) | N/A | N/A | N/A | N/A | | |
| FIRE1 | Fire & Rescue Dist #1 Camano GEN | N/A | N/A | N/A | N/A | | |
| FIRE1BOND | Fire & Rescue Dist #1 Camano BOND | N/A | N/A | N/A | N/A | | |
| CE | County Current Expense | N/A | N/A | N/A | N/A | | |
| CR | County Roads | N/A | N/A | N/A | N/A | | |
| LCIB | Library Sno-Isle BOND (Camano Island) | N/A | N/A | N/A | N/A | | |
| LIB | Library Sno-Isle GEN | N/A | N/A | N/A | N/A | | |
| SCH205_401 | School 205-401 Enrichment | N/A | N/A | N/A | N/A | | |
| SCH205BOND | School 205-401 BOND | N/A | N/A | N/A | N/A | | |
| ST | State School | N/A | N/A | N/A | N/A | | |
| ST2 | State School Part 2 | N/A | N/A | N/A | N/A | | |
| PTMBNAREG | Port of Mabana Regular Levy | N/A | N/A | N/A | N/A | | |
| | Total Tax Rate: | N/A | | | | | |
| | | | | Taxes w/Current Exemptions: | N/A | | |
| | | | | Taxes w/o Exemptions: | N/A | | |
Improvement / Building
| Improvement #1: | RESIDENTIAL | State Code: | Y | 3055.5 sqft | Value: | N/A |
| Bathrooms: | 2 | Bedrooms: | 2 | | Ceiling: | DRYWALL PAINTED | Cooling: | HEAT PUMP/CONV/V | | Exterior Wall/Cover: | CEMENT FIBER | Floor Covering: | VINYL 100% | | Floor Structure: | WOOD W/SUBFLOOR | Foundation: | CONCRETE | | Interior Finish: | DRYWALL PAINT | Plumbing Fixture Cnt: | 10 | | Roof Slope: | 8" IN 12" | Roof Structure/Cover: | CJ ALUMINIUM HEAVY |
|
| | Type | Description | Class CD | Sub Class CD | Year Built | Area |
| | BAS | BASE/MAIN FLOOR | 5 | 0 | 2021 | 1975.5 |
| | BIG | BUILT IN GARAGE | 5 | 0 | 2021 | 1192.0 |
| | OP4 | OPEN PORCH W/CEILING-ROOF | 5 | 0 | 2021 | 267.0 |
| | OWR | OPEN WOOD PORCH W/STEPS/ROOF | 5 | 0 | 2021 | 1057.4 |
| | BAS | BASE/MAIN FLOOR | 5 | 0 | 2021 | 1080.0 |
Sketch
Property Image
Land
| 1 | HB | HIGH BLUFF | 0.0000 | 0.00 | 200.00 | 0.00 | 1.00 | N/A | N/A |
| 2 | HB | HIGH BLUFF | 0.0000 | 0.00 | 100.00 | 0.00 | 1.00 | N/A | N/A |
| 3 | 12 | SQ (00000-06000) | 0.0000 | 0.00 | 0.00 | 0.00 | 1.00 | N/A | N/A |
| 4 | 13 | SQ (06001-08000) | 0.0000 | 0.00 | 0.00 | 0.00 | 1.00 | N/A | N/A |
| 5 | 12 | SQ (00000-06000) | 0.0000 | 0.00 | 0.00 | 0.00 | 1.00 | N/A | N/A |
| 6 | 55 | TIDES | 0.0000 | 0.00 | 50.00 | 0.00 | 1.00 | N/A | N/A |
| 7 | 55 | TIDES | 0.0000 | 0.00 | 0.00 | 0.00 | 1.00 | N/A | N/A |
| 8 | 12 | SQ (00000-06000) | 0.0000 | 0.00 | 0.00 | 0.00 | 1.00 | N/A | N/A |
| 9 | 12 | SQ (00000-06000) | 0.0000 | 0.00 | 0.00 | 0.00 | 1.00 | N/A | N/A |
| 10 | 12 | SQ (00000-06000) | 0.0000 | 0.00 | 0.00 | 0.00 | 1.00 | N/A | N/A |
| 11 | 12 | SQ (00000-06000) | 0.0000 | 0.00 | 0.00 | 0.00 | 1.00 | N/A | N/A |
| 12 | 55 | TIDES | 0.0000 | 0.00 | 50.00 | 0.00 | 1.00 | N/A | N/A |
Roll Value History
| 2026 | N/A | N/A | N/A | N/A | N/A |
| 2025 | $768,622 | $680,000 | $0 | $1,448,622 | $1,448,622 |
| 2024 | $774,722 | $680,000 | $0 | $1,454,722 | $1,454,722 |
| 2023 | $716,813 | $715,000 | $0 | $1,431,813 | $1,431,813 |
| 2022 | $660,872 | $601,000 | $0 | $1,261,872 | $1,261,872 |
| 2021 | $63,663 | $350,000 | $0 | $413,663 | $413,663 |
| 2020 | $123,321 | $315,000 | $0 | $438,321 | $438,321 |
| 2019 | $90,481 | $325,000 | $0 | $415,481 | $415,481 |
| 2018 | $90,793 | $275,000 | $0 | $365,793 | $365,793 |
| 2017 | $91,420 | $200,000 | $0 | $291,420 | $291,420 |
| 2016 | $92,672 | $200,000 | $0 | $292,672 | $292,672 |
| 2015 | $92,272 | $201,000 | $0 | $293,272 | $293,272 |
| 2014 | $73,854 | $200,918 | $0 | $274,772 | $274,772 |
| 2013 | $75,016 | $200,918 | $0 | $275,934 | $275,934 |
| 2012 | $76,179 | $200,918 | $0 | $277,097 | $277,097 |
| 2011 | $77,341 | $211,440 | $0 | $288,781 | $288,781 |
| 2010 | $85,185 | $211,440 | $0 | $296,625 | $296,625 |
| 2009 | $88,866 | $270,973 | $0 | $359,839 | $359,839 |
| 2008 | $90,319 | $319,429 | $0 | $409,748 | $409,748 |
| 2007 | $91,762 | $318,729 | $0 | $410,491 | $410,491 |
Deed and Sales History
| 1 | 08/27/2014 | WD | Warranty Deed | V PORTER REV LIVING TRUST | HALL, JOHN A | | | $299,975.00 | 16643 | 4364907 |
|   | |
| 2 | 02/01/2005 | 5 | DNU - Marriage License/Name Change | PORTER, MRS H | VIOLA H PORTER REVOCABLE LIVIN | | | $0.00 | 50462 | 4124937 |
Payout Agreement
| No payout information available.. |