| 1 | 01/10/2025 | QCD | Quit Claim Deed | JAMIESON, JOHN DOUGLAS ARMSTRONG | DJSJ, LLC | | | $0.00 | 62396 | 4581625 |
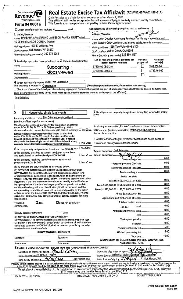
| 2 | 03/18/2024 | QCD | Quit Claim Deed | BARBARA ARMSTRONG JAMIESON FAMILY TRUST | JAMIESON, JOHN DOUGLAS ARMSTRONG | | | $0.00 | 59491 | 4570622 |
| 3 | 12/19/2022 | QCD | Quit Claim Deed | AJP INC | BARBARA ARMSTRONG JAMIESON FAMILY TRUST | | | $0.00 | 59490 | 4570621 |
| 4 | 06/19/2007 | QCD | Quit Claim Deed | JAMIESON TRUSTEE, BARBARA ARMS | AJP INC, | | | $0.00 | 72064 | 425184 |
| 5 | 07/05/2002 | QCD | Quit Claim Deed | JAMIESON, BARBARA | JAMIESON TRUSTEE, BARBARA ARMS | | | $0.00 | 23170 | 4028392 |
| 6 | 04/01/1990 | QCD | Quit Claim Deed | JAMIESON, BARBARA & | JAMIESON, BARBARA | | | $56,600.00 | 2305 | 90007505 |
| 7 | 05/01/1989 | PRD | Personal Representatives Deed | COLBY, RACHEL | JAMIESON, BARBARA & | | | $0.00 | 93754 | 89012544 |
| 8 | 01/01/1900 | OTHER | Other - Misc. Documents | Unknown | COLBY, RACHEL | | | $0.00 | 0 | 0 |