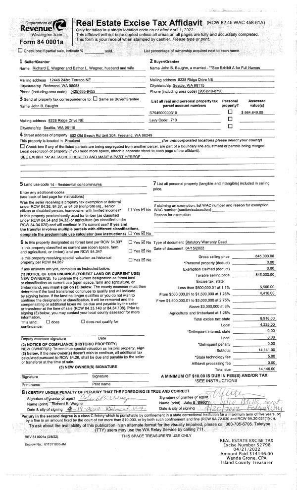
Property
Account |
| Property ID: | 327239 | Abbreviated Legal Description: | MUTINY BAY RIVIERA CONDO APT 31 NOW UNIT 204 BLDG 802 4.09% INT A58896 |
| Geographic ID: | S7545-00-00031-0 | Agent Code: | |
| Type: | Real | | |
| Tax Area: | 710 - APPRAISER-S Whid Schl Dist, outside Langley, improved & 1 acre or less | Land Use Code | 14 |
| Open Space: | N | DFL | N |
| Historic Property: | N | Remodel Property: | N |
| Multi-Family Redevelopment: | N | | |
| Township: | | Section: | |
| Range: | |
Location |
| Address: | 802 OLD BEACH RD UNIT 204 FREELAND, WA 98249 | Mapsco: | |
| Neighborhood: | 33*FR-mut riviera | Map ID: | 305 |
| Neighborhood CD: | 33*FRmtriv |
Owner |
| Name: | MUTINY BAY BAUGHN FAMILY, LLC | Owner ID: | 308638 |
| Mailing Address: | 8338 RIDGE DR NE SEATTLE, WA 98155 | % Ownership: | 100.0000000000% |
| | | Exemptions: | |
Taxes and Assessment Details
Values
| (+) Improvement Homesite Value: | + | $0 | |
| (+) Improvement Non-Homesite Value: | + | $239,367 | |
| (+) Land Homesite Value: | + | $0 | |
| (+) Land Non-Homesite Value: | + | $500,000 | |
| (+) Curr Use (HS): | + | $0 | $0 |
| (+) Curr Use (NHS): | + | $0 | $0 |
| | | -------------------------- | |
| (=) Market Value: | = | $739,367 | |
| (–) Productivity Loss: | – | $0 | |
| | | -------------------------- | |
| (=) Subtotal: | = | $739,367 | |
| (+) Senior Appraised Value: | + | $0 | |
| (+) Non-Senior Appraised Value: | + | $739,367 | |
| | | -------------------------- | |
| (=) Total Appraised Value: | = | $739,367 | |
| (–) Senior Exemption Loss: | – | $0 | |
| (–) Exemption Loss: | – | $0 | |
| | | -------------------------- | |
| (=) Taxable Value: | = | $739,367 | |
Taxing Jurisdiction
| Owner: | MUTINY BAY BAUGHN FAMILY, LLC | | |
| % Ownership: | 100.0000000000% | | |
| Total Value: | $739,367 | | |
| Tax Area: | 710 - APPRAISER-S Whid Schl Dist, outside Langley, improved & 1 acre or less |
| CF | Conservation Futures | 0.0313996660 | $739,367 | $739,367 | $23.22 | | |
| FIRE3 | Fire & Rescue Dist #3 S Whidbey GEN | 1.2130821753 | $739,367 | $739,367 | $896.91 | | |
| HOBOND | Hospital BOND | 0.1893405597 | $739,367 | $739,367 | $139.99 | | |
| HOGEN | Hospital GEN | 0.3848777722 | $739,367 | $739,367 | $284.57 | | |
| CE | County Current Expense | 0.3674210519 | $739,367 | $739,367 | $271.66 | | |
| CR | County Roads | 0.4614296361 | $739,367 | $739,367 | $341.17 | | |
| ISLANDEMS | Hospital GEN (EMS) | 0.4952018576 | $739,367 | $739,367 | $366.14 | | |
| LIB | Library Sno-Isle GEN | 0.3039084203 | $739,367 | $739,367 | $224.70 | | |
| PORTWHID | Port of S Whidbey GEN | 0.1086004714 | $739,367 | $739,367 | $80.30 | | |
| SCH206BOND | School 206 BOND | 0.5960237832 | $739,367 | $739,367 | $440.68 | | |
| SCH206CAP | School 206 CP | 0.3066144020 | $739,367 | $739,367 | $226.70 | | |
| SCH206MO | School 206 Enrichment | 0.4808755445 | $739,367 | $739,367 | $355.54 | | |
| ST | State School | 1.4761226122 | $739,367 | $739,367 | $1,091.40 | | |
| ST2 | State School Part 2 | 0.7953803475 | $739,367 | $739,367 | $588.08 | | |
| SWHIDPRBD | P & R S Whidbey BOND | 0.0144185398 | $739,367 | $739,367 | $10.66 | | |
| SWHIDPRBD3 | P & R S Whidbey BOND3 | 0.1483535547 | $739,367 | $739,367 | $109.69 | | |
| SWHIDPRMT | P & R S Whidbey GEN | 0.4600000000 | $739,367 | $739,367 | $340.11 | | |
| | Total Tax Rate: | 7.8330503944 | | | | | |
| | | | | Taxes w/Current Exemptions: | $5,791.52 | | |
| | | | | Taxes w/o Exemptions: | $5,791.52 | | |
Improvement / Building
| Improvement #1: | RESIDENTIAL | State Code: | A1 | 1635.5 sqft | Value: | $239,367 |
| Bathrooms: | 2 | Bedrooms: | 3 | | Ceiling: | DRY WALL SPRAYED | Exterior Wall/Cover: | SHINGLE | | Floor Covering: | CARPET/VINYL 80-20 | Floor Structure: | WOOD W/SUBFLOOR | | Foundation: | CONCRETE | Heating: | BASEBOARD ELECTRIC | | Interior Finish: | DRYWALL PAINT | Plumbing Fixture Cnt: | 9 | | Roof Slope: | 5" IN 12" | Roof Structure/Cover: | CJ ASPHALT |
|
| | Type | Description | Class CD | Sub Class CD | Year Built | Area |
| | BAS | BASE/MAIN FLOOR | 4 | 0 | 1973 | 1198.5 |
| | OWP | OPEN WOOD PORCH W/STEPS | 4 | 0 | 1973 | 54.0 |
| | OWR | OPEN WOOD PORCH W/STEPS/ROOF | 4 | 0 | 1973 | 90.0 |
| | LOF | LOFT | 4 | 0 | 1973 | 437.0 |
| | COMA | Common Area Improvement | 4 | 0 | 1973 | 0.0 |
Sketch
Property Image
Land
| 1 | MB | MEDIUM BANK | 0.0000 | 0.00 | 42.00 | 0.00 | 1.00 | $500,000 | $0 |
Roll Value History
| 2026 | N/A | N/A | N/A | N/A | N/A |
| 2025 | $239,367 | $500,000 | $0 | $739,367 | $739,367 |
| 2024 | $247,234 | $420,000 | $0 | $667,234 | $667,234 |
| 2023 | $250,510 | $420,000 | $0 | $670,510 | $670,510 |
| 2022 | $230,796 | $420,000 | $0 | $650,796 | $650,796 |
| 2021 | $204,649 | $360,000 | $0 | $564,649 | $564,649 |
| 2020 | $199,918 | $300,000 | $0 | $499,918 | $499,918 |
| 2019 | $128,266 | $360,000 | $0 | $488,266 | $488,266 |
| 2018 | $128,723 | $360,000 | $0 | $488,723 | $488,723 |
| 2017 | $129,640 | $258,888 | $0 | $388,528 | $388,528 |
| 2016 | $131,474 | $258,888 | $0 | $390,362 | $390,362 |
| 2015 | $133,308 | $258,888 | $0 | $392,196 | $392,196 |
| 2014 | $135,141 | $258,888 | $0 | $394,029 | $394,029 |
| 2013 | $140,642 | $258,888 | $0 | $399,530 | $399,530 |
| 2012 | $140,642 | $258,888 | $0 | $399,530 | $399,530 |
| 2011 | $140,642 | $258,888 | $0 | $399,530 | $399,530 |
| 2010 | $151,485 | $258,888 | $0 | $410,373 | $410,373 |
| 2009 | $149,127 | $258,888 | $0 | $408,015 | $408,015 |
| 2008 | $151,116 | $278,375 | $0 | $429,491 | $429,491 |
| 2007 | $146,007 | $239,403 | $0 | $385,410 | $385,410 |
Deed and Sales History
| 1 | 05/10/2023 | QCD | Quit Claim Deed | BAUGHN ET AL, JOHN B | MUTINY BAY BAUGHN FAMILY, LLC | | | $0.00 | 56738 | 4560031 |
| 2 | 04/18/2022 | QCD | Quit Claim Deed | PERRY, MARILYN ANN | BAUGHN ET AL, JOHN B | | | $0.00 | 52799 | 4543792 |
| 3 | 04/15/2022 | WD | Warranty Deed | WAGNER, RICHARD E | BAUGHN ET AL, JOHN B | | | $845,000.00 | 52798 | 4543791 |
| 4 | 07/25/2006 | TRUSTEED | Trustee's Deed | DENTON, JACK V | WAGNER, RICHARD E | | | $400,000.00 | 63268 | 4177492 |
| 5 | 08/22/1999 | WD | Warranty Deed | DENTON, JACK V | DENTON, JACK V | | | $0.00 | 93989 | 99022103 |
| 6 | 05/01/1981 | EZ | Easement | SHAND, ROY A | DENTON, JACK V | | | $150,000.00 | 11441 | 382947 |
| 7 | 07/01/1980 | TRUSTEED | Trustee's Deed | SHAND, ROY A | SHAND, ROY A | | | $72,500.00 | 2371 | 371160 |
| 8 | 07/01/1977 | EXECUTORD | Executor Deed | TAGG, WILMOT R | SHAND, ROY A | | | $1.00 | 11440 | 0 |
| 9 | 01/01/1900 | OTHER | Other - Misc. Documents | Unknown | TAGG, WILMOT R | | | $0.00 | 0 | 0 |
Payout Agreement
| No payout information available.. |