Property
Account |
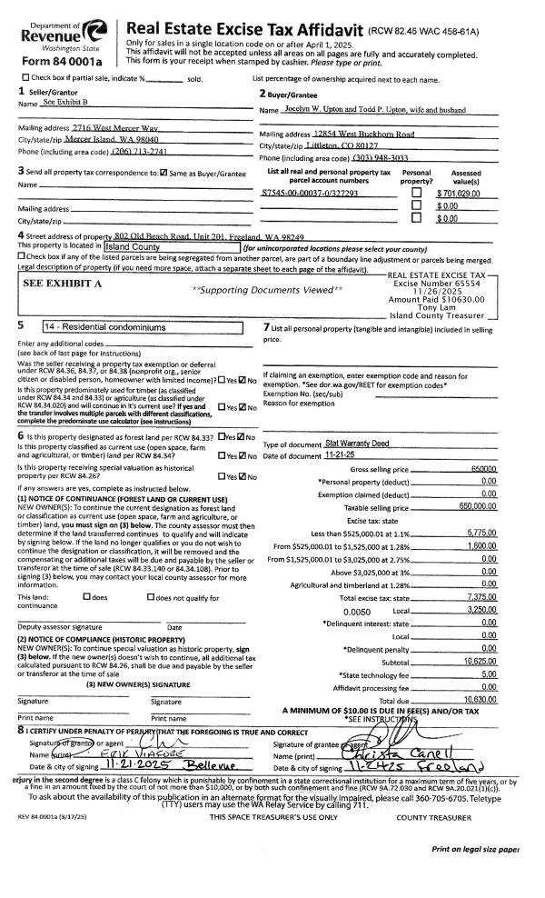
| Property ID: | 327293 | Abbreviated Legal Description: | MUTINY BAY RIVIERA CONDO APT 37 NOW UNIT 201 BLDG 802 3.23% INT |
| Geographic ID: | S7545-00-00037-0 | Agent Code: | |
| Type: | Real | | |
| Tax Area: | 710 - APPRAISER-S Whid Schl Dist, outside Langley, improved & 1 acre or less | Land Use Code | 14 |
| Open Space: | N | DFL | N |
| Historic Property: | N | Remodel Property: | N |
| Multi-Family Redevelopment: | N | | |
| Township: | | Section: | |
| Range: | |
Location |
| Address: | 802 OLD BEACH RD UNIT 201 FREELAND, WA 98249 | Mapsco: | |
| Neighborhood: | 33*FR-mut riviera | Map ID: | 305 |
| Neighborhood CD: | 33*FRmtriv |
Owner |
| Name: | VIAFORE FAMILY LIVING TRUST | Owner ID: | 125736 |
| Mailing Address: | ATTN KEN VIAFORE 4736 154TH PL SE BELLEVUE, WA 98006-3250 | % Ownership: | 100.0000000000% |
| | | Exemptions: | |
Taxes and Assessment Details
Values
| (+) Improvement Homesite Value: | + | $0 | |
| (+) Improvement Non-Homesite Value: | + | $201,029 | |
| (+) Land Homesite Value: | + | $0 | |
| (+) Land Non-Homesite Value: | + | $500,000 | |
| (+) Curr Use (HS): | + | $0 | $0 |
| (+) Curr Use (NHS): | + | $0 | $0 |
| | | -------------------------- | |
| (=) Market Value: | = | $701,029 | |
| (–) Productivity Loss: | – | $0 | |
| | | -------------------------- | |
| (=) Subtotal: | = | $701,029 | |
| (+) Senior Appraised Value: | + | $0 | |
| (+) Non-Senior Appraised Value: | + | $701,029 | |
| | | -------------------------- | |
| (=) Total Appraised Value: | = | $701,029 | |
| (–) Senior Exemption Loss: | – | $0 | |
| (–) Exemption Loss: | – | $0 | |
| | | -------------------------- | |
| (=) Taxable Value: | = | $701,029 | |
Taxing Jurisdiction
| Owner: | VIAFORE FAMILY LIVING TRUST | | |
| % Ownership: | 100.0000000000% | | |
| Total Value: | $701,029 | | |
| Tax Area: | 710 - APPRAISER-S Whid Schl Dist, outside Langley, improved & 1 acre or less |
| CF | Conservation Futures | 0.0313996660 | $701,029 | $701,029 | $22.01 | | |
| FIRE3 | Fire & Rescue Dist #3 S Whidbey GEN | 1.2130821753 | $701,029 | $701,029 | $850.41 | | |
| HOBOND | Hospital BOND | 0.1893405597 | $701,029 | $701,029 | $132.73 | | |
| HOGEN | Hospital GEN | 0.3848777722 | $701,029 | $701,029 | $269.81 | | |
| CE | County Current Expense | 0.3674210519 | $701,029 | $701,029 | $257.57 | | |
| CR | County Roads | 0.4614296361 | $701,029 | $701,029 | $323.48 | | |
| ISLANDEMS | Hospital GEN (EMS) | 0.4952018576 | $701,029 | $701,029 | $347.15 | | |
| LIB | Library Sno-Isle GEN | 0.3039084203 | $701,029 | $701,029 | $213.05 | | |
| PORTWHID | Port of S Whidbey GEN | 0.1086004714 | $701,029 | $701,029 | $76.13 | | |
| SCH206BOND | School 206 BOND | 0.5960237832 | $701,029 | $701,029 | $417.83 | | |
| SCH206CAP | School 206 CP | 0.3066144020 | $701,029 | $701,029 | $214.95 | | |
| SCH206MO | School 206 Enrichment | 0.4808755445 | $701,029 | $701,029 | $337.11 | | |
| ST | State School | 1.4761226122 | $701,029 | $701,029 | $1,034.80 | | |
| ST2 | State School Part 2 | 0.7953803475 | $701,029 | $701,029 | $557.58 | | |
| SWHIDPRBD | P & R S Whidbey BOND | 0.0144185398 | $701,029 | $701,029 | $10.11 | | |
| SWHIDPRBD3 | P & R S Whidbey BOND3 | 0.1483535547 | $701,029 | $701,029 | $104.00 | | |
| SWHIDPRMT | P & R S Whidbey GEN | 0.4600000000 | $701,029 | $701,029 | $322.47 | | |
| | Total Tax Rate: | 7.8330503944 | | | | | |
| | | | | Taxes w/Current Exemptions: | $5,491.19 | | |
| | | | | Taxes w/o Exemptions: | $5,491.19 | | |
Improvement / Building
| Improvement #1: | RESIDENTIAL | State Code: | A1 | 1343.0 sqft | Value: | $201,029 |
| Bathrooms: | 1 | Bedrooms: | 2 | | Ceiling: | DRY WALL SPRAYED | Exterior Wall/Cover: | SHINGLE | | Floor Covering: | CARPET/VINYL 80-20 | Floor Structure: | WOOD W/SUBFLOOR | | Foundation: | CONCRETE | Heating: | BASEBOARD ELECTRIC | | Interior Finish: | DRYWALL PAINT | Plumbing Fixture Cnt: | 6 | | Roof Slope: | 5" IN 12" | Roof Structure/Cover: | CJ ASPHALT |
|
| | Type | Description | Class CD | Sub Class CD | Year Built | Area |
| | BAS | BASE/MAIN FLOOR | 4 | 0 | 1973 | 1044.0 |
| | OWP | OPEN WOOD PORCH W/STEPS | 4 | 0 | 1973 | 36.0 |
| | OWR | OPEN WOOD PORCH W/STEPS/ROOF | 4 | 0 | 1973 | 63.0 |
| | LOF | LOFT | 4 | 0 | 1973 | 299.0 |
| | COMA | Common Area Improvement | 4 | 0 | 1973 | 0.0 |
Sketch
Property Image
Land
| 1 | 61 | MULTIPLE RESIDENCES | 0.0000 | 7778.00 | 0.00 | 0.00 | 1.00 | $500,000 | $0 |
Roll Value History
| 2026 | N/A | N/A | N/A | N/A | N/A |
| 2025 | $201,029 | $500,000 | $0 | $701,029 | $701,029 |
| 2024 | $207,679 | $420,000 | $0 | $627,679 | $627,679 |
| 2023 | $210,407 | $420,000 | $0 | $630,407 | $630,407 |
| 2022 | $193,990 | $420,000 | $0 | $613,990 | $613,990 |
| 2021 | $172,204 | $360,000 | $0 | $532,204 | $532,204 |
| 2020 | $168,493 | $300,000 | $0 | $468,493 | $468,493 |
| 2019 | $107,671 | $320,000 | $0 | $427,671 | $427,671 |
| 2018 | $108,057 | $300,000 | $0 | $408,057 | $408,057 |
| 2017 | $108,827 | $174,538 | $0 | $283,365 | $283,365 |
| 2016 | $110,366 | $174,538 | $0 | $284,904 | $284,904 |
| 2015 | $125,218 | $174,538 | $0 | $299,756 | $299,756 |
| 2014 | $126,943 | $174,538 | $0 | $301,481 | $301,481 |
| 2013 | $132,117 | $174,538 | $0 | $306,655 | $306,655 |
| 2012 | $132,117 | $174,538 | $0 | $306,655 | $306,655 |
| 2011 | $132,117 | $174,538 | $0 | $306,655 | $306,655 |
| 2010 | $159,667 | $174,538 | $0 | $334,205 | $334,205 |
| 2009 | $154,668 | $233,340 | $0 | $388,008 | $388,008 |
| 2008 | $156,527 | $248,896 | $0 | $405,423 | $405,423 |
| 2007 | $154,668 | $108,892 | $0 | $263,560 | $263,560 |
Deed and Sales History
| 1 | 11/21/2025 | WD | Warranty Deed | VIAFORE FAMILY LIVING TRUST | UPTON, JOCELYN W | | | $650,000.00 | 65554 | 4593915 |
| 2 | 05/02/2005 | WD | Warranty Deed | TURNER, WILLIAM S | VIAFORE FAMILY LIVING TRUST, | | | $232,500.00 | 51949 | 4133250 |
| 3 | 08/20/2002 | WD | Warranty Deed | CAMPBELL, JAMES & | TURNER, WILLIAM S | | | $219,000.00 | 23339 | 4029279 |
| 4 | 07/01/1980 | TRUSTEED | Trustee's Deed | HUGHES, LACEY T | CAMPBELL, JAMES & | | | $0.00 | 2377 | 371170 |
| 5 | 01/01/1900 | OTHER | Other - Misc. Documents | Unknown | HUGHES, LACEY T | | | $0.00 | 0 | 0 |
Payout Agreement
| No payout information available.. |