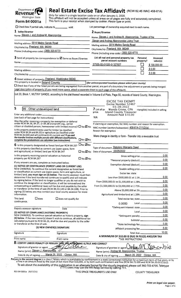
Property
Account |
| Property ID: | 327827 | Abbreviated Legal Description: | MUTINY SANDS LOT 20 BLK 1 |
| Geographic ID: | S7555-00-01020-0 | Agent Code: | |
| Type: | Real | | |
| Tax Area: | 710 - APPRAISER-S Whid Schl Dist, outside Langley, improved & 1 acre or less | Land Use Code | 99 |
| Open Space: | N | DFL | N |
| Historic Property: | N | Remodel Property: | N |
| Multi-Family Redevelopment: | N | | |
| Township: | | Section: | |
| Range: | |
Location |
| Address: | | Mapsco: | |
| Neighborhood: | Cycle 3 | Map ID: | 305 |
| Neighborhood CD: | 3 |
Owner |
| Name: | ABERCROMBIE TTEE, STEVEN J | Owner ID: | 303561 |
| Mailing Address: | ANDREA M ABERCROMBIE TTEE 819 GLEASON LANE LANGLEY, WA 98260 | % Ownership: | 100.0000000000% |
| | | Exemptions: | |
Taxes and Assessment Details
Values
| (+) Improvement Homesite Value: | + | $0 | |
| (+) Improvement Non-Homesite Value: | + | $0 | |
| (+) Land Homesite Value: | + | $0 | |
| (+) Land Non-Homesite Value: | + | $250,000 | |
| (+) Curr Use (HS): | + | $0 | $0 |
| (+) Curr Use (NHS): | + | $0 | $0 |
| | | -------------------------- | |
| (=) Market Value: | = | $250,000 | |
| (–) Productivity Loss: | – | $0 | |
| | | -------------------------- | |
| (=) Subtotal: | = | $250,000 | |
| (+) Senior Appraised Value: | + | $0 | |
| (+) Non-Senior Appraised Value: | + | $250,000 | |
| | | -------------------------- | |
| (=) Total Appraised Value: | = | $250,000 | |
| (–) Senior Exemption Loss: | – | $0 | |
| (–) Exemption Loss: | – | $0 | |
| | | -------------------------- | |
| (=) Taxable Value: | = | $250,000 | |
Taxing Jurisdiction
| Owner: | ABERCROMBIE TTEE, STEVEN J | | |
| % Ownership: | 100.0000000000% | | |
| Total Value: | $250,000 | | |
| Tax Area: | 710 - APPRAISER-S Whid Schl Dist, outside Langley, improved & 1 acre or less |
| CF | Conservation Futures | 0.0313996660 | $250,000 | $250,000 | $7.85 | | |
| FIRE3 | Fire & Rescue Dist #3 S Whidbey GEN | 1.2130821753 | $250,000 | $250,000 | $303.27 | | |
| HOBOND | Hospital BOND | 0.1893405597 | $250,000 | $250,000 | $47.34 | | |
| HOGEN | Hospital GEN | 0.3848777722 | $250,000 | $250,000 | $96.22 | | |
| CE | County Current Expense | 0.3674210519 | $250,000 | $250,000 | $91.86 | | |
| CR | County Roads | 0.4614296361 | $250,000 | $250,000 | $115.36 | | |
| ISLANDEMS | Hospital GEN (EMS) | 0.4952018576 | $250,000 | $250,000 | $123.80 | | |
| LIB | Library Sno-Isle GEN | 0.3039084203 | $250,000 | $250,000 | $75.98 | | |
| PORTWHID | Port of S Whidbey GEN | 0.1086004714 | $250,000 | $250,000 | $27.15 | | |
| SCH206BOND | School 206 BOND | 0.5960237832 | $250,000 | $250,000 | $149.01 | | |
| SCH206CAP | School 206 CP | 0.3066144020 | $250,000 | $250,000 | $76.65 | | |
| SCH206MO | School 206 Enrichment | 0.4808755445 | $250,000 | $250,000 | $120.22 | | |
| ST | State School | 1.4761226122 | $250,000 | $250,000 | $369.03 | | |
| ST2 | State School Part 2 | 0.7953803475 | $250,000 | $250,000 | $198.85 | | |
| SWHIDPRBD | P & R S Whidbey BOND | 0.0144185398 | $250,000 | $250,000 | $3.60 | | |
| SWHIDPRBD3 | P & R S Whidbey BOND3 | 0.1483535547 | $250,000 | $250,000 | $37.09 | | |
| SWHIDPRMT | P & R S Whidbey GEN | 0.4600000000 | $250,000 | $250,000 | $115.00 | | |
| | Total Tax Rate: | 7.8330503944 | | | | | |
| | | | | Taxes w/Current Exemptions: | $1,958.28 | | |
| | | | | Taxes w/o Exemptions: | $1,958.28 | | |
Improvement / Building
Sketch
| No sketches available for this property. |
Property Image
Land
| 1 | 14 | SQ (08001-12000) | 0.0000 | 0.00 | 0.00 | 0.00 | 1.00 | $250,000 | $0 |
Roll Value History
| 2026 | N/A | N/A | N/A | N/A | N/A |
| 2025 | $0 | $250,000 | $0 | $250,000 | $250,000 |
| 2024 | $0 | $250,000 | $0 | $250,000 | $250,000 |
| 2023 | $0 | $250,000 | $0 | $250,000 | $250,000 |
| 2022 | $0 | $240,000 | $0 | $240,000 | $240,000 |
| 2021 | $0 | $155,000 | $0 | $155,000 | $155,000 |
| 2020 | $0 | $155,000 | $0 | $155,000 | $155,000 |
| 2019 | $0 | $7,000 | $0 | $7,000 | $7,000 |
| 2018 | $0 | $7,000 | $0 | $7,000 | $7,000 |
| 2017 | $0 | $5,000 | $0 | $5,000 | $5,000 |
| 2016 | $0 | $5,000 | $0 | $5,000 | $5,000 |
| 2015 | $0 | $5,000 | $0 | $5,000 | $5,000 |
| 2014 | $0 | $15,000 | $0 | $15,000 | $15,000 |
| 2013 | $0 | $15,000 | $0 | $15,000 | $15,000 |
| 2012 | $0 | $15,000 | $0 | $15,000 | $15,000 |
| 2011 | $0 | $25,000 | $0 | $25,000 | $25,000 |
| 2010 | $0 | $25,000 | $0 | $25,000 | $25,000 |
| 2009 | $0 | $30,000 | $0 | $30,000 | $30,000 |
| 2008 | $0 | $30,000 | $0 | $30,000 | $30,000 |
| 2007 | $0 | $30,000 | $0 | $30,000 | $30,000 |
Deed and Sales History
| 1 | 03/25/2022 | WD | Warranty Deed | ABERCROMBIE, STEVEN J | ABERCROMBIE TTEE, STEVEN J | | | $0.00 | 52467 | 4542252 |
| 2 | 03/06/2018 | QCD | Quit Claim Deed | ABERCROMBIE, STEVEN J | ABERCROMBIE, STEVEN J | | | $0.00 | 33259 | 4440633 |
| 3 | 12/01/1987 | WD | Warranty Deed | ADAMS, CHARLES F | ABERCROMBIE, STEVEN J | | | $2,000.00 | 73910 | 87016990 |
| 4 | 01/01/1900 | OTHER | Other - Misc. Documents | Unknown | ADAMS, CHARLES F | | | $0.00 | 0 | 0 |
Payout Agreement
| No payout information available.. |