Property
Account |
| Property ID: | 328292 | Abbreviated Legal Description: | MUTINY SANDS LOT 36 BLK 2 |
| Geographic ID: | S7555-00-02036-0 | Agent Code: | |
| Type: | Real | | |
| Tax Area: | 710 - APPRAISER-S Whid Schl Dist, outside Langley, improved & 1 acre or less | Land Use Code | 11 |
| Open Space: | N | DFL | N |
| Historic Property: | N | Remodel Property: | N |
| Multi-Family Redevelopment: | N | | |
| Township: | | Section: | |
| Range: | |
Location |
| Address: | 5580 ABBEY LN FREELAND, WA 98249 | Mapsco: | |
| Neighborhood: | Cycle 3 | Map ID: | 305 |
| Neighborhood CD: | 3 |
Owner |
| Name: | PEALY, NICHOLAS | Owner ID: | 272502 |
| Mailing Address: | 5580 ABBEY LN FREELAND, WA 98249 | % Ownership: | 100.0000000000% |
| | | Exemptions: | |
Taxes and Assessment Details
Values
| (+) Improvement Homesite Value: | + | $0 | |
| (+) Improvement Non-Homesite Value: | + | $185,637 | |
| (+) Land Homesite Value: | + | $0 | |
| (+) Land Non-Homesite Value: | + | $390,000 | |
| (+) Curr Use (HS): | + | $0 | $0 |
| (+) Curr Use (NHS): | + | $0 | $0 |
| | | -------------------------- | |
| (=) Market Value: | = | $575,637 | |
| (–) Productivity Loss: | – | $0 | |
| | | -------------------------- | |
| (=) Subtotal: | = | $575,637 | |
| (+) Senior Appraised Value: | + | $0 | |
| (+) Non-Senior Appraised Value: | + | $575,637 | |
| | | -------------------------- | |
| (=) Total Appraised Value: | = | $575,637 | |
| (–) Senior Exemption Loss: | – | $0 | |
| (–) Exemption Loss: | – | $0 | |
| | | -------------------------- | |
| (=) Taxable Value: | = | $575,637 | |
Taxing Jurisdiction
| Owner: | PEALY, NICHOLAS | | |
| % Ownership: | 100.0000000000% | | |
| Total Value: | $575,637 | | |
| Tax Area: | 710 - APPRAISER-S Whid Schl Dist, outside Langley, improved & 1 acre or less |
| CF | Conservation Futures | 0.0313996660 | $575,637 | $575,637 | $18.07 | | |
| FIRE3 | Fire & Rescue Dist #3 S Whidbey GEN | 1.2130821753 | $575,637 | $575,637 | $698.29 | | |
| HOBOND | Hospital BOND | 0.1893405597 | $575,637 | $575,637 | $108.99 | | |
| HOGEN | Hospital GEN | 0.3848777722 | $575,637 | $575,637 | $221.55 | | |
| CE | County Current Expense | 0.3674210519 | $575,637 | $575,637 | $211.50 | | |
| CR | County Roads | 0.4614296361 | $575,637 | $575,637 | $265.62 | | |
| ISLANDEMS | Hospital GEN (EMS) | 0.4952018576 | $575,637 | $575,637 | $285.06 | | |
| LIB | Library Sno-Isle GEN | 0.3039084203 | $575,637 | $575,637 | $174.94 | | |
| PORTWHID | Port of S Whidbey GEN | 0.1086004714 | $575,637 | $575,637 | $62.51 | | |
| SCH206BOND | School 206 BOND | 0.5960237832 | $575,637 | $575,637 | $343.09 | | |
| SCH206CAP | School 206 CP | 0.3066144020 | $575,637 | $575,637 | $176.50 | | |
| SCH206MO | School 206 Enrichment | 0.4808755445 | $575,637 | $575,637 | $276.81 | | |
| ST | State School | 1.4761226122 | $575,637 | $575,637 | $849.71 | | |
| ST2 | State School Part 2 | 0.7953803475 | $575,637 | $575,637 | $457.85 | | |
| SWHIDPRBD | P & R S Whidbey BOND | 0.0144185398 | $575,637 | $575,637 | $8.30 | | |
| SWHIDPRBD3 | P & R S Whidbey BOND3 | 0.1483535547 | $575,637 | $575,637 | $85.40 | | |
| SWHIDPRMT | P & R S Whidbey GEN | 0.4600000000 | $575,637 | $575,637 | $264.79 | | |
| | Total Tax Rate: | 7.8330503944 | | | | | |
| | | | | Taxes w/Current Exemptions: | $4,508.98 | | |
| | | | | Taxes w/o Exemptions: | $4,508.98 | | |
Improvement / Building
| Improvement #1: | RESIDENTIAL | State Code: | Y | 1227.0 sqft | Value: | $185,637 |
| Bathrooms: | 1 | Bedrooms: | 2 | | Ceiling: | TONGUE & GROOVE | Exterior Wall/Cover: | WOOD SIDING | | Floor Covering: | CARPET/VINYL 80-20 | Floor Structure: | WOOD W/SUBFLOOR | | Foundation: | CONCRETE BLOCKS | Heating: | BASEBOARD ELECTRIC | | Interior Finish: | DRYWALL PAINT | Plumbing Fixture Cnt: | 6 | | Roof Slope: | 12" IN 12" | Roof Structure/Cover: | CJ ALUMINIUM HEAVY |
|
| | Type | Description | Class CD | Sub Class CD | Year Built | Area |
| | BAS | BASE/MAIN FLOOR | 3 | 0 | 1970 | 672.0 |
| | OP3 | OPEN PORCH W/ROOF | 3 | 0 | 1970 | 52.0 |
| | OCP | OPEN CARPORT | 3 | 0 | 1970 | 400.0 |
| | OWP | OPEN WOOD PORCH W/STEPS | 3 | 0 | 1970 | 168.0 |
| | OWP | OPEN WOOD PORCH W/STEPS | 3 | 0 | 1970 | 415.5 |
| | OWR | OPEN WOOD PORCH W/STEPS/ROOF | 3 | 0 | 1970 | 120.0 |
| | UPH | HALF STORY | 3 | 0 | 1970 | 232.0 |
| | LOF | LOFT | 3 | 0 | 1970 | 323.0 |
Sketch
Property Image
Land
| 1 | 15 | SQ (12001-21780) | 0.0000 | 0.00 | 0.00 | 0.00 | 1.00 | $390,000 | $0 |
Roll Value History
| 2026 | N/A | N/A | N/A | N/A | N/A |
| 2025 | $185,637 | $390,000 | $0 | $575,637 | $575,637 |
| 2024 | $191,955 | $370,000 | $0 | $561,955 | $561,955 |
| 2023 | $194,541 | $370,000 | $0 | $564,541 | $564,541 |
| 2022 | $178,508 | $360,000 | $0 | $538,508 | $538,508 |
| 2021 | $157,253 | $350,000 | $0 | $507,253 | $507,253 |
| 2020 | $153,658 | $280,000 | $0 | $433,658 | $433,658 |
| 2019 | $95,456 | $270,000 | $0 | $365,456 | $365,456 |
| 2018 | $95,803 | $250,000 | $0 | $345,803 | $345,803 |
| 2017 | $96,487 | $180,000 | $0 | $276,487 | $276,487 |
| 2016 | $97,863 | $180,000 | $0 | $277,863 | $277,863 |
| 2015 | $99,240 | $125,000 | $0 | $224,240 | $224,240 |
| 2014 | $100,620 | $125,000 | $0 | $225,620 | $225,620 |
| 2013 | $100,634 | $140,000 | $0 | $240,634 | $240,634 |
| 2012 | $102,051 | $140,000 | $0 | $242,051 | $242,051 |
| 2011 | $103,469 | $140,000 | $0 | $243,469 | $243,469 |
| 2010 | $106,895 | $140,000 | $0 | $246,895 | $246,895 |
| 2009 | $110,162 | $150,000 | $0 | $260,162 | $260,162 |
| 2008 | $111,559 | $150,000 | $0 | $261,559 | $261,559 |
| 2007 | $87,179 | $150,000 | $0 | $237,179 | $237,179 |
Deed and Sales History
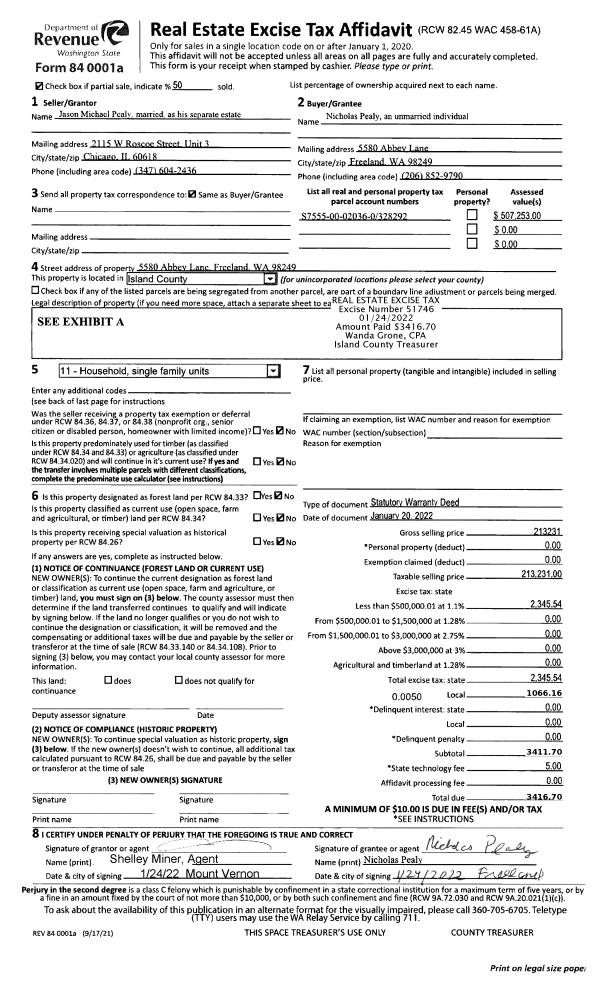
| 1 | 01/20/2022 | WD | Warranty Deed | PEALY, JASON MICHAEL | PEALY, NICHOLAS | | | $213,231.00 | 51746 | 4538436 |
| 2 | 09/27/2011 | WD | Warranty Deed | PEALY, NICHOLAS | PEALY, JASON MICHAEL | | | $114,500.00 | 5683 | 4302064 |
| 3 | 03/26/2002 | QCD | Quit Claim Deed | BANK OF AMERICA NA, TR, | PEALY, NICHOLAS | | | $0.00 | 21951 | 4020947 |
| 4 | 02/27/2000 | QCD | Quit Claim Deed | PEALY, DOROTHEE S | BANK OF AMERICA NA, TR, | | | $0.00 | 2235 | 20010643 |
| 5 | 02/01/1987 | PRD | Personal Representatives Deed | PEALY, ROBERT H | PEALY, DOROTHEE S | | | $0.00 | 70257 | 87001700 |
| 6 | 01/01/1900 | OTHER | Other - Misc. Documents | Unknown | PEALY, ROBERT H | | | $0.00 | 0 | 0 |
Payout Agreement
| No payout information available.. |