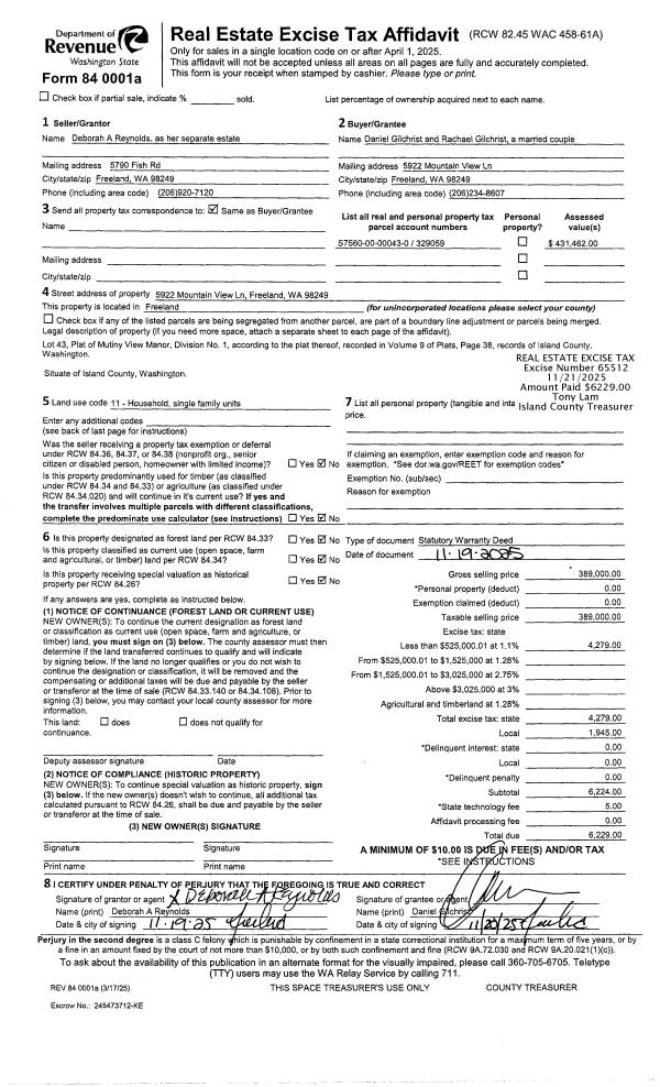
Property
Account |
| Property ID: | 329059 | Abbreviated Legal Description: | MUTINY VW MAN 1 LOT 43 |
| Geographic ID: | S7560-00-00043-0 | Agent Code: | |
| Type: | Real | | |
| Tax Area: | 710 - APPRAISER-S Whid Schl Dist, outside Langley, improved & 1 acre or less | Land Use Code | 11 |
| Open Space: | N | DFL | N |
| Historic Property: | N | Remodel Property: | N |
| Multi-Family Redevelopment: | N | | |
| Township: | | Section: | |
| Range: | |
Location |
| Address: | 5922 MOUNTAIN VIEW LN FREELAND, WA 98249 | Mapsco: | |
| Neighborhood: | Cycle 3 | Map ID: | 330 |
| Neighborhood CD: | 3 |
Owner |
| Name: | REYNOLDS, DEBORAH A | Owner ID: | 125902 |
| Mailing Address: | 5790 FISH RD FREELAND, WA 98249 | % Ownership: | 100.0000000000% |
| | | Exemptions: | |
Taxes and Assessment Details
Values
| (+) Improvement Homesite Value: | + | $0 | |
| (+) Improvement Non-Homesite Value: | + | $181,462 | |
| (+) Land Homesite Value: | + | $0 | |
| (+) Land Non-Homesite Value: | + | $250,000 | |
| (+) Curr Use (HS): | + | $0 | $0 |
| (+) Curr Use (NHS): | + | $0 | $0 |
| | | -------------------------- | |
| (=) Market Value: | = | $431,462 | |
| (–) Productivity Loss: | – | $0 | |
| | | -------------------------- | |
| (=) Subtotal: | = | $431,462 | |
| (+) Senior Appraised Value: | + | $0 | |
| (+) Non-Senior Appraised Value: | + | $431,462 | |
| | | -------------------------- | |
| (=) Total Appraised Value: | = | $431,462 | |
| (–) Senior Exemption Loss: | – | $0 | |
| (–) Exemption Loss: | – | $0 | |
| | | -------------------------- | |
| (=) Taxable Value: | = | $431,462 | |
Taxing Jurisdiction
| Owner: | REYNOLDS, DEBORAH A | | |
| % Ownership: | 100.0000000000% | | |
| Total Value: | $431,462 | | |
| Tax Area: | 710 - APPRAISER-S Whid Schl Dist, outside Langley, improved & 1 acre or less |
| CF | Conservation Futures | 0.0313996660 | $431,462 | $431,462 | $13.55 | | |
| FIRE3 | Fire & Rescue Dist #3 S Whidbey GEN | 1.2130821753 | $431,462 | $431,462 | $523.40 | | |
| HOBOND | Hospital BOND | 0.1893405597 | $431,462 | $431,462 | $81.69 | | |
| HOGEN | Hospital GEN | 0.3848777722 | $431,462 | $431,462 | $166.06 | | |
| CE | County Current Expense | 0.3674210519 | $431,462 | $431,462 | $158.53 | | |
| CR | County Roads | 0.4614296361 | $431,462 | $431,462 | $199.09 | | |
| ISLANDEMS | Hospital GEN (EMS) | 0.4952018576 | $431,462 | $431,462 | $213.66 | | |
| LIB | Library Sno-Isle GEN | 0.3039084203 | $431,462 | $431,462 | $131.12 | | |
| PORTWHID | Port of S Whidbey GEN | 0.1086004714 | $431,462 | $431,462 | $46.86 | | |
| SCH206BOND | School 206 BOND | 0.5960237832 | $431,462 | $431,462 | $257.16 | | |
| SCH206CAP | School 206 CP | 0.3066144020 | $431,462 | $431,462 | $132.29 | | |
| SCH206MO | School 206 Enrichment | 0.4808755445 | $431,462 | $431,462 | $207.48 | | |
| ST | State School | 1.4761226122 | $431,462 | $431,462 | $636.89 | | |
| ST2 | State School Part 2 | 0.7953803475 | $431,462 | $431,462 | $343.18 | | |
| SWHIDPRBD | P & R S Whidbey BOND | 0.0144185398 | $431,462 | $431,462 | $6.22 | | |
| SWHIDPRBD3 | P & R S Whidbey BOND3 | 0.1483535547 | $431,462 | $431,462 | $64.01 | | |
| SWHIDPRMT | P & R S Whidbey GEN | 0.4600000000 | $431,462 | $431,462 | $198.47 | | |
| | Total Tax Rate: | 7.8330503944 | | | | | |
| | | | | Taxes w/Current Exemptions: | $3,379.66 | | |
| | | | | Taxes w/o Exemptions: | $3,379.66 | | |
Improvement / Building
| Improvement #1: | RESIDENTIAL | State Code: | Y | 1240.0 sqft | Value: | $181,462 |
| Bathrooms: | 1.75 | Bedrooms: | 3 | | Ceiling: | DRY WALL SPRAYED | Exterior Wall/Cover: | WOOD SIDING | | Floor Covering: | (NONE) | Floor Structure: | WOOD W/SUBFLOOR | | Foundation: | CONCRETE | Heating: | BASEBOARD ELECTRIC | | Interior Finish: | DRYWALL PAINT | Plumbing Fixture Cnt: | 9 | | Roof Slope: | 4" IN 12" | Roof Structure/Cover: | CJ ASPHALT |
|
| | Type | Description | Class CD | Sub Class CD | Year Built | Area |
| | BAS | BASE/MAIN FLOOR | 3 | 0 | 1980 | 1240.0 |
| | OP1 | OPEN PORCH SLAB | 3 | 0 | 1980 | 60.0 |
| | OP1 | OPEN PORCH SLAB | 3 | 0 | 1980 | 324.0 |
| | OP4 | OPEN PORCH W/CEILING-ROOF | 3 | 0 | 1980 | 8.0 |
| | AGR | ATTACHED GARAGE | 3 | 0 | 1980 | 480.0 |
Sketch
Property Image
Land
| 1 | 14 | SQ (08001-12000) | 0.2200 | 9583.20 | 0.00 | 0.00 | 1.00 | $250,000 | $0 |
Roll Value History
| 2026 | N/A | N/A | N/A | N/A | N/A |
| 2025 | $181,462 | $250,000 | $0 | $431,462 | $431,462 |
| 2024 | $188,038 | $230,000 | $0 | $418,038 | $418,038 |
| 2023 | $190,714 | $230,000 | $0 | $420,714 | $420,714 |
| 2022 | $175,117 | $210,000 | $0 | $385,117 | $385,117 |
| 2021 | $154,386 | $140,000 | $0 | $294,386 | $294,386 |
| 2020 | $150,348 | $130,000 | $0 | $280,348 | $280,348 |
| 2019 | $91,717 | $170,000 | $0 | $261,717 | $261,717 |
| 2018 | $92,069 | $130,000 | $0 | $222,069 | $222,069 |
| 2017 | $92,772 | $100,000 | $0 | $192,772 | $192,772 |
| 2016 | $94,177 | $100,000 | $0 | $194,177 | $194,177 |
| 2015 | $95,582 | $75,000 | $0 | $170,582 | $170,582 |
| 2014 | $96,988 | $75,000 | $0 | $171,988 | $171,988 |
| 2013 | $102,628 | $75,000 | $0 | $177,628 | $177,628 |
| 2012 | $104,119 | $63,750 | $0 | $167,869 | $167,869 |
| 2011 | $105,608 | $75,000 | $0 | $180,608 | $180,608 |
| 2010 | $111,904 | $75,000 | $0 | $186,904 | $186,904 |
| 2009 | $116,422 | $99,000 | $0 | $215,422 | $215,422 |
| 2008 | $118,052 | $108,500 | $0 | $226,552 | $226,552 |
| 2007 | $118,826 | $108,500 | $0 | $227,326 | $227,326 |
Deed and Sales History
| 1 | 11/19/2025 | WD | Warranty Deed | REYNOLDS, DEBORAH A | GILCHRIST, DANIEL | | | $389,000.00 | 65512 | 4593716 |
| 2 | 02/22/2005 | WD | Warranty Deed | FARRAR, SUE M | REYNOLDS, DEBORAH A | | | $180,000.00 | 50715 | 4126618 |
| 3 | 08/01/1997 | WD | Warranty Deed | SEEFELD, RALPH L | FARRAR, SUE M | | | $113,500.00 | 72925 | 97013951 |
| 4 | 12/01/1995 | WD | Warranty Deed | CARLSON, JEFFREY K | SEEFELD, RALPH L | | | $100,000.00 | 54336 | 95020046 |
| 5 | 08/01/1989 | WD | Warranty Deed | MAST, ROBERT E | CARLSON, JEFFREY K | | | $65,000.00 | 93586 | 89012033 |
| 6 | 01/01/1980 | TRUSTEED | Trustee's Deed | VENTURE, CONST & | MAST, ROBERT E | | | $58,500.00 | 425 | 364856 |
| 7 | 01/01/1979 | OTHER | Other - Misc. Documents | BW, | VENTURE, CONST & | | | $9,053.00 | 90581 | 347180 |
| 8 | 11/01/1978 | OTHER | Other - Misc. Documents | Unknown | BW, | | | $128,000.00 | 856880 | 3433400 |
Payout Agreement
| No payout information available.. |