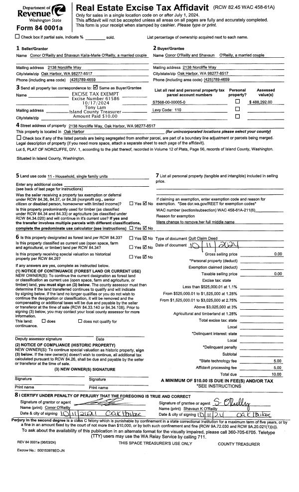
Property
Account |
| Property ID: | 329674 | Abbreviated Legal Description: | NORCLIFFE 1 LOT 5 |
| Geographic ID: | S7568-00-00005-0 | Agent Code: | |
| Type: | Real | | |
| Tax Area: | 110 - APPRAISER-OH Schl Dist, outside OH, improved & 1 acre or less | Land Use Code | 11 |
| Open Space: | N | DFL | N |
| Historic Property: | N | Remodel Property: | N |
| Multi-Family Redevelopment: | N | | |
| Township: | | Section: | |
| Range: | |
Location |
| Address: | 2138 NORCLIFFE WAY OAK HARBOR, WA 98277 | Mapsco: | |
| Neighborhood: | Cycle 1 | Map ID: | 105 |
| Neighborhood CD: | 1 |
Owner |
| Name: | O'REILLY, CONOR | Owner ID: | 314243 |
| Mailing Address: | SHAVAUN O'REILLY 2138 NORCLIFFE WAY OAK HARBOR, WA 98277 | % Ownership: | 100.0000000000% |
| | | Exemptions: | |
Taxes and Assessment Details
Values
| (+) Improvement Homesite Value: | + | $0 | |
| (+) Improvement Non-Homesite Value: | + | $284,303 | |
| (+) Land Homesite Value: | + | $0 | |
| (+) Land Non-Homesite Value: | + | $200,000 | |
| (+) Curr Use (HS): | + | $0 | $0 |
| (+) Curr Use (NHS): | + | $0 | $0 |
| | | -------------------------- | |
| (=) Market Value: | = | $484,303 | |
| (–) Productivity Loss: | – | $0 | |
| | | -------------------------- | |
| (=) Subtotal: | = | $484,303 | |
| (+) Senior Appraised Value: | + | $0 | |
| (+) Non-Senior Appraised Value: | + | $484,303 | |
| | | -------------------------- | |
| (=) Total Appraised Value: | = | $484,303 | |
| (–) Senior Exemption Loss: | – | $0 | |
| (–) Exemption Loss: | – | $0 | |
| | | -------------------------- | |
| (=) Taxable Value: | = | $484,303 | |
Taxing Jurisdiction
| Owner: | O'REILLY, CONOR | | |
| % Ownership: | 100.0000000000% | | |
| Total Value: | $484,303 | | |
| Tax Area: | 110 - APPRAISER-OH Schl Dist, outside OH, improved & 1 acre or less |
| CF | Conservation Futures | 0.0313996660 | $484,303 | $484,303 | $15.21 | | |
| CEM1 | Cemetery #1 | 0.0040018856 | $484,303 | $484,303 | $1.94 | | |
| FIRE2 | Fire & Rescue Dist #2 N Whidbey GEN | 0.5381486274 | $484,303 | $484,303 | $260.63 | | |
| HOBOND | Hospital BOND | 0.1893405597 | $484,303 | $484,303 | $91.70 | | |
| HOGEN | Hospital GEN | 0.3848777722 | $484,303 | $484,303 | $186.40 | | |
| CE | County Current Expense | 0.3674210519 | $484,303 | $484,303 | $177.94 | | |
| CR | County Roads | 0.4614296361 | $484,303 | $484,303 | $223.47 | | |
| ISLANDEMS | Hospital GEN (EMS) | 0.4952018576 | $484,303 | $484,303 | $239.83 | | |
| LIB | Library Sno-Isle GEN | 0.3039084203 | $484,303 | $484,303 | $147.18 | | |
| NWHIDPRMT | P & R N Whidbey GEN | 0.1990272349 | $484,303 | $484,303 | $96.39 | | |
| SCH201MO | School 201 Enrichment | 2.3851112745 | $484,303 | $484,303 | $1,155.12 | | |
| ST | State School | 1.4761226122 | $484,303 | $484,303 | $714.89 | | |
| ST2 | State School Part 2 | 0.7953803475 | $484,303 | $484,303 | $385.21 | | |
| | Total Tax Rate: | 7.6313709459 | | | | | |
| | | | | Taxes w/Current Exemptions: | $3,695.91 | | |
| | | | | Taxes w/o Exemptions: | $3,695.91 | | |
Improvement / Building
| Improvement #1: | RESIDENTIAL | State Code: | Y | 2158.7 sqft | Value: | $284,303 |
| Bathrooms: | 2.5 | Bedrooms: | 3 | | Ceiling: | DRY WALL SPRAYED | Exterior Wall/Cover: | WOOD SIDING | | Floor Covering: | HARDWOOD/CARP 60-40 | Floor Structure: | WOOD W/SUBFLOOR | | Foundation: | CONCRETE | Heating: | FHA ELECTRIC | | Interior Finish: | DRYWALL PAINT | Plumbing Fixture Cnt: | 11 | | Roof Slope: | 4" IN 12" | Roof Structure/Cover: | CJ ASPHALT |
|
| | Type | Description | Class CD | Sub Class CD | Year Built | Area |
| | BAS | BASE/MAIN FLOOR | 3 | 0 | 1978 | 1496.2 |
| | BIG | BUILT IN GARAGE | 3 | 0 | 1978 | 675.8 |
| | OWP | OPEN WOOD PORCH W/STEPS | 3 | 0 | 1978 | 343.0 |
| | DWN | DOWNSTAIRS LIVING AREA | 3 | 0 | 1978 | 662.5 |
Sketch
Property Image
Land
| 1 | 15 | SQ (12001-21780) | 0.0000 | 0.00 | 0.00 | 0.00 | 1.00 | $200,000 | $0 |
Roll Value History
| 2026 | N/A | N/A | N/A | N/A | N/A |
| 2025 | $284,303 | $200,000 | $0 | $484,303 | $484,303 |
| 2024 | $288,292 | $200,000 | $0 | $488,292 | $488,292 |
| 2023 | $276,322 | $200,000 | $0 | $476,322 | $476,322 |
| 2022 | $253,830 | $200,000 | $0 | $453,830 | $453,830 |
| 2021 | $223,856 | $150,000 | $0 | $373,856 | $373,856 |
| 2020 | $218,827 | $100,000 | $0 | $318,827 | $318,827 |
| 2019 | $168,369 | $150,000 | $0 | $318,369 | $318,369 |
| 2018 | $168,943 | $130,000 | $0 | $298,943 | $298,943 |
| 2017 | $153,611 | $120,000 | $0 | $273,611 | $273,611 |
| 2016 | $155,871 | $110,000 | $0 | $265,871 | $265,871 |
| 2015 | $158,129 | $65,000 | $0 | $223,129 | $223,129 |
| 2014 | $160,389 | $50,000 | $0 | $210,389 | $210,389 |
| 2013 | $162,647 | $50,000 | $0 | $212,647 | $212,647 |
| 2012 | $164,906 | $51,000 | $0 | $215,906 | $215,906 |
| 2011 | $169,906 | $60,000 | $0 | $229,906 | $229,906 |
| 2010 | $180,599 | $60,000 | $0 | $240,599 | $240,599 |
| 2009 | $188,250 | $80,000 | $0 | $268,250 | $268,250 |
| 2008 | $190,561 | $85,000 | $0 | $275,561 | $275,561 |
| 2007 | $192,863 | $81,000 | $0 | $273,863 | $273,863 |
Deed and Sales History
| 1 | 10/11/2024 | QCD | Quit Claim Deed | O'REILLY, CONOR | O'REILLY, CONOR | | | $0.00 | 61586 | 4578304 |
| 2 | 08/12/2023 | WD | Warranty Deed | FINK, CHRISTOPHER M | O'REILLY, CONOR | | | $531,000.00 | 57710 | 4563839 |
| 3 | 03/26/2012 | WD | Warranty Deed | HATTER, JAY J | FINK, CHRISTOPHER M | | | $225,000.00 | 7298 | 4312978 |
| 4 | 01/29/2003 | WD | Warranty Deed | FEAGLES, GERARD R | HATTER, JAY J | | | $185,900.00 | 30363 | 4046112 |
| 5 | 12/01/1995 | WD | Warranty Deed | KENNEDY, GEORGE G | FEAGLES, GERARD R | | | $145,500.00 | 54410 | 95020403 |
| 6 | 09/01/1992 | WD | Warranty Deed | PERKINS, THOMAS M | KENNEDY, GEORGE G | | | $136,500.00 | 23758 | 92018164 |
| 7 | 09/01/1990 | WD | Warranty Deed | MILLER, LANNY K | PERKINS, THOMAS M | | | $120,000.00 | 5566 | 90018607 |
| 8 | 01/01/1985 | WD | Warranty Deed | VAN, ESCHEN, J | MILLER, LANNY K | | | $89,000.00 | 50070 | 85000293 |
| 9 | 02/01/1979 | WD | Warranty Deed | Unknown | VAN, ESCHEN, J | | | $67,000.00 | 90499 | 346860 |
Payout Agreement
| No payout information available.. |