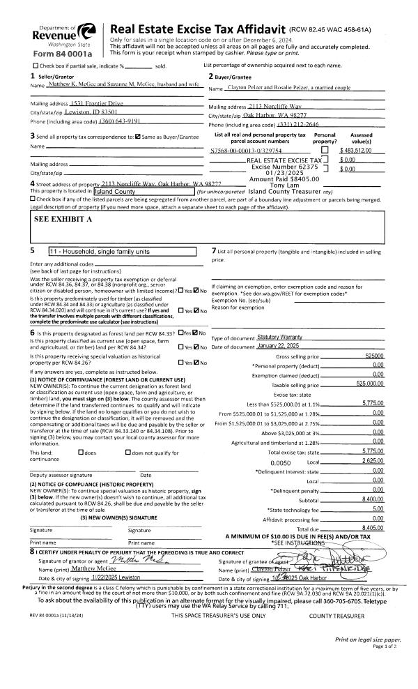
Property
Account |
| Property ID: | 329754 | Abbreviated Legal Description: | NORCLIFFE 1 LOT 13 |
| Geographic ID: | S7568-00-00013-0 | Agent Code: | |
| Type: | Real | | |
| Tax Area: | 110 - APPRAISER-OH Schl Dist, outside OH, improved & 1 acre or less | Land Use Code | 11 |
| Open Space: | N | DFL | N |
| Historic Property: | N | Remodel Property: | N |
| Multi-Family Redevelopment: | N | | |
| Township: | | Section: | |
| Range: | |
Location |
| Address: | 2113 NORCLIFFE WAY OAK HARBOR, WA 98277 | Mapsco: | |
| Neighborhood: | Cycle 1 | Map ID: | 105 |
| Neighborhood CD: | 1 |
Owner |
| Name: | PELZER, CLAYTON | Owner ID: | 316687 |
| Mailing Address: | ROSALIE PELZER 2113 NORCLIFFE WAY OAK HARBOR, WA 98277 | % Ownership: | 100.0000000000% |
| | | Exemptions: | |
Taxes and Assessment Details
Values
| (+) Improvement Homesite Value: | + | $0 | |
| (+) Improvement Non-Homesite Value: | + | $283,921 | |
| (+) Land Homesite Value: | + | $0 | |
| (+) Land Non-Homesite Value: | + | $200,000 | |
| (+) Curr Use (HS): | + | $0 | $0 |
| (+) Curr Use (NHS): | + | $0 | $0 |
| | | -------------------------- | |
| (=) Market Value: | = | $483,921 | |
| (–) Productivity Loss: | – | $0 | |
| | | -------------------------- | |
| (=) Subtotal: | = | $483,921 | |
| (+) Senior Appraised Value: | + | $0 | |
| (+) Non-Senior Appraised Value: | + | $483,921 | |
| | | -------------------------- | |
| (=) Total Appraised Value: | = | $483,921 | |
| (–) Senior Exemption Loss: | – | $0 | |
| (–) Exemption Loss: | – | $0 | |
| | | -------------------------- | |
| (=) Taxable Value: | = | $483,921 | |
Taxing Jurisdiction
| Owner: | PELZER, CLAYTON | | |
| % Ownership: | 100.0000000000% | | |
| Total Value: | $483,921 | | |
| Tax Area: | 110 - APPRAISER-OH Schl Dist, outside OH, improved & 1 acre or less |
| CF | Conservation Futures | 0.0313996660 | $483,921 | $483,921 | $15.19 | | |
| CEM1 | Cemetery #1 | 0.0040018856 | $483,921 | $483,921 | $1.94 | | |
| FIRE2 | Fire & Rescue Dist #2 N Whidbey GEN | 0.5381486274 | $483,921 | $483,921 | $260.42 | | |
| HOBOND | Hospital BOND | 0.1893405597 | $483,921 | $483,921 | $91.63 | | |
| HOGEN | Hospital GEN | 0.3848777722 | $483,921 | $483,921 | $186.25 | | |
| CE | County Current Expense | 0.3674210519 | $483,921 | $483,921 | $177.80 | | |
| CR | County Roads | 0.4614296361 | $483,921 | $483,921 | $223.30 | | |
| ISLANDEMS | Hospital GEN (EMS) | 0.4952018576 | $483,921 | $483,921 | $239.64 | | |
| LIB | Library Sno-Isle GEN | 0.3039084203 | $483,921 | $483,921 | $147.07 | | |
| NWHIDPRMT | P & R N Whidbey GEN | 0.1990272349 | $483,921 | $483,921 | $96.31 | | |
| SCH201MO | School 201 Enrichment | 2.3851112745 | $483,921 | $483,921 | $1,154.21 | | |
| ST | State School | 1.4761226122 | $483,921 | $483,921 | $714.33 | | |
| ST2 | State School Part 2 | 0.7953803475 | $483,921 | $483,921 | $384.90 | | |
| | Total Tax Rate: | 7.6313709459 | | | | | |
| | | | | Taxes w/Current Exemptions: | $3,692.99 | | |
| | | | | Taxes w/o Exemptions: | $3,692.99 | | |
Improvement / Building
| Improvement #1: | RESIDENTIAL | State Code: | Y | 1740.0 sqft | Value: | $283,921 |
| Bathrooms: | 2.5 | Bedrooms: | 3 | | Ceiling: | DRYWALL PAINTED | Exterior Wall/Cover: | PLY/HARDBOARD T-111 | | Floor Covering: | CARPET/VINYL 80-20 | Floor Structure: | WOOD W/SUBFLOOR | | Foundation: | CONCRETE | Heating: | FHA GAS | | Interior Finish: | DRYWALL PAINT | Plumbing Fixture Cnt: | 12 | | Roof Slope: | 5" IN 12" | Roof Structure/Cover: | CJ ASPHALT |
|
| | Type | Description | Class CD | Sub Class CD | Year Built | Area |
| | BAS | BASE/MAIN FLOOR | 3 | 0 | 1996 | 1740.0 |
| | AGR | ATTACHED GARAGE | 3 | 0 | 1996 | 480.0 |
| | OWP | OPEN WOOD PORCH W/STEPS | 3 | 0 | 1996 | 48.0 |
| | OWC | OPEN WOOD PORCH W/STEPS/ROOF/C | 3 | 0 | 1996 | 197.2 |
Sketch
Property Image
Land
| 1 | 15 | SQ (12001-21780) | 0.0000 | 0.00 | 0.00 | 0.00 | 1.00 | $200,000 | $0 |
Roll Value History
| 2026 | N/A | N/A | N/A | N/A | N/A |
| 2025 | $283,921 | $200,000 | $0 | $483,921 | $483,921 |
| 2024 | $283,512 | $200,000 | $0 | $483,512 | $483,512 |
| 2023 | $265,532 | $200,000 | $0 | $465,532 | $465,532 |
| 2022 | $243,634 | $200,000 | $0 | $443,634 | $443,634 |
| 2021 | $214,628 | $150,000 | $0 | $364,628 | $364,628 |
| 2020 | $209,179 | $100,000 | $0 | $309,179 | $309,179 |
| 2019 | $152,950 | $150,000 | $0 | $302,950 | $302,950 |
| 2018 | $153,434 | $130,000 | $0 | $283,434 | $283,434 |
| 2017 | $149,090 | $120,000 | $0 | $269,090 | $269,090 |
| 2016 | $151,002 | $110,000 | $0 | $261,002 | $261,002 |
| 2015 | $152,912 | $65,000 | $0 | $217,912 | $217,912 |
| 2014 | $154,825 | $50,000 | $0 | $204,825 | $204,825 |
| 2013 | $156,735 | $50,000 | $0 | $206,735 | $206,735 |
| 2012 | $158,648 | $51,000 | $0 | $209,648 | $209,648 |
| 2011 | $162,786 | $60,000 | $0 | $222,786 | $222,786 |
| 2010 | $170,652 | $60,000 | $0 | $230,652 | $230,652 |
| 2009 | $177,915 | $80,000 | $0 | $257,915 | $257,915 |
| 2008 | $179,978 | $85,000 | $0 | $264,978 | $264,978 |
| 2007 | $182,032 | $81,000 | $0 | $263,032 | $263,032 |
Deed and Sales History
| 1 | 01/22/2025 | WD | Warranty Deed | MCGEE, MATTHEW K | PELZER, CLAYTON | | | $525,000.00 | 62375 | 4581543 |
| 2 | 07/05/2001 | WD | Warranty Deed | NORRIS, D T | MCGEE, MATTHEW K | | | $170,000.00 | 12555 | 20036673 |
| 3 | 02/01/1997 | WD | Warranty Deed | MORENO, MARVIN G | NORRIS, D T | | | $147,500.00 | 70487 | 97002168 |
| 4 | 09/01/1995 | WD | Warranty Deed | NORTH, THERO J | MORENO, MARVIN G | | | $30,000.00 | 53195 | 95014714 |
| 5 | 09/01/1982 | OTHER | Other - Misc. Documents | NORTH, DAVID A | NORTH, THERO J | | | $0.00 | 59646 | 0 |
| 6 | 01/01/1900 | OTHER | Other - Misc. Documents | Unknown | NORTH, DAVID A | | | $0.00 | 0 | 0 |
Payout Agreement
| No payout information available.. |