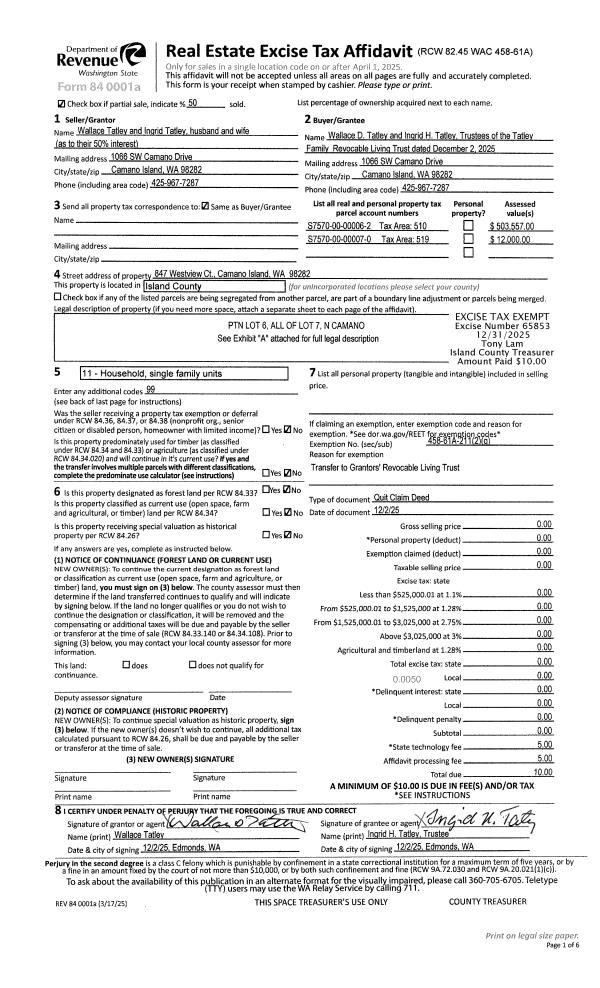
Property
Account |
| Property ID: | 329969 | Abbreviated Legal Description: | N CAMANO LOT 6 EX NWLY PT: BG NECR SD LOT SELY ALG RD 15' SWLY 270' M/L TP ON WLN 10' NWLY OF SWCR SD LOT N34*W80' TO NWCR N54*E170.3' TPB |
| Geographic ID: | S7570-00-00006-2 | Agent Code: | |
| Type: | Real | | |
| Tax Area: | 510 - APPRAISER-Stan/Cam Schl Dist, improved & 1 acre or less | Land Use Code | 11 |
| Open Space: | N | DFL | N |
| Historic Property: | N | Remodel Property: | N |
| Multi-Family Redevelopment: | N | | |
| Township: | | Section: | |
| Range: | |
Location |
| Address: | 847 WESTVIEW CT CAMANO ISLAND, WA 98282 | Mapsco: | |
| Neighborhood: | Cycle 5 | Map ID: | 486 |
| Neighborhood CD: | 5 |
Owner |
| Name: | TATLEY, WALLACE | Owner ID: | 268590 |
| Mailing Address: | INGRID TATLEY RICK MELIZA ANNE MELIZA 1066 SW CAMANO DR CAMANO ISLAND, WA 98282 | % Ownership: | 100.0000000000% |
| | | Exemptions: | |
Taxes and Assessment Details
Values
| (+) Improvement Homesite Value: | + | $0 | |
| (+) Improvement Non-Homesite Value: | + | $293,557 | |
| (+) Land Homesite Value: | + | $0 | |
| (+) Land Non-Homesite Value: | + | $210,000 | |
| (+) Curr Use (HS): | + | $0 | $0 |
| (+) Curr Use (NHS): | + | $0 | $0 |
| | | -------------------------- | |
| (=) Market Value: | = | $503,557 | |
| (–) Productivity Loss: | – | $0 | |
| | | -------------------------- | |
| (=) Subtotal: | = | $503,557 | |
| (+) Senior Appraised Value: | + | $0 | |
| (+) Non-Senior Appraised Value: | + | $503,557 | |
| | | -------------------------- | |
| (=) Total Appraised Value: | = | $503,557 | |
| (–) Senior Exemption Loss: | – | $0 | |
| (–) Exemption Loss: | – | $0 | |
| | | -------------------------- | |
| (=) Taxable Value: | = | $503,557 | |
Taxing Jurisdiction
| Owner: | TATLEY, WALLACE | | |
| % Ownership: | 100.0000000000% | | |
| Total Value: | $503,557 | | |
| Tax Area: | 510 - APPRAISER-Stan/Cam Schl Dist, improved & 1 acre or less |
| CF | Conservation Futures | 0.0313996660 | $503,557 | $503,557 | $15.81 | | |
| EMS1 | Fire & Rescue Dist #1 Camano GEN (EMS) | 0.4998471806 | $503,557 | $503,557 | $251.70 | | |
| FIRE1 | Fire & Rescue Dist #1 Camano GEN | 1.2496603404 | $503,557 | $503,557 | $629.28 | | |
| FIRE1BOND | Fire & Rescue Dist #1 Camano BOND | 0.1630371212 | $503,557 | $503,557 | $82.10 | | |
| CE | County Current Expense | 0.3674210519 | $503,557 | $503,557 | $185.02 | | |
| CR | County Roads | 0.4614296361 | $503,557 | $503,557 | $232.36 | | |
| LIB | Library Sno-Isle GEN | 0.3039084203 | $503,557 | $503,557 | $153.04 | | |
| SCH205_401 | School 205-401 Enrichment | 1.3697998934 | $503,557 | $503,557 | $689.77 | | |
| SCH205BOND | School 205-401 BOND | 0.9354199323 | $503,557 | $503,557 | $471.04 | | |
| ST | State School | 1.4761226122 | $503,557 | $503,557 | $743.31 | | |
| ST2 | State School Part 2 | 0.7953803475 | $503,557 | $503,557 | $400.52 | | |
| | Total Tax Rate: | 7.6534262019 | | | | | |
| | | | | Taxes w/Current Exemptions: | $3,853.95 | | |
| | | | | Taxes w/o Exemptions: | $3,853.95 | | |
Improvement / Building
| Improvement #1: | RESIDENTIAL | State Code: | Y | 2451.0 sqft | Value: | $293,557 |
| Bathrooms: | 2 | Bedrooms: | 2 | | Ceiling: | TONGUE & GROOVE | Exterior Wall/Cover: | WOOD SIDING | | Floor Covering: | VINYL 100% | Floor Structure: | WOOD W/SUBFLOOR | | Foundation: | CONCRETE BLOCKS | Heating: | FHA ELECTRIC | | Interior Finish: | DRYWALL PAINT | Plumbing Fixture Cnt: | 9 | | Roof Slope: | FLAT | Roof Structure/Cover: | BEAM ROLL COMPOSITION |
|
| | Type | Description | Class CD | Sub Class CD | Year Built | Area |
| | BAS | BASE/MAIN FLOOR | 3 | 0 | 1956 | 1371.0 |
| | DWN | DOWNSTAIRS LIVING AREA | 3 | 0 | 1956 | 1080.0 |
| | OWP | OPEN WOOD PORCH W/STEPS | 3 | 0 | 1956 | 516.0 |
| | DGR | DETACHED GARAGE | 3 | 0 | 1956 | 552.0 |
Sketch
Property Image
Land
| 1 | 14 | SQ (08001-12000) | 0.0000 | 0.00 | 0.00 | 0.00 | 1.00 | $210,000 | $0 |
Roll Value History
| 2026 | N/A | N/A | N/A | N/A | N/A |
| 2025 | $293,557 | $210,000 | $0 | $503,557 | $503,557 |
| 2024 | $297,125 | $210,000 | $0 | $507,125 | $507,125 |
| 2023 | $300,694 | $210,000 | $0 | $510,694 | $510,694 |
| 2022 | $275,507 | $200,000 | $0 | $475,507 | $475,507 |
| 2021 | $251,163 | $120,000 | $0 | $371,163 | $371,163 |
| 2020 | $244,321 | $120,000 | $0 | $364,321 | $364,321 |
| 2019 | $173,290 | $150,000 | $0 | $323,290 | $323,290 |
| 2018 | $173,787 | $100,000 | $0 | $273,787 | $273,787 |
| 2017 | $174,779 | $100,000 | $0 | $274,779 | $274,779 |
| 2016 | $176,766 | $90,000 | $0 | $266,766 | $266,766 |
| 2015 | $114,147 | $65,000 | $0 | $179,147 | $179,147 |
| 2014 | $116,114 | $65,000 | $0 | $181,114 | $181,114 |
| 2013 | $118,081 | $41,600 | $0 | $159,681 | $159,681 |
| 2012 | $120,048 | $41,600 | $0 | $161,648 | $161,648 |
| 2011 | $122,014 | $52,000 | $0 | $174,014 | $174,014 |
| 2010 | $135,822 | $52,000 | $0 | $187,822 | $187,822 |
| 2009 | $141,772 | $90,000 | $0 | $231,772 | $231,772 |
| 2008 | $143,988 | $87,725 | $0 | $231,713 | $231,713 |
| 2007 | $146,204 | $87,725 | $0 | $233,929 | $233,929 |
Deed and Sales History
| 1 | 12/02/2025 | QCD | Quit Claim Deed | TATLEY, WALLACE | TATLEY FAMILY REVOCABLE LIVING TRUST | | | $0.00 | 65853 | 4595252 |
| 2 | 12/03/2014 | WD | Warranty Deed | TAARLAND, JANETTE C & TOR I | TATLEY, WALLACE | | | | 0 | 4369237 |
| 3 | 03/01/1991 | QCD | Quit Claim Deed | TAARLAND, JANETTE C | TAARLAND, JANETTE C | | | $0.00 | 10683 | 91003102 |
| 4 | 07/01/1983 | WD | Warranty Deed | TAARLAND, JANETTE C | TAARLAND, JANETTE C | | | $71,200.00 | 31989 | 412273 |
| 5 | 07/01/1983 | QCD | Quit Claim Deed | MACQUARIE, HECTOR S | TAARLAND, JANETTE C | | | $0.00 | 31988 | 412272 |
| 6 | 01/01/1900 | OTHER | Other - Misc. Documents | Unknown | MACQUARIE, HECTOR S | | | $0.00 | 0 | 0 |
Payout Agreement
| No payout information available.. |