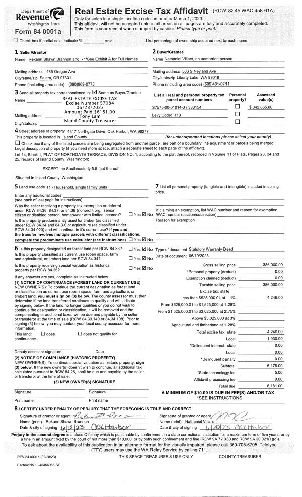
Property
Account |
| Property ID: | 330154 | Abbreviated Legal Description: | NORTHGATE TERR LOT 14 BLK 1 EX SELY 5.5' |
| Geographic ID: | S7575-00-01014-0 | Agent Code: | |
| Type: | Real | | |
| Tax Area: | 110 - APPRAISER-OH Schl Dist, outside OH, improved & 1 acre or less | Land Use Code | 11 |
| Open Space: | N | DFL | N |
| Historic Property: | N | Remodel Property: | N |
| Multi-Family Redevelopment: | N | | |
| Township: | | Section: | |
| Range: | |
Location |
| Address: | 4317 NORTHGATE DR OAK HARBOR, WA 98277 | Mapsco: | |
| Neighborhood: | Cycle 6 | Map ID: | 202 |
| Neighborhood CD: | 6 |
Owner |
| Name: | VILLARS, NATHANIEL | Owner ID: | 309058 |
| Mailing Address: | 506 S NEYLAND AVE LIBERTY LAKE, WA 99019 | % Ownership: | 100.0000000000% |
| | | Exemptions: | |
Taxes and Assessment Details
Values
| (+) Improvement Homesite Value: | + | $0 | |
| (+) Improvement Non-Homesite Value: | + | $183,899 | |
| (+) Land Homesite Value: | + | $0 | |
| (+) Land Non-Homesite Value: | + | $210,000 | |
| (+) Curr Use (HS): | + | $0 | $0 |
| (+) Curr Use (NHS): | + | $0 | $0 |
| | | -------------------------- | |
| (=) Market Value: | = | $393,899 | |
| (–) Productivity Loss: | – | $0 | |
| | | -------------------------- | |
| (=) Subtotal: | = | $393,899 | |
| (+) Senior Appraised Value: | + | $0 | |
| (+) Non-Senior Appraised Value: | + | $393,899 | |
| | | -------------------------- | |
| (=) Total Appraised Value: | = | $393,899 | |
| (–) Senior Exemption Loss: | – | $0 | |
| (–) Exemption Loss: | – | $0 | |
| | | -------------------------- | |
| (=) Taxable Value: | = | $393,899 | |
Taxing Jurisdiction
| Owner: | VILLARS, NATHANIEL | | |
| % Ownership: | 100.0000000000% | | |
| Total Value: | $393,899 | | |
| Tax Area: | 110 - APPRAISER-OH Schl Dist, outside OH, improved & 1 acre or less |
| CF | Conservation Futures | 0.0313996660 | $393,899 | $393,899 | $12.37 | | |
| CEM1 | Cemetery #1 | 0.0040018856 | $393,899 | $393,899 | $1.58 | | |
| FIRE2 | Fire & Rescue Dist #2 N Whidbey GEN | 0.5381486274 | $393,899 | $393,899 | $211.98 | | |
| HOBOND | Hospital BOND | 0.1893405597 | $393,899 | $393,899 | $74.58 | | |
| HOGEN | Hospital GEN | 0.3848777722 | $393,899 | $393,899 | $151.60 | | |
| CE | County Current Expense | 0.3674210519 | $393,899 | $393,899 | $144.73 | | |
| CR | County Roads | 0.4614296361 | $393,899 | $393,899 | $181.76 | | |
| ISLANDEMS | Hospital GEN (EMS) | 0.4952018576 | $393,899 | $393,899 | $195.06 | | |
| LIB | Library Sno-Isle GEN | 0.3039084203 | $393,899 | $393,899 | $119.71 | | |
| NWHIDPRMT | P & R N Whidbey GEN | 0.1990272349 | $393,899 | $393,899 | $78.40 | | |
| SCH201MO | School 201 Enrichment | 2.3851112745 | $393,899 | $393,899 | $939.49 | | |
| ST | State School | 1.4761226122 | $393,899 | $393,899 | $581.44 | | |
| ST2 | State School Part 2 | 0.7953803475 | $393,899 | $393,899 | $313.30 | | |
| | Total Tax Rate: | 7.6313709459 | | | | | |
| | | | | Taxes w/Current Exemptions: | $3,006.00 | | |
| | | | | Taxes w/o Exemptions: | $3,006.00 | | |
Improvement / Building
| Improvement #1: | RESIDENTIAL | State Code: | Y | 1092.0 sqft | Value: | $183,899 |
| Bathrooms: | 1 | Bedrooms: | 3 | | Ceiling: | DRYWALL PAINTED | Exterior Wall/Cover: | PLY/HARDBOARD T-111 | | Floor Covering: | CARPET/VINYL 80-20 | Floor Structure: | WOOD W/SUBFLOOR | | Foundation: | CONCRETE | Heating: | BASEBOARD ELECTRIC | | Interior Finish: | DRYWALL PAINT | Plumbing Fixture Cnt: | 6 | | Roof Slope: | 5" IN 12" | Roof Structure/Cover: | CJ ALUMINIUM HEAVY |
|
| | Type | Description | Class CD | Sub Class CD | Year Built | Area |
| | BAS | BASE/MAIN FLOOR | 3 | 0 | 1979 | 1092.0 |
| | AGR | ATTACHED GARAGE | 3 | 0 | 1979 | 336.0 |
| | OWP | OPEN WOOD PORCH W/STEPS | 3 | 0 | 1979 | 48.0 |
| | OWP | OPEN WOOD PORCH W/STEPS | 3 | 0 | 1979 | 215.0 |
Sketch
Property Image
Land
| 1 | 14 | SQ (08001-12000) | 0.0000 | 0.00 | 0.00 | 0.00 | 1.00 | $210,000 | $0 |
Roll Value History
| 2026 | N/A | N/A | N/A | N/A | N/A |
| 2025 | $183,899 | $210,000 | $0 | $393,899 | $393,899 |
| 2024 | $190,205 | $190,000 | $0 | $380,205 | $380,205 |
| 2023 | $192,667 | $190,000 | $0 | $382,667 | $382,667 |
| 2022 | $162,855 | $180,000 | $0 | $342,855 | $342,855 |
| 2021 | $143,473 | $130,000 | $0 | $273,473 | $273,473 |
| 2020 | $139,980 | $110,000 | $0 | $249,980 | $249,980 |
| 2019 | $99,908 | $140,000 | $0 | $239,908 | $239,908 |
| 2018 | $100,222 | $120,000 | $0 | $220,222 | $220,222 |
| 2017 | $100,852 | $90,000 | $0 | $190,852 | $190,852 |
| 2016 | $85,965 | $70,000 | $0 | $155,965 | $155,965 |
| 2015 | $87,225 | $50,000 | $0 | $137,225 | $137,225 |
| 2014 | $88,486 | $45,000 | $0 | $133,486 | $133,486 |
| 2013 | $89,747 | $45,000 | $0 | $134,747 | $134,747 |
| 2012 | $91,007 | $59,500 | $0 | $150,507 | $150,507 |
| 2011 | $92,268 | $70,000 | $0 | $162,268 | $162,268 |
| 2010 | $98,259 | $70,000 | $0 | $168,259 | $168,259 |
| 2009 | $102,543 | $77,500 | $0 | $180,043 | $180,043 |
| 2008 | $102,644 | $94,500 | $0 | $197,144 | $197,144 |
| 2007 | $104,022 | $90,000 | $0 | $194,022 | $194,022 |
Deed and Sales History
| 1 | 06/19/2023 | WD | Warranty Deed | BRANNON, REKANN SHAWN | VILLARS, NATHANIEL | | | $386,000.00 | 57084 | 4561427 |
| 2 | 06/19/2020 | QCD | Quit Claim Deed | BRANNON, JOSEPH H | BRANNON, REKANN SHAWN | | | $0.00 | 44320 | 4494291 |
| 3 | 04/16/2013 | SPWARDEED | Special Warranty Deed | SECRETARY OF VETERANS AFFAIRS | BRANNON, JOSEPH H | | | $80,000.00 | 11074 | 4338265 |
| 4 | 03/12/2012 | WD | Warranty Deed | GUILD MORTGAGE COMPANY | SECRETARY OF VETERANS AFFAIRS | | | $101,350.00 | 7450 | 4313973 |
| 5 | 03/13/2012 | TRUSTEED | Trustee's Deed | BROWN II, TIMOTHY E | GUILD MORTGAGE COMPANY | | | $0.00 | 7116 | 4311680 |
| 6 | 04/02/2009 | WD | Warranty Deed | SCHULTZ, CODY B | BROWN, TIMOTHY E | | | $194,500.00 | 90773 | 4248423 |
| 7 | 06/22/2005 | WD | Warranty Deed | HEINITZ, DAVID A | SCHULTZ, CODY B | | | $164,000.00 | 52964 | 4138634 |
| 8 | 05/01/1985 | WD | Warranty Deed | GIEDD, LONNIE S | HEINITZ, DAVID A | | | $53,500.00 | 51105 | 85004471 |
| 9 | 03/01/1980 | REC | Real Estate Contract | SUDA, & B | GIEDD, LONNIE S | | | $40,500.00 | 1063 | 367018 |
| 10 | 01/01/1900 | OTHER | Other - Misc. Documents | Unknown | SUDA, & B | | | $0.00 | 0 | 0 |
Payout Agreement
| No payout information available.. |