| 1 | 02/28/2025 | WD | Warranty Deed | PAULO, ANTHONY | SANCHEZ, PAULO CESAR | | | $365,000.00 | 62712 | 4582842 |
| 2 | 08/24/2020 | WD | Warranty Deed | NELSON, BRANDON | PAULO, ANTHONY | | | $279,900.00 | 44453 | 4495021 |
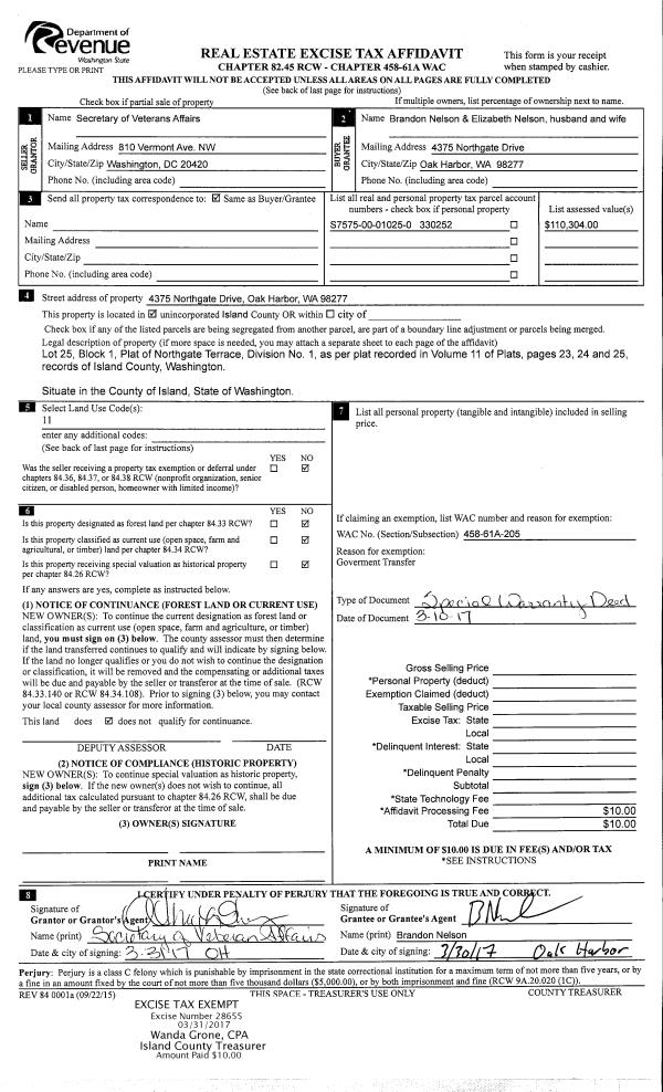
| 3 | 03/10/2017 | WD | Warranty Deed | SECRETARY OF VETERAN AFFAIRS | NELSON, BRANDON | | | $0.00 | 28655 | 4419857 |
| 4 | 06/28/2016 | WD | Warranty Deed | US BANK NATIONAL ASSOCIATION | SECRETARY OF VETERAN AFFAIRS | | | $0.00 | 25517 | 4404458 |
| 5 | 06/20/2016 | TRUSTEED | Trustee's Deed | ANDREWS, NICHOLAS P | US BANK NATIONAL ASSOCIATION | | | $0.00 | 25155 | 4402787 |
| 6 | 11/30/2006 | WD | Warranty Deed | LAWRENCE, ANTHONY MICHAEL | ANDREWS, NICHOLAS P | | | $175,000.00 | 65048 | 4188241 |
| 7 | 01/10/2005 | WD | Warranty Deed | ZABST, PHILLIP N | LAWRENCE, ANTHONY MICHAEL | | | $121,000.00 | 50537 | 4125558 |
| 8 | 01/01/1998 | OTHER | Other - Misc. Documents | ZABST, PHILLIP N | ZABST, PAUL N | | | $37,000.00 | 80324 | 0 |
| 9 | 01/01/1998 | WD | Warranty Deed | BROCKI, REX A | ZABST, PHILLIP N | | | $72,000.00 | 80322 | 98001680 |
| 10 | 05/01/1997 | WD | Warranty Deed | BRAWNER, JAMES M | BROCKI, REX A | | | $32,956.00 | 71724 | 97007905 |
| 11 | 01/01/1995 | WD | Warranty Deed | BRAWNER, JAMES M | BRAWNER, JAMES M | | | $37,308.00 | 50124 | 95000673 |
| 12 | 01/01/1995 | WD | Warranty Deed | WALLS, MAXINE E | BRAWNER, JAMES M | | | $0.00 | 50131 | 95000674 |
| 13 | 04/01/1992 | QCD | Quit Claim Deed | WALLS, MAXINE E | WALLS, MAXINE E | | | $0.00 | 21599 | 92007679 |
| 14 | 07/01/1986 | DECREE | Divorce Decree/Legal Separation | WALLS, FRANKLIN E | WALLS, MAXINE E | | | $0.00 | 61708 | 0 |
| 15 | 07/01/1983 | WD | Warranty Deed | RICHARDSON, LEE F | WALLS, FRANKLIN E | | | $7,750.00 | 31886 | 411951 |
| 16 | 12/01/1978 | OTHER | Other - Misc. Documents | Unknown | RICHARDSON, LEE F | | | $5,500.00 | 86238 | 345153 |