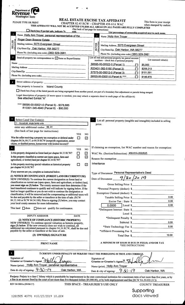
Property
Account |
| Property ID: | 331279 | Abbreviated Legal Description: | NORTHGATE TERRACE LOTS 11 & 12 BLK 5 COMB 7/86 |
| Geographic ID: | S7575-00-05012-0 | Agent Code: | |
| Type: | Real | | |
| Tax Area: | 110 - APPRAISER-OH Schl Dist, outside OH, improved & 1 acre or less | Land Use Code | 11 |
| Open Space: | N | DFL | N |
| Historic Property: | N | Remodel Property: | N |
| Multi-Family Redevelopment: | N | | |
| Township: | | Section: | |
| Range: | |
Location |
| Address: | 4368 HUNTER LN OAK HARBOR, WA 98277 | Mapsco: | |
| Neighborhood: | Cycle 6 | Map ID: | 203 |
| Neighborhood CD: | 6 |
Owner |
| Name: | TROYER, HOLLY ANN | Owner ID: | 292319 |
| Mailing Address: | 5054 EVERGREEN ST OAK HARBOR, WA 98277 | % Ownership: | 100.0000000000% |
| | | Exemptions: | |
Taxes and Assessment Details
Values
| (+) Improvement Homesite Value: | + | $0 | |
| (+) Improvement Non-Homesite Value: | + | $8,057 | |
| (+) Land Homesite Value: | + | $0 | |
| (+) Land Non-Homesite Value: | + | $110,000 | |
| (+) Curr Use (HS): | + | $0 | $0 |
| (+) Curr Use (NHS): | + | $0 | $0 |
| | | -------------------------- | |
| (=) Market Value: | = | $118,057 | |
| (–) Productivity Loss: | – | $0 | |
| | | -------------------------- | |
| (=) Subtotal: | = | $118,057 | |
| (+) Senior Appraised Value: | + | $0 | |
| (+) Non-Senior Appraised Value: | + | $118,057 | |
| | | -------------------------- | |
| (=) Total Appraised Value: | = | $118,057 | |
| (–) Senior Exemption Loss: | – | $0 | |
| (–) Exemption Loss: | – | $0 | |
| | | -------------------------- | |
| (=) Taxable Value: | = | $118,057 | |
Taxing Jurisdiction
| Owner: | TROYER, HOLLY ANN | | |
| % Ownership: | 100.0000000000% | | |
| Total Value: | $118,057 | | |
| Tax Area: | 110 - APPRAISER-OH Schl Dist, outside OH, improved & 1 acre or less |
| CF | Conservation Futures | 0.0313996660 | $118,057 | $118,057 | $3.71 | | |
| CEM1 | Cemetery #1 | 0.0040018856 | $118,057 | $118,057 | $0.47 | | |
| FIRE2 | Fire & Rescue Dist #2 N Whidbey GEN | 0.5381486274 | $118,057 | $118,057 | $63.53 | | |
| HOBOND | Hospital BOND | 0.1893405597 | $118,057 | $118,057 | $22.35 | | |
| HOGEN | Hospital GEN | 0.3848777722 | $118,057 | $118,057 | $45.44 | | |
| CE | County Current Expense | 0.3674210519 | $118,057 | $118,057 | $43.38 | | |
| CR | County Roads | 0.4614296361 | $118,057 | $118,057 | $54.47 | | |
| ISLANDEMS | Hospital GEN (EMS) | 0.4952018576 | $118,057 | $118,057 | $58.46 | | |
| LIB | Library Sno-Isle GEN | 0.3039084203 | $118,057 | $118,057 | $35.88 | | |
| NWHIDPRMT | P & R N Whidbey GEN | 0.1990272349 | $118,057 | $118,057 | $23.50 | | |
| SCH201MO | School 201 Enrichment | 2.3851112745 | $118,057 | $118,057 | $281.58 | | |
| ST | State School | 1.4761226122 | $118,057 | $118,057 | $174.27 | | |
| ST2 | State School Part 2 | 0.7953803475 | $118,057 | $118,057 | $93.90 | | |
| | Total Tax Rate: | 7.6313709459 | | | | | |
| | | | | Taxes w/Current Exemptions: | $900.94 | | |
| | | | | Taxes w/o Exemptions: | $900.94 | | |
Improvement / Building
| Improvement #1: | MANUFACTURED HOME | State Code: | Y | 924.0 sqft | Value: | $8,057 |
| Bathrooms: | 0 | Bedrooms: | 0 | | Ceiling: | PLASTER PAINTED | Cooling: | EVAP NO DUCT | | Exterior Wall/Cover: | VINYL | Floor Covering: | CARPET 100% | | Floor Structure: | SLAB ON GRADE | Foundation: | SLAB | | Heating: | FHA ELECTRIC | Interior Finish: | PLASTER | | Plumbing Fixture Cnt: | 1 | Roof Slope: | FLAT | | Roof Structure/Cover: | CJ ALUMINIUM HEAVY |   |   |
|
| | Type | Description | Class CD | Sub Class CD | Year Built | Area |
| | BAS | BASE/MAIN FLOOR | 3 | 0 | 1973 | 924.0 |
| | OP3 | OPEN PORCH W/ROOF | 3 | 0 | 1973 | 200.0 |
Sketch
Property Image
Land
| 1 | 15 | SQ (12001-21780) | 0.0000 | 0.00 | 0.00 | 0.00 | 1.00 | $110,000 | $0 |
Roll Value History
| 2026 | N/A | N/A | N/A | N/A | N/A |
| 2025 | $8,057 | $110,000 | $0 | $118,057 | $118,057 |
| 2024 | $8,057 | $110,000 | $0 | $118,057 | $118,057 |
| 2023 | $8,863 | $110,000 | $0 | $118,863 | $118,863 |
| 2022 | $8,027 | $100,000 | $0 | $108,027 | $108,027 |
| 2021 | $7,615 | $65,000 | $0 | $72,615 | $72,615 |
| 2020 | $7,701 | $65,000 | $0 | $72,701 | $72,701 |
| 2019 | $6,551 | $95,000 | $0 | $101,551 | $101,551 |
| 2018 | $6,793 | $75,000 | $0 | $81,793 | $81,793 |
| 2017 | $7,278 | $90,000 | $0 | $97,278 | $97,278 |
| 2016 | $6,358 | $70,000 | $0 | $76,358 | $76,358 |
| 2015 | $6,624 | $50,000 | $0 | $56,624 | $56,624 |
| 2014 | $7,153 | $45,000 | $0 | $52,153 | $52,153 |
| 2013 | $7,418 | $45,000 | $0 | $52,418 | $52,418 |
| 2012 | $7,948 | $42,500 | $0 | $50,448 | $50,448 |
| 2011 | $8,213 | $50,000 | $0 | $58,213 | $58,213 |
| 2010 | $18,966 | $50,000 | $0 | $68,966 | $68,966 |
| 2009 | $19,378 | $44,500 | $0 | $63,878 | $63,878 |
| 2008 | $19,600 | $84,000 | $0 | $103,600 | $103,600 |
| 2007 | $19,788 | $80,000 | $0 | $99,788 | $99,788 |
Deed and Sales History
| 1 | 09/30/2019 | PRD | Personal Representatives Deed | BOSSOW, ROGER | TROYER, HOLLY ANN | | | $0.00 | 40791 | 4473926 |
| 2 | 07/01/1986 | OTHER | Other - Misc. Documents | BOSSOW, ROGER | BOSSOW, ROGER | | | $0.00 | 61737 | 86005991 |
| 3 | 06/01/1982 | WD | Warranty Deed | BOSSOW, ROGER | BOSSOW, ROGER | | | $18,944.00 | 21363 | 397159 |
| 4 | 06/01/1982 | WD | Warranty Deed | LARRABEE, DONALD B | BOSSOW, ROGER | | | $18,944.00 | 21363 | 397159 |
| 5 | 04/01/1982 | REC | Real Estate Contract | GRAY, LENORD P | LARRABEE, DONALD B | | | $0.00 | 20746 | 394796 |
| 6 | 07/01/1979 | REC | Real Estate Contract | LARRABEE, DONALD B | GRAY, LENORD P | | | $27,250.00 | 93634 | 356149 |
| 7 | 01/01/1900 | OTHER | Other - Misc. Documents | Unknown | LARRABEE, DONALD B | | | $0.00 | 0 | 0 |
Payout Agreement
| No payout information available.. |