Property
Account |
| Property ID: | 331377 | Abbreviated Legal Description: | NGATE TERR LOT 6 BLK 6 |
| Geographic ID: | S7575-00-06006-0 | Agent Code: | |
| Type: | Real | | |
| Tax Area: | 110 - APPRAISER-OH Schl Dist, outside OH, improved & 1 acre or less | Land Use Code | 11 |
| Open Space: | N | DFL | N |
| Historic Property: | N | Remodel Property: | N |
| Multi-Family Redevelopment: | N | | |
| Township: | | Section: | |
| Range: | |
Location |
| Address: | 525 SALAL ST OAK HARBOR, WA 98277 | Mapsco: | |
| Neighborhood: | Cycle 6 | Map ID: | 203 |
| Neighborhood CD: | 6 |
Owner |
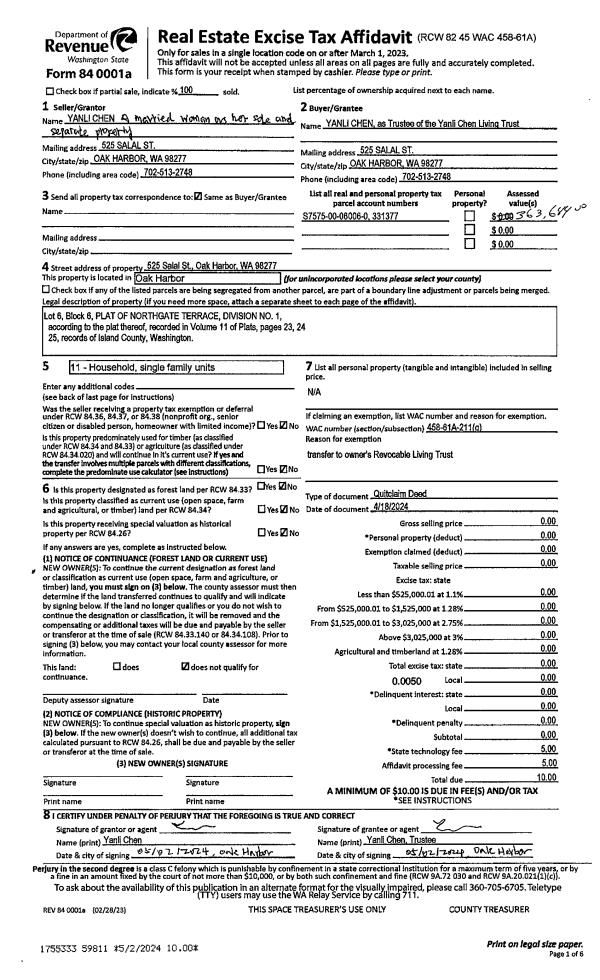
| Name: | CHEN TTEE, YANLI | Owner ID: | 312189 |
| Mailing Address: | 5255 SALAL ST OAK HARBOR, WA 98277 | % Ownership: | 100.0000000000% |
| | | Exemptions: | |
Taxes and Assessment Details
Values
| (+) Improvement Homesite Value: | + | $0 | |
| (+) Improvement Non-Homesite Value: | + | $169,029 | |
| (+) Land Homesite Value: | + | $0 | |
| (+) Land Non-Homesite Value: | + | $210,000 | |
| (+) Curr Use (HS): | + | $0 | $0 |
| (+) Curr Use (NHS): | + | $0 | $0 |
| | | -------------------------- | |
| (=) Market Value: | = | $379,029 | |
| (–) Productivity Loss: | – | $0 | |
| | | -------------------------- | |
| (=) Subtotal: | = | $379,029 | |
| (+) Senior Appraised Value: | + | $0 | |
| (+) Non-Senior Appraised Value: | + | $379,029 | |
| | | -------------------------- | |
| (=) Total Appraised Value: | = | $379,029 | |
| (–) Senior Exemption Loss: | – | $0 | |
| (–) Exemption Loss: | – | $0 | |
| | | -------------------------- | |
| (=) Taxable Value: | = | $379,029 | |
Taxing Jurisdiction
| Owner: | CHEN TTEE, YANLI | | |
| % Ownership: | 100.0000000000% | | |
| Total Value: | $379,029 | | |
| Tax Area: | 110 - APPRAISER-OH Schl Dist, outside OH, improved & 1 acre or less |
| CF | Conservation Futures | 0.0313996660 | $379,029 | $379,029 | $11.90 | | |
| CEM1 | Cemetery #1 | 0.0040018856 | $379,029 | $379,029 | $1.52 | | |
| FIRE2 | Fire & Rescue Dist #2 N Whidbey GEN | 0.5381486274 | $379,029 | $379,029 | $203.97 | | |
| HOBOND | Hospital BOND | 0.1893405597 | $379,029 | $379,029 | $71.77 | | |
| HOGEN | Hospital GEN | 0.3848777722 | $379,029 | $379,029 | $145.88 | | |
| CE | County Current Expense | 0.3674210519 | $379,029 | $379,029 | $139.26 | | |
| CR | County Roads | 0.4614296361 | $379,029 | $379,029 | $174.90 | | |
| ISLANDEMS | Hospital GEN (EMS) | 0.4952018576 | $379,029 | $379,029 | $187.70 | | |
| LIB | Library Sno-Isle GEN | 0.3039084203 | $379,029 | $379,029 | $115.19 | | |
| NWHIDPRMT | P & R N Whidbey GEN | 0.1990272349 | $379,029 | $379,029 | $75.44 | | |
| SCH201MO | School 201 Enrichment | 2.3851112745 | $379,029 | $379,029 | $904.03 | | |
| ST | State School | 1.4761226122 | $379,029 | $379,029 | $559.49 | | |
| ST2 | State School Part 2 | 0.7953803475 | $379,029 | $379,029 | $301.47 | | |
| | Total Tax Rate: | 7.6313709459 | | | | | |
| | | | | Taxes w/Current Exemptions: | $2,892.52 | | |
| | | | | Taxes w/o Exemptions: | $2,892.52 | | |
Improvement / Building
| Improvement #1: | RESIDENTIAL | State Code: | Y | 1014.0 sqft | Value: | $169,029 |
| Bathrooms: | 2 | Bedrooms: | 3 | | Ceiling: | DRYWALL PAINTED | Exterior Wall/Cover: | PLY/HARDBOARD T-111 | | Floor Covering: | CARPET/VINYL 80-20 | Floor Structure: | WOOD W/SUBFLOOR | | Foundation: | CONCRETE | Heating: | WALL HEAT ELECTRIC | | Interior Finish: | DRYWALL PAINT | Plumbing Fixture Cnt: | 9 | | Roof Slope: | 4" IN 12" | Roof Structure/Cover: | CJ ALUMINIUM HEAVY |
|
| | Type | Description | Class CD | Sub Class CD | Year Built | Area |
| | BAS | BASE/MAIN FLOOR | 3 | 0 | 1990 | 1014.0 |
| | AGR | ATTACHED GARAGE | 3 | 0 | 1990 | 252.0 |
Sketch
Property Image
Land
| 1 | 13 | SQ (06001-08000) | 0.1818 | 7919.21 | 0.00 | 0.00 | 1.00 | $210,000 | $0 |
Roll Value History
| 2026 | N/A | N/A | N/A | N/A | N/A |
| 2025 | $169,029 | $210,000 | $0 | $379,029 | $379,029 |
| 2024 | $171,337 | $190,000 | $0 | $361,337 | $361,337 |
| 2023 | $173,644 | $190,000 | $0 | $363,644 | $363,644 |
| 2022 | $155,148 | $180,000 | $0 | $335,148 | $335,148 |
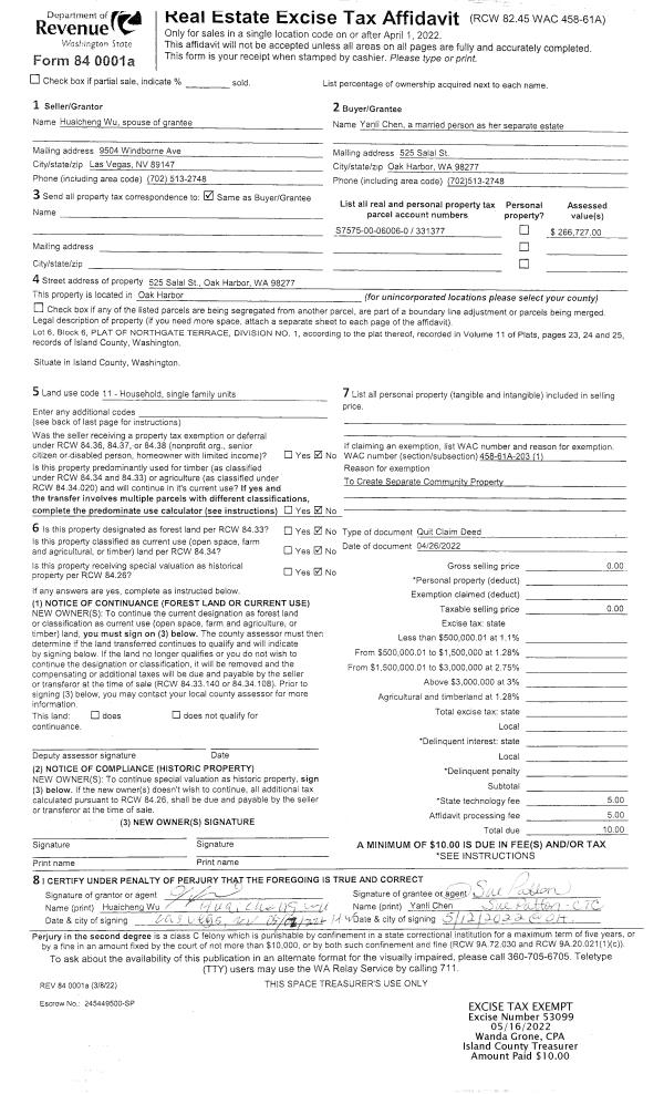
| 2021 | $136,727 | $130,000 | $0 | $266,727 | $266,727 |
| 2020 | $93,066 | $110,000 | $0 | $203,066 | $203,066 |
| 2019 | $88,637 | $140,000 | $0 | $228,637 | $228,637 |
| 2018 | $88,924 | $120,000 | $0 | $208,924 | $208,924 |
| 2017 | $89,498 | $90,000 | $0 | $179,498 | $179,498 |
| 2016 | $88,041 | $70,000 | $0 | $158,041 | $158,041 |
| 2015 | $89,248 | $50,000 | $0 | $139,248 | $139,248 |
| 2014 | $90,454 | $45,000 | $0 | $135,454 | $135,454 |
| 2013 | $91,660 | $45,000 | $0 | $136,660 | $136,660 |
| 2012 | $92,866 | $59,500 | $0 | $152,366 | $152,366 |
| 2011 | $94,072 | $70,000 | $0 | $164,072 | $164,072 |
| 2010 | $96,263 | $70,000 | $0 | $166,263 | $166,263 |
| 2009 | $100,389 | $77,500 | $0 | $177,889 | $177,889 |
| 2008 | $101,583 | $94,500 | $0 | $196,083 | $196,083 |
| 2007 | $102,778 | $90,000 | $0 | $192,778 | $192,778 |
Deed and Sales History
| 1 | 04/18/2024 | QCD | Quit Claim Deed | CHEN, YANLI | CHEN TTEE, YANLI | | | $0.00 | 59811 | 4571863 |
| 2 | 04/26/2022 | QCD | Quit Claim Deed | WU, HUAICHENG | CHEN, YANLI | | | $0.00 | 53099 | 4545112 |
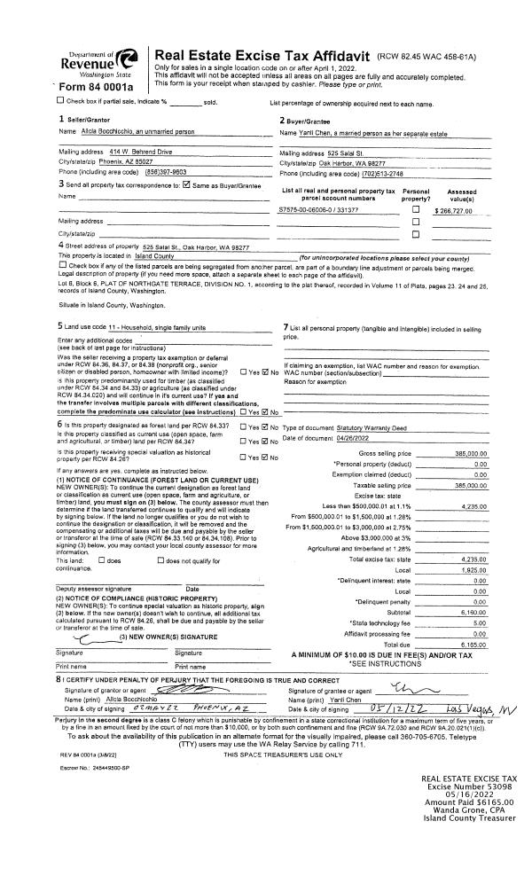
| 3 | 04/26/2022 | WD | Warranty Deed | BOCCHICCHIO, ALICIA | CHEN, YANLI | | | $385,000.00 | 53098 | 4545111 |
| 4 | 08/01/2019 | WD | Warranty Deed | TORRES, JONATHAN R | BOCCHICCHIO, ALICIA | | | $251,000.00 | 39813 | 4469126 |
| 5 | 01/12/2017 | WD | Warranty Deed | ENCINAS JR, JOHN C | TORRES, JONATHAN R | | | $205,500.00 | 27766 | 4415350 |
| 6 | 01/06/2006 | PRD | Personal Representatives Deed | ENCINAS, CATHERINE T | ENCINAS JR, JOHN C | | | $0.00 | 60055 | 4158997 |
| 7 | 08/01/1993 | WD | Warranty Deed | ENCINAS, JOHN C | ENCINAS, CATHERINE T | | | $87,000.00 | 33188 | 93016486 |
| 8 | 06/01/1990 | QCD | Quit Claim Deed | ENCINAS, JOHN | ENCINAS, JOHN C | | | $0.00 | 3558 | 90011520 |
| 9 | 03/01/1990 | WD | Warranty Deed | BROWNELL, FRANK | ENCINAS, JOHN | | | $9,300.00 | 1799 | 90005766 |
Payout Agreement
| No payout information available.. |