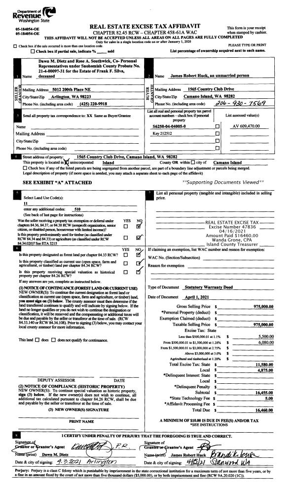
Property
Account |
| Property ID: | 333197 | Abbreviated Legal Description: | OAK GROVE LOT 8 BLK 3 |
| Geographic ID: | S7580-00-03008-0 | Agent Code: | |
| Type: | Real | | |
| Tax Area: | 100 - APPRAISER-OH Schl Dist, in OH | Land Use Code | 11 |
| Open Space: | N | DFL | N |
| Historic Property: | N | Remodel Property: | N |
| Multi-Family Redevelopment: | N | | |
| Township: | | Section: | |
| Range: | |
Location |
| Address: | 1200 SE 9TH AVE OAK HARBOR, WA 98277 | Mapsco: | |
| Neighborhood: | Cycle 1 | Map ID: | 89 |
| Neighborhood CD: | 1 |
Owner |
| Name: | BLAKE JTWROS, WILLIAM T | Owner ID: | 299582 |
| Mailing Address: | JUDY BOYCE JTWROS 1200 SE 9TH AVE OAK HARBOR, WA 98277 | % Ownership: | 100.0000000000% |
| | | Exemptions: | |
Taxes and Assessment Details
Values
| (+) Improvement Homesite Value: | + | $216,072 | |
| (+) Improvement Non-Homesite Value: | + | $0 | |
| (+) Land Homesite Value: | + | $200,000 | |
| (+) Land Non-Homesite Value: | + | $0 | |
| (+) Curr Use (HS): | + | $0 | $0 |
| (+) Curr Use (NHS): | + | $0 | $0 |
| | | -------------------------- | |
| (=) Market Value: | = | $416,072 | |
| (–) Productivity Loss: | – | $0 | |
| | | -------------------------- | |
| (=) Subtotal: | = | $416,072 | |
| (+) Senior Appraised Value: | + | $0 | |
| (+) Non-Senior Appraised Value: | + | $416,072 | |
| | | -------------------------- | |
| (=) Total Appraised Value: | = | $416,072 | |
| (–) Senior Exemption Loss: | – | $0 | |
| (–) Exemption Loss: | – | $0 | |
| | | -------------------------- | |
| (=) Taxable Value: | = | $416,072 | |
Taxing Jurisdiction
| Owner: | BLAKE JTWROS, WILLIAM T | | |
| % Ownership: | 100.0000000000% | | |
| Total Value: | $416,072 | | |
| Tax Area: | 100 - APPRAISER-OH Schl Dist, in OH |
| CF | Conservation Futures | 0.0313996660 | $416,072 | $416,072 | $13.06 | | |
| CEM1 | Cemetery #1 | 0.0040018856 | $416,072 | $416,072 | $1.67 | | |
| COH | City of Oak Harbor | 2.3090730572 | $416,072 | $416,072 | $960.74 | | |
| OAKBOND | City of Oak Harbor BOND | 0.1902260131 | $416,072 | $416,072 | $79.15 | | |
| HOBOND | Hospital BOND | 0.1893405597 | $416,072 | $416,072 | $78.78 | | |
| HOGEN | Hospital GEN | 0.3848777722 | $416,072 | $416,072 | $160.14 | | |
| CE | County Current Expense | 0.3674210519 | $416,072 | $416,072 | $152.87 | | |
| ISLANDEMS | Hospital GEN (EMS) | 0.4952018576 | $416,072 | $416,072 | $206.04 | | |
| LIB | Library Sno-Isle GEN | 0.3039084203 | $416,072 | $416,072 | $126.45 | | |
| NWHIDPRMT | P & R N Whidbey GEN | 0.1990272349 | $416,072 | $416,072 | $82.81 | | |
| SCH201MO | School 201 Enrichment | 2.3851112745 | $416,072 | $416,072 | $992.38 | | |
| ST | State School | 1.4761226122 | $416,072 | $416,072 | $614.17 | | |
| ST2 | State School Part 2 | 0.7953803475 | $416,072 | $416,072 | $330.94 | | |
| | Total Tax Rate: | 9.1310917527 | | | | | |
| | | | | Taxes w/Current Exemptions: | $3,799.20 | | |
| | | | | Taxes w/o Exemptions: | $3,799.20 | | |
Improvement / Building
| Improvement #1: | RESIDENTIAL | State Code: | Y | 892.0 sqft | Value: | $216,072 |
| Bathrooms: | 1.5 | Bedrooms: | 2 | | Ceiling: | DRYWALL PAINTED | Exterior Wall/Cover: | COMMON BRICK VENEER | | Floor Covering: | CARPET/VINYL 80-20 | Floor Structure: | WOOD W/SUBFLOOR | | Foundation: | CONCRETE | Heating: | FHA ELECTRIC | | Interior Finish: | DRYWALL PAINT | Plumbing Fixture Cnt: | 8 | | Roof Slope: | 5" IN 12" | Roof Structure/Cover: | CJ ASPHALT |
|
| | Type | Description | Class CD | Sub Class CD | Year Built | Area |
| | BAS | BASE/MAIN FLOOR | 3 | 0 | 1951 | 892.0 |
| | UB6 | BASEMENT UNFINISHED 6" | 3 | 0 | 1951 | 892.0 |
| | AGR | ATTACHED GARAGE | 3 | 0 | 1951 | 299.0 |
| | OCP | OPEN CARPORT | 3 | 0 | 1951 | 216.0 |
| | OP4 | OPEN PORCH W/CEILING-ROOF | 3 | 0 | 1951 | 42.0 |
Sketch
Property Image
Land
| 1 | 13 | SQ (06001-08000) | 0.0000 | 0.00 | 0.00 | 0.00 | 1.00 | $200,000 | $0 |
Roll Value History
| 2026 | N/A | N/A | N/A | N/A | N/A |
| 2025 | $216,072 | $200,000 | $0 | $416,072 | $416,072 |
| 2024 | $219,022 | $185,000 | $0 | $404,022 | $404,022 |
| 2023 | $202,511 | $180,000 | $0 | $382,511 | $382,511 |
| 2022 | $185,910 | $170,000 | $0 | $355,910 | $355,910 |
| 2021 | $163,865 | $140,000 | $0 | $303,865 | $303,865 |
| 2020 | $159,390 | $125,000 | $0 | $284,390 | $54,950 |
| 2019 | $111,836 | $160,000 | $0 | $271,836 | $54,950 |
| 2018 | $112,202 | $155,000 | $0 | $267,202 | $54,950 |
| 2017 | $81,185 | $140,000 | $0 | $221,185 | $54,950 |
| 2016 | $82,586 | $120,000 | $0 | $202,586 | $54,950 |
| 2015 | $83,985 | $100,000 | $0 | $183,985 | $54,950 |
| 2014 | $85,386 | $100,000 | $0 | $185,386 | $54,950 |
| 2013 | $86,785 | $107,000 | $0 | $193,785 | $54,950 |
| 2012 | $88,184 | $107,000 | $0 | $195,184 | $54,950 |
| 2011 | $72,082 | $107,000 | $0 | $179,082 | $54,950 |
| 2010 | $87,538 | $107,000 | $0 | $194,538 | $54,950 |
| 2009 | $87,538 | $125,000 | $0 | $212,538 | $54,950 |
| 2008 | $89,267 | $133,900 | $0 | $223,167 | $54,950 |
| 2007 | $89,886 | $134,828 | $0 | $224,714 | $137,376 |
Deed and Sales History
| 1 | 05/08/2021 | PRD | Personal Representatives Deed | BLAKE, TOKIKO | BLAKE JTWROS, WILLIAM T | | | $0.00 | 48334 | 4519807 |
| 2 | 04/28/2003 | OTHER | Other - Misc. Documents | BLAKE, JOHN P | BLAKE, TOKIKO | | | $0.00 | 70572 | 0 |
| 3 | 01/01/1900 | OTHER | Other - Misc. Documents | Unknown | BLAKE, JOHN P | | | $0.00 | 0 | 0 |
Payout Agreement
| No payout information available.. |