Property
Account |
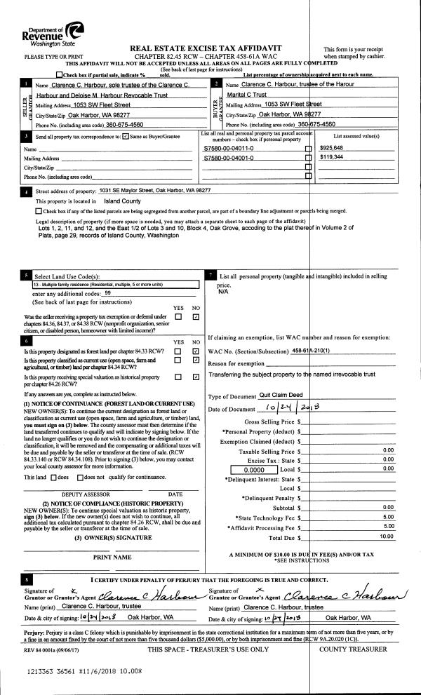
| Property ID: | 333277 | Abbreviated Legal Description: | OAK GROVE LOTS 11, 12 & E/2 LOT 10 BLK 4 |
| Geographic ID: | S7580-00-04011-0 | Agent Code: | |
| Type: | Real | | |
| Tax Area: | 100 - APPRAISER-OH Schl Dist, in OH | Land Use Code | 13 |
| Open Space: | N | DFL | N |
| Historic Property: | N | Remodel Property: | N |
| Multi-Family Redevelopment: | N | | |
| Township: | | Section: | |
| Range: | |
Location |
| Address: | 1031 SE MAYLOR ST OAK HARBOR, WA 98277 | Mapsco: | |
| Neighborhood: | 13cOH-pioneer way | Map ID: | 89 |
| Neighborhood CD: | 13cOHpionr |
Owner |
| Name: | RIP OAK, LLC | Owner ID: | 310941 |
| Mailing Address: | 22630 WOODWAY PARK RD WOODWAY, WA 98020 | % Ownership: | 100.0000000000% |
| | | Exemptions: | |
Taxes and Assessment Details
Values
| (+) Improvement Homesite Value: | + | $0 | |
| (+) Improvement Non-Homesite Value: | + | $1,005,404 | |
| (+) Land Homesite Value: | + | $0 | |
| (+) Land Non-Homesite Value: | + | $451,238 | |
| (+) Curr Use (HS): | + | $0 | $0 |
| (+) Curr Use (NHS): | + | $0 | $0 |
| | | -------------------------- | |
| (=) Market Value: | = | $1,456,642 | |
| (–) Productivity Loss: | – | $0 | |
| | | -------------------------- | |
| (=) Subtotal: | = | $1,456,642 | |
| (+) Senior Appraised Value: | + | $0 | |
| (+) Non-Senior Appraised Value: | + | $1,456,642 | |
| | | -------------------------- | |
| (=) Total Appraised Value: | = | $1,456,642 | |
| (–) Senior Exemption Loss: | – | $0 | |
| (–) Exemption Loss: | – | $0 | |
| | | -------------------------- | |
| (=) Taxable Value: | = | $1,456,642 | |
Taxing Jurisdiction
| Owner: | RIP OAK, LLC | | |
| % Ownership: | 100.0000000000% | | |
| Total Value: | $1,456,642 | | |
| Tax Area: | 100 - APPRAISER-OH Schl Dist, in OH |
| CF | Conservation Futures | 0.0313996660 | $1,456,642 | $1,456,642 | $45.74 | | |
| CEM1 | Cemetery #1 | 0.0040018856 | $1,456,642 | $1,456,642 | $5.83 | | |
| COH | City of Oak Harbor | 2.3090730572 | $1,456,642 | $1,456,642 | $3,363.49 | | |
| OAKBOND | City of Oak Harbor BOND | 0.1902260131 | $1,456,642 | $1,456,642 | $277.09 | | |
| HOBOND | Hospital BOND | 0.1893405597 | $1,456,642 | $1,456,642 | $275.80 | | |
| HOGEN | Hospital GEN | 0.3848777722 | $1,456,642 | $1,456,642 | $560.63 | | |
| CE | County Current Expense | 0.3674210519 | $1,456,642 | $1,456,642 | $535.20 | | |
| ISLANDEMS | Hospital GEN (EMS) | 0.4952018576 | $1,456,642 | $1,456,642 | $721.33 | | |
| LIB | Library Sno-Isle GEN | 0.3039084203 | $1,456,642 | $1,456,642 | $442.69 | | |
| NWHIDPRMT | P & R N Whidbey GEN | 0.1990272349 | $1,456,642 | $1,456,642 | $289.91 | | |
| SCH201MO | School 201 Enrichment | 2.3851112745 | $1,456,642 | $1,456,642 | $3,474.25 | | |
| ST | State School | 1.4761226122 | $1,456,642 | $1,456,642 | $2,150.18 | | |
| ST2 | State School Part 2 | 0.7953803475 | $1,456,642 | $1,456,642 | $1,158.58 | | |
| | Total Tax Rate: | 9.1310917527 | | | | | |
| | | | | Taxes w/Current Exemptions: | $13,300.72 | | |
| | | | | Taxes w/o Exemptions: | $13,300.72 | | |
Improvement / Building
| Improvement #1: | COMMERCIAL | State Code: | Y | 10728.0 sqft | Value: | $1,005,404 |
| Bathrooms: | 10 | Bedrooms: | 20 | | Ceiling: | DRYWALL PAINTED | Exterior Wall/Cover: | STUCCO | | Floor Covering: | CARPET/VINYL 80-20 | Floor Structure: | WOOD W/SUBFLOOR | | Foundation: | SLAB/CONCRETE | Heating: | BASEBOARD ELECTRIC | | Interior Finish: | DRYWALL PAINT | Plumbing Fixture Cnt: | 60 | | Roof Slope: | FLAT | Roof Structure/Cover: | CJ BUILT-UP ROCK |
|
| | Type | Description | Class CD | Sub Class CD | Year Built | Area |
| | BAS | BASE/MAIN FLOOR | 3 | 0 | 1963 | 3576.0 |
| | OP1 | OPEN PORCH SLAB | 3 | 0 | 1963 | 1084.0 |
| | OP2 | OPEN PORCH W/STEPS | 3 | 0 | 1963 | 630.0 |
| | OP4 | OPEN PORCH W/CEILING-ROOF | 3 | 0 | 1963 | 1717.0 |
| | UPS | UPPER STORY | 3 | 0 | 1963 | 3576.0 |
| | OWC | OPEN WOOD PORCH W/STEPS/ROOF/C | 3 | 0 | 1963 | 864.0 |
| | DWN | DOWNSTAIRS LIVING AREA | 3 | 0 | 1963 | 3576.0 |
| | oPV2 | PV/ASPH 3" | 3 | 0 | 1963 | 5660.0 |
Sketch
Property Image
Land
| 1 | 61 | MULTIPLE RESIDENCES | 0.3453 | 15041.27 | 0.00 | 0.00 | 1.00 | $451,238 | $0 |
Roll Value History
| 2026 | N/A | N/A | N/A | N/A | N/A |
| 2025 | $1,005,404 | $451,238 | $0 | $1,456,642 | $1,456,642 |
| 2024 | $1,039,926 | $451,238 | $0 | $1,491,164 | $1,491,164 |
| 2023 | $655,130 | $451,238 | $0 | $1,106,368 | $1,106,368 |
| 2022 | $571,635 | $451,238 | $0 | $1,022,873 | $1,022,873 |
| 2021 | $560,354 | $451,238 | $0 | $1,011,592 | $1,011,592 |
| 2020 | $558,526 | $451,238 | $0 | $1,009,764 | $1,009,764 |
| 2019 | $534,350 | $451,238 | $0 | $985,588 | $985,588 |
| 2018 | $534,574 | $391,074 | $0 | $925,648 | $925,648 |
| 2017 | $580,110 | $210,578 | $0 | $790,688 | $790,688 |
| 2016 | $580,110 | $210,578 | $0 | $790,688 | $790,688 |
| 2015 | $580,110 | $210,578 | $0 | $790,688 | $790,688 |
| 2014 | $580,110 | $210,578 | $0 | $790,688 | $790,688 |
| 2013 | $580,110 | $216,648 | $0 | $796,758 | $796,758 |
| 2012 | $580,110 | $216,648 | $0 | $796,758 | $796,758 |
| 2011 | $580,110 | $216,648 | $0 | $796,758 | $796,758 |
| 2010 | $599,527 | $216,648 | $0 | $816,175 | $816,175 |
| 2009 | $607,878 | $230,418 | $0 | $838,296 | $838,296 |
| 2008 | $616,229 | $242,505 | $0 | $858,734 | $858,734 |
| 2007 | $624,580 | $242,505 | $0 | $867,085 | $867,085 |
Deed and Sales History
| 1 | 12/13/2023 | WD | Warranty Deed | HARBOUR TTEE, CLARENCE C | RIP OAK, LLC | | | $2,200,000.00 | 58771 | 4567704 |
|   | |
| 2 | 10/24/2018 | QCD | Quit Claim Deed | HARBOUR, CLARENCE C | HARBOUR TTEE, CLARENCE C | | | $0.00 | 36561 | 4454593 |
| 3 | 12/01/1990 | QCD | Quit Claim Deed | HARBOUR, CLARENCE C | HARBOUR, CLARENCE C | | | $0.00 | 6510 | 90022603 |
| 4 | 01/01/1900 | OTHER | Other - Misc. Documents | Unknown | HARBOUR, CLARENCE C | | | $0.00 | 0 | 0 |
Payout Agreement
| No payout information available.. |