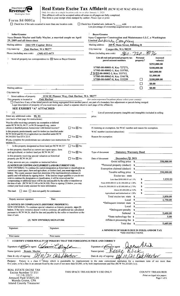
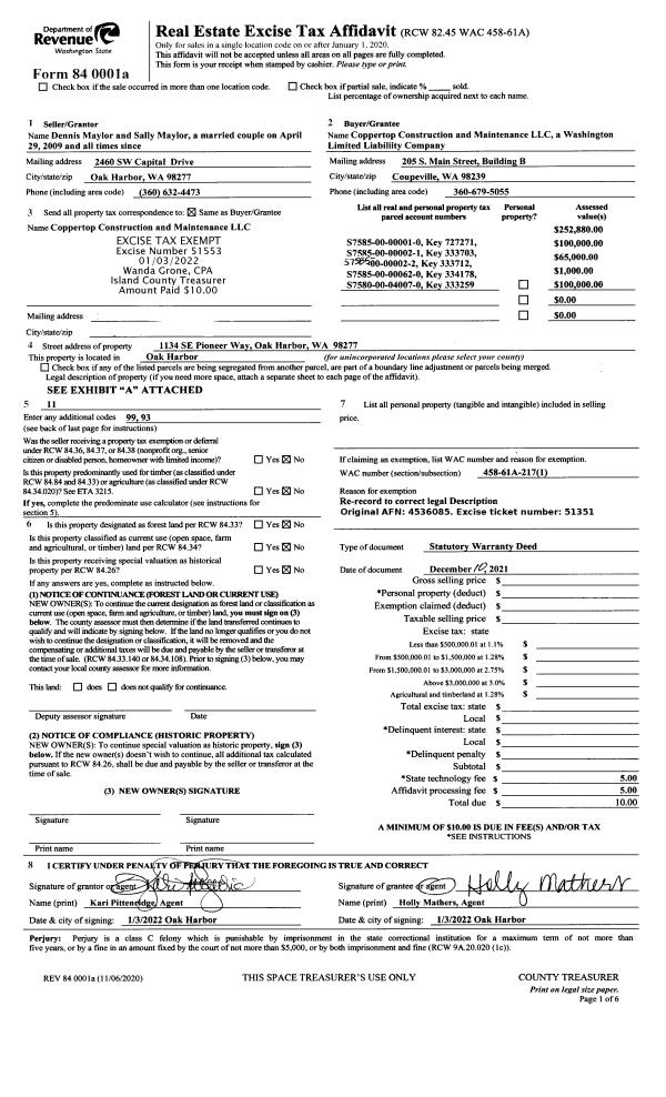
Property
Account |
| Property ID: | 333712 | Abbreviated Legal Description: | OAK HARBOR N55' OF LOT 2 |
| Geographic ID: | S7585-00-00002-2 | Agent Code: | |
| Type: | Real | | |
| Tax Area: | 100 - APPRAISER-OH Schl Dist, in OH | Land Use Code | 99 |
| Open Space: | N | DFL | N |
| Historic Property: | N | Remodel Property: | N |
| Multi-Family Redevelopment: | N | | |
| Township: | | Section: | |
| Range: | |
Location |
| Address: | 1018 SE MIDWAY BLVD OAK HARBOR, WA 98277 | Mapsco: | |
| Neighborhood: | Cycle 1 | Map ID: | 89 |
| Neighborhood CD: | 1 |
Owner |
| Name: | COPPERTOP CONSTRUCTION & MAINTENANCE LLC | Owner ID: | 302381 |
| Mailing Address: | 205 S MAIN ST BUILDING B COUPEVILLE, WA 98239 | % Ownership: | 100.0000000000% |
| | | Exemptions: | |
Taxes and Assessment Details
Values
| (+) Improvement Homesite Value: | + | N/A | |
| (+) Improvement Non-Homesite Value: | + | N/A | |
| (+) Land Homesite Value: | + | N/A | |
| (+) Land Non-Homesite Value: | + | N/A | Ag / Timber Use Value |
| (+) Curr Use (HS): | + | N/A | N/A |
| (+) Curr Use (NHS): | + | N/A | N/A |
| | | -------------------------- | |
| (=) Market Value: | = | N/A | |
| (–) Productivity Loss: | – | N/A | |
| | | -------------------------- | |
| (=) Subtotal: | = | N/A | |
| (+) Senior Appraised Value: | + | N/A | |
| (+) Non-Senior Appraised Value: | + | N/A | |
| | | -------------------------- | |
| (=) Total Appraised Value: | = | N/A | |
| (–) Senior Exemption Loss: | – | N/A | |
| (–) Exemption Loss: | – | N/A | |
| | | -------------------------- | |
| (=) Taxable Value: | = | N/A | |
Taxing Jurisdiction
| Owner: | COPPERTOP CONSTRUCTION & MAINTENANCE LLC | | |
| % Ownership: | 100.0000000000% | | |
| Total Value: | N/A | | |
| Tax Area: | 100 - APPRAISER-OH Schl Dist, in OH |
| CF | Conservation Futures | N/A | N/A | N/A | N/A | | |
| WCD | Whidbey Conservation District | N/A | N/A | N/A | N/A | | |
| CEM1 | Cemetery #1 | N/A | N/A | N/A | N/A | | |
| COH | City of Oak Harbor | N/A | N/A | N/A | N/A | | |
| HOBOND | Hospital BOND | N/A | N/A | N/A | N/A | | |
| HOGEN | Hospital GEN | N/A | N/A | N/A | N/A | | |
| CE | County Current Expense | N/A | N/A | N/A | N/A | | |
| ISLANDEMS | Hospital GEN (EMS) | N/A | N/A | N/A | N/A | | |
| LIB | Library Sno-Isle GEN | N/A | N/A | N/A | N/A | | |
| NWHIDPRMT | P & R N Whidbey GEN | N/A | N/A | N/A | N/A | | |
| SCH201MO | School 201 Enrichment | N/A | N/A | N/A | N/A | | |
| ST | State School | N/A | N/A | N/A | N/A | | |
| ST2 | State School Part 2 | N/A | N/A | N/A | N/A | | |
| | Total Tax Rate: | N/A | | | | | |
| | | | | Taxes w/Current Exemptions: | N/A | | |
| | | | | Taxes w/o Exemptions: | N/A | | |
Improvement / Building
Sketch
| No sketches available for this property. |
Property Image
Land
| 1 | 61 | MULTIPLE RESIDENCES | 0.0758 | 3301.85 | 0.00 | 0.00 | 1.00 | N/A | N/A |
Roll Value History
| 2026 | N/A | N/A | N/A | N/A | N/A |
| 2025 | $0 | $65,000 | $0 | $65,000 | $65,000 |
| 2024 | $0 | $65,000 | $0 | $65,000 | $65,000 |
| 2023 | $0 | $65,000 | $0 | $65,000 | $65,000 |
| 2022 | $0 | $65,000 | $0 | $65,000 | $65,000 |
| 2021 | $0 | $65,000 | $0 | $65,000 | $65,000 |
| 2020 | $0 | $65,000 | $0 | $65,000 | $65,000 |
| 2019 | $0 | $60,000 | $0 | $60,000 | $60,000 |
| 2018 | $0 | $60,000 | $0 | $60,000 | $60,000 |
| 2017 | $0 | $26,415 | $0 | $26,415 | $26,415 |
| 2016 | $0 | $26,415 | $0 | $26,415 | $26,415 |
| 2015 | $0 | $26,415 | $0 | $26,415 | $26,415 |
| 2014 | $0 | $23,392 | $0 | $23,392 | $23,392 |
| 2013 | $0 | $23,392 | $0 | $23,392 | $23,392 |
| 2012 | $0 | $23,392 | $0 | $23,392 | $23,392 |
| 2011 | $0 | $23,392 | $0 | $23,392 | $23,392 |
| 2010 | $0 | $23,392 | $0 | $23,392 | $23,392 |
| 2009 | $0 | $25,240 | $0 | $25,240 | $25,240 |
Deed and Sales History
| 1 | 12/10/2021 | WD | Warranty Deed | MAYLOR, DENNIS L | COPPERTOP CONSTRUCTION & MAINTENANCE LLC | | | $0.00 | 51553 | 4537122 |
| 2 | 12/10/2021 | WD | Warranty Deed | MAYLOR, DENNIS | COPPERTOP CONSTRUCTION & MAINTENANCE LLC | | | $350,000.00 | 51351 | 4536085 |
|   | |
| 3 | 04/29/2009 | PRD | Personal Representatives Deed | MAYLOR, DOROTHY M | MAYLOR, DENNIS | | | $0.00 | 90972 | 4250373 |
| 4 | 07/24/2001 | WD | Warranty Deed | BYRNE, SEAN P | MAYLOR, DOROTHY M | | | $20,000.00 | 12838 | 20038420 |
| 5 | 08/02/2000 | WD | Warranty Deed | MORRIS, LARRY W | BYRNE, SEAN P | | | $17,424.00 | 8982 | 20013963 |
| 6 | 10/24/1999 | WD | Warranty Deed | MORRIS, RICHARD P | MORRIS, LARRY W | | | $0.00 | 94518 | 99025049 |
| 7 | 01/01/1900 | OTHER | Other - Misc. Documents | Unknown | MORRIS, RICHARD P | | | $0.00 | 0 | 0 |
Payout Agreement
| No payout information available.. |