Property
Account |
| Property ID: | 334267 | Abbreviated Legal Description: | OAK HARBOR HSE APT I 7.27% INT IN BLDG |
| Geographic ID: | S7590-00-0000I-0 | Agent Code: | |
| Type: | Real | | |
| Tax Area: | 100 - APPRAISER-OH Schl Dist, in OH | Land Use Code | 14 |
| Open Space: | N | DFL | N |
| Historic Property: | N | Remodel Property: | N |
| Multi-Family Redevelopment: | N | | |
| Township: | | Section: | |
| Range: | |
Location |
| Address: | 51 NW COLUMBIA DR APT 203 OAK HARBOR, WA 98277 | Mapsco: | |
| Neighborhood: | 4B*OH-ok house | Map ID: | 253 |
| Neighborhood CD: | 4B*OHokhse |
Owner |
| Name: | DAVID LEMME EPSP 401K | Owner ID: | 297654 |
| Mailing Address: | 51 NW COLUMBIA DR UNIT 203 OAK HARBOR, WA 98277 | % Ownership: | 100.0000000000% |
| | | Exemptions: | |
Taxes and Assessment Details
Values
| (+) Improvement Homesite Value: | + | $0 | |
| (+) Improvement Non-Homesite Value: | + | $115,561 | |
| (+) Land Homesite Value: | + | $0 | |
| (+) Land Non-Homesite Value: | + | $65,000 | |
| (+) Curr Use (HS): | + | $0 | $0 |
| (+) Curr Use (NHS): | + | $0 | $0 |
| | | -------------------------- | |
| (=) Market Value: | = | $180,561 | |
| (–) Productivity Loss: | – | $0 | |
| | | -------------------------- | |
| (=) Subtotal: | = | $180,561 | |
| (+) Senior Appraised Value: | + | $0 | |
| (+) Non-Senior Appraised Value: | + | $180,561 | |
| | | -------------------------- | |
| (=) Total Appraised Value: | = | $180,561 | |
| (–) Senior Exemption Loss: | – | $0 | |
| (–) Exemption Loss: | – | $0 | |
| | | -------------------------- | |
| (=) Taxable Value: | = | $180,561 | |
Taxing Jurisdiction
| Owner: | DAVID LEMME EPSP 401K | | |
| % Ownership: | 100.0000000000% | | |
| Total Value: | $180,561 | | |
| Tax Area: | 100 - APPRAISER-OH Schl Dist, in OH |
| CF | Conservation Futures | 0.0313996660 | $180,561 | $180,561 | $5.67 | | |
| CEM1 | Cemetery #1 | 0.0040018856 | $180,561 | $180,561 | $0.72 | | |
| COH | City of Oak Harbor | 2.3090730572 | $180,561 | $180,561 | $416.93 | | |
| OAKBOND | City of Oak Harbor BOND | 0.1902260131 | $180,561 | $180,561 | $34.35 | | |
| HOBOND | Hospital BOND | 0.1893405597 | $180,561 | $180,561 | $34.19 | | |
| HOGEN | Hospital GEN | 0.3848777722 | $180,561 | $180,561 | $69.49 | | |
| CE | County Current Expense | 0.3674210519 | $180,561 | $180,561 | $66.34 | | |
| ISLANDEMS | Hospital GEN (EMS) | 0.4952018576 | $180,561 | $180,561 | $89.41 | | |
| LIB | Library Sno-Isle GEN | 0.3039084203 | $180,561 | $180,561 | $54.87 | | |
| NWHIDPRMT | P & R N Whidbey GEN | 0.1990272349 | $180,561 | $180,561 | $35.94 | | |
| SCH201MO | School 201 Enrichment | 2.3851112745 | $180,561 | $180,561 | $430.66 | | |
| ST | State School | 1.4761226122 | $180,561 | $180,561 | $266.53 | | |
| ST2 | State School Part 2 | 0.7953803475 | $180,561 | $180,561 | $143.61 | | |
| | Total Tax Rate: | 9.1310917527 | | | | | |
| | | | | Taxes w/Current Exemptions: | $1,648.71 | | |
| | | | | Taxes w/o Exemptions: | $1,648.71 | | |
Improvement / Building
| Improvement #1: | RESIDENTIAL | State Code: | A1 | 876.0 sqft | Value: | $115,561 |
| Bathrooms: | 1.5 | Bedrooms: | 2 | | Ceiling: | DRY WALL SPRAYED | Exterior Wall/Cover: | CONCRETE BLOCK | | Floor Covering: | CARPET/VINYL 80-20 | Floor Structure: | WOOD W/SUBFLOOR | | Foundation: | CONCRETE BLOCKS | Heating: | BASEBOARD ELECTRIC | | Interior Finish: | DRYWALL PAINT | Plumbing Fixture Cnt: | 8 | | Roof Slope: | FLAT | Roof Structure/Cover: | CJ BUILT-UP ROCK |
|
| | Type | Description | Class CD | Sub Class CD | Year Built | Area |
| | BAS | BASE/MAIN FLOOR | 2 | 0 | 1975 | 876.0 |
| | OWR | OPEN WOOD PORCH W/STEPS/ROOF | 2 | 0 | 1975 | 156.0 |
| | oSIT | Site Improvements | 2 | 0 | 1975 | 0.0 |
Sketch
Property Image
Land
| 1 | 61 | MULTIPLE RESIDENCES | 0.0000 | 3410.00 | 0.00 | 0.00 | 1.00 | $65,000 | $0 |
Roll Value History
| 2026 | N/A | N/A | N/A | N/A | N/A |
| 2025 | $115,561 | $65,000 | $0 | $180,561 | $180,561 |
| 2024 | $119,727 | $45,000 | $0 | $164,727 | $164,727 |
| 2023 | $121,509 | $45,000 | $0 | $166,509 | $166,509 |
| 2022 | $111,813 | $45,000 | $0 | $156,813 | $156,813 |
| 2021 | $98,856 | $25,000 | $0 | $123,856 | $123,856 |
| 2020 | $79,292 | $45,000 | $0 | $124,292 | $124,292 |
| 2019 | $56,030 | $70,000 | $0 | $126,030 | $126,030 |
| 2018 | $56,256 | $65,000 | $0 | $121,256 | $121,256 |
| 2017 | $56,709 | $20,631 | $0 | $77,340 | $77,340 |
| 2016 | $57,614 | $20,631 | $0 | $78,245 | $78,245 |
| 2015 | $58,519 | $20,631 | $0 | $79,150 | $79,150 |
| 2014 | $62,142 | $20,631 | $0 | $82,773 | $82,773 |
| 2013 | $62,142 | $20,631 | $0 | $82,773 | $82,773 |
| 2012 | $62,142 | $20,631 | $0 | $82,773 | $82,773 |
| 2011 | $62,142 | $20,631 | $0 | $82,773 | $82,773 |
| 2010 | $65,960 | $20,631 | $0 | $86,591 | $86,591 |
| 2009 | $68,871 | $37,510 | $0 | $106,381 | $106,381 |
| 2008 | $74,422 | $44,330 | $0 | $118,752 | $118,752 |
| 2007 | $75,397 | $44,330 | $0 | $119,727 | $119,727 |
Deed and Sales History
| 1 | 12/29/2020 | WD | Warranty Deed | MIRAGE, LLC | DAVID LEMME EPSP 401K | | | $159,900.00 | 46475 | 4507292 |
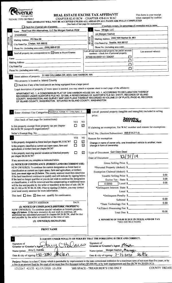
| 2 | 12/31/2019 | QCD | Quit Claim Deed | RIA FBO MORGAN KASHUK 21424RA02 | MIRAGE, LLC | | | $0.00 | 42135 | 4481547 |
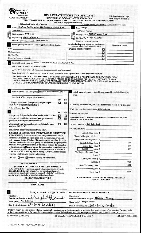
| 3 | 12/16/2019 | QCD | Quit Claim Deed | RIA FBO MORGAN KASHUK 21424RA02 | MIRAGE, LLC | | | $0.00 | 41739 | 4478900 |
| 4 | 12/23/2015 | TRUSTEED | Trustee's Deed | HANSON, ALICE G | RIA FBO MORGAN KASHUK 21424RA02 | | | $0.00 | 22729 | 4392066 |
| 5 | 05/21/2003 | WD | Warranty Deed | CRAMER, J. SCOT & GERALDINE | HANSON, ALICE G | | | $64,000.00 | 32329 | 4061194 |
| 6 | 08/30/2001 | WD | Warranty Deed | HOPKINS, DOROTHY P | CRAMER, J. SCOT & GERALDINE | | | $44,000.00 | 13454 | 20042339 |
| 7 | 03/01/1986 | WD | Warranty Deed | FITCH, MARY A | HOPKINS, DOROTHY P | | | $35,000.00 | 60587 | 86002862 |
| 8 | 08/01/1985 | DECREE | Divorce Decree/Legal Separation | FITCH, ROY M | FITCH, MARY A | | | $0.00 | 52145 | 85008414 |
| 9 | 05/01/1979 | WD | Warranty Deed | WOODS, MAX A | FITCH, ROY M | | | $34,900.00 | 92601 | 353213 |
| 10 | 01/01/1900 | OTHER | Other - Misc. Documents | Unknown | WOODS, MAX A | | | $0.00 | 0 | 0 |
Payout Agreement
| No payout information available.. |