Property
Account |
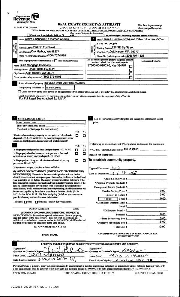
| Property ID: | 334757 | Abbreviated Legal Description: | OLYMPIC GDNS PT LOT 3 BLK 2 DESC: BG SW CR SD LOT 3 N110' E200' S TO SLN SD LOT 3 W TPB |
| Geographic ID: | S7600-00-02003-6 | Agent Code: | |
| Type: | Real | | |
| Tax Area: | 100 - APPRAISER-OH Schl Dist, in OH | Land Use Code | 11 |
| Open Space: | N | DFL | N |
| Historic Property: | N | Remodel Property: | N |
| Multi-Family Redevelopment: | N | | |
| Township: | | Section: | |
| Range: | |
Location |
| Address: | 226 SE ELY ST OAK HARBOR, WA 98277 | Mapsco: | |
| Neighborhood: | Cycle 1 | Map ID: | 88 |
| Neighborhood CD: | 1 |
Owner |
| Name: | BLOOM, TYLER R | Owner ID: | 300756 |
| Mailing Address: | 10190 SW 149TH TERR BEAVERTON, OR 97007 | % Ownership: | 100.0000000000% |
| | | Exemptions: | |
Taxes and Assessment Details
Values
| (+) Improvement Homesite Value: | + | $0 | |
| (+) Improvement Non-Homesite Value: | + | $322,111 | |
| (+) Land Homesite Value: | + | $0 | |
| (+) Land Non-Homesite Value: | + | $190,000 | |
| (+) Curr Use (HS): | + | $0 | $0 |
| (+) Curr Use (NHS): | + | $0 | $0 |
| | | -------------------------- | |
| (=) Market Value: | = | $512,111 | |
| (–) Productivity Loss: | – | $0 | |
| | | -------------------------- | |
| (=) Subtotal: | = | $512,111 | |
| (+) Senior Appraised Value: | + | $0 | |
| (+) Non-Senior Appraised Value: | + | $512,111 | |
| | | -------------------------- | |
| (=) Total Appraised Value: | = | $512,111 | |
| (–) Senior Exemption Loss: | – | $0 | |
| (–) Exemption Loss: | – | $0 | |
| | | -------------------------- | |
| (=) Taxable Value: | = | $512,111 | |
Taxing Jurisdiction
| Owner: | BLOOM, TYLER R | | |
| % Ownership: | 100.0000000000% | | |
| Total Value: | $512,111 | | |
| Tax Area: | 100 - APPRAISER-OH Schl Dist, in OH |
| CF | Conservation Futures | 0.0313996660 | $512,111 | $512,111 | $16.08 | | |
| CEM1 | Cemetery #1 | 0.0040018856 | $512,111 | $512,111 | $2.05 | | |
| COH | City of Oak Harbor | 2.3090730572 | $512,111 | $512,111 | $1,182.50 | | |
| OAKBOND | City of Oak Harbor BOND | 0.1902260131 | $512,111 | $512,111 | $97.42 | | |
| HOBOND | Hospital BOND | 0.1893405597 | $512,111 | $512,111 | $96.96 | | |
| HOGEN | Hospital GEN | 0.3848777722 | $512,111 | $512,111 | $197.10 | | |
| CE | County Current Expense | 0.3674210519 | $512,111 | $512,111 | $188.16 | | |
| ISLANDEMS | Hospital GEN (EMS) | 0.4952018576 | $512,111 | $512,111 | $253.60 | | |
| LIB | Library Sno-Isle GEN | 0.3039084203 | $512,111 | $512,111 | $155.63 | | |
| NWHIDPRMT | P & R N Whidbey GEN | 0.1990272349 | $512,111 | $512,111 | $101.92 | | |
| SCH201MO | School 201 Enrichment | 2.3851112745 | $512,111 | $512,111 | $1,221.44 | | |
| ST | State School | 1.4761226122 | $512,111 | $512,111 | $755.94 | | |
| ST2 | State School Part 2 | 0.7953803475 | $512,111 | $512,111 | $407.32 | | |
| | Total Tax Rate: | 9.1310917527 | | | | | |
| | | | | Taxes w/Current Exemptions: | $4,676.12 | | |
| | | | | Taxes w/o Exemptions: | $4,676.12 | | |
Improvement / Building
| Improvement #1: | RESIDENTIAL | State Code: | Y | 1949.0 sqft | Value: | $322,111 |
| Bathrooms: | 2 | Bedrooms: | 3 | | Ceiling: | DRYWALL PAINTED | Exterior Wall/Cover: | VINYL | | Floor Covering: | CERAMIC TILE/HWD 40/60 | Floor Structure: | WOOD W/SUBFLOOR | | Foundation: | CONCRETE | Heating: | FHA GAS | | Interior Finish: | DRYWALL PAINT | Plumbing Fixture Cnt: | 10 | | Roof Slope: | 6" IN 12" | Roof Structure/Cover: | CJ ASPHALT |
|
| | Type | Description | Class CD | Sub Class CD | Year Built | Area |
| | BAS | BASE/MAIN FLOOR | 3 | 0 | 1947 | 1306.0 |
| | UB6 | BASEMENT UNFINISHED 6" | 3 | 0 | 1947 | 669.8 |
| | DWN | DOWNSTAIRS LIVING AREA | 3 | 0 | 1947 | 643.0 |
| | ENP | ENCLOSED PORCH | 3 | 0 | 1947 | 77.0 |
| | DGR | DETACHED GARAGE | 3 | 0 | 1947 | 672.0 |
| | OP4 | OPEN PORCH W/CEILING-ROOF | 3 | 0 | 1947 | 83.5 |
Sketch
Property Image
Land
| 1 | 16 | AC (00.51-01.00) | 0.5100 | 22215.60 | 0.00 | 0.00 | 1.00 | $190,000 | $0 |
Roll Value History
| 2026 | N/A | N/A | N/A | N/A | N/A |
| 2025 | $322,111 | $190,000 | $0 | $512,111 | $512,111 |
| 2024 | $326,393 | $175,000 | $0 | $501,393 | $501,393 |
| 2023 | $327,836 | $180,000 | $0 | $507,836 | $507,836 |
| 2022 | $300,696 | $180,000 | $0 | $480,696 | $480,696 |
| 2021 | $255,480 | $125,000 | $0 | $380,480 | $380,480 |
| 2020 | $249,019 | $100,000 | $0 | $349,019 | $349,019 |
| 2019 | $178,262 | $150,000 | $0 | $328,262 | $328,262 |
| 2018 | $178,846 | $125,000 | $0 | $303,846 | $303,846 |
| 2017 | $146,410 | $110,000 | $0 | $256,410 | $256,410 |
| 2016 | $148,374 | $90,000 | $0 | $238,374 | $238,374 |
| 2015 | $150,211 | $70,000 | $0 | $220,211 | $220,211 |
| 2014 | $136,475 | $65,000 | $0 | $201,475 | $201,475 |
| 2013 | $138,439 | $65,000 | $0 | $203,439 | $203,439 |
| 2012 | $140,402 | $65,000 | $0 | $205,402 | $205,402 |
| 2011 | $150,501 | $65,000 | $0 | $215,501 | $215,501 |
| 2010 | $158,159 | $65,000 | $0 | $223,159 | $223,159 |
| 2009 | $163,007 | $75,000 | $0 | $238,007 | $238,007 |
| 2008 | $151,509 | $78,000 | $0 | $229,509 | $229,509 |
| 2007 | $153,424 | $78,000 | $0 | $231,424 | $231,424 |
Deed and Sales History
| 1 | 08/10/2021 | WD | Warranty Deed | ZISSIMOS, NICHOLAS W | BLOOM, TYLER R | | | $437,900.00 | 49663 | 4527072 |
| 2 | 02/14/2019 | WD | Warranty Deed | HERRERA, CLAIRE L | ZISSIMOS, NICHOLAS W | | | $308,000.00 | 37576 | 4459216 |
| 3 | 03/06/2017 | QCD | Quit Claim Deed | SCHRICKER, CLAIRE L | HERRERA, CLAIRE L | | | $0.00 | 28318 | 4418313 |
| 4 | 09/03/2014 | WD | Warranty Deed | ALASKA USA FEDERAL CREDIT UNION | SCHRICKER, CLAIRE L | | | $224,900.00 | 16818 | 4365591 |
| 5 | 03/01/2013 | TRUSTEED | Trustee's Deed | JOHNSON, ADAM W | ALASKA USA FEDERAL CREDIT UNION | | | $126,000.00 | 10556 | 4334840 |
| 6 | 09/10/2002 | WD | Warranty Deed | EACRETT, STEVEN F | JOHNSON, ADAM W | | | $149,900.00 | 23605 | 4030876 |
| 7 | 08/01/1988 | QCD | Quit Claim Deed | EACRETT, ROBERT F | EACRETT, STEVEN F | | | $0.00 | 82893 | 88010852 |
| 8 | 01/01/1900 | OTHER | Other - Misc. Documents | Unknown | EACRETT, ROBERT F | | | $0.00 | 0 | 0 |
Payout Agreement
| No payout information available.. |