Property
Account |
| Property ID: | 335738 | Abbreviated Legal Description: | OLY MAR VW 3 LOT 68 DRAINFIELD FOR LOT 57 AF#95001641 |
| Geographic ID: | S7605-03-00068-0 | Agent Code: | |
| Type: | Real | | |
| Tax Area: | 819 - APPRAISER-S Whid Schl Dist, outside Langley, vacant & 50 acres or less | Land Use Code | 99 |
| Open Space: | N | DFL | N |
| Historic Property: | N | Remodel Property: | N |
| Multi-Family Redevelopment: | N | | |
| Township: | | Section: | |
| Range: | |
Location |
| Address: | | Mapsco: | |
| Neighborhood: | Cycle 4 | Map ID: | 790 |
| Neighborhood CD: | 4 |
Owner |
| Name: | ROBERTSON TTEE, BARBARA ANN | Owner ID: | 317697 |
| Mailing Address: | 201 EAST 177TH ST BELTON, MO 64012 | % Ownership: | 100.0000000000% |
| | | Exemptions: | |
Taxes and Assessment Details
Values
| (+) Improvement Homesite Value: | + | N/A | |
| (+) Improvement Non-Homesite Value: | + | N/A | |
| (+) Land Homesite Value: | + | N/A | |
| (+) Land Non-Homesite Value: | + | N/A | Ag / Timber Use Value |
| (+) Curr Use (HS): | + | N/A | N/A |
| (+) Curr Use (NHS): | + | N/A | N/A |
| | | -------------------------- | |
| (=) Market Value: | = | N/A | |
| (–) Productivity Loss: | – | N/A | |
| | | -------------------------- | |
| (=) Subtotal: | = | N/A | |
| (+) Senior Appraised Value: | + | N/A | |
| (+) Non-Senior Appraised Value: | + | N/A | |
| | | -------------------------- | |
| (=) Total Appraised Value: | = | N/A | |
| (–) Senior Exemption Loss: | – | N/A | |
| (–) Exemption Loss: | – | N/A | |
| | | -------------------------- | |
| (=) Taxable Value: | = | N/A | |
Taxing Jurisdiction
| Owner: | ROBERTSON TTEE, BARBARA ANN | | |
| % Ownership: | 100.0000000000% | | |
| Total Value: | N/A | | |
| Tax Area: | 819 - APPRAISER-S Whid Schl Dist, outside Langley, vacant & 50 acres or less |
| CF | Conservation Futures | N/A | N/A | N/A | N/A | | |
| WCD | Whidbey Conservation District | N/A | N/A | N/A | N/A | | |
| HOBOND | Hospital BOND | N/A | N/A | N/A | N/A | | |
| HOGEN | Hospital GEN | N/A | N/A | N/A | N/A | | |
| CE | County Current Expense | N/A | N/A | N/A | N/A | | |
| CR | County Roads | N/A | N/A | N/A | N/A | | |
| ISLANDEMS | Hospital GEN (EMS) | N/A | N/A | N/A | N/A | | |
| LIB | Library Sno-Isle GEN | N/A | N/A | N/A | N/A | | |
| PORTWHID | Port of S Whidbey GEN | N/A | N/A | N/A | N/A | | |
| SCH206CAP | School 206 CP | N/A | N/A | N/A | N/A | | |
| SCH206MO | School 206 Enrichment | N/A | N/A | N/A | N/A | | |
| ST | State School | N/A | N/A | N/A | N/A | | |
| ST2 | State School Part 2 | N/A | N/A | N/A | N/A | | |
| SWHIDPRBD | P & R S Whidbey BOND | N/A | N/A | N/A | N/A | | |
| SWHIDPRBD2 | P & R S Whidbey BOND2 | N/A | N/A | N/A | N/A | | |
| SWHIDPRMT | P & R S Whidbey GEN | N/A | N/A | N/A | N/A | | |
| | Total Tax Rate: | N/A | | | | | |
| | | | | Taxes w/Current Exemptions: | N/A | | |
| | | | | Taxes w/o Exemptions: | N/A | | |
Improvement / Building
Sketch
| No sketches available for this property. |
Property Image
Land
| 1 | 14 | SQ (08001-12000) | 0.0000 | 0.00 | 0.00 | 0.00 | 1.00 | N/A | N/A |
Roll Value History
| 2026 | N/A | N/A | N/A | N/A | N/A |
| 2025 | $0 | $17,000 | $0 | $17,000 | $17,000 |
| 2024 | $0 | $17,000 | $0 | $17,000 | $17,000 |
| 2023 | $0 | $15,000 | $0 | $15,000 | $15,000 |
| 2022 | $0 | $15,000 | $0 | $15,000 | $15,000 |
| 2021 | $0 | $15,000 | $0 | $15,000 | $15,000 |
| 2020 | $0 | $15,000 | $0 | $15,000 | $15,000 |
| 2019 | $0 | $15,000 | $0 | $15,000 | $15,000 |
| 2018 | $0 | $15,000 | $0 | $15,000 | $15,000 |
| 2017 | $0 | $15,000 | $0 | $15,000 | $15,000 |
| 2016 | $0 | $15,000 | $0 | $15,000 | $15,000 |
| 2015 | $0 | $15,000 | $0 | $15,000 | $15,000 |
| 2014 | $0 | $12,150 | $0 | $12,150 | $12,150 |
| 2013 | $0 | $12,150 | $0 | $12,150 | $12,150 |
| 2012 | $0 | $12,150 | $0 | $12,150 | $12,150 |
| 2011 | $0 | $12,150 | $0 | $12,150 | $12,150 |
| 2010 | $0 | $12,150 | $0 | $12,150 | $12,150 |
| 2009 | $0 | $13,500 | $0 | $13,500 | $13,500 |
| 2008 | $0 | $13,320 | $0 | $13,320 | $13,320 |
| 2007 | $0 | $6,851 | $0 | $6,851 | $6,851 |
Deed and Sales History
| 1 | 08/06/2025 | WD | Warranty Deed | GUINN, CECIL W | ROBERTSON TTEE, BARBARA ANN | | | $905,000.00 | 64405 | 4589292 |
|   | |
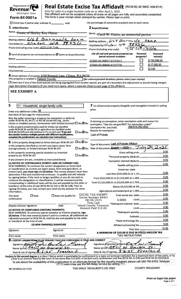
| 2 | 07/24/2025 | LACPROBATE | Lack of Probate | ESTATE OF SHIRLEY KAY GUINN | GUINN, CECIL W | | | $0.00 | 64401 | 4589266 |
| 3 | 06/06/2006 | WD | Warranty Deed | COSTELLO, BEN B | GUNN, CECIL W | | | $2,806.00 | 62503 | 4172658 |
| 4 | 07/13/2004 | WD | Warranty Deed | TESAR, LAVERN J | COSTELLO, BEN B | | | $3,424.00 | 43430 | 4108228 |
| 5 | 08/01/1995 | WD | Warranty Deed | SZEGIET, HANS P | TESAR, LAVERN J | | | $6,000.00 | 53073 | 95014146 |
| 6 | 01/01/1995 | WD | Warranty Deed | STUBBS, WILLIS E | SZEGIET, HANS P | | | $32,000.00 | 50340 | 95001560 |
| 7 | 05/01/1994 | TRUSTEED | Trustee's Deed | HEBIG-NAFF, KATHLEEN J | STUBBS, WILLIS E | | | $0.00 | 42258 | 94012758 |
| 8 | 04/01/1991 | WD | Warranty Deed | BOHM, NORBERT | HEBIG-NAFF, KATHLEEN J | | | $36,000.00 | 12249 | 91009574 |
| 9 | 04/01/1980 | TRUSTEED | Trustee's Deed | STOVER, ALLEN L | BOHM, NORBERT | | | $20,000.00 | 1352 | 367900 |
| 10 | 09/01/1978 | OTHER | Other - Misc. Documents | Unknown | STOVER, ALLEN L | | | $4,000.00 | 84626 | 340006 |
Payout Agreement
| No payout information available.. |