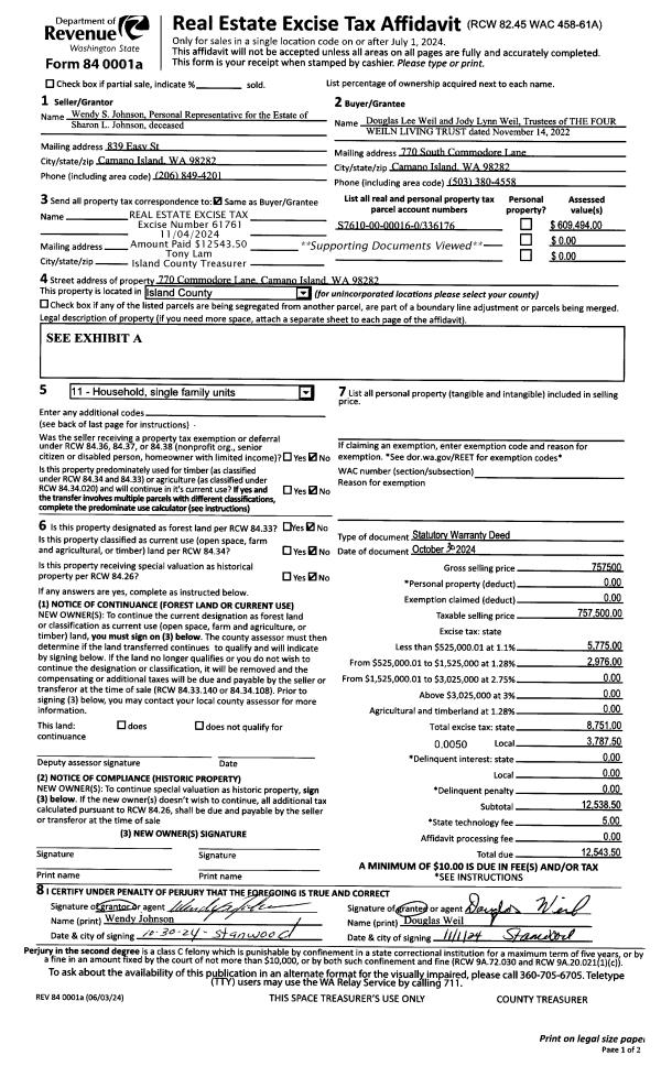
Property
Account |
| Property ID: | 336176 | Abbreviated Legal Description: | ONAMAC LOT 16 |
| Geographic ID: | S7610-00-00016-0 | Agent Code: | |
| Type: | Real | | |
| Tax Area: | 510 - APPRAISER-Stan/Cam Schl Dist, improved & 1 acre or less | Land Use Code | 11 |
| Open Space: | N | DFL | N |
| Historic Property: | N | Remodel Property: | N |
| Multi-Family Redevelopment: | N | | |
| Township: | | Section: | |
| Range: | |
Location |
| Address: | 770 COMMODORE LN CAMANO ISLAND, WA 98282 | Mapsco: | |
| Neighborhood: | Cycle 5 | Map ID: | 467 |
| Neighborhood CD: | 5 |
Owner |
| Name: | WEIL TTEE, DOUGLAS LEE | Owner ID: | 314473 |
| Mailing Address: | JODY LYNN WEIL TTEE 770 SOUTH COMMODORE LN CAMANO ISLAND, WA 98282 | % Ownership: | 100.0000000000% |
| | | Exemptions: | |
Taxes and Assessment Details
Values
| (+) Improvement Homesite Value: | + | $0 | |
| (+) Improvement Non-Homesite Value: | + | $440,554 | |
| (+) Land Homesite Value: | + | $0 | |
| (+) Land Non-Homesite Value: | + | $230,000 | |
| (+) Curr Use (HS): | + | $0 | $0 |
| (+) Curr Use (NHS): | + | $0 | $0 |
| | | -------------------------- | |
| (=) Market Value: | = | $670,554 | |
| (–) Productivity Loss: | – | $0 | |
| | | -------------------------- | |
| (=) Subtotal: | = | $670,554 | |
| (+) Senior Appraised Value: | + | $0 | |
| (+) Non-Senior Appraised Value: | + | $670,554 | |
| | | -------------------------- | |
| (=) Total Appraised Value: | = | $670,554 | |
| (–) Senior Exemption Loss: | – | $0 | |
| (–) Exemption Loss: | – | $0 | |
| | | -------------------------- | |
| (=) Taxable Value: | = | $670,554 | |
Taxing Jurisdiction
| Owner: | WEIL TTEE, DOUGLAS LEE | | |
| % Ownership: | 100.0000000000% | | |
| Total Value: | $670,554 | | |
| Tax Area: | 510 - APPRAISER-Stan/Cam Schl Dist, improved & 1 acre or less |
| CF | Conservation Futures | 0.0313996660 | $670,554 | $670,554 | $21.06 | | |
| EMS1 | Fire & Rescue Dist #1 Camano GEN (EMS) | 0.4998471806 | $670,554 | $670,554 | $335.17 | | |
| FIRE1 | Fire & Rescue Dist #1 Camano GEN | 1.2496603404 | $670,554 | $670,554 | $837.96 | | |
| FIRE1BOND | Fire & Rescue Dist #1 Camano BOND | 0.1630371212 | $670,554 | $670,554 | $109.33 | | |
| CE | County Current Expense | 0.3674210519 | $670,554 | $670,554 | $246.38 | | |
| CR | County Roads | 0.4614296361 | $670,554 | $670,554 | $309.41 | | |
| LIB | Library Sno-Isle GEN | 0.3039084203 | $670,554 | $670,554 | $203.79 | | |
| SCH205_401 | School 205-401 Enrichment | 1.3697998934 | $670,554 | $670,554 | $918.52 | | |
| SCH205BOND | School 205-401 BOND | 0.9354199323 | $670,554 | $670,554 | $627.25 | | |
| ST | State School | 1.4761226122 | $670,554 | $670,554 | $989.82 | | |
| ST2 | State School Part 2 | 0.7953803475 | $670,554 | $670,554 | $533.35 | | |
| | Total Tax Rate: | 7.6534262019 | | | | | |
| | | | | Taxes w/Current Exemptions: | $5,132.04 | | |
| | | | | Taxes w/o Exemptions: | $5,132.04 | | |
Improvement / Building
| Improvement #1: | RESIDENTIAL | State Code: | Y | 1754.0 sqft | Value: | $440,554 |
| Bathrooms: | 2.5 | Bedrooms: | 3 | | Ceiling: | DRYWALL PAINTED | Cooling: | HEAT PUMP/CONV/V | | Exterior Wall/Cover: | CEMENT FIBER | Floor Covering: | CARPET/VINYL 20-80 | | Floor Structure: | WOOD W/SUBFLOOR | Foundation: | CONCRETE | | Interior Finish: | DRYWALL PAINT | Plumbing Fixture Cnt: | 13 | | Roof Slope: | 5" IN 12" | Roof Structure/Cover: | CJ ASPHALT |
|
| | Type | Description | Class CD | Sub Class CD | Year Built | Area |
| | BAS | BASE/MAIN FLOOR | 4 | 0 | 2016 | 1754.0 |
| | AGR | ATTACHED GARAGE | 4 | 0 | 2016 | 484.0 |
| | OWP | OPEN WOOD PORCH W/STEPS | 4 | 0 | 2016 | 174.9 |
| | OP4 | OPEN PORCH W/CEILING-ROOF | 4 | 0 | 2016 | 109.0 |
Sketch
| No sketches available for this property. |
Property Image
Land
| 1 | 14 | SQ (08001-12000) | 0.0000 | 0.00 | 0.00 | 0.00 | 1.00 | $230,000 | $0 |
Roll Value History
| 2026 | N/A | N/A | N/A | N/A | N/A |
| 2025 | $440,554 | $230,000 | $0 | $670,554 | $670,554 |
| 2024 | $379,494 | $230,000 | $0 | $609,494 | $609,494 |
| 2023 | $382,555 | $230,000 | $0 | $612,555 | $612,555 |
| 2022 | $349,182 | $200,000 | $0 | $549,182 | $549,182 |
| 2021 | $305,701 | $160,000 | $0 | $465,701 | $465,701 |
| 2020 | $296,234 | $140,000 | $0 | $436,234 | $436,234 |
| 2019 | $219,906 | $140,000 | $0 | $359,906 | $359,906 |
| 2018 | $220,472 | $110,000 | $0 | $330,472 | $330,472 |
| 2017 | $206,960 | $100,000 | $0 | $306,960 | $306,960 |
| 2016 | $211,184 | $50,000 | $0 | $261,184 | $261,184 |
| 2015 | $0 | $50,000 | $0 | $50,000 | $50,000 |
| 2014 | $0 | $50,000 | $0 | $50,000 | $50,000 |
| 2013 | $0 | $10,200 | $0 | $10,200 | $10,200 |
| 2012 | $0 | $10,200 | $0 | $10,200 | $0 |
| 2011 | $0 | $10,200 | $0 | $10,200 | $0 |
| 2010 | $0 | $10,200 | $0 | $10,200 | $0 |
| 2009 | $0 | $11,000 | $0 | $11,000 | $0 |
| 2008 | $0 | $25,591 | $0 | $25,591 | $0 |
| 2007 | $0 | $25,535 | $0 | $25,535 | $0 |
Deed and Sales History
| 1 | 10/30/2024 | WD | Warranty Deed | WENDY S JOHNSON PR | WEIL TTEE, DOUGLAS LEE | | | $757,500.00 | 61761 | 4579083 |
| 2 | 09/06/2013 | WD | Warranty Deed | ONAMAC MAINTENANCE ASSOCIATION | JOHNSON, SHARON L | | | $62,500.00 | 12742 | 4347832 |
| 3 | 04/01/1987 | QCD | Quit Claim Deed | HOME, SAVINGS & | ONAMAC, MAINTENANCE | | | $0.00 | 71135 | 87005677 |
| 4 | 06/01/1983 | TRUSTEED | Trustee's Deed | ONAMAC, PARTNERS | HOME, SAVINGS & | | | $0.00 | 31682 | 0 |
| 5 | 01/01/1900 | OTHER | Other - Misc. Documents | Unknown | ONAMAC, PARTNERS | | | $0.00 | 0 | 0 |
Payout Agreement
| No payout information available.. |